Pumapungu, Pumapunku Ă  Tiwanaku - Espaces, formes et contours

Espaces, formes et contours

Architecture moderne, ancienne, égyptienne, géométrie, harmonie

Accéder au contenu

  • Raccourcis
  • FAQ
  • Connexion
  • Inscription
  • Espaces, formes et contours Espaces, formes et contours CatĂ©gories du forum Architecture AmĂ©riques

Pumapungu, Pumapunku Ă  Tiwanaku

Répondre
  • Aperçu avant impression
34 messages
  • 1
  • 2
  • Suivant
Jean François
Site Admin
Messages : 2167
Inscription : 18 Juin 2018, 18:28

Pumapungu, Pumapunku Ă  Tiwanaku

  • Citer

Message par Jean François » 04 Nov 2025, 14:58

Pumapungu 1 a.JPG
( Cliquer sur l'image )

Je commencerai sans détour par ce bloc qui pour moi est le plus délirant.

Un pavé de 8.4 tonnes dans la marre

On dirait un assemblage mécanique de plusieurs pièces, un casse tête.

J'aimerai tant voir la face du dessous et celles de derrière, nous ne voyons que 3 faces dans cette isométrie.

Je suis sculpteur, mais j'ai aussi travaillé parfois comme tailleur de pierre.

MĂŞme si quand on taille ou coupe la pierre l'approche et les gestes ne sont pas tout Ă  fait les mĂŞmes pour le tailleur de pierre et le sculpteur,.

Surtout la position du corps par rapport Ă  la pierre.

Aucun n'est supérieur à l'autre, ils se complètent dans un même tout qui est l'édifice entier.

Ces deux compétences que j'ai eu la chance d'exercer sur les Cathédrales, Basiliques et Eglises m'éclairent chaque fois que je regarde cet art du passé.

Regardons la complexité des formes, les trous ronds mais aussi ovale, les niveaux différents, les rebords, les corniches, les creux, les bosses, les surfaces planes parfaites, les angles et les coins affinés, parfaits.

Des différences de niveau de 1 cm ou 2 exécutées à la perfection.

Et toute cette débauche de compétences dans une pierre très dure ( Andésite dureté 6, plus dur que le verre ) pourquoi ?

Mais aussi Ă  cause de quoi?

Ce n'est pas décoratif apparemment, c'est abstrait, presque un code, un langage, mais aussi cela peut être une possibilité d'assemblage avec d'autres blocs monolithes..

Je suis avant tout sculpteur et ce qui le différencie du tailleur de pierre, c' est que le sculpteur crée aussi, part parfois de rien, presque...

Qui a créé le dessin ?

Dessin nécessaire au tailleur de pierre qu'il doit suivre au millimètre près, toutes ces cotations impératives, sinon rien ne s'assemble, impossible d'avoir improvisé, trop complexe.

Ceux qui ont créé Pumapunku ont tout dessiné, côté chaque formes et contours avant bien évidemment, je n'ose imaginer la complexité de la tache créative et exécutoire, en voyant tous ces blocs éparses, du moins ce qu'il en reste.

Monolithes imposants et pierres éparses qui semblent être des clés d'assemblage, un épouvantable casse tête à donner l'heureuse insomnie qui nous tient éveillé au point de voir enfin ce qui est et non ce que nous croyons avoir ou savoir.

Sur quel support tous ces dessins préparatoires et nécessaires aux tailleurs pour accomplir leur tache, à quelle époque?

Avec des connaissances mathématiques évidentes, ce bloc ici comme tous les autres que nous verrons sont des mathématiques, les mêmes bien sûr que celles que nous avons héritées dans le voyage temporel de notre nature humaine.
jeanfrancoiswarein@gmail.com
Haut

Jean François
Site Admin
Messages : 2167
Inscription : 18 Juin 2018, 18:28

Re: Pumapungu, Pumapunku Ă  Tiwanaku

  • Citer

Message par Jean François » 04 Nov 2025, 15:45

Tiwanaku temple 2.jpg
( Cliquer sur l'image )



Alexei Vranich, chercheur à l'université de Californie à Berkeley, a essayé une reconstitution en copiant à 4 % l'originale, chaque pierre pouvant être ainsi réassembler en une anastylose.


Tiwanaku temple 1.jpg
( Cliquer sur l'image )



viewtopic.php?f=8&t=113&start=25#p2690
Nous l'avions vu dans notre post "Tiwanaku" ou dans un premier temps j'étais égaré par les soi disant restaurations entre 1970 et 1980, une catastrophe.

En effet la porte du soleil n'était pas à cette place et certainement pas isolée et faisait bien partie des autres monolithe et blocs éparses.

Je m'étais rattrapés en constatant petit à petit qu'il y avait plusieurs portes de ce type et n'étaient certainement pas isolées. Et puis les angles rognées en haut pour faire un biseau de chaque côté et lui donner une allure d'exister toute seule...Bonjour le traficotage.




Tiwanaku temple 2 (2).jpg
Tiwanaku temple 2 (2).jpg (27.61 Kio) Consulté 2098 fois
( Cliquer sur l'image )


On voit la "Porte du soleil", celle qui a été déplacée pour faire jolie...C'est la troisième à gauche ici en réduction à l'imprimante 3D
( Cliquer sur l'image )



1601310694_792_Larchitecture-ancienne-avancee-du-site-de-Puma-Punku-est-entierement.jpg
( Cliquer sur l'image )



Larchitecture-ancienne-avancee-du-site-de-Puma-Punku-est-entierement.jpg
( Cliquer sur l'image )



Un plan précieux du sol, mais pas très net malheureusement, mais nous tenterons une approche par recoupement des autres cotations que nous disposons.




1601310694_116_Larchitecture-ancienne-avancee-du-site-de-Puma-Punku-est-entierement.jpg
( Cliquer sur l'image )



J'admire le travail de ce chercheur, que de questions, que de nuit à chercher, le matin au réveil les tentatives de clarifier sa vision de la veille, tel le petit Hans dans la Reine des neiges condamné dans son palais de glace à reconstituer le mot éternité...

Je me sens encore plus petit que Hans...
jeanfrancoiswarein@gmail.com
Haut

Jean François
Site Admin
Messages : 2167
Inscription : 18 Juin 2018, 18:28

Re: Pumapungu, Pumapunku Ă  Tiwanaku

  • Citer

Message par Jean François » 04 Nov 2025, 15:59

DIE RUINENSTÄETTE
von
TIAHUANACO
im hochlande des
ALTEN PERU
EINE KULTURGESCHICHTLICHE STUDIE
AUF GRUND SELBSTAENDIGER AUFNAHMEN
VON
Ă„. STĂśBEL und M. UHLE
mit einer karte und 42 tafeln in lichtdruck
LEIPZIG
VERLAG VON KARL W. HIERSEMANN
1892


Ouvrage de référence, les dessins viennent de cette étude.





Pumapungu 4 a.JPG
( Cliquer sur l'image)


Cela fait des années que je suis bredouille, que je cherche un pont entre nos cathédrales et Pumapunku.

Non que je pensais qu'elles étaient d'une même époque, je vois l'espace pas le temps, mais je cherchais désespérément les gestes communs de leur mise en espace, forme et contour.

Cette dalle m'interpelle, me fait bizarrement penser Ă  une sorte de maquette avec ces cinq drĂ´les petits escaliers, certainement anecdotique de ma part, mais cela souvent cache une attirance pour une autre raison inconsciente.

c'est en analysant les dessins sur geogebra que je me suis aperçu qu'il y avait pas mal d'erreur de cotation, pas seulement de risque de confusion entre chiffres mal graphiés, mais tout simplement pas la bonne cotation.

J'avais toujours pensé que la largeur du rectangle intérieur était ce que je lisais 1.51 mètre.

Il était alors normal que je ne trouve jamais la porte d'entrée des bons gestes.

Mais quand j'ai trouvé d'autres erreurs sur les autres dessins nombreux, 5 erreurs en tout, j'ai décidé de remesurer sur les isométries.

La mesure sur le dessin était non pas 1.51 mètre, mais tout simplement 1.61 mètre !

Toutes las cotations correspondaient au dessin, sauf cette mesure, passais plusieurs années bloqué par une simple erreur d'écriture, mais nous avons l'habitude, passant aussi à scanner nos propres erreurs en relisant inlassablement notre travail.
Tiwanaku Dalle erreur mesure 1 a.JPG
(Cliquer sur l'image )

Le cercle que je sais ne pas être en accord avec l'isométrique, mais il met en évidence la possible égalité de cess deux mesures. Nous verrons que ce n'est pas tout à fait le cas, la géométrie ayant ses raisons.


Tiwanaku Dalle erreur mesure (2) a.JPG
( )Cliquer sur l'image)



Maintenant nous pouvons danser avec les gestes communs entre Pumapunku et nos Cathédrales



Tiwanaku monolithe a.JPG
( Cliquer sur l'image )
Soit un simple carré

Tiwanaku monolithe 1 a.JPG
( Cliquer sur l'image )
Le geste de la proportion doré


Tiwanaku monolithe 2 a.JPG
( Cliquer sur l'image )
Tangent au cercle tracé, nous ajoutons un deuxième carré égal au premier.

A nouveau dans ce deuxième carré nous traçons une proportion dorée.

Nous avons ainsi formé un rectangle.

Le carré de départ est bien un carré d'un mètre de côté


Tiwanaku nonolithe 3 a.JPG
( Cliquer sur l'image )

Pumapungu 4 a.JPG
( Cliquer sur l'image )

Nous venons de tracer le rectangle intérieur de ce bloc de 9 tonnes.



Tiwanaku monolithe 4 a.JPG
( Cliquer sur l'image )


Maintenant traçons le rectangle de toute la dalle.

La dalle fait 4 mètres sur 4.04 mètres

Comme par le plus grand des hasards en prenant les diagonales du rectangle au dessus de nos deux carrés, nous atteignons le haut de la dalle, pile.

Comme la dalle a une largeur de 4 mètres, il nous suffit de placer quatre carrés module de 1 mètre de côté pour avoir cette largeur, plaçant ainsi le rectangle intérieur. à sa place.

4.045 mètres pour la longueur, c'est tout simplement 16.18 mètres( 10 Phi en module ) divisés par 4

Et 4.045 divisé par 4 c'est aussi le bloc que nous verrons ensuite qui fait donc 1 mètre de large sur 1.01125 de long( le 16ème de 16.18 mètres).



Tiwanaku monolithe 5 a.JPG
( Cliquer sur l'image )


Et bien évidemment la surface de toute la dalle entière a pour surface 16.18 mètres carrés...


Pumapungu 4 a.JPG
( Cliquer sur l'image )


Tiwanaku monolithe 6 a.JPG
( Cliquer sur l'image )

Tiwanaku monolithe 8 a.JPG
( Cliquer sur l'image)

Ici le tracé pour obtenir les emplacements des 6 petits trous carrés, les deux petits cercles déterminant leur emplacement et mesure.

Désolé pour l'oblique en haut, mais c'est de la faute à Thalès, elle m'a permis de diviser en trois les 4.045 mètres car les centres des trous sont au tiers de la largeur.

Curieux ce mètre ou ce Giri Sumérien, ou ce Sépû Akkadien, ou ces deux Kûs Sumériennes, ces deux Ammatû Akkadiennes ou ces deux Aslû Babyloniennes, ou aussi ces mètres trouvés à Barabar en Indes, mais tout aussi courant en Egypte, en Grèce, à Rome, au Japon, en Chine, au Mexique, etc... tellement présent aussi dans nos cathédrales sous la forme de l'empan etc...

Toute architecture est un dialogue entre les nombres entiers, les rationnels, les irrationnels et les transcendants, puisque seule la géométrie est le geste utilisé par tous les bâtisseurs depuis la nuit des temps.

Nous connaissions déjà les mesures de la terre certainement bien avant les Grecs

Toutes mesures anciennes sont en rapport géométrique entre elles

Rappelons nous des quatre carrés Meh Egyptiens formant un grand carré de 20 meh nessou de côtés qui nous ont permis de comprendre bien des architectures,, la Tholos de Delphes, sainte Mère de Dieu à Ani en Arménie, etc...

Si nous faisons un rapport, avec leur côté de 20 meh nessou, de Phi carré en rapport à 1, nous aurons un reste de 4 mètres qu'on retrouve dans la longueur intérieure de la petite chapelle de Sésostris 1er en Egypte, mais aussi dans la largeur de la dalle à Pumapunku...En plus cette dalle fait 4.045 mètres de longueur, le quart exact de la chapelle d'Achôris en Egypte.

Quelle dalle, quel Dédale mes amis !

Je crains que notre invention du mètre à la révolution ne soit qu'un pauvre remake :)
jeanfrancoiswarein@gmail.com
Haut

Jean François
Site Admin
Messages : 2167
Inscription : 18 Juin 2018, 18:28

Re: Pumapungu, Pumapunku Ă  Tiwanaku

  • Citer

Message par Jean François » 04 Nov 2025, 17:03

Bloc Tiwanaku quadrature péri a.JPG
( Cliquer sur l'image )

Le cercle a même périmétrie que le rectangle de 1 mètre sur 1.01125 mètre


bloc Tiwanaku quadrature Surface a.JPG
( Cliquer sur l'image )



Le cercle a ici même surface que le carré déterminé par les encoches.

Bloc Tiwanaku quadrature surface 1 a.JPG
( Cliquer sur l'image )

Ici encore une quadrature surface !



Bloc Tiwanaku quadrature surface 3 a.JPG
( Cliquer sur l'image )

Toujours quadrature surface!

Le cercle détermine ici la largeur de 1 mètres, pas la longueur de 1,01125mètres




Bloc Tiwanaku 6 a.JPG
( Cliquer sur l'image )


Le cercle et le carré de même surface s'ils valent 10 chacun, le carré du haut en blanc vaut racine de 5 en surface et celui du bas vaut alors l'unité.


Bloc Tiwanaku 7 a.JPG
( Cliquer sur l'image )



Plus près le carré du haut, deux coins sont sur la périphérie du cercle et celui du bas aussi.

Leurs bases se confondent parfaitement avec les motifs taillés du bloc d'andésite.


Bloc Tiwanaku 8 a.JPG
( Cliquer sur l'image )



Plus près en bas


Une simple entrée d'un seul étudié, pour cette série de blocs.qui semblent semblables,.mais en réalité sont tous différents,

Travaillons, c'est le fond qui manque le moins ici.
jeanfrancoiswarein@gmail.com
Haut

Jean François
Site Admin
Messages : 2167
Inscription : 18 Juin 2018, 18:28

Re: Pumapungu, Pumapunku Ă  Tiwanaku

  • Citer

Message par Jean François » 07 Nov 2025, 01:19

Mais qui a créé, dessiné, conçu et bâti Pumapungu ?

Ecoutait-il son cœur battre en paix, comme savait l'écoutait le Gudea Sumérien!

Celui qui nous inventa la seconde, la minute et l'heure, l'accord du temps et de l'espace, à la mesure du pendule, un balancement, un aller et retour, une simple seconde, un Giri ou un simple mètre pour le balancier, au rythme d'un cœur généreux et en paix

N'était-ce pas possible aussi à Pumapunku un jour, une nuit, un cœur en paix qui bat la seconde et trouve sa mesure.

Comment s'étonner alors que cette mesure se rencontre aussi à Pumapunku !

Je ne m'étonne plus...

Travaillons !

"Yapuka" ramasser les noix....
jeanfrancoiswarein@gmail.com
Haut

Jean François
Site Admin
Messages : 2167
Inscription : 18 Juin 2018, 18:28

Re: Pumapungu, Pumapunku Ă  Tiwanaku

  • Citer

Message par Jean François » 07 Nov 2025, 16:51

Revenons Ă  la dalle...Qui nous donne faim ( au point de crever la dalle)...;)



Pumapungu 4 a.JPG
( cliquer sur l'image )




Fait un rapide calcul du volume de la dalle dont le volume fait bien évidemment 4.854 mètres cube.

Calculer aussi les volumes soustraits, le rectangle mais un autre petit rectangle aussi avec ces deux petites sortes d'escalier.

Il reste un volume de 4.236 mètres cube.

Prenons le cube à la lettre, donc équivalant, son arrête sera 1.618 mètres soit la largeur du rectangle intérieur !

Comme la dalle fait de largeur 4 mètres ce qui serait 4 modules, nous avons bien alors une arête du cube de 1.618 module.
.
Même module qu'à Coricancha que l'on prenne 1 mètre ou 1.618 mètre pour le module, le compas et le geste arriveront toujours à l'exacte même forme finale.

C'est l'art de la pige...

NB: Ai corrigé le poids de la dalle dans l'autre post au dessus, une erreur est si vite arrivée...J'analyse des dizaines de pierre, je sature parfois :)
jeanfrancoiswarein@gmail.com
Haut

Jean François
Site Admin
Messages : 2167
Inscription : 18 Juin 2018, 18:28

Re: Pumapungu, Pumapunku Ă  Tiwanaku

  • Citer

Message par Jean François » 10 Nov 2025, 15:37

Tiwanaku bloc de pierre 1 b.JPG
( Cliquer sur l'image )

Isométrique

Tiwanaku bloc de pierre a.JPG
( Cliquer sur l'image )

Vue de face

La vue de gauche nous avions commencé à l'étudier précédemment.


Un deuxième bloc, vue de droite, n'a pas tout à fait la même longueur, presque carré au millimètre près, celui de droite au centimètres près, et des différences évidentes dans les volumes soustraits.

Attention il faut savoir ici que la valeur surface unité choisie n'a pas la même valeur pour le bloc de gauche et celui de droite, cette valeur correspond au plus petit carré marron dessinable dans les motifs soustraits pour chacun.

Ce qui nous permet par comparaison de voir les rapports entre les carrés dessinés et autre carré ou cercle.

Tiwanaku Bloc 3 a.JPG
( Cliquer sur l'image )

Nous avons les rapports, unité surface pour le petit carré marron, racine de 5 pour le moyen et la valeur 10 pour le deuxième cercle bleu intérieur, tout cela pour le bloc de gauche.

Pour celui de droite, le deuxième cercle bleu intérieur est proche de celui du bloc de gauche, sa valeur serait alors 4 Pi, le carré moyen Pi et le petit carré l'unité.

Les positionnements de ces figures ne sont pas fortuits, c'est évidemment constatable.


Tiwanaku Bloc 2 a.JPG
( Cliquer sur l'image )

Bloc de droite, plus près carré moyen valant Pi surface.



Tiwanaku Bloc 4 a.JPG
( Cliquer sur l'image )


Bloc de gauche plus près petit carré, valant l'unité surface
jeanfrancoiswarein@gmail.com
Haut

Jean François
Site Admin
Messages : 2167
Inscription : 18 Juin 2018, 18:28

Re: Pumapungu, Pumapunku Ă  Tiwanaku

  • Citer

Message par Jean François » 10 Nov 2025, 18:49

Pumapunku Dalle a 1.JPG
( Cliquer sur l'image )


Observons bien ces deux dalles.

Elles se décomposent en 9 carrés modules sur 16 mais avec en haut une rigole et sur la gauche une sorte de corniche peu épaisse




[
Puma dalle a.JPG
attachment=1]Pumapumgu 3 a.JPG[/attachment]
( Cliquer sur l'image )



Ici deux de ces dalles assez semblables, quelques mesures.

Mais je me demande si la photos a une déformation!

Mais alors la précédente aussi même si elles viennent toutes les deux de sources différentes.

Si ces photos sont justes nous verrons alors qu'il y a un problème sur le dessin qu'en a fait Stübel.

Le mètre de largeur donné par Stübel et une longueur de 1.92 mètre ne correspondent absolument pas aux photos qui n'atteindraient qu'à peine 1.85 mètre pour un mètre de largeur...

Y a t-il eu des destructions depuis le 19ème siècle à cause de manipulation pour déplacer ces dalles?




Pumapumgu 3 a.JPG
( Cliquer sur l'image )





Une tentative, mais le doute m'étreint, il faudrait une mesure sur place...

Tiwanaku Dalle mise au carreau a.JPG
( Cliquer sur l'image )



De même que les carrés sur la photo semblent plus petits par rapport à la largeur, puisque sur les photos nous avons 9 carrés de largeur sans la rigole alors que sur le dessin de Stübel, les 9 carrés ont inclus la rigole.

Je ne rigole pas, toujours les mêmes incertitudes, pas étonnant qu'on soit devenu ignare au bout de quelques siècles à ne pas savoir mesurer correctement.

Je n'accuse personne...

C'est pas la faute Ă  Voltaire, ni Ă  Zola...




Si le relevé de Stübel est juste, alors c'est simple et très beau.

1+ 3+ 5+ 7+ 5+ 3+ 1= 25

Et puis une largeur pile d'un mètre, à vue de nez, ça sent le module...


Et maintenant regardons bien ces deux motifs

Si nous visualisons quatre de ces carrés côte à cote, ils forment alors chacun les carrés de la porte dite du soleil, ces carrés étant assemblés en rectangle de 8 sur 3, soit 24 carrés, de chaque côté du linteau de la porte, 96 soit 4 fois plus, avec ici les carrés qui ont servi à dessiner ces deux motifs.

NB Viens de corriger les fautes d'orthographe, pas relu...
jeanfrancoiswarein@gmail.com
Haut

Jean François
Site Admin
Messages : 2167
Inscription : 18 Juin 2018, 18:28

Re: Pumapungu, Pumapunku Ă  Tiwanaku

  • Citer

Message par Jean François » 14 Nov 2025, 18:59

https://www.academia.edu/38314181/Inter ... h_1999_pdf

https://www.academia.edu/4164349/The_Co ... ku_Bolivia

A consulter ces deux remarquables études archéologiques.

Qui nous laisse une possibilité de faire notre recherche sur les gestes.


Tiwanaku cadastre a.JPG
( Cliquer sur l'image)


Incontournable vue du site de Tiwanaku, mais nous ne voyons pas ici Kantatallita...




Tiwanaku complexe a.JPG
( Cliquer sur l'image)

MĂŞme site toujours sans Kantatallita, en perspective Ă  deux points de fuite



Pumapunku complexe a.JPG
( Cliquer sur l'image)



Très belle reconstitution de Pumapunku, mais évidemment une hypothèse.


Kantatallita Pumapunku a.JPG
( Cliquer sur l'image)


Reconstitution de Kantatallita, à l'intérieur, nous voyons la dalle que nous avions étudié précédemment.

Mais arrêtons nous devant les mesures indiquées, 35.40 m et 28 m

Périmètre 127.27 mètres avec 35.6 m de longueur et 35.60 mètre diamètre d'un cercle nous aurions alors un carré de même périmétrie avec...28 mètres de côté, soit la largeur.

Certainement 35.60 mètres !

Et 127 27 mètres...Cela ne nous ferait-il pas penser à notre bonne vieille terre ?

La largeur de l'enceinte avec ses 28 mètres serait 7 fois la largeur de la dalle intérieure et la longueur de 35.60 mètres 8.8 fois(44/5) la longueur de 4.045 mètres.


Setjat Ă  Tiwanaku a.JPG
( Cliquer sur l'image)


Suis encore en état de choc :), des 52.3 mètres et 52.45 mètres à Pumapunku qui ne sont pas tombés dans l'oreille d'un sourd d'autant que mes trompes d'Eustache se sont enfin débouchées après deux mois de Barotite ( deux mois sans entendre Bach, Mozart, Beethoven, Schubert, Schumann, Wolf etc...J'ai connu l'enfer!)

Tiwanaku temple a.JPG
( Cliquer sur l'image)


Très belle reconstitution d'après les recherches faites dans les sols, quel magnifique travail !

Pumapunku Temple 5 a.JPG
(Cliquer sur l'image)


En orange le carré de 52.4 de côté.

j'y peux rien, mĂŞme geste que les anciens Egyptiens, le serpent Ă  plume serait-il le stalker ou y aurait-il tout simplement une origine commune beaucoup plus ancienne...

Avant le déluge ?


Comme deux gouttes d'eau, ce serait bien le Setjat Egyptien, carrés surface de 100 meh nessou de côté.

Pumapunku Temple 6 a.JPG
( Cliquer sur l'image)

L'ensemble insiste comme si on n'avait rien vu, mais la largeur est bien 3 fois le côté du carré de 52.4 mètres.

Nous avons tracé un carré avec la largeur comme côté où nous avons 9 Setjat de surface.


La place est décalé un peu vers le bas le dessin suivant nous éclairera.








Pumapunku temple 11 a.JPG
Pumapunku Temple 14 a.JPG
( Cliquer sur l'image)


Les gros traits noirs marquent des mesures égales.

il y a tout comme du compas dans l'air!

Les créateurs de Pumapunku sont dans la même excellence évidemment que ceux qui ont réalisé la taille des pierres...

Nous ne faisons que commencer notre recherche.


J'ai fait référence au Setjat Egyptien, d'autant qu'on retrouve aussi 52.4 mètres à Teotihuacan.viewtopic.php?f=8&t=111#p3331

J'ai aussi fait part d'une mesure Aztèque agraire de cinq coudées mais égale à quatre meh nessou Egyptiennes, le Tlaquetzilantli.
viewtopic.php?f=8&t=111&start=50#p3640

Et 25 Tlaquetzilantli pour le côté d'un carré surface, c'est le Setjat Egyptien !


Pumapunku Temple 12 a.JPG
Pumapunku Temple 13 a.JPG
( Cliquer sur l'image )
jeanfrancoiswarein@gmail.com
Haut

Jean François
Site Admin
Messages : 2167
Inscription : 18 Juin 2018, 18:28

Re: Pumapungu, Pumapunku Ă  Tiwanaku

  • Citer

Message par Jean François » 16 Nov 2025, 23:28

Pumapunku temple 18 a.JPG
( Cliquer sur l'image )

En bleu voici un beau triangle isocèle avec un rapport 14/11, cela nous rappelle-t-il quelque chose?




Pumapunku Temple 16 a.JPG
( Cliquer sur l'image )

Ce n'est pas fini encore une autre noix Ă  ramasser.

Regardons le carré de l'espace central nommé Setjat puisqu'il fait 52.3 m sur 52.3 m, un simple cercle rouge ici nous montre son positionnement, il est en rapport doré puisque que 52.36 x 1.618 = 84.718 mètres qui nous mène à la base du triangle bleu.

Nous allons pouvoir tout tracer au compas et à la règle avec une seule mesure de départ...

Le noyer porte encore ses fruits, mais ils commencent Ă  tomber, "Yapuka' les ramasser.
jeanfrancoiswarein@gmail.com
Haut

Jean François
Site Admin
Messages : 2167
Inscription : 18 Juin 2018, 18:28

Re: Pumapungu, Pumapunku Ă  Tiwanaku

  • Citer

Message par Jean François » 19 Nov 2025, 01:09

Pumapunku temple 19 a.JPG
(Triangle Cliquer sur l'image )


Triangle bleu, c'est la coupe de l'élévation de la pyramide de Khoufou, même angle de base, et le triangle rouge, celle de Kaefré?

Toujours les gestes !
jeanfrancoiswarein@gmail.com
Haut

Olivier
Site Admin
Messages : 870
Inscription : 17 Juin 2018, 20:39

Re: Pumapungu, Pumapunku Ă  Tiwanaku

  • Citer

Message par Olivier » 19 Nov 2025, 12:06

Joli !
Amitiés,
Olivier
Haut

Jean François
Site Admin
Messages : 2167
Inscription : 18 Juin 2018, 18:28

Re: Pumapungu, Pumapunku Ă  Tiwanaku

  • Citer

Message par Jean François » 20 Nov 2025, 20:01

Bonjour Olivier

c'est surtout pour mettre en évidence les gestes qui produisent des rectangles savamment proportionnés, tout triangle isocèle pouvant se transformer en rectangle et vis et versa.

On retrouve ici dans ces architectures américaines aussi les gestes savants qui produisent ces rectangles aux proportions remarquables, si évidentes quand on se penche sur les différentes enveloppes et chapelles qui recouvrent les sarcophages de la sépulture de Toutankhamon entre autres exemples.viewtopic.php?f=60&t=33

Ici grâce à un ange qui passe dans le ciel et s'arrête juste au dessus de Pumapunku et qui peut suffisamment s'approcher, ce qui est rare parfois sur ces sites importants, nous pourrons travailler en parallèle avec les dossiers archéologiques cités au dessus.

Les mesures que donne le satellite ( un ange passe flap, flap !)


Pumapunku satellite.JPG
( Cliquer sur l'image)

Pumapunku satellite 1.JPG
( Cliquer sur l'image)


Pumapunku satellite 2.JPG
( Cliquer sur l'image)

Pumapuku satellite 2.JPG
( Cliquer sur l'image)

Pumapunku satellite 3.JPG
( Cliquer sur l'image)

Pumapunku satellite 4.JPG
( Cliquer sur l'image)

Pumapunku satellite 5.JPG
( Cliquer sur l'image)






Tiwanaku temple c.JPG
( Cliquer sur l'image)
jeanfrancoiswarein@gmail.com
Haut

Jean François
Site Admin
Messages : 2167
Inscription : 18 Juin 2018, 18:28

Re: Pumapungu, Pumapunku Ă  Tiwanaku

  • Citer

Message par Jean François » 25 Nov 2025, 14:32

Pumapunku Tracé stellite a.JPG
( Cliquer sur l'image )

Je ne peux encore trancher définitivement la localisation avec exactitude en partant d'une vue satellite.

Je n'ai pas encore fini de lire et repérer par les photos et dessin de l'archéologue Alexeï Vranich, plus de 400 pages.

Encore une fois, ce n'est pas un reproche, mais se glisse toujours des erreurs dans des études, une seule cotation non conforme avec le réel, erreur que les recoupements peuvent faire apparaître, peut empêcher la logique ou l'harmonie de nous apparaître.

De plus nous sommes en 2025 et les références photographiques de son étude étaient de la fin du siècle dernier.

J'ai du mal encore à être sûr avec mes repérages des différents socles qui apparaissent sur trois niveaux sur la carte google maps...

Pour l'instant très difficile de faire coïncidé le plan archéologique proposé avec la vue satellite, pas seulement visuellement mais aussi un accord des mesures données par satellite et celles données par l'archéologie.

Je ne prétends pas qu'il n' y en ai pas, je ne trouve pas encore la porte....
jeanfrancoiswarein@gmail.com
Haut

Jean François
Site Admin
Messages : 2167
Inscription : 18 Juin 2018, 18:28

Re: Pumapungu, Pumapunku Ă  Tiwanaku

  • Citer

Message par Jean François » 25 Nov 2025, 16:06

le diable est dans les détails !

Mais quand le diable est partout, c'est l'ange qui surgit d'un détail.

Pumapunku satellite 9.JPG
( cliquer sur l'image)

Pumapunku satellite 10.JPG
( cliquer sur l'image)




Nous pouvons maintenant être sûr, simple détail, tout est alors à sa place.


On peut travailler maintenant, car nous sommes bien sur le premier socle....
jeanfrancoiswarein@gmail.com
Haut

Jean François
Site Admin
Messages : 2167
Inscription : 18 Juin 2018, 18:28

Re: Pumapungu, Pumapunku Ă  Tiwanaku

  • Citer

Message par Jean François » 26 Nov 2025, 18:43

Bien qu'il n'en reste rien,
les premières références indiquent clairement que l'andésite sculptée brisée, aujourd'hui dispersée, formait autrefois un
espace clos et sans toit, reposant sur une surface rectangulaire de 6,75 m
sur 38,72 m constituée de dalles de pierre (fig. 8). Au début du XVIIe siècle, il ne restait plus qu'une porte et une « fenêtre »,
et celles-ci sont peut-être restées debout jusqu'au milieu du XVIIIe siècle (Cobo 1990 [1653] : 101 ; Parada 1790). Des études architecturales ont confirmé l'observation initiale selon laquelle l'architecture en andésite et les dalles de grès étaient inachevées.

( AlexeĂŻ Vranich )



Soyons simple et serein, laissons parler les nombres.

Le miracle de la multiplication sans pain...

38.72 et 6.75 mètres

38.73 X 6.76 = 261.8 mètres carrés

Rappelons nous de la dalle avec sa surface de 16.18 mètres carrés. download/file.php?id=4084&mode=view

Le diable est dans les détails!

Un seul détail ?

Alors c'est un Ange d'harmonie ( Flap, flap, flap )

le carré du carré...?

16.18 au carré, n'est ce pas 261.8, en d'autre termes 10 Phi au carré ne sont autre que 100 Phi carré et en mètres ici.

Mais aussi, souvenons nous de Farrington avec son Rikra Incas de 1.62 m, qui n'est qu'une conséquence de tout cela.

Puisque tout est harmonie, que toutes les mesures étalons du monde depuis la nuit des temps jusqu'à notre mètre réapproprié aujourd'hui sont toutes en harmonie avec la mesure moyenne de notre corps et celle de la terre matricielle, l'espace, mais aussi le temps !

Mais un carré de 10 Rikra de côté ne ferait-il pas une aire de de 261.8 Mètres carrés...ou 100 Rikra carrés ?

Ah! Si Farrington avait raison, alors le Rikra serait la proportion dorée du Giri Sumérien, du Sépû Akkadien, la mesure qui est liée à l'espace mais aussi au temps.

Le monde est vaste et pourtant si petit à l'échelle du temps, d'autant si la source relie tout à chacun.

Mon petit doigt me dit depuis fort longtemps que les mesures de la terre était connues bien avant les grecs qui uniquement par les écrits sont les premiers dans notre récit historique.

Uniquement par les écrits...

Mon petit doigt fait partie de ma main et ma main suit les gestes des architectures, comme elle suit ceux des sculptures.

Il n'y a pas que les écrits...

Ce qui est juste, est peut ĂŞtre ailleurs...

LĂ  devant nos yeux!

Yapuka ramasser les noix...
jeanfrancoiswarein@gmail.com
Haut

Jean François
Site Admin
Messages : 2167
Inscription : 18 Juin 2018, 18:28

Re: Pumapungu, Pumapunku Ă  Tiwanaku

  • Citer

Message par Jean François » 27 Nov 2025, 18:01

Pumapunku satellite 11 a.JPG
( Cliquer sur l'image )


Je me demande parfois si j'ai les yeux en face des trous.

Mais il est vrai que Kantatallita n'était pas sur l'autre plan....



Tiwanaku cadastre a.JPG
( Cliquer sur l'image )
jeanfrancoiswarein@gmail.com
Haut

Jean François
Site Admin
Messages : 2167
Inscription : 18 Juin 2018, 18:28

Re: Pumapungu, Pumapunku Ă  Tiwanaku

  • Citer

Message par Jean François » 27 Nov 2025, 20:28

Tiwanaku site transort porte du soleil.JPG
( Cliquer sur l'image)



Transport d'un morceau cassé de Pumapunku jusqu'à Kalasasaya, le trait rouge montre le parcours le plus court, 1300 mètres, pour en faire une porte ??!!! du Soleil??!!.


Tiwanaku porte cassée 3 (2).PNG
( Cliquer sur l'image)



Ici cette "porte du soleil"vue de l'autre côté.

Les dessins visibles marrons que j'ai ajoutés correspondent à chaque fois aux morceaux trouvés à Pumapunku




Tiwanaku éléments du temple 2 (2).PNG
( Cliquer sur l'image)



Exact morceau ici de cette porte du soleil mais sur Pumapunku




Tiwanaku porte couchéee (2).PNG
( Cliquer sur l'image)



Ici la porte du soleil de dos Ă  Kalasasaya





Porte du soleil couchée 1.jpg
( Cliquer sur l'image)



Ici mĂŞme morceau de dos Ă  Pumapunku





Tiwanaku porte cassée 2 (2).PNG
( Cliquer sur l'image)





Ici la porte du soleil de face Ă  Kalasasaya





Tiwanaku éléments du temple 1 (2).PNG
( Cliquer sur l'image)




Ici le mĂŞme morceau de face Ă  Pumapunku


Il n'y a pas de porte su soleil, tout cela aura été du bidouillage, de la réappropriation.

Rien ne se perd et on peut comprendre que chaque intervenant dans l'histoire, détruit ou réutilise selon son propre désir...


Mais qui alors a fait d'un morceau cassé une fausse porte transportée, morceau cassé d'un édifice de Pumapunku, jusqu' à Kalasasaya où il a été installé et aligné Est-Ouest.
Pièces jointes
Tiwanaku éléments du temple (2).PNG
jeanfrancoiswarein@gmail.com
Haut

Jean François
Site Admin
Messages : 2167
Inscription : 18 Juin 2018, 18:28

Re: Pumapungu, Pumapunku Ă  Tiwanaku

  • Citer

Message par Jean François » 28 Nov 2025, 17:30

Rappelons nous Ă  Barabar de Sudama.


Sudama Module Sépu.JPG
( Cliquer sur l'image)

Cercle sol de Sudama et sa longueur tracés 1.JPG
( Cliquer sur l'image) viewtopic.php?f=5&t=102&start=50#p4478



Le cercle au sol de la deuxième salle de Sudama est en vert ici.

Un carré d'1 Nindanu peut l'inscrire.( carré surface de 6 mètres de côté )

Observons N1R1

Faisons un diamètre avec R1N1, la circonférence de ce cercle sera l'exact dixième de la grande largeur de Pumapunku.

Les gestes, toujours les mĂŞmes.

De plus la largeur de la dalle de Kantatallita est bien les 2/3 du côté du carré Nindanu viewtopic.php?f=8&t=269&p=4804#p4770




Pumapunku complexe a.JPG
( Cliquer sur l'image)


Petit Ă  petit nous nous approchons des premiers gestes de composition.

les musiciens ont écrit leurs traités d'harmonie, nous pouvons en référer.

Les concepteurs des architectures du passé, créateur de cité ne transmettaient que par le geste et l'oral leur connaissance à leur successeur choisi, jamais par l'écrit.

Les gestes premiers de la conception nous sont invisibles.

Pourtant nous pouvons les rechercher car ils ont fait naitre le visible de l'architecture.

Suffit de les retrouver, même si l'homme de pouvoir de la cité ne devait pas savoir.

C'était une question de survie pour le concepteur de la cité...
jeanfrancoiswarein@gmail.com
Haut

Jean François
Site Admin
Messages : 2167
Inscription : 18 Juin 2018, 18:28

Re: Pumapungu, Pumapunku Ă  Tiwanaku

  • Citer

Message par Jean François » 30 Nov 2025, 01:47

Rikra et mesures a.JPG
( Cliquer sur l'image)

Si le Rikra Incas existe, on peut le trouver dans un carré Meh Egyptien, tout autant.

Mais on peut tout autant trouver une meh nessou Egyptienne en partant du Rikra.

Je ne mets pas une domination quelconque d'une civilisation sur une autre, si éloignée géographiquement, je mets en lumière les rapports entre elles sur un pied d'égalité des savoirs du geste et qui nous sont de plus en pl;us constatables...

1 Rikra, c'est bien 1.618 mètre

Harmonie oblige...



Tlaquetzilantli est la mesure agraire Aztèque.

209. 44 mètres seraient 100 Tlaquetzilantli sont très proches de la plus grande largeur Ouest de Pumapunku !

Et la largeur Est 75 Tlaquetzilantli

Faut bien lever tous les lapins, sinon la vraie histoire risque de nous en poser un définitivement...

Entendons nous, si le Rikra existe tout comme le Tlaquetzilantli Aztèque qui lui existe assurément ( Trace ici viewtopic.php?f=8&t=111&start=50#p3640) sont en lien à une même source certainement beaucoup plus ancienne.

Nous avions montré que l'art Roman et sa suite dans l'art ogival, les véritables mesures étalon n'étaient pas le pied romain et le pied du roi ( De Charlemagne) mais la meh nessou Egyptienne et l'empan du moyen âge.

Mais nous rencontrons bien évidemment des pieds romains parfois quand le geste harmonique fait naître les nombres entier et transcendant grâce aux quadratures surfaces.

Puisqu'un carré d'une meh nessou de côté a même surface qu'un cercle d'un pied romain de rayon.

Mais aussi l' hexagone de même surface que le carré et le cercle cette fois avec un côté d'un exact pied du roi.

Tout comme un cube d'arête 1 meh nessou la sphère de même volume a un exact rayon d' 1 pied du roi...

Un carré de 6 pieds romains, 6 Pès, a même surface qu'un cercle d' 1 Giri Sumérien, 2 Küs Sumériennes, ou 1 mètre de rayon, mais aussi un carré de 6 Chi Tang Chinois de côté.

Quadrature mais aussi nombre d'or et son carré, donc nombre entier et irrationnel, par la racine de 5 avec entier additionné ou soustrait..

Si 1 est l'empan, la meh nessou est Phi carré.

Mais aussi par la diagonale d'un carré et son côté, 10 meh nessou de diagonale, c'est 12 pieds grecs pour le côté du carré, cinquantième partie du grand stade grec..

On écrirait des pages et des pages de dessin par le geste sur ces liens harmoniques et géométriques de toutes ces mesures depuis la nuit des temps jusqu'à notre mètre qui n'est qu'une réappropriation inconsciente de la mesure espace/temps données par le Gudea des Sumériens qui doit avoir une source encore plus ancienne.

NB: Corrigé les erreurs
jeanfrancoiswarein@gmail.com
Haut

Jean François
Site Admin
Messages : 2167
Inscription : 18 Juin 2018, 18:28

Re: Pumapungu, Pumapunku Ă  Tiwanaku

  • Citer

Message par Jean François » 01 DĂ©c 2025, 17:03

Des orientations uniformes (Janusek 1994), des alignements avec des phénomènes naturels et astronomiques (Posnansky 1945), et des proportions précises déterminant la forme rituelle (Protzen et Nair 2000) suggèrent que l'architecture rituelle du site de Tiwanaku, en Bolivie (500-950 apr. J.-C.), a été construite selon des croyances qui supposaient une unité entre l'espace cosmologique et l'espace mythique. Un examen attentif et éclairé des lieux révèle cependant des murs construits en pierre impeccablement taillée mais mal assemblée, d'énormes blocs bruts et une architecture inachevée (Bandelier 1911). L'aspect incomplet et
souvent hasardeux de l'architecture tant louée de Tiwanaku
a donné lieu à des théories selon lesquelles des tremblements de terre, des invasions, des révoltes, des déluges et d'autres catastrophes soudaines auraient
anéanti la population avant qu'elle ne puisse mener à bien son
plan divinement inspiré. Un ancien chroniqueur espagnol a exprimé succinctement cette énigme, décrivant Tiwanaku comme un lieu où l'on construit ses monuments « comme si
l'intention n'était jamais de les terminer » (de Polo Ondergar-
do 1916 [1571] : 108).

Des fouilles récentes remettent en question cette théorie de « l'effondrement soudain à un moment crucial » en suggérant une histoire moins cataclysmique mais
plus chaotique. Les preuves actuelles suggèrent que même si
certains monuments étaient à leur apogée et que de nouvelles structures
ou des rénovations étaient entreprises, d'anciens bâtiments languissaient
à divers degrés de délabrement et d'effondrement (Couture
et Sampeck 2003 ; Isbell et Vranich 2004 ; Janusek
1994). Nos recherches visent Ă  comprendre cette histoire chaotique
et complexe de construction et de reconstruction
Ă  travers un monument du site, le complexe du temple de Pumapunku.
Bien qu'initialement conçu selon des principes de symétrie stricts, le complexe porte des traces de modifications ultérieures
et de l'utilisation de méthodes de construction moins gourmandes en main-d'œuvre
à l'apogée de la cité, ce qui a entraîné une
perte de symétrie précise. Pour l'archéologue averti qui déambule dans le complexe, le temple semble incomplet
; pour l'ancien pèlerin arrivant pour une fête sur le site, il présentait une séquence soigneusement orchestrée de façades et de perspectives,
créant une expérience architecturale impressionnante
qui incarnait le symbolisme emblématique de la religion
tiwanalrn. Ce qui nous semble au premier abord un défaut de conception
est en réalité une décision consciente des bâtisseurs visant à créer
un cadre plus impressionnant dans le cadre d'une stratégie plus vaste
attirer et convertir les visiteurs, et finalement intégrer une
diversité de personnes dans la hiérarchie de l'État archaïque en développement.

Situation
Située à 3 840 m d'altitude en Bolivie, la vaste vallée de l'Altiplano de Tiwanaku

est délimitée sur trois côtés par des chaînes de montagnes et sur le quatrième par le lac Titicaca.

Au centre approximatif de la vallée se trouvent une série de pyramides et de plateformes qui marquent le centre de l'ancienne cité de Tiwanaku.

122 Construction et reconstruction de l'espace rituel Ă  Tiwanaku
Envoyer d


AlexeĂŻ Vranich


Nous voyons bien que rien n'est sûr et c'est normal.

Je ne parle pas ici du remarquable travail de fouille des sols dont fait part Vranich et des informations sur les appareillages des pierres et des dalles, et des mesures et tentatives de redonner une forme et des contours aux espaces de Pumapunku.

Nous abordons ici le récit historique dominant.

Supposition, hypothèse se succèdent, s'accumulent, chacun de citer les intervenants, ceux qui ont le droit de s'assoir au banquet du savoir, sur une assise de datation toujours problématique et souvent douteuse.

Ce n'est pas un reproche de ma part, personnellement je n'en sais rien du tout.

Le banquet ne m'intéresse pas, la contemplation me suffit !

il y a toujours un bon repas sur les trois tables d'Harmonie.
jeanfrancoiswarein@gmail.com
Haut

Jean François
Site Admin
Messages : 2167
Inscription : 18 Juin 2018, 18:28

Re: Pumapungu, Pumapunku Ă  Tiwanaku

  • Citer

Message par Jean François » 02 DĂ©c 2025, 16:18

Pumapunku-9.jpg
( Cliquer sur l'image )


Pumapunku Tentative.jpg
( cliquer sur l'image )

Regarder Ă  gauche les pierres en forme de H sur le sol


Les tentatives d" Alexeï Vranich de placer ces blocs de 1 mètre de hauteur, ne semblent pas satisfaisantes.

Bon...C'est ce que je ressens, ce qui n'est pas la référence...

Je n'ai rien Ă  proposer, si ce n'est que le lien, qui doit exister entre les monolithes imposants et des pierres en formes de H non semblables mais beaucoup plus modestes, est qu'elles semblent jouer un rĂ´le de clef.

Tant qu'on aura pas trouvé ce lien, on ne comprendra rien...
jeanfrancoiswarein@gmail.com
Haut

Jean François
Site Admin
Messages : 2167
Inscription : 18 Juin 2018, 18:28

Re: Pumapungu, Pumapunku Ă  Tiwanaku

  • Citer

Message par Jean François » 02 DĂ©c 2025, 20:58

yes !



Pumapunku Tentative.jpg
( Cliquer sur l'image )


En bas à gauche on voit deux blocs en H qui sont posés sur le socle.

La reconstitution les met trop bas, il manque une pierre oblongue en dessous entre le bloc en H et la dalle!
.





Pumapunku livre étude a.JPG
( Cliquer sur l'image )


Dessin de Vranich qui nous a permis de chercher le bloc en forme de H.


Pumapunku construire 4 a.JPG
( Cliquer sur l'image )


Le voici ! Et nous voyons qu'il faut une pierre oblongue en dessous pour être au niveau de l'entrée de la porte sur la droite du dessin.




Pumapunku construire 2 a.JPG
( Cliquer sur l'image )


Voilà ce fameux reste où l'on voit très bien la forme de H, j'ai mis deux traits blancs pour le percevoir.

Mais ici il vient d'un grand bloc monolithe qui a été rompu, cassé.

Regardons les cercles rouges ils montrent les deux corniches qui sont dans le même alignement horizontale de l'édifice.


Dans la reconstitution 3 D de Vranich, les deux blocs en H semblent trop bas, il faut les surélever de 0.32 mètre.

Il y a donc dans cette édifice originel, des blocs entiers monolithes et d'autres semblables mais en plusieurs parties assemblables.

Ils fonctionnent comme des clés de fermeture pour faire corps et assembler les monolithes de plusieurs tonnes, voir dizaine, les blocs en H faisant déjà plus d'une tonne !




Pumapunku construire 3 a.JPG
( Cliquer sur l'image )


Voici les 2 corniches qui se prolongent sur le monolithe encadrant une porte, le cercle rouge les montre...
jeanfrancoiswarein@gmail.com
Haut

Jean François
Site Admin
Messages : 2167
Inscription : 18 Juin 2018, 18:28

Re: Pumapungu, Pumapunku Ă  Tiwanaku

  • Citer

Message par Jean François » 04 DĂ©c 2025, 00:05

Toutes ces fausses fenêtres, plutôt des niches rectangulaires, sont sur la face intérieure de l'édifice.

L'autre face, l'extérieur est plus lisse et contient des signes et représentations en faible relief, mais parfaitement détourés avec le soleil.

La porte du soleil, d'ailleurs comme les autres sans soleil, fait 0.42 mètres en bas et 0.46 mètre dans le haut

Les blocs en H peuvent aller jusqu'à 0.63 mètre de profondeur.

Là où ils sont, l'épaisseur y est donc plus importante et il doit y avoir une raison...

Cherchons...
jeanfrancoiswarein@gmail.com
Haut

Jean François
Site Admin
Messages : 2167
Inscription : 18 Juin 2018, 18:28

Re: Pumapungu, Pumapunku Ă  Tiwanaku

  • Citer

Message par Jean François » 07 DĂ©c 2025, 23:14

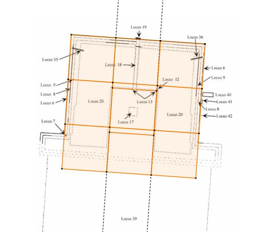
Pourquoi le H se retrouve dans un ensemble monolithe, mais aussi en bloc isolé et pourquoi cette découpe.

Les niches et portes ont toujours les mêmes motifs qui imitent la présence d'un linteau au dessus du rectangle de la niche ou le rectangle de la porte.

Pourquoi les blocs en H seuls n'ont pas ce symbol du linteau, ils ont été coupés à l'appareillage et certainement redessinés sur un autre bloc assemblé au dessus avec à sa base un rectangle oblongue complétant le motif.

Deuxième raison à trouver !




Pumapunku motif linteau a.JPG
(Cliquer sur l'image )


Voici le motif répétitif

Evidemment c'est un motif en bas relief qui symbolise une fenĂŞtre ou une porte avec un linteau dessus.


Motif et bouche cousue.
jeanfrancoiswarein@gmail.com
Haut

Répondre
  • Aperçu avant impression

34 messages
  • 1
  • 2
  • Suivant

Revenir vers « Amériques »

Atteindre
  • CatĂ©gories du forum
  • ↳   Architecture
  • ↳   Afrique
  • ↳   Architecture de l'Egypte ancienne
  • ↳   GĂ©omĂ©trie de la pyramide de KhĂ©ops
  • ↳   La petite Chapelle de SĂ©sostris 1
  • ↳   Gizeh : disposition gĂ©omĂ©trique des pyramides
  • ↳   La pyramide d'Abu Rawash : Redjedef
  • ↳   L'enceinte de Djeser bâtie sur PI ?
  • ↳   Anciennes mesures de surface
  • ↳   A la recherche du Cadastre ...
  • ↳   Les chapelles de SĂ©sostris 1er
  • ↳   La pyramide de Meidoum
  • ↳   le complexe d'Amenemaht III
  • ↳   La chapelle rouge de Karnac
  • ↳   Les chapelles d'albâtre
  • ↳   Le tombeau de Toutânkhamon
  • ↳   KhĂ©phren
  • ↳   MykĂ©rinos
  • ↳   Europe
  • ↳   La cathĂ©drale de Chartres
  • ↳   Notre Dame de Paris
  • ↳   Stonehenge
  • ↳   Chambord
  • ↳   AmĂ©riques
  • ↳   Asie
  • ↳   Australie
  • ↳   Arts visuels et kinesthĂ©siques
  • ↳   Afrique
  • ↳   AmĂ©riques
  • ↳   Asie
  • ↳   Australie
  • ↳   Europe
  • ↳   la peinture et les 3 tables
  • ↳   LĂ©onard De Vinci
  • ↳   La Cène
  • ↳   L'Annonciation
  • ↳   Sandro Botticelli
  • ↳   La naissance de VĂ©nus
  • ↳   L'Annonciation de Botticelli
  • ↳   La Calunnia di Apelle
  • ↳   Piero Della Francesca
  • ↳   Ecrits
  • ↳   Afrique
  • ↳   Textes hiĂ©roglyphiques
  • ↳   AmĂ©riques
  • ↳   Australie
  • ↳   Asie
  • ↳   Europe
  • ↳   En vrac
  • ↳   Musique
  • ↳   Afrique
  • ↳   AmĂ©riques
  • ↳   Asie
  • ↳   Australie
  • ↳   Europe
  • ↳   Sciences et techniques
  • ↳   Afrique
  • ↳   AmĂ©riques
  • ↳   Asie
  • ↳   Australie
  • ↳   Europe
  • ↳   Sciences Humaines
  • ↳   Afrique
  • ↳   AmĂ©riques
  • ↳   Asie
  • ↳   Australie
  • ↳   Europe
  • ↳   Hors sujets en vrac
  • Espaces, formes et contours Espaces, formes et contours
  • Le fuseau horaire est rĂ©glĂ© sur UTC+01:00
  • Supprimer tous les cookies du forum
  • Nous contacter

DĂ©veloppĂ© par phpBB® Forum Software © phpBB Limited

Traduction française officielle © MaĂ«l Soucaze

PRIVACY_LINK | TERMS_LINK