AchĂ´ris - Page 2 - Espaces, formes et contours

Espaces, formes et contours

Architecture moderne, ancienne, égyptienne, géométrie, harmonie

Accéder au contenu

  • Raccourcis
  • FAQ
  • Connexion
  • Inscription
  • Espaces, formes et contours Espaces, formes et contours CatĂ©gories du forum Architecture Afrique

AchĂ´ris

Répondre
  • Aperçu avant impression
56 messages
  • PrĂ©cĂ©dent
  • 1
  • 2
  • 3
  • Suivant
Jean François
Site Admin
Messages : 2168
Inscription : 18 Juin 2018, 18:28

Re: AchĂ´ris

  • Citer

Message par Jean François » 21 Jan 2025, 16:40

AchĂ´ris colonnes 12 a.JPG
( Cliquer sur l'image )

Nous avons encore (Toujours choisir les bons outils) tracé le grand carré Egyptien l'Heseb.

Il est simple de constater que nos 25 meh nessou sont ici la moitié de son côté qui fait bien évidemment 50 meh nessou.

Nous avons tracé, donc dans le quart de surface de l' Heseb, toujours le rapport 1 et Phi carré....( Quart du carré Heseb qui est aussi la moitié du carré Sa )



AchĂ´ris colonnes 14 a.JPG
( Cliquer sur l'image )



Nous constatons qu'il nous donne cette fois la profondeur du Naos...

Et notre rectangle 13.09/7.5 est en fait de 25 meh nessou sur les 3/2 de la profondeur du Naos.




AchĂ´ris colonnes 11 a.JPG
( Cliquer sur l'image )


Observons l'incroyable précision des possibles tracés en utilisant les propres savoirs des anciens Egyptiens avec leurs unités de surface.

Le cercle du tracé du rapport doré vient juste donner la base du commencement du mur du Naos, et ces rapports dorés ne sont pas à 2% mais à 0.0000....%
jeanfrancoiswarein@gmail.com
Haut

Jean François
Site Admin
Messages : 2168
Inscription : 18 Juin 2018, 18:28

Re: AchĂ´ris

  • Citer

Message par Jean François » 22 Jan 2025, 16:05

Nous cherchons...

Je confronte mes recherches sur les gestes premiers d'une création architecturale en tant que sculpteur à ceux ici de Jean Lauffray, qui a été plus soucieux d'un traçage au sol de l'arpenteur transposant un plan achevé, dont les gestes créateurs ne sont plus visibles...

Et surtout je peux faire mon travail d'analyse grâce à son magnifique travail de relevé, sa précision, et la qualité de ses plans. ( Mise à part les erreurs de l'imprimeur et des pains oubliés par les relecteurs )

Tant mieux si plusieurs chemins s'éclairent, mais l'arpentage n'est pas la symmétria, d'autant une coudée de 0.54 m hors pratique culturelle des Egyptiens, et en plus en tant que module.

Qu'est ce qu'un module ?

Il est mis Ă  toutes les sauces...

Je connais bien les apprentissages des Beaux Arts de Paris que recevaient aussi les étudiants architectes ( Nous discutions au restau Universitaire avec eux ) des sommités de la Sorbonne y venant professer, enseignement ayant très peu changé tout le 20ème siècle, avec une carence énorme sur les pratiques de composition, voir inexistantes et aujourd'hui abyssales...

Un lien ancestrale entre les gestes de la création sculpturale et les gestes de la création architecturale a toujours existé depuis l'origine du monde dans l'histoire, d'autant en Egypte, puisque le scribe des formes et des contours est indifféremment dessinateur, peintre, sculpteur et architecte.

Ce qui est ne change pas, même du temps des grecs avec Phidias et bien plus tard dans l'art roman, gothique, Pierre de Montreuil et d'autres, et la période de la renaissance, Verrocchio, Brunelleschi, Michelangelo Buonarroti, Da Vinci sont omni compétents.

Ce qui va changer, c'est avec les académies sous Louis XIV, où se cloisonneront définitivement les différents modes d'expression et dans toute l'Europe, la colonisation ensemencera ce même académisme.

AchĂ´ris profondeur Naos a.JPG
( cliquer sur l'image )

Ici la profondeur du Naos, c'est curieusement cinq unités du Giri des Sumériens, mais aussi le Sepû Akkadien mais aussi dix unités de la Kûs Sumériennes, de l'Ammatû Akkadiennes, de l'Aslu Babyloniennes, et donc aussi chez les Perses, voisins géographiques et temporels...Et aussi cinq unités de nos mètres d'aujourd'hui," avatar" et retour de longue date du Giri Sumérien.


Jean Lauffray mesure la largeur au sol des murs extérieur du Naos.


Il nous donne 8.86 mètres, cotation écrite dans son texte qui va nous éclairer et enfin amener un rapport harmonique fondamentale !

La Symmetria est un rapport, une proportion !

Le rapport d'un carré et d'un cercle qui ont même surface est au Panthéon des rapports harmoniques de l'humanité.

Si nous considérons un carré de 8.86 mètres de côté, le rayon du cercle qui a même surface que celle du carré est bien de 5 mètres de rayon.

La profondeur du Naos...


AchĂ´ris profondeur Naos 1 a.JPG
( cliquer sur l'image )

Et observons l'arrivée du carré bleu sur la porte Nord !




Et ceci va nous permettre d'aborder les élévations....

NB: Deux millions de vue bientĂ´t et principalement sur le forum architecture...Et pas de contradicteur...
Pour l'inscription suffit d'envoyer un avis sur ma boite ou celle d'Olivier pour que nous puissions autoriser l'entrée par un clique sur le PCA du forum, et pour être sur que ce ne soit pas un robot...

C'est par débat et collégial que la recherche avance...

Des sujets n'apparaissent plus parce que je n'arrive pas à les faire émerger sur une deuxième page, cela va bientôt être résolu...Enfin si j'y arrive, pas faciles ces mécaniques informatiques....
jeanfrancoiswarein@gmail.com
Haut

Jean François
Site Admin
Messages : 2168
Inscription : 18 Juin 2018, 18:28

Re: AchĂ´ris

  • Citer

Message par Jean François » 24 Jan 2025, 16:36

Au fur à mesure de ma découverte de l'élévation, je mesure l'ampleur et le magnifique travail de reconstitution de Jean Lauffray.

Magnifique ! Un vrai bâtisseur.

Je ne fais ici que ramener mon regard de sculpteur sur le geste créatif qui a pu être à l'origine de la composition de cette Chapelle.

Ce n'est pas en effet le but de la recherche de Jean Lauffray qui est dans l'urgence de la reconstruction d'une anastylose et la justification de sa démarche auprès des communautés Archéologiques et Egyptologiques.

Encore une fois cette coudée de 0.54 m est plus lié à une culture grec, n'est pas en tant que tel un module, d'autant qu'elle ne résout pas les largeurs.


download/file.php?id=3631&mode=view

Revenons sur le 3.24 mètres que nous avions obtenu avec le carré qui s'inscrit dans le pronaos, espace entre les colonnes de l'entrée Nord, et au Sud, mais aussi hauteur du fût des colonnes pour l'élévation.

La longueur extérieure de la Chapelle est 5 fois la hauteur du fût des colonnes mais aussi 5 fois l'espace entre les colonnes de l'entrée Nord.

C'est aussi le rapport Phi, nombre d'or, entre le côté du carré surface Meh ( unité de surface Egyptienne) du pronaos et l'espace entre les colonnes mais aussi la hauteur de leur fût...

Voilà un éclairage possible sur une répétition modulaire !

Mais une architecture n'est pas qu'un assemblage simpliste et réducteur de module ou de cube.

C'est avant tout un labyrinthe Harmonique, un chef d'oeuvre !
jeanfrancoiswarein@gmail.com
Haut

Jean François
Site Admin
Messages : 2168
Inscription : 18 Juin 2018, 18:28

Re: AchĂ´ris

  • Citer

Message par Jean François » 27 Jan 2025, 00:42

Achôris élévation a.JPG
( Cliquer sur l'image )


Mesures données par Jean Lauffray pour les colonnes, le fut fait 3.24 mètres, le chapiteau 0.76mètres



Achôris élévation au sein de Meh 1 b.JPG
( Cliquer sur l'image )


Toujours le carré Meh, unité de surface de l'ancienne Egypte, 10 meh nessou de côtés .

Toujours le même geste qui nous offre, la mesure du fut, 3.24 mètres et le fut et son chapiteau, 4 mètres.

4 mètres pour le fût et le chapiteau, un 4 mètres récurrent, Petite Chapelle Sésostris 1er, longueur intérieure, Chapelle Thoutmosis III, largeur extérieure etc...




Achôris élévation au sein du carré Meh a.JPG
( Cliquer sur l'image )


"Yaka" ramasser les noix!

D'autant que le singe de Thot est dans l'arbre pour les faire tomber à nos pieds et que nous pouvons les ramasser avec nos coudées royales et l'aide de son Ibis :D
jeanfrancoiswarein@gmail.com
Haut

Jean François
Site Admin
Messages : 2168
Inscription : 18 Juin 2018, 18:28

Re: AchĂ´ris

  • Citer

Message par Jean François » 27 Jan 2025, 17:33

Achôris élévation au sein du carré Meh 4 a.JPG
( cliquer sur l'image )




Jean Lauffray nous offre, sur un plateau d'argent, sa reconstitution avec ce dessin de la colonne avec base et dé sous la poutre de bois.

D'abord une tentative avec ses cotations sur le dessin, car il y a une autre tentative de reconstitution de Lauffray avec l'intervention aussi de Traunecker, avec quelques différences que nous analyserons ensuite.

D'abord Lauffray : Base de 0.30 mètre plus dé de 0.30 mètre ajoutés à 4 mètres ( Fût et chapiteau ) nous élèvent à 4.60 mètres.

Nous avons considéré 4.60 mètres comme le diamètre d'un cercle.

Et nous constatons que la périmétrie de ce cercle est exactement 14.47 mètres qui est la longueur intérieure du Pronaos plus le Naos.

Que la colonne ait un lien sacré avec l'espace intérieur du sanctuaire est raisonnablement envisageable, d'autant que ces deux dimensions se retrouvent dans le cercle qui n'est autre que l'image de Ré !
jeanfrancoiswarein@gmail.com
Haut

Jean François
Site Admin
Messages : 2168
Inscription : 18 Juin 2018, 18:28

Re: AchĂ´ris

  • Citer

Message par Jean François » 28 Jan 2025, 01:28

Achôris élévation au sein du carré Meh 5 a.JPG
( Cliquer sur l'image )



Le cercle de diamètre formé par la base plus le fût de la colonne, 0.30 mètre plus 3.24 mètres, donnent bien 3.54 mètres.

N'est ce pas le côté du carré qui a même surface que le cercle de 4 mètres de diamètre, soit le fût plus le chapiteau !


Le singe de Thot est toujours dans le noyer je vois !

NB: Ce n'est qu'une hypothèse car dans le texte de l'ouvrage, accompagné d'un autre dessin la base est revu à 38 cm au lieu du 30 possible sur le dessin...
jeanfrancoiswarein@gmail.com
Haut

Jean François
Site Admin
Messages : 2168
Inscription : 18 Juin 2018, 18:28

Re: AchĂ´ris

  • Citer

Message par Jean François » 28 Jan 2025, 17:19

Meh, mais, mais...Il y a deux autres tentatives proposées pour la reconstitution des colonnes....


Le plan est fiable...Et pourtant il y a eu un affaissement partie Nord, et sur 2400 ans, des secousses sismiques modérées ont pu étirer la maçonnerie simplement posé sur un dallage épais qui montre lui même par endroits des joints conséquents.

On peut tabler jusqu'à 3 à 4 cm sur 10 mètres, d'autant en observant les photos, il a des écartement visibles sur les murs.

Mais nous verrons tout cela jusqu'à la substantifique moëlle !


Nous avons pris les dessins en fin de livre, Coupe Est Ouest Restitution et le deuxième, Façade Ouest Restitution !

La hauteur de l'entrée Ouest a été reconstituée et 2 cotations sont données 3.58 mètres, Nord- Ouest et 3.60 mètres Sud-Ouest !

Ceci nous rappelle la largeur de La chapelle de barque en calcite aux noms d'Amenhotep Ier et Thoutmosis Ier à Karnak, voir les travaux de Gabolde Luc, Jean-François Carlotti, Catherine Graindorge.


3.5904 mètres sont deux hépêt Egyptiens

L'hépêt est une brasse de 6 meh djeser, coudées sacrées ou 4 meh chery, petites coudées.

J'avancerai et n'engageant que moi- même de nous rappeler que dans la Bible avec Ezéchiel, l'ange a une canne de six coudées d'une coudée plus une palme.

C'est 48 palmes, donc 2 hépêt Egyptiens !

Pourquoi ces deux Hépêt de hauteur, justement les portes d'entrée de la barque céleste qui ouvrent l'espace intérieur du Pronaos, espace au sol de 10 meh nessou .

Ce sont alors deux portes en bois en rotation d'un quart de cercle formant chacune un rayon de 5 meh nessou, soit 2.618 Giri Sumériens ou mètres d'aujourd'hui...

Elles parcourent ensemble au sol 8.224 mètres en circonférence, soit 5 meh nessou plus 5 meh chery plus 5 meh remen plus 5 meh djeser.


AchĂ´ris Portes a.JPG
( Cliquer sur l'image )


A gauche du dessin, l'entrée Ouest, les deux cercles bleus en pointillés de 5 meh nessou de rayon dessinent le mouvement des portes !


Le singe de Thot est assis Ă  la recherche de ses puces...Tout en nous observant.

Il nous a mis la puce Ă  l'oreille...
jeanfrancoiswarein@gmail.com
Haut

Jean François
Site Admin
Messages : 2168
Inscription : 18 Juin 2018, 18:28

Re: AchĂ´ris

  • Citer

Message par Jean François » 29 Jan 2025, 23:40

Quelles que soient les différentes propositions de Lauffray et Traunecker pour les colonnes, que nous reverrons ultérieurement, il semblerait que le haut des murs s'élèveraient à une hauteur de 5.65 mètres.

5.64 mètres seraient sages.

Puisque cette mesure entre en résonnance avec le Naos !

Hippase de Métaponte n'aurait pas procédé autrement !

L'intérieur du Naos fait 5 mètres en profondeur et 7.07 de largeur. (7.07 mètres, tout comme le côté de la toiture carrée de la chapelle Blanche de Sésostris premier, l'écartement des colonnes de la cathédrale de Chartres et son double qui est aussi la longueur de la chambre de la Pyramide de Khaefré etc...)

Symmetria...

Un cercle de 5.64 mètres de diamètre a même surface qu'un carré de 5 mètres de côté, qui est la profondeur du Naos...

Mais aussi les 8.86 mètres de l'extérieur des murs du Naos, côté d'un carré de même surface qu'un cercle de 5 mètres de rayon !

Il y a bien Symmetria...

Alliance entre le plan et l'élévation.

Tout comme entre l'écartement des colonnes de 3.24 m et leur fut, mais aussi le muré de la porte Nord qui fait aussi 3.24 mètres de hauteur.

Alliance par les rapports mais aussi par la répétition de certains rapports clefs !

C'est certains... :D

Cherchons les clefs !
jeanfrancoiswarein@gmail.com
Haut

Jean François
Site Admin
Messages : 2168
Inscription : 18 Juin 2018, 18:28

Re: AchĂ´ris

  • Citer

Message par Jean François » 30 Jan 2025, 16:05

Oui, c'est au fur et Ă  mesure de mes observations que je m'informe en suivant le texte de Lauffray, mais en aval et non en amont de mes observations.

Suis sculpteur et le sens de l'observation du sculpteur est déterminé par sa pratique personnelle, sa créativité, aussi par l'observation des espaces, mais aussi par l'étude pratique de l'analyse des formes et des contours, par la connaissance des gestes transmis grâce à l'analyse ( appelée vulgairement "copie").

De plus j'ai eu la chance de cette expérience pendant plusieurs années à la restauration des monuments historiques et même à la reconstitution de statuaire.

Pouvoir librement selon son art et les transmissions reçues, découvrir les chemins possibles suivies par le créateur de cette chapelle, au fur et à mesure des indications factuelles ou hypothétiques avancés par le travail de Lauffray, malgré quelques errances, est préférable pour trouver le bon chemin, par tâtonnement successif.

Ce qui a de bien dans le support forum, est que le temps existe toujours, la sinusoïdale du chemin reste visible et fait émerger le parcours réel d'une recherche, l'émergence des hypothèses, les errances, les rencontres factuelles.

Comme les cailloux du petit poucet, chacun, et moi même compris, peut en lisant ce que j'ai écrit presque chaque jour remonter tout le chemin avec son sens critique et ses propres compétences.

Je fais parfois du portrait sculpté, discipline terrible, un art qui est passé de mode malheureusement. Dommage car c'est une discipline très enrichissante.

Grâce à l'arrivée du numérique où nous pouvons mitrailler des images qui ne coutent plus rien ( L'argentique, fallait casser la tire lire pour douze photos ) J'ai mitraillé 500 photos le modelage du portrait d'un ami corniste, à chaque étape de mon travail, du début jusqu'à la fin, travail long et difficile qui connaissait beaucoup de remise en question. Je ne voulais pas regarder ces photos au fur et à mesure de l'élaboration du portrait et donc attendu le moment où j'ai décidé de mouler la glaise pour les regarder chacune, 500 photos qui témoignaient chacune des étapes....

Quelle déconfiture à l'observation instantanée et comparatives de toutes ces photos, reflet de chaque étape de mon travail.

Le regret...

Car il y avait au moins dix étapes, même des premiers jours, jusqu'au trois mois de la durée de ce travail où le portait était bien meilleur, plus juste, plus vivant, plus révélateur de cette personnalité, bien mieux que le résultat final.

le recul nous permettant de mieux voir, et pourtant la tĂŞte dans le guidon, nous avions cru mordicus progresser tout au long du parcours...

je me demande comment des chercheurs peuvent écrire un livre...

En tuant la poule aux œufs d'or !

Certes on voit les œufs, mais où est la poule...

Certes il semblerait qu'il y ait un module de 0.54 m Ă  quelques endroits, c'est un oeuf possible.

Mais oĂą est la poule ?

Est ce 30 œufs soit 16.20 mètres, où est ce la poule la matrice, le carré Heseb qui a engendré l'oeuf de 16.18 mètres...




Je cite ici toute la collégiale de compétences qui ont travaillé sur La Chapelle Achoris dans l'ouvrage de Jean Lauffray:

Deleuze, S. Saunero, Traunecker, Lebrun, Le Saout, Mahieux, Mangado, Azim, Bichet, Pacault La Hautière, Bellod, Mendès, Megalli, Laroche, Joly, Arnaudès, Larronde, et mintes intervenants !

Collégiale de compétences, en Topographie, Epigraphie, Fouille et relevé, Photographie, Dessins de Publication, Iconographie, Spécialiste en céramique et objets, Assistance informatique, Architecture, Archéologie...

Pour les murs et donc incidence sur les possibles hauteurs des colonnes, Jean Lauffray écrit:


la hauteur totale minimum ne peut donc êttre inférieure à 13x0.53 mètre=5.599 mètres, avec évidemment une incertitude qui peut être estimée à 10 cm. La hauteur du Naos porrait varier entre 5.50 mètres et 5.70 mètres.




Mais il écrit plus loin, une autre possibilité...


...Ce qui donnerait à la hauteur totale du Naos une dimension comprise entre 5.21 mètres et 5.64 mètres suivant que l'on restitue une ou deux assises au dessus des Khakerou.

Nous allons laisser là notre tentative incomplète de l'harmonie des élévations et des rapports avec le plan....

Trop d'incertitude...

Nous allons revenir au plan, résumer les rapports évidents et chercher le germe de l'élévation en suivant la logique de ce labyrinthe harmonique évidemment orchestré par le plan...

LĂ  oĂą tout commence....
jeanfrancoiswarein@gmail.com
Haut

Jean François
Site Admin
Messages : 2168
Inscription : 18 Juin 2018, 18:28

Re: AchĂ´ris

  • Citer

Message par Jean François » 31 Jan 2025, 16:09

Mais....

il y aurait une possibilité pour la colonne.

On est à plus ou moins 1 centimètre des hypothèses définitives de Jean Lauffray.

Base 0.38 mètres

Fût 3.24 mètres

Chapiteau 0.76 mètres

Dé 0.32 mètres

Soit 4.7 mètres pour l'ensemble de la colonne

Base + Fût = 3.62 mètres

Fût + Chapiteau = 4 mètres

Fût + Chapiteau + Dé = 4.32 mètres

Base + Fût+ Chapiteau + dé = 4.7 mètres

C'est ce qui apparemment a été retenu pour l'élévation des colonnes restaurées !

Rapport entre 3.62 et 3.24, racine de 5 sur 2 !( MĂŞme rapport entre la hauteur de la chambre du roi de la grande pyramide et sa largeur...)

3.62 m sont aussi 5 meh nessou plus( 5 meh nessou sur Phi carré), se trace en deux coups de compas, deux secondes...

Rapport entre 3.24 et 4, c'est 2 sur Phi soit 2/Nombre d'or...

le mur du naos monterait donc jusqu'à 5.64 mètres.

Le murs de l'entrée Ouest 3.59 mètres, soit 2 Hépèt Egyptiens, exactement 12 meh djeser, coudées sacrées.

12X 0.2992= 3.5904 mètres

Et la hauteur de la couverture reconstituée de Jean Lauffray culmine à 6 mètres.

4,7 mètres sont la moitié de la diagonale du rectangle au sol du Naos de Louqsor

6 mètres sont récurrents dans l'architecture Egyptiennes et pas seulement, d'autant que le mur de la porte Nord fait son exacte moitié soit 3 mètres ( Rayon de la rotonde au sol de Sudama en Inde et donc 6 mètres pour son diamètre )

Mais nous en reparlerons.
jeanfrancoiswarein@gmail.com
Haut

Jean François
Site Admin
Messages : 2168
Inscription : 18 Juin 2018, 18:28

Re: AchĂ´ris

  • Citer

Message par Jean François » 02 FĂ©v 2025, 16:17

Temps de pause, puis de pose !

Je travaille le résumé des données de mon analyse sur le plan de la Chapelle d'Achôris.

Après cette bonne assise, nous essaierons d'harmoniser l'élévation selon les différentes propositions factuelles dans le livre de Jean Lauffray
jeanfrancoiswarein@gmail.com
Haut

Jean François
Site Admin
Messages : 2168
Inscription : 18 Juin 2018, 18:28

Re: AchĂ´ris

  • Citer

Message par Jean François » 04 FĂ©v 2025, 18:11

Avant de commencer les gestes premiers de la conception, de la création du plan au sol conceptualisé par le scribe des formes et des contours Egyptien, posons ce que nous savons déjà.

AchĂ´ris quadrature 1 a.JPG
( Cliquer sur l'image )

Il y a assez de correspondances pour faire un tsunami...Tous aux abris !

Mais ce n'est pas tout, les correspondances pondent toujours d'autres correspondances.

Explication de l'image bientĂ´t.

NB: C'est un brouillon, quelques petits décalages ici qui disparaitront en positionnant mieux le centre de mes cercles. D'ailleurs pour le tracé nous mettrons aussi chaque mesure donnée par geogebra correctement paramétré.
jeanfrancoiswarein@gmail.com
Haut

Jean François
Site Admin
Messages : 2168
Inscription : 18 Juin 2018, 18:28

Re: AchĂ´ris

  • Citer

Message par Jean François » 05 FĂ©v 2025, 00:17

Achoris quadrature a.JPG
( Cliquer sur l'image )

Que voit-on ?

A gauche, à l'Ouest, le carré orangé encastré entre les deux murs de cette entrée Ouest. encastré dans le pronaos.

C'est le carré Meh Egyptien, unité de mesure de 10 meh nessou de côté ( 10 coudées royales)

Le rectangle jaune est son prolongement qui a bien évidemment été obtenu grâce aux diagonales du carré Meh que nous avons rabattues au cordeau.

Ces diagonales touchent un autre carré, ici brun, cette fois à l'Est, qui s'encastre à l'intérieur du naos.

Ce carré brun s'inscrit dans un cercle ici rouge qui est l'étincelle d'une quadrature surface importante puisqu'elle va déterminer l'extérieur des murs du naos.

En d'autres termes, le cercle rouge a même surface que le carré ici bleuté.

Carré brun et carré bleuté sont centrés et détermine l'épaisseur des murs du naos.

Précisons que le carré bleuté détermine l'emplacement de l'ouverture Nord, côté Est.

Quand à la profondeur du naos, c'est bien les demi-diagonales du carré brun qui rabattues font naitre sur ses côtés le naos dans son entier.


AchĂ´ris et Sa et Heseb 1 a.JPG
( Cliquer sur l'image )


Et n'oublions pas les noces d'un carré surface Heseb avec un carré surface Sa...

Cela vaut bien des noces https://www.youtube.com/watch?v=rDq6KbllcKY
jeanfrancoiswarein@gmail.com
Haut

Jean François
Site Admin
Messages : 2168
Inscription : 18 Juin 2018, 18:28

Re: AchĂ´ris

  • Citer

Message par Jean François » 05 FĂ©v 2025, 21:01

Achôris carré central a.JPG
( Cliquer sur l'image )

Pourquoi ce carré n'est pas signalé alors qu'il est parfait et visible comme le nez disparu au milieu du visage du sphinx ?

Un 16 cm pile, pas un cheveu, au réglet sur le grand plan, tout simplement 8 Giri Sumériens ou 16 àslû Babylonniennes, 8 mètres pour faire simple...

Le cercle inscrit dans ce carré a 48 meh nessou de périmétrie !

Voilà la raison qui sépare ou unit les murets du pronaos des murets du naos ! ( Mais nous avons perdu la raison depuis le début du XVII ème siècle )

Un cercle inscrit dans un carré de 8 mètres a même périmètrie qu'un carré de 12 meh nessou de côté !

Mais attention ce carré de 8 mètres de côté est à 2,4 mètres de hauteur, il est dessiné par le petit mur traversé par les colonnes.

Pourquoi ce carré parfait à 2.40 m de hauteur ?

Au sol nous avons bien 8 mètres dans la largeur Nord-Sud car les murets n'ont pas de fruit, sauf dans le sens Est-Ouest, mais à 2.4 m la corniche fait bien 8 mètres pile.

Au sol dans le sens Est-Ouest, de la base du pilastre jusqu'à la base du mur de l'entrée Ouest, mesuré au réglet, 15.7 centimètres, un 7,85 mètres soit 15 meh nessou.

Et voici encore de bonnes coudées royales ?

Encore une correspondance fondamentale, incontournable, factuelle.

Et nous apprenons qu'il y a aussi des correspondances harmoniques à différents niveau de hauteur !

Nous ne faisons qu'apprendre, nous avons tout à réapprendre des anciens Egyptiens...

Encore une quadrature !

Mais qui connait et voit les quadratures aujourd'hui...

Achôris carré centre 1 a.JPG
( Cliquer sur l(image )

Yaka ramasser les noix...Dirait le Grand Yaka de mon enfance...

https://www.youtube.com/watch?v=TV1czpJhabY
jeanfrancoiswarein@gmail.com
Haut

Jean François
Site Admin
Messages : 2168
Inscription : 18 Juin 2018, 18:28

Re: AchĂ´ris

  • Citer

Message par Jean François » 08 FĂ©v 2025, 00:53

La longueur intérieure, de la porte Ouest du Pronaos jusqu'au mur du fond du Naos est sur le plan de 14.47 mètres.


AchĂ´ris racine de 2 a.JPG
( Cliquer sur l'image )

Nous avions trouvé un 14.47 mètres, diagonale du carré Meh, 5.236 mètres fois racine de 2 égales 7.404 mètres plus le côté du carré du Naos 7.071 mètres, 14.47 mètres.

Mais en me levant un matin m'est apparu l'idée saugrenue que 2 fois 7.236 mètres faisaient certainement aussi 14.47 mètres.

(N'oublions pas que 7,23 mètres est la longueur externe de la Chapelle de Thoutmosis III !)

Et cela tombe bien comme les noix, 5.236 m plus 2 m et 2 m plus 5.236 m, 7.236 m plus 7.236 m, c'est bien 14.47 mètres !.

Rien Ă  tracer, Yaka ramasser les ....

Achôris Carré Meh a.JPG
( Cliquer sur l'image )

Toujours le mĂŞme geste...
jeanfrancoiswarein@gmail.com
Haut

Jean François
Site Admin
Messages : 2168
Inscription : 18 Juin 2018, 18:28

Re: AchĂ´ris

  • Citer

Message par Jean François » 08 FĂ©v 2025, 01:19

Achôris Carré Meh doublé a.JPG
( Cliquer sur l'image )

J'ai rajouté un carré Meh bleuté, posé sur l'axe central qui traverse la Chapelle d'Achôris.

Il a la gentillesse de nous donner l'exacte mesure au sol de la porte Nord...



Achôris carré meh et rectangle a.JPG
( Cliquer sur l'image )

Le double carré pris en sandwich entre les deux carrés Meh, est la moitié de notre carré central

Achôris carré central a.JPG
( Cliquer sur l'image )
viewtopic.php?f=6&t=244&p=4581#p4579

Carré centrale...

Tout cela me rappelle Hippase, et nous verrons bientĂ´t pourquoi!
jeanfrancoiswarein@gmail.com
Haut

Jean François
Site Admin
Messages : 2168
Inscription : 18 Juin 2018, 18:28

Re: AchĂ´ris

  • Citer

Message par Jean François » 10 FĂ©v 2025, 00:24

AchĂ´ris mesure de la terre 1 a.JPG
( Cliquer sur l'image )

Le cercle rouge a même périmétrie que le carré losangé bleuté qui contient lui même le carré du Naos.

Le cercle rouge c'est l'exact millionième de la terre.


Il va jusqu'àye rouler sur les boudins d'angle des murs extérieurs du Naos

Achôris carré de 10 et module a.JPG
( Cliquer sur l'image )

J'ai ajouté le cercle intérieur du carré bleuté de 60 meh nessou de circonférence qui a curieusement l'exacte surface que le carré des murs extérieurs du Naos, côté à 8.86 mètres, ici de couleur rosé.

Belle quadrature du cercle, coeur du Naos, Noces de la terre et du ciel !
jeanfrancoiswarein@gmail.com
Haut

Jean François
Site Admin
Messages : 2168
Inscription : 18 Juin 2018, 18:28

Re: AchĂ´ris

  • Citer

Message par Jean François » 10 FĂ©v 2025, 19:30

AchĂ´ris Heseb et colonnes a.JPG
( Cliquer sur l'image )


Nous n'avons fait que prendre le dessin précédent et le resituer dans un carré surface Egyptien, l'Heseb !




Akoris Heseb et Sa B.JPG
( Cliquer sur l'image )


Nous avons bien sûr fait le premier geste intérieur habituel

Soit le rapport 1 et Phi carré !

AchĂ´ris Heseb et colonnes 1 a.JPG
( Cliquer sur l'image )


Le carré à gauche est bien notre carré, qui contient sa demi surface incarnée par les dimensions intérieures du Naos, ici carré rosé !

On y voit plus clair ici les deux carrés bleus sont égaux.

Et si nous soustrayons le carré bleu au carré Heseb, il nous reste la longueur de la chapelle au centimètre près.



AchĂ´ris Heseb et colonnes 2 a.JPG
( Cliquer sur l'image )


Plus près encore nous voyons mieux le carré rosé, intérieur au Naos, qui n'est autre que le reste d'un carré Sa après ce geste simple du rapport 1 et Phi carré !

Nous avons décomposé chaque carré bleu en 16 carrés chacun.

Un carré de 16 permet aussi de tracé un segment entre trois et quatre pour tracer un triangle 3/4/5


AchĂ´ris Heseb et colonnes 5 a.JPG
( Cliquer sur l'image )

Nous avons tracé sur le carré à gauche de l'Heseb à trois carré, une horizontale prolongée jusqu' à la moitié exacte du côté du carré Heseb.

C'est le rectangle rouge !


AchĂ´ris Heseb et colonnes 6 a.JPG
( Cliquer sur l'image )


Ce rectangle rouge est l'exact rectangle au centimètre près formé par les axes des premières colonnes Ouest dans la largeur et passe par les centres des suivantes et termine à l'Est sur le mur du fond du Naos dans sa largeur.


AchĂ´ris Heseb et colonnes 7 a.JPG
( Cliquer sur l'image )


Ce rectangle a donc de longueur la moitié exacte du côté du carré surface Heseb

Voici le lien logique et harmonieux entre la géométrie des murs et celle des colonnes !
jeanfrancoiswarein@gmail.com
Haut

Jean François
Site Admin
Messages : 2168
Inscription : 18 Juin 2018, 18:28

Re: AchĂ´ris

  • Citer

Message par Jean François » 13 FĂ©v 2025, 17:55

Achôris carré central a.JPG
( Cliquer sur l'image)

Revenons au carré central, pour mieux éclairer sa position qui n'est pas au sol mais à la hauteur des murets qui ferment les entres colonnes et pilastres.




Achôris 3D carré entre murs a.JPG
( Cliquer sur l'image)


C'est ici le carré rouge, en axonométrique, donné par la hauteur de ces murets

Le trait bleu donne la dimension au sol entre la base du pilastre jusqu'à la base du mur de l'entrée Ouest.

Il y a fruits opposés des murs et pilastres, ce qui forme un léger entonnoir et la différence entre 8 mètres en haut et 7.85 mètres à la base. ( 16 cm et 15.7 cm au réglet sur le grand plan déplié généreusement fourni à la fin de l'ouvrage.)

Quand à la largeur Nord Sud des murets, 8 mètres puisque 16 cm pile sur le plan.

C'est un carré parfait!

Et une nouvelle voie s'ouvre à nous pour trouver la correspondance du plan et de l'élévation !

Il faudra passer par des coupes en différente hauteur de chaque partie constituante, ce qui mettra en lumière la vraie relation par le geste entre un plan et une élévation tel que le scribe des formes et des contours a opéré dans
sa.conception créative, donc unique, de cette architecture.

Achôris 3D carré entre murs 1 a.JPG
( Cliquer sur l'image)

Apprendre, apprendre toujours apprendre...



Pour la suite je reviendrai aussi sur l'espace intérieur Pronaos et Naos, car il nous apprend à mieux comprendre Tiridate, le créateur de la cathédrale de Sainte mère de Dieu à Ani en Arménie, mais encore Hippase de Métaponte, car le geste est lié aussi à la pensée bien évidemment.
jeanfrancoiswarein@gmail.com
Haut

Jean François
Site Admin
Messages : 2168
Inscription : 18 Juin 2018, 18:28

Re: AchĂ´ris

  • Citer

Message par Jean François » 15 FĂ©v 2025, 01:07

AchĂ´ris meh nessou 1 a.JPG
( Cliquer sur l'image )



Mais finalement, il y a bien de la meh nessou dans cette chapelle de Barque AchĂ´ris !
jeanfrancoiswarein@gmail.com
Haut

Jean François
Site Admin
Messages : 2168
Inscription : 18 Juin 2018, 18:28

Re: AchĂ´ris

  • Citer

Message par Jean François » 16 FĂ©v 2025, 01:56

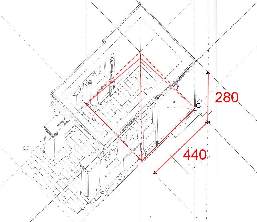
AchĂ´ris Pyramide a.JPG
( Cliquer sur l'image )


Me voilĂ  pyramidologue me direz-vous !

Mais Jean Lauffray estimait 2% de précision dans sa tentative de tracé, voir aussi une triangulation à 5/8 pour les élévations et la régulation du plan.

8 sur 5 un rapport de 1.6 et en estimant de notre part un 0% on se rapproche alors d'un 1.5714 bref d'un rapport 11 sur 7 !

D'autant qu'en partant de la largeur des murs extérieurs du naos, cotation donnée par Lauffray 8.86 mètres, le carré de base formé par cette largeur peut être la base d'une pyramide.

Cela tombe bien sa hauteur serait de 5.64 mètres, choix que j'avais fait précédemment mais aussi plusieurs fois proposé dans l'étude d'une reconstitution de l'élévation par Jean Lauffray.

Et bien 8.86 mètres sont à 5.64 mètres ce que 440 sont à 280....

Et 5 racines de Pi sont Ă  10 sur racine de Pi ce que 8.86m sont Ă  5.64 m, ce que 440 sont Ă  280, ce que 11 sont Ă  7

Et 440 meh nessou de base pour 280 de hauteur !

Et oui en meh nessou, c'est la grande pyramide, AchĂ´ris a mĂŞme proportion que la grande pyramide de Khoufou !




Il est vrai que si on tient compte des boudins d'angle, on a en effet 9.04 m sur 5.64 m et un 8/5.

Mais avec la forte présence physique des parois des murs et leur largeur Nord-Sud de 8.86 mètres, on a bien un 8.86 m sur 5.64 m et un 11/7

B, a, ba du manuel de l' Égyptien de l' époque d'Achôris et pour lui une Lapalissade depuis 2000 ans...

SCN_0057 l.jpg
( Cliquer sur l'image)


Geste et proportion du corps, en superposant les mains, d'un coude à un autre nous avons bien 44 djébâ




SCN_0058.jpg
( Cliquer sur l'image )

En montrant l'avant bras nous déterminons une meh nessou de 28 djébâ

44 djébâ et 28 même proportion que 8.86 mètres et 5.64 mètres

le corps parle...


Soyons Khoufou ! Pour un coup soyons fou...

Je crois que j'ai le coup de foudre pour cette Chapelle AchĂ´ris, une merveille !
jeanfrancoiswarein@gmail.com
Haut

Jean François
Site Admin
Messages : 2168
Inscription : 18 Juin 2018, 18:28

Re: AchĂ´ris

  • Citer

Message par Jean François » 16 FĂ©v 2025, 17:08

Achôris Pyramide intérieure  Naos a.JPG
( Cliquer sur l'image )

Sur la lancée, maintenant l'intérieur du Naos, une pyramide avec pente 14/11 !

Soit un rapport11 pour la base et 7 pour la hauteur, évidemment 440 et 280 pour ne citer que la grande pyramide de Khoufou

Ici en pointillé notre carré de 10 mètres de côté sorti du carré surface Heseb Egyptien, contient sa demi surface qui n'est autre que le carré dont le côté est la largeur intramuros du Naos.

Ce carré sera la base d'une pyramide tracé ici de même proportion que la précédente !

Et comme 11 étant à 7 ce que 7.071 m est à 4.5 m...Top !

4.5 mètres est la distance entre l'axe du pilastre et le fond du Naos.





Achôris Pyramide intérieure  Naos 1 a.JPG
( Cliquer sur l'image )


J'ai mis en bleu ici la hauteur de la pyramide fictive, soit 4.5 mètres de hauteur qui est aussi la distance entre l'axe du pilastre et le fond du Naos marqué aussi par un trait bleu.

Nous ne sommes pas prĂŞts de sortir de ce labyrinthe harmonique...!
jeanfrancoiswarein@gmail.com
Haut

Jean François
Site Admin
Messages : 2168
Inscription : 18 Juin 2018, 18:28

Re: AchĂ´ris

  • Citer

Message par Jean François » 18 FĂ©v 2025, 01:40

AchĂ´ris colonnes et pilastres a.JPG
( Cliquer sur l'image )

Observons le triangle qui joint les colonnes et pilastres Ouest-Est et les colonnes Nord-Sud et surtout son hypoténuse.

Nous avons d'après Lauffray, 8.64 mètres d'un centre de colonne Ouest jusqu'au centre du pilastre Est et de 7.5 mètres pile entre colonne Nord et Sud.

Pourquoi 7.5 mètres pile ?

Parce qu'alors l'hypoténuse sera de 11.442 mètres et c'est...

Le fond du Naos, sa largeur recouverte d'or, puisque multiplié par ce nombre !

AchĂ´ris colonnes et pilastres 1 a.JPG
( Cliquer sur l'image )


Une autre manière de l'obtenir, ce Naos ici en trait bleu.

Il n'y a qu'Ă  ramasser les noix...


AchĂ´ris colonnes et pilastres 2 a.JPG
( Cliquer sur l'image )

Vue rapprochée


N'oublions pas que les espaces entre colonnes et pilastres les 2.7 m + 3.24 m + 2.7 m = 8.64 m, nous les avions tracés sans besoin de les mesurer.

Achoris colonnes 2 a.JPG
( Cliquer sur l'image )


Il faut tout soulever, toutes les correspondances possibles, autant que dans un poème de Baudelaire ou de Rimbaud dans ses illuminations, pas un rapport ne doit être laissé de côté.

Ariane finira bien par retrouver son fil...Et nous aidera !


Mais ce sera au pays de Kemet plutôt Nout qui nous embarquera sur le chemin des étoiles !
jeanfrancoiswarein@gmail.com
Haut

Jean François
Site Admin
Messages : 2168
Inscription : 18 Juin 2018, 18:28

Re: AchĂ´ris

  • Citer

Message par Jean François » 20 FĂ©v 2025, 00:13

J'y pense...Sans oublier

La distance entre colonnes et pilastres cette fois Nord Sud est semblable, 7.5 mètres !

N'est ce pas dix ArĂ» anciennes !

L' Arû, mesure Kassite, grande coudée écrite sur la tablette Esagil !

Entre 525 et 404 avant notre ère, les Perses étaient bien présents et maitres de l'Egypte !

D'autant que le carré sorti de l'Heseb Egyptien comme précédemment avec le rapport 1 et Phi carré, fait bien lui aussi 20 Aslu Babyloniennes de côté.

Le geste accorde toutes les mesures du monde !
jeanfrancoiswarein@gmail.com
Haut

Jean François
Site Admin
Messages : 2168
Inscription : 18 Juin 2018, 18:28

Re: AchĂ´ris

  • Citer

Message par Jean François » 20 FĂ©v 2025, 23:40

AchĂ´ris AslĂ» et ArĂ» a.JPG
( Cliquer sur l'image )
jeanfrancoiswarein@gmail.com
Haut

Répondre
  • Aperçu avant impression

56 messages
  • PrĂ©cĂ©dent
  • 1
  • 2
  • 3
  • Suivant

Revenir vers « Afrique »

Atteindre
  • CatĂ©gories du forum
  • ↳   Architecture
  • ↳   Afrique
  • ↳   Architecture de l'Egypte ancienne
  • ↳   GĂ©omĂ©trie de la pyramide de KhĂ©ops
  • ↳   La petite Chapelle de SĂ©sostris 1
  • ↳   Gizeh : disposition gĂ©omĂ©trique des pyramides
  • ↳   La pyramide d'Abu Rawash : Redjedef
  • ↳   L'enceinte de Djeser bâtie sur PI ?
  • ↳   Anciennes mesures de surface
  • ↳   A la recherche du Cadastre ...
  • ↳   Les chapelles de SĂ©sostris 1er
  • ↳   La pyramide de Meidoum
  • ↳   le complexe d'Amenemaht III
  • ↳   La chapelle rouge de Karnac
  • ↳   Les chapelles d'albâtre
  • ↳   Le tombeau de Toutânkhamon
  • ↳   KhĂ©phren
  • ↳   MykĂ©rinos
  • ↳   Europe
  • ↳   La cathĂ©drale de Chartres
  • ↳   Notre Dame de Paris
  • ↳   Stonehenge
  • ↳   Chambord
  • ↳   AmĂ©riques
  • ↳   Asie
  • ↳   Australie
  • ↳   Arts visuels et kinesthĂ©siques
  • ↳   Afrique
  • ↳   AmĂ©riques
  • ↳   Asie
  • ↳   Australie
  • ↳   Europe
  • ↳   la peinture et les 3 tables
  • ↳   LĂ©onard De Vinci
  • ↳   La Cène
  • ↳   L'Annonciation
  • ↳   Sandro Botticelli
  • ↳   La naissance de VĂ©nus
  • ↳   L'Annonciation de Botticelli
  • ↳   La Calunnia di Apelle
  • ↳   Piero Della Francesca
  • ↳   Ecrits
  • ↳   Afrique
  • ↳   Textes hiĂ©roglyphiques
  • ↳   AmĂ©riques
  • ↳   Australie
  • ↳   Asie
  • ↳   Europe
  • ↳   En vrac
  • ↳   Musique
  • ↳   Afrique
  • ↳   AmĂ©riques
  • ↳   Asie
  • ↳   Australie
  • ↳   Europe
  • ↳   Sciences et techniques
  • ↳   Afrique
  • ↳   AmĂ©riques
  • ↳   Asie
  • ↳   Australie
  • ↳   Europe
  • ↳   Sciences Humaines
  • ↳   Afrique
  • ↳   AmĂ©riques
  • ↳   Asie
  • ↳   Australie
  • ↳   Europe
  • ↳   Hors sujets en vrac
  • Espaces, formes et contours Espaces, formes et contours
  • Le fuseau horaire est rĂ©glĂ© sur UTC+01:00
  • Supprimer tous les cookies du forum
  • Nous contacter

DĂ©veloppĂ© par phpBB® Forum Software © phpBB Limited

Traduction française officielle © MaĂ«l Soucaze

PRIVACY_LINK | TERMS_LINK