Chapelle Thoutmosis III...et ses âmes sœurs - Espaces, formes et contours

Espaces, formes et contours

Architecture moderne, ancienne, égyptienne, géométrie, harmonie

Accéder au contenu

  • Raccourcis
  • FAQ
  • Connexion
  • Inscription
  • Espaces, formes et contours Espaces, formes et contours CatĂ©gories du forum Architecture Afrique

Chapelle Thoutmosis III...et ses âmes sœurs

Répondre
  • Aperçu avant impression
29 messages
  • 1
  • 2
  • Suivant
Jean François
Site Admin
Messages : 2119
Inscription : 18 Juin 2018, 18:28

Chapelle Thoutmosis III...et ses âmes sœurs

  • Citer

Message par Jean François » 18 Nov 2023, 00:09

Le scribe des formes et des contours est tout à la fois architecte, peintre, sculpteur, géomètre, archéomètre, maitre d'oeuvre, singe de Thot, Ibis de Thot, le maître des espaces, des formes et des contours, maitre de l'harmonie de la courbe et de la droite, maître du geste, le serviteur qui unit ciel et terre.

Pas d'architecture sans ce premier geste !

Pas de premier geste et tout n'est que ruine de l'âme, pas d'accord, pas d'alliance, pas de récit, pas de mesure, pas de conscience. pas de coïncidence.

Alors pas d'harmonie entre le rationnel, l'irrationnel et le transcendant!

Pas de coucou-beu, pas de visible car du visible sans l'invisible.

Cherchons ce premier geste !

Alors la chapelle de Thoutmosis III à Karnak révèlera ce récit qui traverse chacune des autres chapelles Egyptiennes, premier geste qui unit la terre au ciel...

Reposoir de Barques !

La barque du reposoir unit la terre de l'Itérou et l'Itérou du ciel.
jeanfrancoiswarein@gmail.com
Haut

Jean François
Site Admin
Messages : 2119
Inscription : 18 Juin 2018, 18:28

Re: Chapelle Thoutmosis III

  • Citer

Message par Jean François » 18 Nov 2023, 01:58

Un geste qui accorde courbe et droite ...

Rappelons nous pour le petite Chapelle de Sésostris premier, un carré de 6 meh nessou de côté déterminait sa largeur et le cercle qui avait même périphérie, soit 24 meh nessou de périphérie de ce même carré....

Et le diamètre de ce cercle devenait alors la longueur interne de cette Chapelle, et le rayon la largeur interne aussi, magnifique double carré intérieur et magnifique rectangle de format 1 et racine de 2 pour le rectangle extérieur...

Et celle de Thoutmosis ?

Chapelle Thoutmosis III 1.JPG
(Cliquer sur l'image)

Soit un carré de 6 meh nessou de côté ( 6 coudées royales)


Chapelle Thoutmosis III 2.JPG
( Cliquer sur l'image)


Et son alter ego céleste, le cercle de même périmérrie !



Chapelle Thoutmosis III 3.JPG
( Cliquer sur l'image)


Le carré bleu qui inscrit le carré et le cercle de même périmétrie est la largeur de la chapelle Thoutmosis III

Cette largeur est dans un simple rapport arithmétique qui détermine un rectangle de rapport 4 et 7

Découper ce carré bleu en quatre carrés, c'est présager 16 modules surfaces.

Chapelle Thoutmosis III 4.JPG
( Cliquer sur l'image)



Un carré de 4 mesures de côtés auquel il suffit d'adjoindre deuX triangles Egyptiens de 3, 4, 5 longueurs de module!

En tout 28 modules de carrés surfaces !


Chapelle Thoutmosis III 6.JPG
( Cliquer sur l'image)

Nou reviendrons sur l'analyse du plan de la Chapelle glissé sous notre tracé !

Nous employons le terme module auquel nous adjoindrons soit le qualitatif de longueur soit celui de surface.
jeanfrancoiswarein@gmail.com
Haut

Jean François
Site Admin
Messages : 2119
Inscription : 18 Juin 2018, 18:28

Re: Chapelle Thoutmosis III

  • Citer

Message par Jean François » 19 Nov 2023, 01:59

Chapelle Thoutmosis et petite chapelle Sésostris.JPG
( cliquer sur l'image)

Nous avons superposé la petite Chapelle de Sésostris sur le carré de 6 meh nessou de côté faisant elle même de largeur 6 meh nessou.

Véritablement très troublant, puisque l'épaisseur des murs et la largeur des portes de la petite Chapelle de Sésostris I sont limitées par un module de la Chapelle de Thoutmosis.

Petite Chapelle Sésostris I.JPG
(Cliquer sur l'image)


Observons les portes de la petite Chapelle Sésostris, quand les portes sont fermées, font ensembles deux modules longueur de la chapelle Thoutmosis !

En fermant deux portes qui parcourent alors chacune 1/4 de cercle, elles dessinent alors ensemble un demi cercle de circonférence 6 meh nessou!

NB: Le dessin de Traunecker de la Petite Chapelle, n'est pas très juste et ne correspond pas tout à fait aux mesures qu'il donne dans le texte, l'intérieur n'étant pas tout à fait proportionné à l'extérieur de l'édifice. Il est vrai que c'est plus un schéma, nous le referons nous mêmes ultérieurement.

Le dessin de la Chapelle Thoutmosis est de Jean François Carlotti
jeanfrancoiswarein@gmail.com
Haut

Jean François
Site Admin
Messages : 2119
Inscription : 18 Juin 2018, 18:28

Re: Chapelle Thoutmosis III

  • Citer

Message par Jean François » 20 Nov 2023, 01:02

La Chapelle Thoutmosis III est unique avec son rapport 7/4, longueur sur largeur.

Aucune de toutes ces Chapelles n'est semblable, si certaines sont très proches il y a toujours des différences.

Pourtant elles sont toutes articulées par un même chant, un même savoir.

Les nombres 7 et 4 sont de premier ordre dans le monde des mesures Egyptiennes puisqu'ils correspondent à l'écart entre la meh nessou et la meh djeser.

Il ne faut jamais oublier qu'il y a quatre coudées en Egypte et il serait vain de vouloir comprendre quoique ce soit à un plan et à une élévation d'une architecture de l'Egypte ancienne sans les graver toutes les quatre dans notre esprit de personne du XXIème siècle.

La meh nessou est de 7 shesep(palmes) semblable Ă  la longueur de notre Chapelle

La meh chery est de 6 shesep

La meh remen est de 5 shesep

La meh djeser est de 4 shesep semblable Ă  la largeur de la Chapelle

Elles sont toutes représentés sur la coudée Maya au Louvres !

Mais il faut savoir et ne jamais oublier qu'il y a une merveilleuse relation d'amour entre ces quatre coudées qui s'aiment, qui s'aimantent, amantes les unes avec les autres, puisque la meh nessou, diamètre de 7 shesep d'un cercle, se retrouve projetée sur la périphérie du cercle en courbe parfaite au côté de la meh chéri de 6 shesep, en courbe parfaite, au côté de la meh remen de 5 shesep, en courbe parfaite, au côté de la meh djeser de 4 shesep, en courbe parfaite, formant à elles quatre le cercle tout entier.
Coudées Egytiennes.jpg
( Cliquer sur l'image)

7 et 6 et 5 et 4 font 22, n'est-il pas !

Et 7 shesep sont le diamètre de ce cercle, la Meh nessou!

Et la coudée royale ou meh nessou de 7 shesep est la longueur du rectangle semblable à la Chapelle Thoutmosis


Maya Thoutmosis 2.JPG
(Cliquer sur l'image)



En haut la coudée Maya du Louvre.

Sont marquées sur cette coudée les quatre coudées ici en djebâ( doigts) respectivement 28, 24, 20, 16 djébâ



Maya Thoutmosis 3.JPG
(Cliquer sur l'image)


Et la meh djeser sa largeur.

A gauche la coudée Maya du Louvres

Rectangle 7/4, rectangle royal et sacré, rectangle Nessou et Djeser.
jeanfrancoiswarein@gmail.com
Haut

Jean François
Site Admin
Messages : 2119
Inscription : 18 Juin 2018, 18:28

Re: Chapelle Thoutmosis III

  • Citer

Message par Jean François » 20 Nov 2023, 22:48

N'est-il pas étrange, à ce stade, tant de coincidences !

D'autant que l'observation attentive de ce rectangle met en lumière son périmètre qui, en longueur de module, fait bien 7+4+7+4=22

Tout comme une meh nessou plus une meh djeser font bien 11 shesep et 11 shesep sont bien la meh chery plus la meh remen, soit 22 en tout!

Et 7 shesep, la longueur du rectangle, deviennent alors le diamètre d'un cercle qui a même périmétrie que tout le rectangle.

D'autant qu'ici avec les longueurs de module, 11 longueurs de module, le demi périmètre extérieur du rectangle de la chapelle, sont tout simplement 21 meh nessou et le périmètre entier 42 meh nessou pour 22 modules.


Chapelle Thoutmosis 22.JPG
( Cliquer sur l'image)

Cette Chapelle est décidemment une caverne d'Ali Baba.
jeanfrancoiswarein@gmail.com
Haut

Jean François
Site Admin
Messages : 2119
Inscription : 18 Juin 2018, 18:28

Re: Chapelle Thoutmosis III

  • Citer

Message par Jean François » 20 Nov 2023, 23:13

Chapelle Thoutmosis et Philippe.JPG
( Cliquer sur l'image )



Chapelle Philippe Arrhidée


Chapelle Thoutmosis et Rouge 1.JPG
( Cliquer sur l'image )

Chapelle rouge d'Hatchepsout

Mais qui a-t-il donc en commun ?

(Réponse deux jours après) Le carré de 6 meh nessou bien évidemment, tout comme pour la petite Chapelle, mais aussi pour celle de Thoutmosis III mais cette fois dans l'invisible, premier geste du tracé !

NB: Nous reprécisons que l'anastylose de la chapelle rouge aurait du être remontée avec ses 30 meh nessou à notre sens, et non les 29.5 meh nesssou qui ont été choisies à sa reconstruction, car un doute existait bien entre 29, 29.5 et 30 meh nessou de longueur possible...
jeanfrancoiswarein@gmail.com
Haut

Jean François
Site Admin
Messages : 2119
Inscription : 18 Juin 2018, 18:28

Re: Chapelle Thoutmosis III

  • Citer

Message par Jean François » 20 Nov 2023, 23:42

Revenons aux périmètres de la Chapelle de Thoutmosis III

Murs extérieurs 22 modules, soit 22 mètres...ou 42 meh nessou

rectangle intérieur 4.37+4.37+2.4+2.4 soit 13.54 mètres.

Leur rapport ne serait-il pas Phi pour le périmètre externe sur 1 pour le périmètre intérieur!

Cette Chapelle de Thoutmosis III est un livre de science, un manuel du geste architectural, un langage.

Nous donne le geste et un sacré coup de main, un vrai manuel guide d'emploi!
jeanfrancoiswarein@gmail.com
Haut

Jean François
Site Admin
Messages : 2119
Inscription : 18 Juin 2018, 18:28

Re: Chapelle Thoutmosis III

  • Citer

Message par Jean François » 21 Nov 2023, 23:29

Chapelle Thoutmosis III.PNG
( Cliquer sur l'image )

Nous voyons ici en pointillé, à droite, l'état originel de cette Chapelle, reposoir de barque, puis son agrandissement postérieur très bien expliqué par Emmanuelle Arnaudiès.

Cette procédure d'agrandissement rappelle celle qui fut adoptée pour le reposoir
de Thoutmosis III situé à l'ouest du lac Sacré. Là, en effet, l'ouverture ouest fut élargie
de 78 cm au total, ce qui la transforma e n une porte de 2,25 rn de large, gardant ses
tableaux et leurs feuillures, mais pas ses embrasures. Cet élargissement d'un unique côté
de l'édifice, engendré vraisemblablement par une modification de la largeur de la barque
sacrée e t de son pavois ainsi que par un changement du sens processionnel de celle ci, fut décidé, soit au cours du règne de Thoutmosis III
soit postérieurement, vraisemblablement au cours de celui de Thoutmosis lV
Ce nouvel état des ouvertures du reposoir provoqua une modification de leur utilisation. En effet, après l'élargissement,
l'entrée se situe obligatoirement à l'ouest, et Je parcours suivi par la barque devient
donc ouest-est-ouest, sans traversée de l'édifice.


UN REPOSOIR DE BARQUE EN CALCITE
ÉDIFIÉ PAR THOUTMOSIS III
DANS LE TEMPLE D'AMON-RÊ À KARNAK

Le très beau travail d'Emmanuelle Arnaudiès ici dessous !

https://www.academia.edu/5832492/Un_rep ... %A0_Karnak

NB: Par contre au tableau des mesures, il y a quelques erreurs de centimètres parfois, ou alors la Chapelle d' Hatchepsout ne serait pas la "rouge" ici, car 17.32 mètres ou 33 meh nessou, déjà que la reconstruction est à 29.5 meh nessou, pour ma part j'optais pour 30 meh nessou, avec 33 je suis comblé de quoi se mettre sur son 31...J'en suis tout rouge... ;)
jeanfrancoiswarein@gmail.com
Haut

Jean François
Site Admin
Messages : 2119
Inscription : 18 Juin 2018, 18:28

Re: Chapelle Thoutmosis III

  • Citer

Message par Jean François » 22 Nov 2023, 16:30

Taillage de la porte à 2.25 mètres de largeur, 2 modules 1/4 ou autre, nous verrons au fur et à mesure..

Une remise en question d'un équilibre harmonique doit obligatoirement trouver un point d'accord, une co-incidence.

Mais pourquoi 2 modules et 1/4 ?

2.25 est rayon d'un cercle qui a même aire qu'un carré de 4 de côté!

Carré de 16 modules surface, carré largeur de la Chapelle !

Cercle de 16 modules surfaces implique un rayon de 2 et 1/4 module longueur.

Harmonie quand tu nous tiens !...

De plus, alors que la diagonale intérieure était à 5 modules longueur, la nouvelle diagonale du rectangle rallongée est à 6 modules.

Chapelle Thoutmosis III 6.JPG
( Cliquer sur l'image)

Sont harmonieux ces Egyptiens !
jeanfrancoiswarein@gmail.com
Haut

Jean François
Site Admin
Messages : 2119
Inscription : 18 Juin 2018, 18:28

Re: Chapelle Thoutmosis III

  • Citer

Message par Jean François » 23 Nov 2023, 19:31

Rappelons-nous la chapelle rouge, où le réassemblage de l'anastylose a posé interrogation pour la longueur totale, devait-elle être de 29 ou 29.5 ou 30 meh nessou ?

Je n'ai pas été convaincu par les arguments qui ont fait pencher pour 29.5 au lieu de 30 meh nessou, 30 qui elles permettent des rapports harmoniques à défaut de 29.5 meh nessou.

Le périmètre externe de cette chapelle rouge ici en meh nessou( ce qui n'est pas le cas de toutes les chapelles) avec 30 meh nessou de longueur affiche un 84 meh nessou de périmètrie, avec 29.5 c'est un 83 meh nessou...

22 ème raison pour que la chapelle rouge ait une périmétrie de 84 meh nessou et non de 83, puisque que 84 est le double du périmètre de la chapelle de Thoutmosis III et correspond ainsi à 44 modules.
https://www.espaces-formes-et-contours. ... t=96#p2094

Thoumosis Hatchepsout.JPG
( Cliquer sur l'image)



Ici le rectangle de la chapelle Thoutmosis III est visible ainsi que le cercle de même périmétrie que le rectangle.

22 modules de longueur sont donc l'équivalent de 42 meh nessou.

Ce module caractérise la chapelle de Thoutmosis III avec ses 7 modules de longueur, 4 de large, 5 pour la diagonale de son rectangle originel intérieur et 6 pour la diagonale de son rectangle intérieur modifié ultérieurement.

4, 5, 6, 7 n'est ce pas les proportions des quatre coudés Égyptiennes entre elles, la Meh djeser, la Meh remen, la Meh chery et la Meh nessou !

Ce module se retrouve fréquemment, voir à la pelle, dans l'architecture de l'ancienne Egypte, un exemple parmi des centaines, la chapelle blanche de Sésostris 1 er sa toiture carrée de 7.07 mètres de côté détermine une diagonale de 10 côtés du module carré.

Pour l'anecdote le côté du module carré est aussi la hauteur de la sculpture d'Oupouaout du Louvre et la hauteur d'Isis sur le sarcophage en pierre de Toutankhamon, entre autres....

Nous avions vu l'importance du carré de 6 meh nessou de côté, largeur de la petite chapelle de Sésostris Ier, doublé pour celles de Philippe d'Arrhidée et la chapelle rouge.

Que serait un 83 meh nessou pour le contour de la chapelle d'Hatchepsout !?!

S'il existe dans la chapelle de Thoutmosis cette relation entre le module ( le plus petit nombre de module qui détermine le rapport longueur7/largeur4, soit la proportion 7/4, choisie par le scribe des formes et des contours) le module donc et la meh nessou, coudée royale Egyptienne, c'est tout simplement parce que ce rapport est l'évidence même, puisqu'un cercle de périmétrie de 6 meh nessou a comme diamètre le côté du module unitaire carré du rectangle extérieur de la cette chapelle.

Évidemment que les anciens Egyptiens aiment les quadratures.

La terre, le carré et le cercle, le ciel ayant même surface ou même périmétrie sont alors en alliance.

La grande pyramide, sa pente même est le fruit de l'aire d'un cercle qui a comme diamètre sa hauteur, qui se retrouve égalé par la surface du triangle de coupe de la pyramide...

Et pas seulement puisque la demi périphérie de ce cercle étendue en droite devient la base même de la pyramide.

Quadratures périmétrique et surfacique pour les anciens Egyptiens sont un sel savoureux qu'utilise tout scribe des formes et des contours.

La forme ?

Surface et volume !

Le contour ?

Le perimètre !
jeanfrancoiswarein@gmail.com
Haut

Jean François
Site Admin
Messages : 2119
Inscription : 18 Juin 2018, 18:28

Re: Chapelle Thoutmosis III

  • Citer

Message par Jean François » 24 Nov 2023, 16:13

Maya Thoutmosis 3.JPG
(Cliquer sur l'image)


meh djeser

Maya Thoutmosis 2.JPG
(Cliquer sur l'image)




meh nessou



Maya Thoutmosis 1.JPG
(Cliquer sur l'image)


meh chery



Maya Thoutmosis.JPG
(Cliquer sur l'image)




meh remen
jeanfrancoiswarein@gmail.com
Haut

Jean François
Site Admin
Messages : 2119
Inscription : 18 Juin 2018, 18:28

Re: Chapelle Thoutmosis III

  • Citer

Message par Jean François » 24 Nov 2023, 16:18

Il est étonnant de voir tant de similitudes entre les chapelles de l'Egypte anciennes et les grottes de Barabar et de Nagarjuni en Indes.

Un temps de réflexion pour la mise en lumière très bientôt !
jeanfrancoiswarein@gmail.com
Haut

Jean François
Site Admin
Messages : 2119
Inscription : 18 Juin 2018, 18:28

Re: Chapelle Thoutmosis III

  • Citer

Message par Jean François » 24 Nov 2023, 16:32

meh nessou cachées.JPG
(Cliquer sur l'image)

Mais où sont cachées encore les meh nessou :D

Faut chercher...

Le périmètre du triangle rectangle ici en jaune a la mesure du côté du carré Meh surface, soit l'unité de surface de 100 coudées carrés, dont le côté fait alors 10 coudées royales, 10 meh nessou et donc 5.236 mètres

Ou 5.236 fois le côté du module et aussi 2Phi au carré fois ce même côté :D

NB: Ne vous inquiétez pas il y aura bien une distribution d'entonnoir gratuit à la sortie...
jeanfrancoiswarein@gmail.com
Haut

Jean François
Site Admin
Messages : 2119
Inscription : 18 Juin 2018, 18:28

Re: Chapelle Thoutmosis III

  • Citer

Message par Jean François » 25 Nov 2023, 00:46

Chapelle Thoutmosis III Quadrature nouvelle ouverture.JPG
( Cliquer sur l'image)



Sur la nouvelle ouverture plus tardive, asymétrie de la Chapelle de Thoutmosis...

Le scribe des formes et des contours a modifié et agrandi l'ancienne ouverture en harmonisant avec une quadrature surfacique.

Tellement évident de constater que les quatre carrés modules surfaces font éclore un cercle d'aire équivalente !

Le diamètre de ce cercle est l'exacte ouverture de 2.25 mètres...
jeanfrancoiswarein@gmail.com
Haut

Jean François
Site Admin
Messages : 2119
Inscription : 18 Juin 2018, 18:28

Re: Chapelle Thoutmosis III

  • Citer

Message par Jean François » 25 Nov 2023, 15:11

L'agrandissement de l'ouverture porte la diagonale du rectangle intérieur à 6 longueurs de modules...

Mais aussi la longueur du rectangle passe de 4.38 mètres à 5.5 longueurs de module, la moitié de 11 qui est le demi périmètre ou contour de la Chapelle de Thoutmosis III.

A noter qu'avec la première mouture le rectangle intérieur était de 4.38/2.385 ( valeur théorique entre plus ou moins 1 cm par rapport au relevé, 4.37/2.4, que j'espère un jour pouvoir refaire sur place), la longueur de 4.38 retranchée à 7 modules laisse un joli 2.62 mètres, soit 5 meh nessou, soit 1.309 m ou 2.5 meh nessou entre la distance du rectangle intérieur et extérieur sur la longueur.

Et 5 meh nessou moins une longueur de module nous amène à 1.618, et la moitié, 0.809 pou l'épaisseur des murs sur la largeur.

1.618 mètres c'est la largeur aussi de l'ouverture des portes dans la chapelle d'Amenhotep Ier, en Albâtre.

Mais 1.618 module, c'est aussi la longueur du module redessiné par le tracé du nombre d'or, soit passé par la racine de 5 plus 1 et divisé par 2 !...

Toujours pour la chapelle d'Amenhotep, la largeur est la mesure exacte de la canne d'Ezéchiel dans la Bible, l'ange avec sa canne de six coudées( largeur petite chapelle de Sésostris 1er) d'une coudée plus une palme( celle d'Amenhotep) soit 3.5904 mètres ou 2 Hépèt Egyptiens, ou 12 meh djeser, coudées sacrés, ou 8 meh chery, coudées communes.

Et nous n'avons toujours pas d'écrits sur l'équivalent d'un stade Egyptien pourtant rapportés par les grecs, le petit stade Egyptien et le grand Stade Egyptien...D'après Jomard et De Lisle, le petit serait l'équivalant 100 mètres et le grand 185 mètres, soit 100 modules et 185 modules utilisés

185,12 modules rejoint la meh nessou par la racine de 2, puisque cela nous porte Ă  261.8 modules, soit 500 meh nessou !

Avec le petit stade de 100 modules, cohabite alors une relation avec le grand stade, mĂŞme relation harmonique que dans toute architecture Egyptienne, et on ne peut que penser Ă  ce stade ( sans jeu de mot) qu'ils connaissaient parfaitement les mesures et dimension de la terre et ce depuis l'ancien Empire !

Grand écart entre le Khet et l'Itérou puisqu'on passe de 100 meh nessou à 20000 meh nessou sans intermédiaire....Un gouffre.

Vraiment n'y avait-il aucune mesure intermédiaire ?

Pourtant pour les surfaces il y avait bien, selon les écrits sur la chapelles Blanche, que le pays de Khémet faisait 106 Itérou ( longueur) et que les nomes étaient donnés en surface en Itérou( surface) en Cha-ta et en Setjat...

Il y a bien un intermédiaire surface Itérou et Setjat( carré de 100 meh nessou de côté)puisqu'il y a le Cha-ta !

Alors pour les mesures de longueur, il n'y en avait pas ?

On voit bien par là que toutes les certitudes que nous avons et qui nourrissent l'Egyptologie sont une suite d'hypothèses...

Leur confrontation au réel, plan et élévation d'une architecture, montre bien qu'il n'y a jamais certitude d'autant face à toutes ces hypothèses d'Egyptologue jusqu'à ce jour, confinées dans une pensée unique qui finit par refermer tous les regards, ne laissant que celui qui fait des anciens Egyptiens des joueurs de dès, plutôt que des personnes conscientes et agissantes en toutes connaissances de cause!


Les Grecs avaient finalement bien plus de respect et de justesse envers les anciens Egyptiens qui d'ailleurs les avaient nourris de leurs connaissances ...
jeanfrancoiswarein@gmail.com
Haut

Jean François
Site Admin
Messages : 2119
Inscription : 18 Juin 2018, 18:28

Re: Chapelle Thoutmosis III

  • Citer

Message par Jean François » 26 Nov 2023, 22:22

Chapelle modules Blanches et Thoutmosis.JPG
(Cliquer sur l'image)

Ici en contour bleu, c'est la chapelle Thoutmosis III, avec laquelle nous allons recréer la Chapelle Blanche de Sésostris premier, et pourrait-on dire et vis et versa...

28 modules surface de la première, il suffit d'en ajouter 8 autres en un carré de 36 modules surface.



Chapelle Blanche modules et rapport 1.JPG
(Cliquer sur l'image)

Voici notre carré de 36 modules surface, observons bien le carré de quatre au centre, il nous suffira de le tourner un quart de tour pour nous permettre d'entendre la musique des chapelles, à défaut de celles des sphères...

Chapelle Blanche modules et rapport.JPG
(Cliquer sur l'image)



En effet, côté de 4 modules surfaces.plus la diagonale du carré de quatre modules surface plus son côté, nous donnent un 6.82 mètres pour la base du socle !



Chapelle Blanche impression rectifiée.JPG
(Cliquer sur l'image)



Chapelle Blanche élévation.JPG
(Cliquer sur l'image)


Voici une coupe élévation la notation du bas du socle est de 6.81 mètres, nous ne sommes qu' à un centimètre près !

Chapelle Blanche élévation élévation 1.JPG
(Cliquer sur l'image)

ici entière !

file:///C:/Users/33695/Documents/K2168-LACAU.pdf

Ici la source !
jeanfrancoiswarein@gmail.com
Haut

Jean François
Site Admin
Messages : 2119
Inscription : 18 Juin 2018, 18:28

Re: Chapelle Thoutmosis III

  • Citer

Message par Jean François » 02 DĂ©c 2023, 00:42

Grippé, cinq jours de fièvre à trembler dans ma barque céleste, un lit pour l'au delà... Pas encore cette fois !

Chambre proportionnée à ma barque, mon lit, telle une Chapelle, là où la maladie confond le jour et la nuit tout comme le ciel et son reflet sur terre, le cercle et son carré, la fièvre gagne toujours l'esprit.

En me tournant dans mon lit toutes les chapelles depuis si longtemps sujet de mes réflexions dansaient les unes avec les autres au point qu'apparaissait au travers et pour chacune le carré Meh surface Egyptien semblant être la matrice de leur propre conception.



Carré Meh et module pour Thoutmosis IV Rectangle Chapelle.JPG
(Cliquer sur l'image)

Observons le carré Meh, il est ici le grand carré dans lequel, partagé en deux doubles carrés, la diagonale et ses deux cercles vont faire naître nos quatre fois quatre fameux modules.(Attention le carré orange c'est quatre carrés valant chacun 4 modules surfaces.)

Merci la fièvre de m'avoir soudé quelques neurones la tête brulante sur l'oreiller, c'est bien cette fois le rectangle de la Chapelle de Thoutmosis, mais attention toujours Thoutmosis III, mais pas celle dite du Lac précédemment!

En effet le rectangle une largeur en traits gras noirs, a bien ici 4 mètres sur 7.236 mètres, les mesures réelles données sont bien 4.02 mètres sur 7.23 mètres données.

Carré Meh Thoutmosis III et IV A.JPG
(Cliquer sur l'image)



Ce sont bien des carrés modules surfaces !

Puisque le carré Meh, ici en jaune, a un côté de 10 meh nessou, le rapport, entre 1 sur Phi carré et 1, engendre le carré orange !

Nous pouvons ensemble reconnaitre deux rectangles très proches superposés, ayant même largeur, soient la chapelle de Thoutmosis III dite du Lac et l'autre de Thoutmosis III !

Un rectangle de 4 sur 7 et un autre de 4 /7.236 représentant nos deux Chapelles !

Carré Meh aimant de tous les premiers gestes de la création de toutes les chapelles Egyptiennes.

Et pas seulement...


NB: Le Meh est une unité de surface Egyptienne qui équivaux à 100 coudées royales au carré, soit un rectangle très allongé de 1 meh nessou sur 100, ou simplement un carré de 10 meh nessou sur 10.

PS: Corrigé mon erreur ce n'est pas une Chapelle de Thoutmosis IV, dans la fièvre glissé d'une ligne sur un tableau, mais bien la deuxième de Thoutmosis III !
jeanfrancoiswarein@gmail.com
Haut

Jean François
Site Admin
Messages : 2119
Inscription : 18 Juin 2018, 18:28

Re: Chapelle Thoutmosis III

  • Citer

Message par Jean François » 02 DĂ©c 2023, 16:16

Petites observations qui me bouillonnent Ă  l'esprit.

Le scribe des formes et des contours est un virtuose des rectangles.

Aujourd'hui nous appelons ces jolies figures, qui n'ont plus grand intérêt pour nous, des formats, bien classifiés dans ces congélateurs de l' émotion plastique qu'on appelle les normes.

Et pourtant ces rectangles sont partout dans notre univers construit, nos cités, nos machines, terrain de foot, plans architecturaux, hangars, billet de banque, enveloppe, courier, livre, tableau, écran, scène de théâtre, boite, portable, fenêtre, porte, parking, champs et autres et etc...

Pas de quoi y ressentir quelconque émotion ou émerveillement, le banal, la froideur arithmétique et ne parlons pas de géométrie qui donne des boutons, l'énorme norme avale tout dans l'indifférence générale...

Tout le monde s'en fout de ces rectangles, c'est de l'utilitaire, de l'intérêt inutile, de la banalité, il y en a tellement, pourquoi s"en soucier, quelle différence entre eux finalement jusqu'à l'indifférence...

Et pourtant, notre monde ne serait rien sans eux.

Tout comme le monde des rectangles ne serait rien sans le carré et le cercle, car tout rectangle peut contenir au moins un carré et un cercle inscrit.

Le rectangle pour le scribe des formes et des contours n'est pas qu'un rectangle avec largeur et longueur aux proportions arithmétiques, mais aussi géométriques.

Toute la communauté scientifique finalement semble refuser de considérer que l'ancien Egyptien en était capable !

Même Lauer s'en tient au triangle 3/4/5, deux triangle formant un rectangle, seul possible tracé régulateur, même pas un rectangle créé avec le côté d'un carré et sa diagonale.

On penserait presque à un canular, une mauvaise blague, tout comme celle d'avoir asséné pendant des décennies que les pyramides avaient été construite par des esclaves, jusqu'à ce qu'on retrouve le village des bâtisseurs, ou encore que les Egyptiens ne connaissaient pas la roue.

Utilisons pourtant les textes sur lesquelles s'appuient cette communauté éclairée, évidemment sur les papyrus mathématiques.

Et bien prenons à la lettre, pardon au hiéroglyphe près, du moins ceux qui nous restent en peau de chagrin, celui qui montre la résolution d'un carré et d'un cercle de même surface, un carré de 8 de côtés et un cercle de 9 de diamètre.

Bien évidemment, selon notre communauté scientifique toujours, l'Egyptien ne sait pas par contre calculer la circonférence d'un cercle avec un diamètre donné, parce qu'il n'y en a pas dans les papyrus retrouvés.

J'émets donc à la lumière de ce raisonnement hautement scientifique de notre communauté internationale que les Egyptiens n'ont pas pu faire des enfants car il n'ont pas écrit dans leur papyrus la méthode qu'ils ont suivie !

Aussi puisque le rayon du cercle fait 4 et un demi et le côté du carré 8, je ne pense pas sauter dans le vide sans élastique en émettant une hypothèse, aussi plausible que toutes celles de la communauté scientifique qui a tendance à prendre les siennes pour des certitudes, que le scribe des formes et des contours était capable de construire un rectangle avec comme largeur le rayon du cercle qui a même aire que le carré dont le côté est sa longueur.

C'est pourtant la proportion du troisième sanctuaire du tombeau de Toutankhamon...

C'est une preuve, encore faut-il savoir lire les formes et les contours, ce qui ne semble malheureusement pas être le cas de notre communauté scientifique dominante qui tait tout débat scientifique et toute controverse.

Ce troisième sanctuaire a une assise au sol de 2.861 mètres et 1.61 mètres, ce qui est bien le rapport 8/4.5 soit 1.777


Ce qui est primordiale, si important, si fondamental est que le scribe quand il choisit un tel rectangle dont largeur et longueur sont une alliance entre le rayon d'un cercle et le côte d'un carré qui ont même surface, c'est que cela a sens pour lui, et pas seulement, pour toute sa communauté.

Il ne suffit pas d'ĂŞtre cavalier pour pouvoir arriver Ă  destination, il faut aussi un cheval !

Il ne suffit pas d'être un bâtisseur pour réaliser toutes les merveilles Egyptiennes, il faut aussi de la géométrie et savoir l'utiliser.

Si la géométrie des Egyptiens s'était arrêté au 3/4/5, il n'y aurait eu que la pyramide de Khaef Ré, point barre sans aller à ligne...

Pas de Khoufou ni de Menkhaou RĂ©...

Il y en a neuf en Egypte comme ces deux dernières, parce que leur cercle de la hauteur comme diamètre a même surface que le triangle de leur coupe, et que la base de ce triangle est la périmétrie de la moitié de ce cercle.

Et il en a neuf aussi comme celle de Khaef RĂ© soit un 3/4/5 !

PS: J'ai réduit ma logorrhée, peut être pas assez encore :D
jeanfrancoiswarein@gmail.com
Haut

Jean François
Site Admin
Messages : 2119
Inscription : 18 Juin 2018, 18:28

Re: Chapelle Thoutmosis III

  • Citer

Message par Jean François » 02 DĂ©c 2023, 23:46

Carré Meh Chapelle Blanche.JPG
(Cliquer sur l'image)

Toujours notre carré Meh, car aimé, carrément, car aimant :D

Les carrés jaunes sont des carrés de quatre modules surfaces comme dans les précédentes Chapelles


Carré Meh Chapelle Blanche 1.JPG
(Cliquer sur l'image)

On prépare le tour d'écrou qui va exploser vers l'extérieur les carrés jaunes.


Carré Meh Chapelle Blanche 2.JPG
(Cliquer sur l'image)

Tour d'écrou et les quatre carrés jaunes prennent leurs place sous tendant le carré au sol, le socle de la Chapelle Blanche




Carré Meh Chapelle Blanche 3.JPG
(Cliquer sur l'image)


Voici la chapelle Blanche de Sésostris 1er

Carré Meh Chapelle Blanche 5.JPG
(Cliquer sur l'image)

Ici en bleu le carré de la Chapelle, murs extérieurs, c'est un carré parfait de 50 meh nessou de contour !

Carré Meh Chapelle Blanche 4.JPG
(Cliquer sur l'image)

Ici rapproché pour mieux voir la précision de la conception du scribe des formes et des contours !

Chapelle Blanche élévation.JPG
(Cliquer sur l'image)


Ici pour voir le socle marqué 6.81 mètres nous sommes par le tracé à 6.82 mètres 1 centimètre près.

Chapelle Blanche erreur d'impression du plan.JPG
(Cliquer sur l'image)

Je mets pour information le plan de Chevrier et Lacau, édité par:
SERVICE DES ANTIQUITÉS DE L'ÉGYPTE
PIERRE LACAU ET HENRI CHEVRIER
UNE CHAPELLE DE SÉSOSTRIS I er

Le problème est que le plan a été écrasé sur la hauteur et ne correspond plus aux mesures, faut vraiment tout vérifier...

6.68 sur le dessin au lieu de 6.54 de cotation !?!?



Chapelle Blanche impression rectifiée.JPG
(Cliquer sur l'image)


J'ai fait une correction par informatique pour remettre en adéquation les cotations et les proportions de ce dessin comme à l'original... de 6.68 nous l'avons ramené à 6.54 mètres

Qui a pu faire une négligence pareil sur le travail sublime de Chevrier et Lacau...
jeanfrancoiswarein@gmail.com
Haut

Jean François
Site Admin
Messages : 2119
Inscription : 18 Juin 2018, 18:28

Re: Chapelle Thoutmosis III...et ses âmes sœurs

  • Citer

Message par Jean François » 03 DĂ©c 2023, 15:33

Me vient Ă  l'esprit.

La Chapelle Thoutmosis III du lac, si nous prenons les 5 côtés de Module et le 6 rectificatif des diagonales intérieures, ces deux mesures réelles sont les mêmes mesures du premier sanctuaire du tombeau de Toutankhamon puisque son assise au sol est un rectangle de 5 modules et la diagonale de ce rectangle de 6 modules.

Petit à petit le chaos primordial, celui de notre ignorance, laisse émerger un Benben, un joyau, une cohérence, une coïncidence, un langage, grâce à l'étude comparée de toutes ces merveilles.

Dans quel chaos avons nous glissé pour prendre pour pur hasard le geste du scribe des formes et des contours !

Architecte, sculpteur, peintre d'aujourd'hui, s'il en reste encore, qu'avons nous fait de notre héritage !

Nous ne savons plus lire !

Archéologue et scientifique ne peuvent rien pour nous, c'est à nous d'apprendre à relire, c'est notre compétence, notre héritage !

En ce sens nous pouvons redéfinir la fonction réelle du scribe des formes et des contours et agrandir la palette de ses connaissances, c'est notre compétence et notre rôle légitime à jouer pour lui rendre honneur.

Archéologue et scientifique ne savent pas jouer, il faut pourtant savoir jouer pour retrouver la règle du jeu des scribes des formes et des contours, connaitre l'angoisse de la page blanche.

Sculpteur, peintre, graveur, mosaĂŻste, maitre verrier, architecte, etc...jouons et retrouvons ce qui nous est dĂ», personne d'autre ne pourra le faire Ă  notre place !
jeanfrancoiswarein@gmail.com
Haut

Jean François
Site Admin
Messages : 2119
Inscription : 18 Juin 2018, 18:28

Re: Chapelle Thoutmosis III...et ses âmes sœurs

  • Citer

Message par Jean François » 03 DĂ©c 2023, 16:53

Quand on parle du Loup, plutĂ´t d'Oupouaout...

5 de longueur de rectangle et 6 pour sa diagonale....proportion du premier sanctuaire du tombeau de Toutankhamon !

Bien venus dans la Chapelle de Thoutmosis IV aussi d'Amenhotep III.

Parfait rectangle de proportion avec une longueur 5 et une diagonale 6, facilement traçable malgré sa largeur de racine de 11( Encore un 11!)

Chapelle Amznhotep III Thoutmosis IV.JPG
( Cliquer sur l'image)

Avec toujours le carré Meh!

Yaka ramasser les noix !

Avec deux coups de compas, on a le rectangle bleu ici positionné format portrait, tout en partant de la Chapelle de Thoutmosis III( Pas celle du lac) encore visible format paysage.

Rectangle de rapport longueur/ diagonale comme 5/6

Valeur mesurées données, 6.40 m longueur et 4.22 m en largeur, valeurs tracées 6.39 m et 4.23 m.

Le 4.23 pour le scribe est bien son module passé par Phi au cube.

Cela tombe bien nous sommes toujours dans le plus ou moins 1 cm....
jeanfrancoiswarein@gmail.com
Haut

Jean François
Site Admin
Messages : 2119
Inscription : 18 Juin 2018, 18:28

Re: Chapelle Thoutmosis III...et ses âmes sœurs

  • Citer

Message par Jean François » 04 DĂ©c 2023, 15:28

Mais pourquoi donc Perrault était-il déçu par notre Vitruve...

C'est là que la coupure s'est faite définitivement, Du Cerceau savait encore, Perrault était contraint de chercher car on ne savait plus.

Peste de transmission, la peste était transmise, et les sachants pestiférés ne pouvaient plus transmettre par oralité !

La peste depuis 1348 par vague successive aura mis Ă  genou la seule transmission orale des maitres d'oeuvre...Et cela depuis la Chine et sur toute la route de la soie en passant par toute l'Europe.

Vitruve ne dit rien sur les modes préparatoires de la création d'un plan architectural harmonieux, à peine sur la notion de module.

Et comment peut-on démontrer cela ?

Il suffit de voir nos architectes d'aujourd'hui, aussi du XX, XIX, XVII et XVII éme siècle qui marinent tous dans des quadrillages arithmétiques...En dehors des clous, ils tombent tous de leur croix...

Observons toutes les tentatives de tracé régulateur, d'autant fait par des architectes, tout de l'arithmétique sans géométrique, par des matheux tout par le nombre d'or obsessionnel sans arithmétique, et jamais, jamais les uns comme les autres par accord de surface ou de périmétrie de cercle et carré.

Une architecture c'est de l'arithmétique, du géométrique, les racines de 2, 3, 5, 10 etc...quadrature surface et périmétrique.

Parole de sculpteur transmise depuis des générations par bribe, reste, énigme, sinon c'est dans les oeuvres, yaka chercher....

Et ramasser les noix.

Un module pour le scribe des formes peut être aussi en accord géométrique avec sa mesure étalon.

Exemple 10 meh nessou engendre dans le rapport¨Phi carré et 1 des modules surface.

Partant de la mesure de surface étalon le Meh, mis en carré, dans ce rapport nous obtenons 4 modules surfaces en carré, qu'on aura rencontré ici dans toutes les chapelles.

Et c'est donc un module géométrique.

Qui ose encore donner des leçons de géomètrie aux anciens Egyptiens ?

Car bâtir une pyramide serait alors envoyer une fusée sur la lune sans calcul de trajectoire !

Encore une fois les anciens égyptiens n'ont rien écrit sur la théorie comment faire des bébés, cela ne les a pas empêcher de connaître le théorème et sa réciprocité, et de réciter par cœur et en chœur tout le Kamasutra Egyptien à l'endroit et à l'envers.

BientĂ´t la chapelle d'Hatchepsout, mais cette fois pas la rouge...

Encore une merveille issue du carré Meh, yaka ramasser les noix...
jeanfrancoiswarein@gmail.com
Haut

Jean François
Site Admin
Messages : 2119
Inscription : 18 Juin 2018, 18:28

Re: Chapelle Thoutmosis III...et ses âmes sœurs

  • Citer

Message par Jean François » 06 DĂ©c 2023, 19:57

Chapelle d'Hatchepsout Ă  Karnak (Nouvelle) 1.JPG
(Cliquer sur l'image )

Les mesures officielles pour cette chapelle d'Hatchepsout ....

Hatchepsout.JPG
(Cliquer sur l'image )

Nous sommes parti d'un module comme pour toutes les autres chapelles, nous verrons plus tard avec le carré Meh.


Hatchepsout 1.JPG
(Cliquer sur l'image )

La porte d'entrée semble très importante dans le commencement de cette harmonie...

Le vide, ce n'est pas rien

Puisqu'elle mesure 1.620 mètres de large soit le côté du module géométrique passé par un très beau geste celui du nombre d'or....


Rappelons nous pour la petite Chapelle de Sésostris I er des portes d'un module, un mètre, fermant un sanctuaire intérieur de 8 mdules surface, double carré 4 sur 2

Ici la porte est tirée du module avec le geste de la proportion dorée...

Hatchepsout 2.JPG
(Cliquer sur l'image )

Nous avons tracé le cercle intérieur, car une intuition nous a empêcher de dormir, pêché toute la nuit...

Hatchepsout 3.JPG
(Cliquer sur l'image )

Nous avons tracé le cercle de même périmétrie que le carré module et tracé le carré sur la droite en bleu de même surface que le cercle inscrit dans le module.

Pourquoi pas, surtout que cela cela se dessine tout seul, les contours de cette chapelle commençant à apparaître.




Hatchepsout 4.JPG
(Cliquer sur l'image )

Traçons nos fameux carré modules, quatre en tout et le carré qu'il détermine a une surface qui fait naitre un cercle bleu de même surface.

Pourquoi pas, d'autant que ce cercle s'inscrit parfaitement dans l'espace interne de la chapelle !



Hatchepsout 6.JPG
(Cliquer sur l'image )

Nous avons tracé grâce à la diagonale intérieure du sanctuaire qui fait 4.188 mètres( Merci Pythagore) soit 8 meh nessou sonnante, enfin de l'étalon...

Nous avons commencé à tracer, facile les traits sont déjà là," Yaka ramasser les noix....

Hatchepsout 7.JPG
(Cliquer sur l'image )

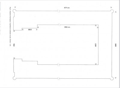
Jusque là nous n'avions pas la longueur de l'édifice, pas de panique, gardons le rythme, l'or à notre secours....

Comme on a l'espace interne par la largeur et la diagonale, bien évidemment la longueur intérieure est de 3.52 mètres émerge...

Et 3.52 mètres passés au nombre d'or, c'est 5.71 mètres !!!

D'ailleurs 5.71 mètres diamètre d'un cercle a une périphérie de 17.94 mètres et c'est Phi à la puissance 6 de notre module de commencement, et c'est la hauteur en mètres ou en modules Egyptiens du Parthénon.

5.71 mètres est aussi la largeur de Gopika en Indes, au niveau des hémicycles, d'ailleurs les grottes de Barabar et de Nagarjuni sont en meh nessou et modules Egyptiens, aucune autre mesure ne fonctionne !

C'est aussi Ă  Boscodon


Mais encore, 5.71 divisés par 5 et multiplié par 6, c'est bien Phi à la puissance 4 !

5.711x6/5= 6.854, soit Phi quatre !

Mais encore 5.712 auquel on retranche 1 module longueur, c'est 9 meh nessou, soit 4,7124 mètres !

9 meh nessou plus un module pour la chapelle d'Hatchepsout....

Curieux car nous verrons bientôt que pour la longueur de la chapelle de Thoutmosis 1 c'est cette fois ci 11 meh nessou plus 1 module longueur. D'autant que la largeur, c'est 5 meh nessou plus un module longueur, qui plus est toujours avec une ouverture de 1.620 mètre?!?!

Perrault était déçu par Vitruve !

Perrault n'a pas compris qu'il est tout simplement lui même Icare, celui qui abandonne son père pour voir la lumière aveuglante.

Icare tombe dans la mer, et doit continuer à la nage pendant que Dédale atteint le rivage près de sa maison sain et sauf.

Mais attend son fils avec angoisse comme Egée attend Thésée, est-il mort, parviendra-t-il à nager jusqu'à notre maison...

10 livres de Vitruve sur son métier de maître d'oeuvre dédicacé au grand César, croyez vous qu'il donne au maitre du monde temporel des secrets de composition transmis oralement avec le geste depuis des millénaires.

Pour sa survie le maître d'oeuvre garde ses secrets qu'il transmet oralement et par le geste au futur maître d'oeuvre, personne d'autre ne doit savoir.

Dédale n'a pas su tenir sa langue en vantant son génie à créer des labyrinthes.

Faillit mourir avec son fils dans son propre labyrinthe dont il a tant vanter les vertus, ce qui tombe direct dans l'oreille du commandeur qui le jette avec son fils dans sa création, pour garder le secret de la sortie....

Hiram se tait face à ceux qui veulent son secret, des imbéciles qui tueraient la poule aux oeufs d'or de la même manière.

Hiram meurt avec son secret.

Mais le secret est toujours dans l'oeuvre d'Hiram

Le geste est une parole silencieuse, une chorégraphie, un langage du corps qui évolue dans l'espace, tout comme le geste du maître d'oeuvre fait naître les formes et les contours...

De la matrice du monde...

Mater

Ma terre





Hatchepsout 8.JPG
(Cliquer sur l'image )


Ah ! Des meh nessou enfin visibles, 8 en effet !

Mais regardons la largeur externe de cette merveilleuse Chapelle, avec la baguette magique du nombre d'or, nous pouvons voir enfin la vraie nature de ce 3.88 mètres donnés par nos officiels.

3.88 x1.618 = 12 meh nessou



Hatchepsout 9.JPG
(Cliquer sur l'image )

Et puis avec le module, si simple de retrouver 5 meh nessou, puis les 6 en façade

Chapelle d'Hatchepsout Ă  Karnak (Nouvelle) 1.JPG
(Cliquer sur l'image )

Attention le dessin ci dessus ne respecte pas ses propres cotations, mais c'est tellement fréquent dans les travaux officiels, personne ne semble vérifier quoique ce soit.

J'ai respecté par contre toutes les cotations.

Voilà nous avons sorti en théorie avec les gestes du scribe des formes et des contours, les dimensions officielles à plus où moins 5 millimètres.


Mais en variant très légèrement la largeur avec 5 millimètres de moins cela déclenche une autres salves d'Harmonie !

BientĂ´t le Salve Regina !

On n'échappe pas à la musique des Chapelles :D

Et tout cela ressemble étonnamment aux Chapelles, ou chambres ou grottes de Barabar et de Nagarjuni ( une chappe, n'est ce pas une chapelle!)

J'ai cherché longtemps le lien entre Karan Chopard et Sudama, mais aussi Gopika, grâce à toi scribe des formes et des contours, je peux maintenant le dessiner.
jeanfrancoiswarein@gmail.com
Haut

Jean François
Site Admin
Messages : 2119
Inscription : 18 Juin 2018, 18:28

Re: Chapelle Thoutmosis III...et ses âmes sœurs

  • Citer

Message par Jean François » 06 DĂ©c 2023, 20:49

On peut encore resserrer la convergence...


Nous avions vu que par la racine de 5 plus un le tout sur 2, proportion dorée, nous avions en relation la longueur extérieure, soit Phi et la longueur intérieure soit un.

Mais aussi la largeur extérieure, soit un en relation avec 12 meh nessou, soit Phi.

Mais il y a plus curieux encore.

Au niveau de la porte, le vide de 1.620 mètres, ajouté à la largeur intérieure de 2.26 mètres, nous sert un 3.88 mètres.

Et la largeur de 3.88 moins le vide de la porte de 1.620 m nous donne un plein de 2.26 m soit 1.13 m de chaque côté !

Comme par ailleurs, la largeur de 2.26 m intérieure détermine des murs dont la somme est de 1.620 m soit chacun 0.809 m

O que de jolies harmonies !
jeanfrancoiswarein@gmail.com
Haut

Jean François
Site Admin
Messages : 2119
Inscription : 18 Juin 2018, 18:28

Re: Chapelle Thoutmosis III...et ses âmes sœurs

  • Citer

Message par Jean François » 09 DĂ©c 2023, 18:25

Chapelle Thoutmosis III Quadrature nouvelle ouverture.JPG
(Cliquer sur l'image)

Revisualisons le module surface et le côté sa longueur !

Mais nous aurions pu prendre n'importe quelle chapelle Egyptienne !

Thoumosis Hatchepsout.JPG
( Cliquer sur l'image )

Rappelons nous de l'importance des 11, 21, 22, 42, 44 pour de possibles rapports harmoniques et quadratures (https://www.espaces-formes-et-contours. ... =224#p4341)

Sudama et les chapelles Egyptiennes 1.JPG
( Cliquer sur l'image )

Ici nous sommes en Indes, c'est la grotte de Sudama à Barabar, le module est le même au millimètre près...

Les commentaires seraient superflus, on est ici à plus ou moins 3 millimètres, c'est quand même terriblement troublant tant de similitudes.

Si c'est troublant pour vous, pour moi à ce jour voilà bien une certitude, et je ne ferai jamais plus un seul pas en arrière maintenant que le chaos de l'océan primordial est bien derrière moi depuis ce jour....

Tout comme les chapelles Egyptiennes, les grottes de Barabar et de Nagarjuni sont en harmonie entre elles, de plus utilisent le même étalon et le même module géométrique.

Et le carré Meh surface serait un excellent chapeau de magicien pour toutes ces chapelles, mais aussi pour toutes ces grottes qui d'ailleurs nous feraient tout autant penser à des chapelles...
jeanfrancoiswarein@gmail.com
Haut

Répondre
  • Aperçu avant impression

29 messages
  • 1
  • 2
  • Suivant

Revenir vers « Afrique »

Atteindre
  • CatĂ©gories du forum
  • ↳   Architecture
  • ↳   Afrique
  • ↳   Architecture de l'Egypte ancienne
  • ↳   GĂ©omĂ©trie de la pyramide de KhĂ©ops
  • ↳   La petite Chapelle de SĂ©sostris 1
  • ↳   Gizeh : disposition gĂ©omĂ©trique des pyramides
  • ↳   La pyramide d'Abu Rawash : Redjedef
  • ↳   L'enceinte de Djeser bâtie sur PI ?
  • ↳   Anciennes mesures de surface
  • ↳   A la recherche du Cadastre ...
  • ↳   Les chapelles de SĂ©sostris 1er
  • ↳   La pyramide de Meidoum
  • ↳   le complexe d'Amenemaht III
  • ↳   La chapelle rouge de Karnac
  • ↳   Les chapelles d'albâtre
  • ↳   Le tombeau de Toutânkhamon
  • ↳   KhĂ©phren
  • ↳   MykĂ©rinos
  • ↳   Europe
  • ↳   La cathĂ©drale de Chartres
  • ↳   Notre Dame de Paris
  • ↳   Stonehenge
  • ↳   Chambord
  • ↳   AmĂ©riques
  • ↳   Asie
  • ↳   Australie
  • ↳   Arts visuels et kinesthĂ©siques
  • ↳   Afrique
  • ↳   AmĂ©riques
  • ↳   Asie
  • ↳   Australie
  • ↳   Europe
  • ↳   la peinture et les 3 tables
  • ↳   LĂ©onard De Vinci
  • ↳   La Cène
  • ↳   L'Annonciation
  • ↳   Sandro Botticelli
  • ↳   La naissance de VĂ©nus
  • ↳   L'Annonciation de Botticelli
  • ↳   La Calunnia di Apelle
  • ↳   Piero Della Francesca
  • ↳   Ecrits
  • ↳   Afrique
  • ↳   Textes hiĂ©roglyphiques
  • ↳   AmĂ©riques
  • ↳   Australie
  • ↳   Asie
  • ↳   Europe
  • ↳   En vrac
  • ↳   Musique
  • ↳   Afrique
  • ↳   AmĂ©riques
  • ↳   Asie
  • ↳   Australie
  • ↳   Europe
  • ↳   Sciences et techniques
  • ↳   Afrique
  • ↳   AmĂ©riques
  • ↳   Asie
  • ↳   Australie
  • ↳   Europe
  • ↳   Sciences Humaines
  • ↳   Afrique
  • ↳   AmĂ©riques
  • ↳   Asie
  • ↳   Australie
  • ↳   Europe
  • ↳   Hors sujets en vrac
  • Espaces, formes et contours Espaces, formes et contours
  • Le fuseau horaire est rĂ©glĂ© sur UTC+01:00
  • Supprimer tous les cookies du forum
  • Nous contacter

DĂ©veloppĂ© par phpBB® Forum Software © phpBB Limited

Traduction française officielle © MaĂ«l Soucaze

PRIVACY_LINK | TERMS_LINK