Kyo-o-gokoku-ji Daishido[C3] - Espaces, formes et contours

Espaces, formes et contours

Architecture moderne, ancienne, égyptienne, géométrie, harmonie

Accéder au contenu

  • Raccourcis
  • FAQ
  • Connexion
  • Inscription
  • Espaces, formes et contours Espaces, formes et contours CatĂ©gories du forum Architecture Asie

Kyo-o-gokoku-ji Daishido[C3]

Répondre
  • Aperçu avant impression
7 messages • Page 1 sur 1
Jean François
Site Admin
Messages : 2167
Inscription : 18 Juin 2018, 18:28

Kyo-o-gokoku-ji Daishido[C3]

  • Citer

Message par Jean François » 19 Sep 2024, 15:28

Kyo-o-gokoku-ji-Daishido.jpg
( Cliquer sur l'image)

Vue côté Sud

S'il existe une architecture dans le monde qui nous apprend Ă  mieux voir, Ă  pouvoir commencer un chemin d'analyse des premiers gestes qui composent toute architecture, c'est bien celle du Japon...

Suis de plus en plus amoureux de cette architecture Japonaise, elle s'impose avec légèreté à notre esprit, nous offre un cinquième élément vital, le bois, et nous laisse une emprunte profonde et thérapeutique.

Tracer le plan d'un édifice sur le sol est bien évidemment une modification de sa nature apparente, un tatouage sur la peau de notre terre mère au point de rendre visible sa matrice profonde!

Mais il y a bien mieux que de me lire, je vous laisse le mandala de ce temple.

Je n'y ai rien ajouté, simplement ramassé les noix, un peu tatoué par mes soins j'y conviens !

Juste mis en évidence le rectangle des poteaux et celui du plancher.

Cela tombe bien et remercions celui qui l'a dessiné et qui a poussé le luxe d'y adjoindre des cotations pour notre plus grand bonheur.

Si rare d'avoir des plans avec cotation...

Quand à celui qui l'a créé, anonyme, je m'incline devant lui, moi qui ne fais que passer et ramasser les noix...
Kyo-o 1 a.JPG
( Cliquer sur l'image)

Je vous laisse méditer et deviner !

https://bunka.nii.ac.jp/suisensyo/kyoto ... ix7cL.html
jeanfrancoiswarein@gmail.com
Haut

Jean François
Site Admin
Messages : 2167
Inscription : 18 Juin 2018, 18:28

Re: Kyo-o-gokoku-ji Daishido[C3]

  • Citer

Message par Jean François » 20 Sep 2024, 00:05

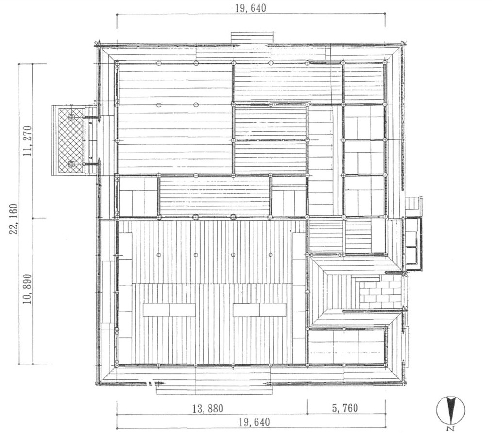
Kyo-o 1 a.JPG
(Cliquer sur l'image)

Laissé assez de temps pour comprendre ces deux rectangles, celui des piliers et celui du socle.

Nous commençons par les piliers....

19.64 mètres de largeur !

Formons un carré de 19.64 m de côtés calculons sa surface, elle est de 385.7296 mètres carrés.

Cherchons le cercle aussi de 385.7296 mètres carrés donc de même surface, divisons par Pi et prenons la racine du résultat;

Le rayon de ce cercle est de 11.08068342 mètres et le double 22.16136684 mètres sont évidemment le diamètre du cercle !

Observons le plan et trouvons un 22.16 mètres...C'est évidemment la côte sur la gauche du dessin, la longueur du rectangle délimitée par les piliers.

Le créateur a donc voulu que son rectangle de départ soit un rectangle où la longueur est le diamètre d'un cercle et la largeur le côté d'un carré, sachant que ce carré et ce cercle ont même surface.

Voilà une belle symétrie mais dans le sens premier des Grecs, car symétrie signifiait proportion...Et non le sens qu'on lui donne aujourd'hui depuis qu'un médecin a oublié son serment d' Hippocrate en jouant à l'architecte Imhotep, sans avoir reçu sa formation et qui s'appelle Claude Perrault et se prend de plus pour un moderne, Molière et Boileau s'en amusent encore...

Le rectangle de son socle, maintenant !

Très simple, prenons la largeur du socle et formons un double carré.

La diagonale de ce double carré ayant comme grand côté la largeur du socle va nous donner la longueur du socle.


Ce qui est amusant est que le 11.08 m, la moitié de 22.16 m, le rayon, c'est en mètre Phi à la puissance 5 !
jeanfrancoiswarein@gmail.com
Haut

Jean François
Site Admin
Messages : 2167
Inscription : 18 Juin 2018, 18:28

Re: Kyo-o-gokoku-ji Daishido[C3]

  • Citer

Message par Jean François » 24 Sep 2024, 20:36

Kyo-o 5 a.JPG
(Cliquer sur l'image)



Les traits de couleurs stigmatisent les segments égaux, nous avions vu les gestes issus des quadratures, puis de la racine de 5 précédemment...

La largeur du rectangle des piliers se retrouve aussi être en bleu foncé la diagonale du carré de 13.88 mètres, cotation en bas au Nord

En effet 19.64 mètres divisés par racine de 2 nous mènent à 13.88 mètres !

Kyo-o 4 a.JPG
Cliquer sur l'image)

Un gros plans met en evidence une dimension, la largeur de deux grottes de Barabar et Nagarjuni en Inde.
jeanfrancoiswarein@gmail.com
Haut

Jean François
Site Admin
Messages : 2167
Inscription : 18 Juin 2018, 18:28

Re: Kyo-o-gokoku-ji Daishido[C3]

  • Citer

Message par Jean François » 26 Sep 2024, 01:23

Oui, il est question de quadrature, que serait une architecture sans la réponse à cette question.

Kyo-o-gokoku-ji, son rectangle formé par les piliers a pour longueur le diamètre d'un cercle qui a même surface qu'un carré dont le côté est cette fois la largeur de ce rectangle !

Hasard me direz-vous, mais nous ne rencontrons que ce même genre de hasard depuis 50 années que nous cherchons des réponses à nos questions...

Si c'est donc le hasard qui fait toutes ces harmonies, ces symphonies, le hasard serait-il alors la logique mĂŞme, puisque qu'harmonie et logique avaient la mĂŞme signification pour les pythagoriciens.

Souvenons nous de Ninna-Ji.



Ninna-Ji Photo.jpg
( Cliquer sur l'image)



Ninna-ji A a.JPG
( Cliquer sur l'image)


Nous avons 25.000 mètres de longueur et 17.730 de largeur pour ce rectangle formé par les piliers, très près d'un rectangle racine de 2 !

Soit dit en passant 17.73 mètres sont les sosies parfaits des 60 Chi Tang Chinois .

Formons un carré avec cette largeur et aussi avec la largeur opposée, soit deux carrés égaux se croisant.


Nanni a.JPG
( Cliquer sur l'image)

Nous avons ajouté au centre de chacun des deux carrés, les deux cercles de même surface...

Observons !

Tous ces points rouges sont des points de rencontre des deux carrés et cercles de même surface.

Chaque point rouge est juste sur le centre d'un pilier !



Le hasard a donc des limites !

Le hasard est donc le plus souvent quadrature !

Mais il peut ĂŞtre aussi racine de 2, de 3, de 5, tout comme nombre d'or et toutes ses puissances, et leurs inverses.


Nous comprenons d'autant mieux maintenant pourquoi les espaces entre les piliers ne sont pas réguliers.

Car nous sommes ici dans la symmetria des bâtisseurs Japonais, donc dans la proportion et non dans la symétrie, dérive du mot en occident depuis le XVIIème siècle, qui a pris le sens d'égalité, de régularité....

Symmetria est donc aussi la clé du langage des bâtisseurs Japonais.

En Japonais quel est-il?

Si quelqu'un sait, puisque personne ne semble vouloir débattre ici, l'inscription nécessitant une confirmation sur mon mail ou celui d'Olivier( â cause des adresses robots qui nous envahissent) il peut s'inscrire ou s'il ne veut débattre l'envoyer sur mon mail.

Ma boîte Mail:

jeanfrancoiswarein@gmail.com






,
jeanfrancoiswarein@gmail.com
Haut

Jean François
Site Admin
Messages : 2167
Inscription : 18 Juin 2018, 18:28

Re: Kyo-o-gokoku-ji Daishido[C3]

  • Citer

Message par Jean François » 27 Sep 2024, 18:31

Kyo-o-gokoku-ji a.JPG
( Cliquer sur l'image)


Dans le rectangle des piliers, en haut à gauche, nous pouvons voir apparaître un carré qui n'en est pas tout à fait un, mais si nous partons de son côté gauche, pour en faire un double carré, nous sommes bien obligé de nous apercevoir qu'il est déterminé par les cloisons intérieurs !





Kyo-o 6 a.JPG
( Cliquer sur l'image)



En effet, il est ici en noir, ainsi qu'est entouré en noir aussi le rectangle des piliers de l'édifice.

Ce double carré semble étrange bien qu'il apparaisse sans aucun doute aussi structurel.

Plus je l'observe, plus je le trouve harmonieux !

Serait-ce le rectangle des piliers qui l'entoure qui le met ainsi, par comparaison, en valeur et en harmonie par contraste des formes et des contours.

Ce ressenti m'est évidant...Mais j'ai manqué de foi en notre hasard, fallut fouiller et ouvrir la boîte de Pandore.

Il y a les mesures de longueur, mais ne sont-elles pas là pour déterminer aussi des figures, des surfaces !

Y a-t-il d'autres harmonies de surface ?!

Voici un double carré de 138.4448 mètres carrés, 8.32x16.64 mètres !

Voilà le rectangle des piliers 19.64 x 22.16 = 435.2224 mètres carrés.

435.2224/138.4448=22/7

En d'autres termes, nous sommes dans une proportion, le rectangle des piliers vaut 22 en surface et notre double carré vaut 7 !

Nous voyons bien que même s'il y a une nécessité fonctionnelle et sacrée qui modèle la quantité des différentes surfaces et espaces intérieures du temple, leur qualités est affinées avec des proportions remarquables.

Symmetria !

Il n' a pas que la quantité fonctionnelle, mais aussi sa qualité.

22/7 est une qualité en tant que proportion, nous fait même penser à une transcendance.

Le hasard n'étant en général que l'épouvantail de notre ignorance qu'on agite bien haut pour inciter à circuler, car parait-il, il n'y aurait là rien à y voir...
jeanfrancoiswarein@gmail.com
Haut

Jean François
Site Admin
Messages : 2167
Inscription : 18 Juin 2018, 18:28

Re: Kyo-o-gokoku-ji Daishido[C3]

  • Citer

Message par Jean François » 04 Oct 2024, 00:58

Kyo-o 7 a.JPG
( Cliquer sur l'image )


Observons attentivement !



Kyo-o 8 a.JPG
( Cliquer sur l'image )


De plus près....R2T2= 5.23 mètres, LP2= 5.84 mètres, J1M1= 5.71 mètres

LP2 est la diagonale d'un carré de surface un huitième du double carré noir.

Délirons un peu, beaucoup pour certain....

5.84 mètres sur le dessin, soit 5,854 mètres en théorie, est donc la diagonale d'un demi carré Meh Egyptien...C'est la hauteur de la chambre du roi de la grande pyramide, le carré Meh la moitié de sa surface au sol.

Autre hasard délirant, 22,16 mètres, longueur de notre temple Japonais, c'est bien deux fois 11.08 mètres et n'est ce pas le nombre d'or à la puissance cinq, Phi5 en Giri Sumérien ou en mètre d'aujourd'hui....

Question

Le geste révèlerait-il une origine commune tout autour de notre bonne terre, les murs cyclopéens ne sont-ils pas les mêmes à Kyoto, en Grèce, à Gizeh, en Amérique etc...?

J1M1 fait bien ici 5.71 mètres, n'est ce pas les diamètres des hémicycles de Gopika en Inde et 5.854 mètres sa grande largeur ?




Nous détaillerons bientôt l'analyse.
jeanfrancoiswarein@gmail.com
Haut

Jean François
Site Admin
Messages : 2167
Inscription : 18 Juin 2018, 18:28

Re: Kyo-o-gokoku-ji Daishido[C3]

  • Citer

Message par Jean François » 09 Oct 2024, 17:23

Kyo-O 9 a.JPG
( Cliquer sur l'image)

Le trois quadrilatères oranges sont égaux.


Il est temps de passer bientôt au tracé, tant de coïncidences s'y bousculent, cela en devient presque inquiétant... :D




Kyo-o 10 a.JPG
( Cliquer sur l'image)


22.23 mètres largeur du socle, c'est bien 60 meh nessou divisées par racine de 2....



Kyo-o 11 a.JPG
( Cliquer sur l'image)

B2B3 à 5.24 mètres, IQ à 11 mètres...

Tout comme R2T2 à 5.23 mètres étant le côté du carré Meh Egyptien.

11 mètres, la longueur de la première salle de Sudama en Inde, mais bien évidemment 21 meh nessou

T1O1 à 11.27 mètres, diamètre d'un cercle de même surface qu'un carré de 10 mètres !

Nous devrions avec le tracé découvrir l'étalon de mesure....

Chi Chinois ou Shaku Japonais?

Et n'oublions pas qu'un carré de 12 Chi Qing de côté a une diagonale de 5.24 mètres, soit 10 meh nessou Egyptiennes.

36 Chi Qing nous amèneront, multipliés par racine de 2, alors à B1G1 avec 15.708 mètres pour la diagonale, soit 30 meh nessou Egyptiennes.

Mais encore le carré 12 Chi Qing de côté, s'il est Phi carré, la valeur 1 sera 1.4142 mètres qui projetée sur sa diagonale deviendra 2 mètres ou 2 Giri Sumériens !

Un carré de 3/2 de 5.24 mètres vu sur le plan, soit de côté 7.854 mètres, considéré comme Phi carré, la valeur 1 deviendra 3 mètres, côté d'un carré de diagonale 14 Shaku...
jeanfrancoiswarein@gmail.com
Haut

Répondre
  • Aperçu avant impression

7 messages • Page 1 sur 1

Revenir vers « Asie »

Atteindre
  • CatĂ©gories du forum
  • ↳   Architecture
  • ↳   Afrique
  • ↳   Architecture de l'Egypte ancienne
  • ↳   GĂ©omĂ©trie de la pyramide de KhĂ©ops
  • ↳   La petite Chapelle de SĂ©sostris 1
  • ↳   Gizeh : disposition gĂ©omĂ©trique des pyramides
  • ↳   La pyramide d'Abu Rawash : Redjedef
  • ↳   L'enceinte de Djeser bâtie sur PI ?
  • ↳   Anciennes mesures de surface
  • ↳   A la recherche du Cadastre ...
  • ↳   Les chapelles de SĂ©sostris 1er
  • ↳   La pyramide de Meidoum
  • ↳   le complexe d'Amenemaht III
  • ↳   La chapelle rouge de Karnac
  • ↳   Les chapelles d'albâtre
  • ↳   Le tombeau de Toutânkhamon
  • ↳   KhĂ©phren
  • ↳   MykĂ©rinos
  • ↳   Europe
  • ↳   La cathĂ©drale de Chartres
  • ↳   Notre Dame de Paris
  • ↳   Stonehenge
  • ↳   Chambord
  • ↳   AmĂ©riques
  • ↳   Asie
  • ↳   Australie
  • ↳   Arts visuels et kinesthĂ©siques
  • ↳   Afrique
  • ↳   AmĂ©riques
  • ↳   Asie
  • ↳   Australie
  • ↳   Europe
  • ↳   la peinture et les 3 tables
  • ↳   LĂ©onard De Vinci
  • ↳   La Cène
  • ↳   L'Annonciation
  • ↳   Sandro Botticelli
  • ↳   La naissance de VĂ©nus
  • ↳   L'Annonciation de Botticelli
  • ↳   La Calunnia di Apelle
  • ↳   Piero Della Francesca
  • ↳   Ecrits
  • ↳   Afrique
  • ↳   Textes hiĂ©roglyphiques
  • ↳   AmĂ©riques
  • ↳   Australie
  • ↳   Asie
  • ↳   Europe
  • ↳   En vrac
  • ↳   Musique
  • ↳   Afrique
  • ↳   AmĂ©riques
  • ↳   Asie
  • ↳   Australie
  • ↳   Europe
  • ↳   Sciences et techniques
  • ↳   Afrique
  • ↳   AmĂ©riques
  • ↳   Asie
  • ↳   Australie
  • ↳   Europe
  • ↳   Sciences Humaines
  • ↳   Afrique
  • ↳   AmĂ©riques
  • ↳   Asie
  • ↳   Australie
  • ↳   Europe
  • ↳   Hors sujets en vrac
  • Espaces, formes et contours Espaces, formes et contours
  • Le fuseau horaire est rĂ©glĂ© sur UTC+01:00
  • Supprimer tous les cookies du forum
  • Nous contacter

DĂ©veloppĂ© par phpBB® Forum Software © phpBB Limited

Traduction française officielle © MaĂ«l Soucaze

PRIVACY_LINK | TERMS_LINK