Notre Dame de Reims - Espaces, formes et contours

Espaces, formes et contours

Architecture moderne, ancienne, égyptienne, géométrie, harmonie

Accéder au contenu

  • Raccourcis
  • FAQ
  • Connexion
  • Inscription
  • Espaces, formes et contours Espaces, formes et contours CatĂ©gories du forum Architecture Europe

Notre Dame de Reims

Répondre
  • Aperçu avant impression
3 messages • Page 1 sur 1
Jean François
Site Admin
Messages : 2228
Inscription : 18 Juin 2018, 18:28

Notre Dame de Reims

  • Citer

Message par Jean François » 28 Juin 2025, 15:51

Il est temps de se pencher sur la cathédrale de Reims.

C'est l'analyse comparer, qui va guider notre compas.

Compas-raison, quoi de mieux !

Déjà une découverte, le geste qui fait naitre la largeur de l'édifice est le même que celui opéré à la cathédrale de Chartres.

Autre geste, la largeur du Chœur et de la Nef est le même geste qu'à Amiens mais encore à Köln.

Nous trouvons l'aroure, le Setjat Egyptien toujours aussi présent, outil des maitres d'oeuvres Coptes, transmis à Byzance, en Arménie, dont hérite le Maitre d'oeuvre Tiridate à Ani.

Les règles d'harmonie se font par les surfaces, en partant du cadastre de la cité.

Un plan est une surface avant tout, pas que des lignes, c'est un territoire conceptualisé et ritualisé, une partie organisée, partie du cadastre de la cité toute entière.

Nous trouvons alors si nous nous référons à des mesures précises dans les parties structurantes de l'édifice, des empans et des coudées Egyptiennes.

Pieds du roi, pieds romain, pieds grecs!?!

Mais si nous les rencontrons parfois, c'est parce que toutes ces mesures sont liées, insécables.

Un carré Meh de 10 meh nessou Egyptienne de côté, le rayon du cercle de même surface est de 10 pieds romains, le côté de l'hexagone de même surface est de 10 pieds du roi de France, le carré Meh, sa diagonale 24 pieds grecs.

Face à ces correspondances que connaissent les maitres d'oeuvre presque apatrides, éternels voyageurs, pigeon( celui qui transmet le message ) qui a pigé la pige, il n'est pas étonnant de rencontrer par ci par là l'une ou l'autre de ces mesures.

Puisque les lois d'harmonie qui élaborent un édifice utilisent la géométrie et ses gestes, la racine de 2, la racine de 3, la racine de 5, la racine de 10, donc le nombre d'or mais aussi et surtout les quadratures de surface et de périmétrie, entre cercle, triangle, carré, pentagone, hexagone, heptagone, octogone,.ennéagone etc...

Et il y a l'empan du moyen âge...

Son nombre est 21, pour rejoindre la meh nessou Egyptienne qui aura alors pour nombre 55

Deux nombres de la suite de Fibonacci, 21 est à 55, ce que un est à Phi carré.

Mais quelle est la matrice la plus performante dans toutes les civilisations pour cadastrer et mettre en harmonie, ce sont les mesures de surface Egyptiennes, système unique, aucune autre civilisation n'a eu des mesures de surface aussi sophistiquées et subtils.

Meh, Châ, Sa, Heseb, Remen, Setjat, Cha-ta, Itérou surface.

Les peuples commercent entre eux dans l'espace et dans les temps, toute l'histoire humaine est ainsi, mais il ne se transmette pas que des nourritures ou des valeurs matérielles, ils s'échangent leur savoir...

Et puis souvenons nous au VI ème siècle avant notre ère près de Troyes, la tombe du prince de Lavau, Prince celtes, on y a trouvé un magnifique Chaudron Etrusque en bronze et pas très loin la tombe de Vix, un magnifique cratère Grec d'1.64 mètres pesant 208 kg, témoignant des échanges courant des richesses entre civilisations éloignées et aussi des savoirs...
jeanfrancoiswarein@gmail.com
Haut

Jean François
Site Admin
Messages : 2228
Inscription : 18 Juin 2018, 18:28

Re: Notre dame de Reims

  • Citer

Message par Jean François » 02 Juil 2025, 00:38

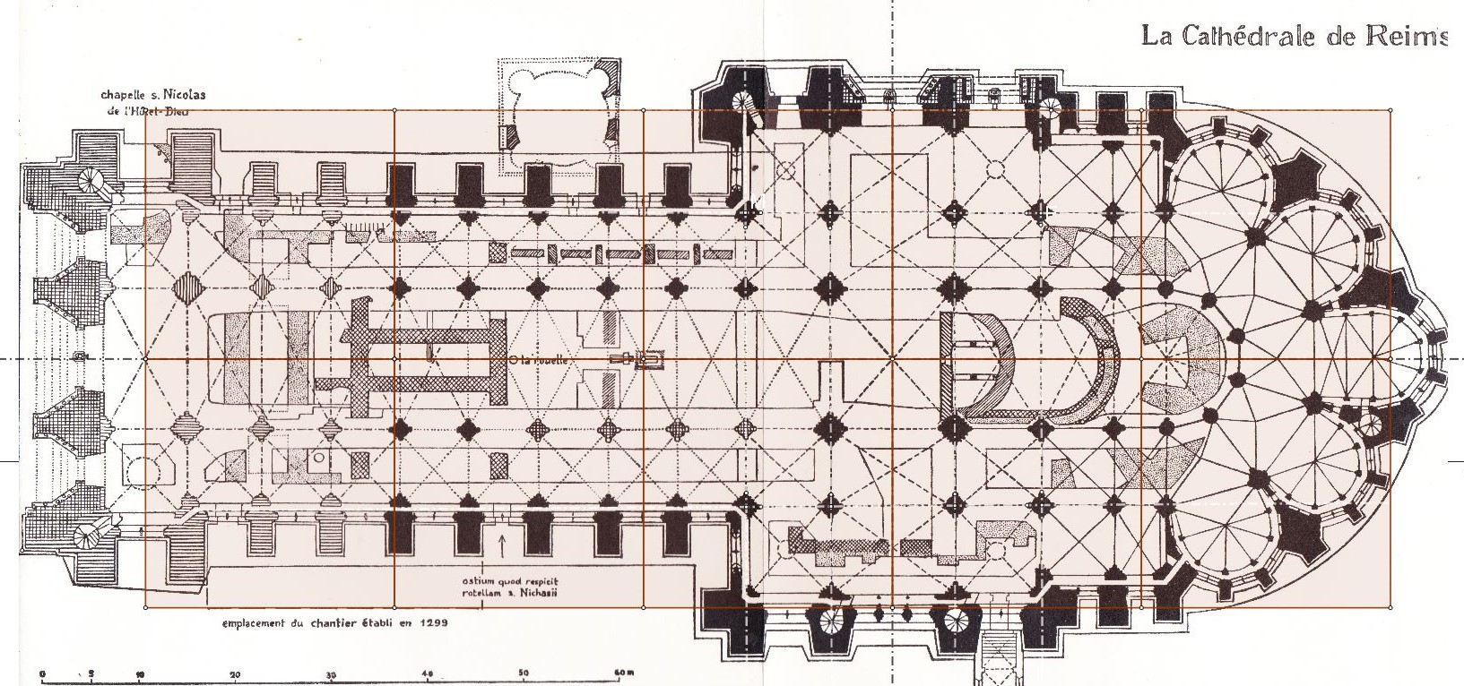
Plan Reims scanné.png
( cliquer sur l'image )


Observons attentivement ce mandala, mais aussi ce dédale...

Apparaît petit à petit une figure, un simple carré.


Reims geste 1 a.JPG
(Pas si simple cliquer sur l'image )


Pas si simple, car c'est un carré de 60 meh nessou Egyptiennes

60 meh nessou de côté, c'est une diagonale de ce carré avec 144 pieds grecs du Parthénon(12x12).

Puisque ce carré est la manifestation sur terre du cercle céleste, cherchons le cercle dans ce dédale !

A préciser que la croisée du transept est un rectangle de 13.09 mètres sur 14.635 mètres largeur, cette dernière est aussi la largeur du Choeur et de la Nef

Reims geste 2 a.JPG
( cliquer sur l'image )


On s'approche de cette table carré à la croisée du transept, qui nous invite à ses noces avec le cercle céleste.

Leur Noce est une alliance, un face Ă  face de mĂŞme surface, quadrature surfacique.

Et le cercle céleste, la table ronde de Merzhin, quelle est donc sa mesure?

60 pieds romains de rayon, sacrebleu, ramené à 100 pour le diamètre serait l'exact cercle intérieur de Stonehenge ! download/file.php?id=3314&mode=view

Ce cercle détermine par son diamètre de 200 pieds Romains, toute la largeur externe des murs de la Nef.

D'autres noix à ramasser encore puisque le diamètre de ce cercle est aussi l'espace entre les centres des hémicycles de premières chapelles du Chœur Nord et Sud, comme on peut le voir sur ce dessin, les traits bleu parallèles espacés d'un diamètre passent par les centres.



Reims geste 12 a.JPG
( cliquer sur l'image )


Puisque nous avions fait les tangentes au cercle, il serait bien dommage de ne pas prolonger deux côtés du carré puisqu'ils vont nous offrir cette fois la largeur intérieure de la Nef.

Les diagonales de 144 pieds du Parthénon peuvent devenir les rayons de deux cercles qui se croisent....

En un point qui marque le fond de la chapelle Est de Notre Dame de Reims.


Ce n'est qu'un début, il y a tant de correspondances harmoniques, un feu qui n'a pas besoin d'artifice.

Prochaine approche, le cadastre....

Reims geste 11 a.JPG
( cliquer sur l'image )





NB/ Les traits sont épais certes c'est pour mieux voir tout simplement, ce ne sont pas des caches misères d'imprécision. Nous ferons après avoir soulevé tous les lapins d'harmonie ( Les lapins courent vite, on ne sait plus les rattraper aujourd'hui sans les tuer avec le hasard...), un tracé aux traits fins avec plan glissé en dessous.

Courons, le temps presse...


Reims geste 16 a.JPG
( cliquer sur l'image )



Ici mise en lumière du carré Setjat, et ses noces avec le ciel car Merzhin rode toujours pour nous mettre à tables ( il y en a 3), et pour se préparer pour la suite, bien observer.
jeanfrancoiswarein@gmail.com
Haut

Jean François
Site Admin
Messages : 2228
Inscription : 18 Juin 2018, 18:28

Re: Notre dame de Reims

  • Citer

Message par Jean François » 02 Juil 2025, 15:58

Reims geste 3 a.JPG
( Cliquer sur l'image )


Chemin complémentaire car lié aux surfaces et donc par logique ou harmonie au cadastre de la cité fondée par Rémus, Durocortorum pour les Romains.

Aparté: imaginons un carré de 47 mesures de côté et un carré de 45 mesures de côté, leur rapport de surface est le même qu'entre un carré Sa Egyptien et un carré clima Romain, comme 47 au carré est à 45 au carré.

Allons nous faire voir chez les Grecs, cette fois 100 hexapodes Grecs sont l'exact carré Sa Egyptien

Le carré orangé est ici un carré Setjat Egyptien.

Tout comme la transmission du triangle Egyptien par les coptes, mais aussi par les grecs et le monde Arabe, je ne parle même pas des hyperboréens tel Abaris ça va de soi, les mesures de surface Egyptiennes si harmonieuses et logiques font parties aussi des outils du maître d'oeuvre tout comme Le Clima romain, tout comme les 100 hexapodes grecs qui sont un Sa Egyptien. Le maitre d'oeuvre au moyen âge, souvent sculpteur, n'a rien à envier aux scribes des formes et des contours de l'ancienne Egypte, ni au légendaire Dédale, ni au réel Tiridate d'Ani, celui qui reconstruisit le dôme de Sainte Sophie au Xème siècle.

Ici en oranger le carré Setjat s'y présente et un Setjat c'est bien 100 carrés Meh...

Son côté a 100 meh nessou


Reims geste 4 a.JPG
( Cliquer sur l'image )

Ici deux carrés Setjat plus un demi.

Soit deux carrés setjat et un double carré Remen surface, qui est la moitié du Setjat.


Reims geste 5 a.JPG
( Cliquer sur l'image )


Nous avons tracé, centrés de par et d'autre de la croisée du transept, 4 carrés Setjat( 4 Aroures).

On voit bien ici que la Chapelle au Sud, ressemblant à la sainte Chapelle de Paris, est bien placé grâce aux proportions surfaces puisqu'elles déterminent le commencement du mur intérieur Sud de cette chapelle.


Reims geste 6 a.JPG
( Cliquer sur l'image )

Rappelons nous précédemment du carré de 60 meh nessou, ici nous avons mis en évidence l'espace Nord-Sud entre les colonnes.

Nous savons que cet espace est de 14.635 mètres en moyenne.

Ici les segments bleu, rouge, vert, orange qui joignent le centre des colonnes sont bien évidemment égaux et même geste qu' à Amiens(download/file.php?id=3802&mode=view) mises ensemble dessinent la diagonale de la moitié du carré Setjat, soit un double carré Remen.



Reims geste 7 a.JPG
( Cliquer sur l'image )

En rose tyrien, la largeur des travées transept Est-Ouest qui est la même mesure, soit 25 meh nessou ou 13.09 mètres, même mesure que l'espace Nord-Sud de la Nef transept et chœur mais cette fois non au centre des piliers mais des colonnettes.





Reims geste 8a.JPG
( Cliquer sur l'image )


Observons les surfaces, en façade à l' Ouest, nous avons ajouté au deuxième Setjat un Heseb fait de quatre carrés et à l'Est, un Sa fait de 8 carrés.

Chacun de ces huit carrés ont l'exacte mesure externe du carré de la chapelle blanche de Sésostris l er à Karnak

A l'Ouest la ligne qui traverse ces quatre carrés à leur moitié positionne les portes en bois.

Et de cette ligne des portes partons vers l'Est et arrêtons nous au centre de la croisée du transept, nous aurons une distance de 162 et 1/2 meh nessou Egyptiennes.

Et de la porte Ouest jusqu'au fond de la chapelle Ă  l'Est ce seront 270 meh nessou!

En tout 2 Setjat, 1 Remen, 1 Heseb, 1 Sa, la famille des 4 mesures de surface Egyptiennes liées entre elles par la duplication du carré dont se souviendra Socrate sous la plume de Platon.




Reims geste 16 a.JPG
( Cliquer sur l'image )

Pas de Sacre à Reims, si l'alliance de la terre et du ciel " Que ta volonté soit faites sur la terre comme au ciel" n'y est pas.

Ajoutons le cercle, la table ronde de même surface que la table carré, le Setjat, l'Aroure, nous soufflerait Merzhin.

Nous verrons qu'elle donne à sa périphérie en croisant l'axe de l'édifice le centre des hémicycles, attention, au sol.

Amen :D

Notre travaille d'analyse n'est qu'au tout début, nous essayerons de ne rien laisser de côté.

Si nous pouvions trouver un plan au scanner 3 D, il doit en exister un quelque part. MĂŞme si le plan que j'ai pris semble fiable, il nous faudra un scanner et surtout aller sur place pour mesurer. Car, comme saint Thomas, je ne crois que ce que je vois et ce que je touche maintenant, main tenant...

NB: Corrigé les coquilles, c'était presque Noël....
jeanfrancoiswarein@gmail.com
Haut

Répondre
  • Aperçu avant impression

3 messages • Page 1 sur 1

Revenir vers « Europe »

Atteindre
  • CatĂ©gories du forum
  • ↳   Architecture
  • ↳   Afrique
  • ↳   Architecture de l'Egypte ancienne
  • ↳   GĂ©omĂ©trie de la pyramide de KhĂ©ops
  • ↳   La petite Chapelle de SĂ©sostris 1
  • ↳   Gizeh : disposition gĂ©omĂ©trique des pyramides
  • ↳   La pyramide d'Abu Rawash : Redjedef
  • ↳   L'enceinte de Djeser bâtie sur PI ?
  • ↳   Anciennes mesures de surface
  • ↳   A la recherche du Cadastre ...
  • ↳   Les chapelles de SĂ©sostris 1er
  • ↳   La pyramide de Meidoum
  • ↳   le complexe d'Amenemaht III
  • ↳   La chapelle rouge de Karnac
  • ↳   Les chapelles d'albâtre
  • ↳   Le tombeau de Toutânkhamon
  • ↳   KhĂ©phren
  • ↳   MykĂ©rinos
  • ↳   Europe
  • ↳   La cathĂ©drale de Chartres
  • ↳   Notre Dame de Paris
  • ↳   Stonehenge
  • ↳   Chambord
  • ↳   AmĂ©riques
  • ↳   Asie
  • ↳   Australie
  • ↳   Arts visuels et kinesthĂ©siques
  • ↳   Afrique
  • ↳   AmĂ©riques
  • ↳   Asie
  • ↳   Australie
  • ↳   Europe
  • ↳   la peinture et les 3 tables
  • ↳   LĂ©onard De Vinci
  • ↳   La Cène
  • ↳   L'Annonciation
  • ↳   Sandro Botticelli
  • ↳   La naissance de VĂ©nus
  • ↳   L'Annonciation de Botticelli
  • ↳   La Calunnia di Apelle
  • ↳   Piero Della Francesca
  • ↳   Ecrits
  • ↳   Afrique
  • ↳   Textes hiĂ©roglyphiques
  • ↳   AmĂ©riques
  • ↳   Australie
  • ↳   Asie
  • ↳   Europe
  • ↳   En vrac
  • ↳   Musique
  • ↳   Afrique
  • ↳   AmĂ©riques
  • ↳   Asie
  • ↳   Australie
  • ↳   Europe
  • ↳   Sciences et techniques
  • ↳   Afrique
  • ↳   AmĂ©riques
  • ↳   Asie
  • ↳   Australie
  • ↳   Europe
  • ↳   Sciences Humaines
  • ↳   Afrique
  • ↳   AmĂ©riques
  • ↳   Asie
  • ↳   Australie
  • ↳   Europe
  • ↳   Hors sujets en vrac
  • Espaces, formes et contours Espaces, formes et contours
  • Le fuseau horaire est rĂ©glĂ© sur UTC+02:00
  • Supprimer tous les cookies du forum
  • Nous contacter

DĂ©veloppĂ© par phpBB® Forum Software © phpBB Limited

Traduction française officielle © MaĂ«l Soucaze

PRIVACY_LINK | TERMS_LINK