Petra: Qasr El Bint Far'Un ! - Espaces, formes et contours

Espaces, formes et contours

Architecture moderne, ancienne, égyptienne, géométrie, harmonie

Accéder au contenu

  • Raccourcis
  • FAQ
  • Connexion
  • Inscription
  • Espaces, formes et contours Espaces, formes et contours CatĂ©gories du forum Architecture Asie

Petra: Qasr El Bint Far'Un !

Répondre
  • Aperçu avant impression
10 messages • Page 1 sur 1
Jean François
Site Admin
Messages : 2187
Inscription : 18 Juin 2018, 18:28

Petra: Qasr El Bint Far'Un !

  • Citer

Message par Jean François » 27 Mai 2024, 19:42

qasr-al-bint-temple-at-rock-city-of-petra-jordan-FPF00237.jpg
(Cliquer sur l'image)


Qasr El Bint

Temple de Dusarès et Al Uzza !

Imposant, synthétique, puisque largeur, longueur et hauteur forment un cube de 32 mètres d'arête...

Evidemment nous venons de trouver une étude remarquable avec des plans soignés et une échelle qui vont nous permettre, comme pour Takht-e Suleiman, d'entrouvrir la porte...

https://hal.science/hal-01448351/document

Cela promet car encore un "Yapuka" ramasser les noix... :D

Petra est située entre l'Egypte et la Mésopotamie, et puis "Qasr El Bint Far' Un" ainsi nommé par les Bédouins signifie "Palais de la fille de Pharaon"...

Influence Egyptienne, Babylonienne, Grec, Romaine...

Déjà, au bas des escaliers qui mène au temple, jusqu'au mur de l'enceinte qui l'entoure, nous avons un carré parfait...Un Setjat Egyptien en surface, soit un carré de 100 meh nessou de côté !.

Première noix tombée de l'arbre magique, un Setjat ! Du moins en partant de la reconstitution de Bachmann,
Watzinger & Wiegand (1921)


S'il y a de la meh nessou, confirmé par l'article, nous trouverons de l' Aslû Babylonien bien évidemment, avec peut être l'arête du cube de 64 Aslû de Qasr El Bint, mais aussi des pieds romains, confirmés par l'article, quadrature oblige, rationnel et transcendant feront émerger le temple !





Qasr_al-Bint_02.jpg
(Cliquer sur l'image)
jeanfrancoiswarein@gmail.com
Haut

Jean François
Site Admin
Messages : 2187
Inscription : 18 Juin 2018, 18:28

Re: Petra Qasr El Bint !

  • Citer

Message par Jean François » 28 Mai 2024, 15:46

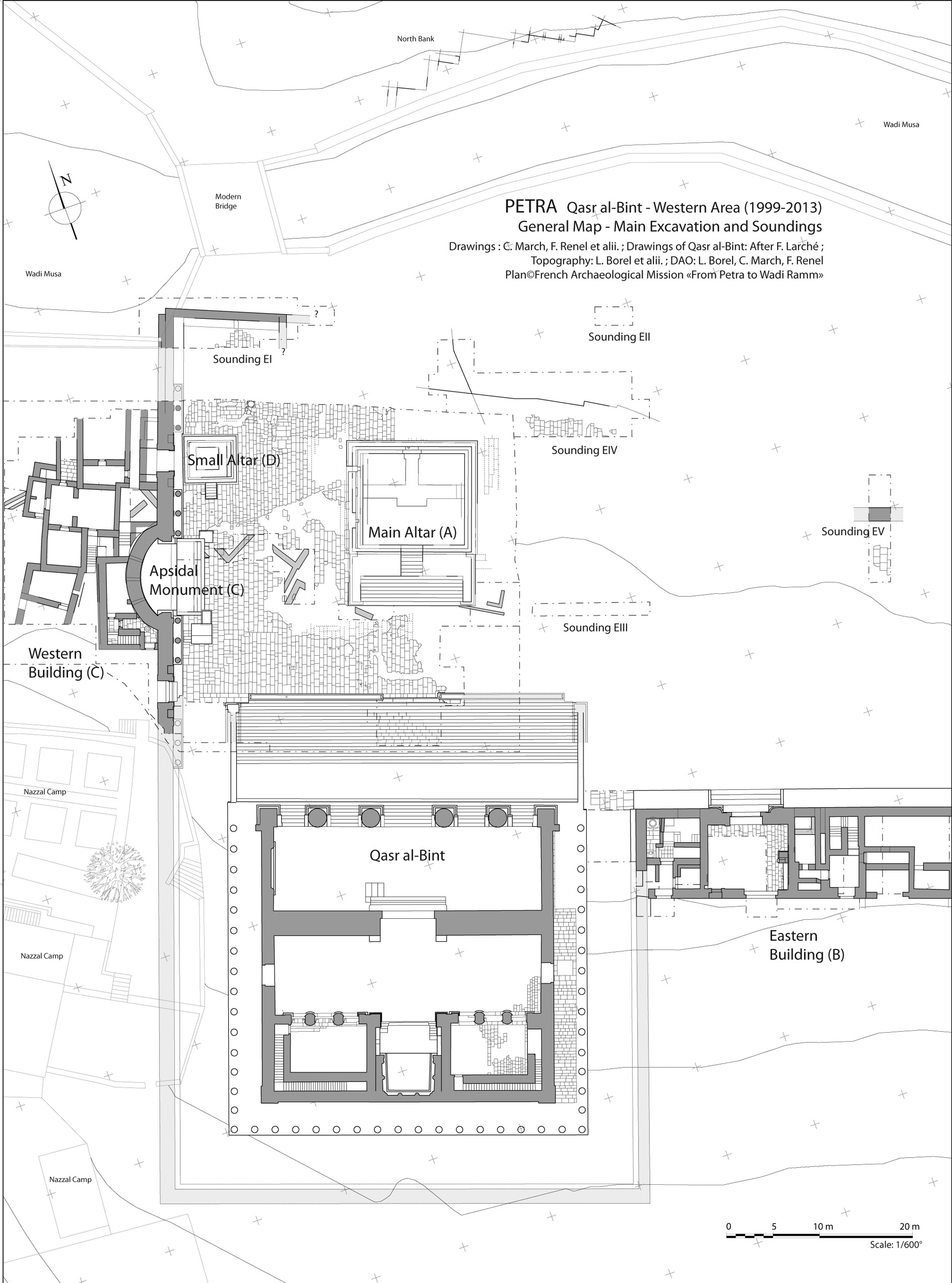
Les plans de Qasr Al Bint par l'étude des Christian Augé, Laurent Borel, Jacqueline Dentzer-Feydy, Chrystelle March, François Renel, Laurent Tholbecq semblent plus juste que la reconstitution de Bachmann, Watzinger & Wiegand (1921), qui n'ont apparemment pas assez analysé les sols.

La clef de sol semble faire la différence et sans bémol, le plan du temple est curieusement plus harmonieux, même si nous ne pouvons faire émerger le carré Setjat.

Par contre on y retrouve une influence Babylonienne avec une cour au Sud du temple avec largeur Nord-Ouest/ Sud-Est de 50 mètres, soit 100 Aslû Babyloniennes, ou 100 Ammatû Akkadiennes mais encore 100 Kûs Sumériennes, ou 50 Pas, 50 Giri Sumériens ou 50 Sépû Akkadiens !

Le temple de Dusarès et Al Uzza est un Mandala Subtilement mis en mouvement.

En effet les figures fondamentales qui le constituent, un carré externe et interne glissent légèrement l'un avec l' autre, subtilement, pour casser la froideur de la symétrie, et retrouver la fausse symétrie d' un visage humain ou la partie gauche et droite ne sont pas superposable.

D'ailleurs l'art du portrait est de découvrir les asymétries d'un visage, ce qui le défige, lui donne du mouvement, de la vie restituée !

J'ai donc abandonné la reconstitution de Bachmann, Watzinger & Wiegand (1921) au profit de l'étude des Christian Augé, Laurent Borel, Jacqueline Dentzer-Feydy, Chrystelle March, François Renel, Laurent Tholbecq, que je remercie infiniment pour ce magnifique travail.

Petit Bémol à la clef très égoïste de ma part !

Il n'y a pas les élévations dessinée du temple, il est vrai pas utiles pour leur étude, mais si importante pour notre recherche. J'ai de plus du mal à trouver une mesure donnée dans le texte suffisamment précise pour paramétrer un logiciel. Les mots n'ont pas la précision d'un dessin côté !

Qasr_al-Bint_02 (1).jpg
(Cliquer sur l'image)



Car un dessin est déjà une première imprécision des cotations et le tracé de l'échelle de mesure un deuxième imprécision, deux facteurs donc nuisibles pour travailler avec les mesures d'un édifice.

Qasr El Bint 21.jpg
(Cliquer sur l'image)



Voici le plan tiré de cette étude qui va nous permettre de faire un beau voyage spirituel, la géométrie étant l'esprit d'une architecture digne de ce nom....
jeanfrancoiswarein@gmail.com
Haut

Jean François
Site Admin
Messages : 2187
Inscription : 18 Juin 2018, 18:28

Re: Petra Qasr El Bint !

  • Citer

Message par Jean François » 01 Juin 2024, 02:18

Qasr Al Bint setjat 8 A.JPG
( Cliquer sur l'image)

Deux carrés apparaissent !

L'un fait le contour extérieur du mur du temple, en orange et l'autre le contour intérieur., en rouge..

Curieusement le carré du contour extérieur a l'exacte surface de 36 carrés Meh, unité de surface Egyptienne ( La Grande Pyramide fait de base 1936 Meh et la chambre du Roi, 2 Meh au sol)

Qasr Al Bint Setjat 9 A.JPG
( Cliquer sur l'image)


Le grand carré externe visible cache en son sein une figure invisible, un cercle qui a sa même périmétrie, ici cercle bleu !

Ce cercle centré sur les diagonales du grand carré va accueillir notre deuxième carré, du moins son côté Nord.

Un carré cache toujours un autre cercle, celui qui a sa même surface, cercle rouge !

Sa périphérie passe par le centre de la première et la quatrième colonne rondes.

Un grand carré externe de 240 meh nessou de périmétrie et 36 Meh de surface, a ses cercles invisibles de même périmétrie et même surface.

Le carré intérieur, décentré, nous y reviendrons !

VoilĂ  un commencement, les premiers gestes...
jeanfrancoiswarein@gmail.com
Haut

Jean François
Site Admin
Messages : 2187
Inscription : 18 Juin 2018, 18:28

Re: Petra Qasr El Bint !

  • Citer

Message par Jean François » 02 Juin 2024, 01:32

Qasr El Bint A.JPG
(Cliquer sur l'image)

Ici le carré intérieur, qui ne l''est qu'en touchant le fin fond du sanctuaire !


Qasr El Bint quadrature 1 A.JPG
(Cliquer sur l'image)

Le mur du Naos entre dans l'épaisseur du mur Sud du temple.

Ce carré parfait ainsi obtenu fait 220 meh nessou de périmétrie, ses côtés sont alors de 55 meh nessou, n'est ce pas le huitième de la base de la Grande Pyramide à Gizeh !

Qasr Al Bint Setjat 11 A.JPG
(Cliquer sur l'image)

Toujours centré par les diagonales du carré que forment le contour externe des murs du temple, ici la ligne intérieure des colonnes tout autour du temple témoigne de la présence d'une surface Remen, autre mesure de surface Egyptienne.

Nous reviendrons avec une explication plus complète plus tard, mais on peut déjà dire qu'un carré prend naissance par les axes des colonnes qui fait lui 100 meh remen de côté, ce qui montre la connaissance parfaite du maitre d'oeuvre des gestes des scribes des formes et des contours Egyptiens.

Ce sont les bédouins, ces bergers du désert, nomades, qui donnèrent le nom Qasr Al Bint Far'Un à ce temple, soit Le Palais de la fille de Pharaon ;

En effet les gestes des maitres d'oeuvres Egyptiens ont bien émergés ici...

Qasr Al Bint Setjat 11 A.JPG
(Cliquer sur l'image)


L'intérieur de l'enceinte détermine, et encore une fois centré, un carré de 50 mètres de côté, qui ne sont rien d'autre que 50 pas, 50 Giri Sumériens ou 50 Sépu Akkadiens, ou 100 Kûs Sumériennes, 100 Ammatû Akkadiennes, ou 100 Aslû Babyloniennes !.

D'autant que le carré du contour extérieur de l'enceinte forme un Setjat Egyptien parfait, carré de côté 100 meh nessou !

Chaque côté de ces deux carrés celui de 52.40 mètres et l'autre de 50 mètres sont en quadrature, l'un étant l'arc, 100 meh nessou, l'autre la corde, 100 Aslû d'un cercle qui ferait alors, 100 Aslû de rayon !

Qasr Al Bint Setjat 12 A.JPG
(Cliquer sur l'image)

Le Setjat couronne ce mandala qui dessine les espaces, formes et contours de ce temple voué à Dusarès et Al Uzza...



Qasr Al Bint Setjat 14 A.JPG
(Cliquer sur l'image)


Nous avons ajouté un deuxième carré Remen surface à notre premier posé.

Observons, il parle de lui mĂŞme...

Qasr Al Bint Setjat 2 A.JPG
(Cliquer sur l'image)


Nous avons tracé quelques carrés Meh, unité de surface Egyptienne, six au Nord et 6 à l'est...

Ils sont évidemment 36 qui recouvrent notre premier carré, contour des murs extérieurs du Temple !


Pas de rapport doré ici, apparemment que des quadratures!

Qasr Al Bint setjat 5 A.JPG
(Cliquer sur l'image)


En effet ici cette chambre n'est autre qu'un rectangle de largeur 1 et de longueur Pi sur 2, soit ici un carré Meh de 10 meh nessou de côté, et la périphérie du demi cercle tracé avec sa largeur comme diamètre, devient la longueur de cette chambre !

A remarquer que dans ce rectangle, en retirant le carré de sa largeur il reste un rectangle de 10 meh nessou sur 10 meh djeser...


Voici une première analyse, mais tout le travail reste encore à faire....


NB: Le Setjat fait partie des 4 mesures de surface Egyptiennes qui se suivent et qui double la surface par rapport à la précédente, le Sa, l'Heseb, le Remen et le Setjat.

Le Setjat est comparable à un carré de 100 meh nessou de côté, le Remen, la moitié de le surface du Setjat, l'Heseb la moitié de surface du Remen et le Sa la moitié de surface de l'Heseb,
jeanfrancoiswarein@gmail.com
Haut

Jean François
Site Admin
Messages : 2187
Inscription : 18 Juin 2018, 18:28

Re: Petra Qasr El Bint !

  • Citer

Message par Jean François » 02 Juin 2024, 22:35

Il ne faut jamais dire jamais !

En effet, le point central, qui fait naître carrés et cercles et toutes ces figures sauf une, le carré du mur interne, joignant le point de croisement du mur et de la cloison intérieure me rappelait intuitivement quelque chose...

C'est bien évidemment l' angle de 72° !

Angle du Pentagone et l'existence de rapports dorés d'autant avec son étoile intérieure....

Il semblerait que l' espace entre les colonnes, de gauche Ă  droite est successivement 10, 11, 15,11,10 meh nessou !


Qasr Al Bint Setjat 18 A.JPG
(Cliquer sur l'image )

NB: Le carré Meh est une unité de surface de 10 meh nessou de côté, la meh nessou, c'est 0.5236 mètres.
jeanfrancoiswarein@gmail.com
Haut

Jean François
Site Admin
Messages : 2187
Inscription : 18 Juin 2018, 18:28

Re: Petra Qasr El Bint !

  • Citer

Message par Jean François » 06 Juin 2024, 12:15

Extrait de l'étude de l'équipe Française...( "Mission Française à Petra" page 295 https://hal.science/hal-01448351/document )

''Unité de mesure
D’après les mesures prises sur des blocs isolés et les éléments en place de la baie sud et des niches,
il semble que l’unité de mesure utilisée sur cet ensemble soit le pied romain de 0,296 m. Les mesures de
0,29/0,30 m (1 pied), 0,44/0,445 m (1 pied 1/2), 0,59/0,60 m (2 pieds), et leurs multiples s’y retrouvent
de manière récurrente, mais cette hypothèse doit encore être vérifiée. Rappelons que l’unité de mesure
utilisée pour la construction du Qasr al-Bint est la grande coudée égypto-palestinienne de 0,525 m''


Je ne comprends pas pourquoi le fait de considérer la grande coudée Egypto-Palestinienne pour l'édifice et le pieds romain pour les blocs isolés, l'hypothèse de rapport harmonique par quadrature ne soit pas envisagée par nos chercheurs...

Je ne comprends pas pourquoi...Mais je comprends Ă  cause de quoi !

Un carré d'une coudée Egypto-Palestinienne de côté a même surface qu'un cercle de rayon d'un pied romain !

C'est élémentaire pour un sculpteur qui a reçu quelques restes de transmission orale et gestuelle...

C'est alors à la portée de nos chercheurs qui n'ont plus qu'à se baisser pour ramasser les noix eux aussi !

Ramassons les noix et par transdisciplinarité, cela ira beaucoup mieux pour le monde et sa reconnaissance.
jeanfrancoiswarein@gmail.com
Haut

Jean François
Site Admin
Messages : 2187
Inscription : 18 Juin 2018, 18:28

Re: Petra Qasr El Bint !

  • Citer

Message par Jean François » 06 Juin 2024, 16:38

Qasr Al Bint Setjat 20 A.JPG
( Cliquer sur l'image)

Que voyons nous ici !

Très simple, à gauche un carré bleu surface, qui n'est autre qu'un carré Surface Meh, qui détermine aussi le Naos au milieu du temple, puisque cet autre carré Meh s'appuie cette fois sur le contour extérieur du mur qui forme notre grand carré.

Ce carré Meh de gauche dessine la largeur de cette chambre, mais aussi sa longueur, puisque le côté du carré Meh pris comme diamètre d'un demi cercle, la périphérie de ce demi cercle devient la longueur de cette chambre...

Mais ce qui est à gauche n'est point exactement à droite, subtilité de la vraie symétrie ( Qui ne signifie pas dans son sens premier rigoureusement égal de par et d'autre, tout comme notre visage ne l'est pas... )

Symmetria en grec, n'est ce pas Proportion ?!

A droite, autre rectangle, pas de mĂŞme largeur, mais presque de mĂŞme longueur !

Prenons sa diagonale et considérons la comme l'hypoténuse de valeur 5 d'un triangle 3/4/5

Le côté 4 de ce triangle, si nous en faisons un carré, la diagonale de ce carré, sera la largeur de notre rectangle, geste simple et rapide deux arcs de compas.

En Pas Sépu Akkadien la diagonale fait 10 Sépu, ou 20 Aslû Babyloniennes, la largeur sera donc 2 fois la racine de 8 Sépû !

Et nous aurons une longueur de 8.24 Sépû, presque semblable à la longueur de rectangle de la partie gauche !

Rappelons que le grand carré des contours externes des murs a une surface de 36 carrés Meh !

Nous verrons tout cela dans une tentative de mettre en lumière les premiers gestes de conception, gestes planifiés, l'Iter créateur de Qasr Al Bint...

Bien sûr nous n'avons ici en référence qu'un dessin sans cotation écrite, une seule échelle, avec ses imprécisions, mais des constantes apparaissent de plus en plus, nous avançons....

Ici le Naos vu de plus près
Qasr Al Bint Setjat 19..JPG
( Cliquer sur l'image )

Cela nous rappelle le carré Meh trouvé à sainte Mère de Dieu à Ani, clef de compréhension des premiers gestes !

NB: Le cercle rouge est ici le cercle qui a permis de positionner l'angle de 72°, Le suivant en bleu est le cercle de même surface que le carré du contour externe des murs du temple, le suivant toujours en bleu le cercle de même périmétrie.
jeanfrancoiswarein@gmail.com
Haut

Jean François
Site Admin
Messages : 2187
Inscription : 18 Juin 2018, 18:28

Re: Petra Qasr Al Bint !

  • Citer

Message par Jean François » 08 Juin 2024, 01:57

Cette après midi ensoleillée, tout en descendant Mons en Pévèle en vélo de course à 70 km/h, les boyaux gonflés à sept bars, mes boyaux de la tête pensant que je ferai évidemment mieux la prochaine fois, le vent dans les narines et les oreilles en aérofreins, je me demandais s'il ne fallait pas revenir sur le contour carré des murs intérieurs, pas suffisemment développé depuis le commencement de cette rubrique.

Qasr Al Bint 5X11 Y.JPG
( Cliquer sur l'image)

Comment n'y avais-je pas pensé plutôt !

55 meh nessou !

Qasr Al Bint Setjat 18 A.JPG
(Cliquer sur l'image)

C'est 5 fois 11 meh nessou, 11 meh nessou qui sont l'écartement entre deux colonnes gauches et deux colonnes droites de la façade du temple !

Le carré du mur extérieur, c'est 36 meh surface, soit des carrés de 10 meh nessou de côté, nous rappelant les 2 Meh du sol de la chambre du roi de la grande pyramide à Gizeh.

Côté 11 meh nessou, n'est ce pas cette fois la chambre de la reine, sa longueur au sol, qui fait de plus 10 meh nessou de largeur, toujours dans la grande pyramide et toujours à Gizeh !

11 meh nessou c'est aussi la largeur de la base de la voute de Sudama Ă  Barabar !

Notre carré intérieur fait donc 25 surfaces carrés chacune de 11 meh nessou de côté !

Qasr Al Bint 5X11 B y.JPG
( Cliquer sur l'image )


Ils se répartissent en 10 carrés au Nord et les 15 carrés au Sud qui déterminent alors la surface au sol du sanctuaire, un rectangle de proportion 5 sur 3 !

Qasr Al Bint 5X11 A Y.JPG
( Cliquer sur l'image)

Petit zoom sur le sol du sanctuaire !

Ce rectangle touche le fond du Naos et prend une partie de l'épaissseur des murs


Qasr Al Bint 5X11 C Y.JPG
( Cliquer sur l'image)



Pourquoi 55 meh nessou....

Périmétrie du carré 4x55 = 220 meh nessou!

Cercle de même périmétrie 220 meh nessou...mais aussi 70 meh nessou de diamètre !

Le 22/7 Archi connu d'Archimède...

Nous avons aussi mis le cercle de même surface que le carré intérieur !

Son rayon, c'est 55 pieds Romains !

La mission Française devrait aussi ramasser les noix puisque nous voyons la présence de la meh nessou qui est aussi la coudée Egypto-Palestinienne et la présence du pied Romain, dit le Pes.

En toute harmonie !
jeanfrancoiswarein@gmail.com
Haut

Jean François
Site Admin
Messages : 2187
Inscription : 18 Juin 2018, 18:28

Re: Petra Qasr El Bint !

  • Citer

Message par Jean François » 10 Juin 2024, 00:44

Qasr Al Bint Setjat 18 A.JPG
( Cliquer sur l'image)

10+11+15+11+10

C'est l'espace entre les colonnes...

15 meh nessou au centre et de part et d'autre 21 meh nessou, puisque 10+11, curieusement 22 Kûs Sumériennes, 11 mètres aussi !

Qasr Al Bint 57 B.JPG
( Cliquer sur l'image)

Ce carré de 21 meh nessou de côté, visant le centre des colonnes, semble poser le mur du temple.


Qasr Al Bint 57 A B.JPG
( Cliquer sur l'image)
jeanfrancoiswarein@gmail.com
Haut

Jean François
Site Admin
Messages : 2187
Inscription : 18 Juin 2018, 18:28

Re: Petra: Qasr El Bint Far'Un !

  • Citer

Message par Jean François » 10 Juin 2024, 16:41

https://sketchfab.com/3d-models/the-qsa ... 6acbe2ed18


Très intéressant pour mieux visualiser ce qui reste de Qasr Al Bint et de beaux restes.

Avec la souris, nous pouvons observer l'ensemble sous tous les points de vues !
jeanfrancoiswarein@gmail.com
Haut

Répondre
  • Aperçu avant impression

10 messages • Page 1 sur 1

Revenir vers « Asie »

Atteindre
  • CatĂ©gories du forum
  • ↳   Architecture
  • ↳   Afrique
  • ↳   Architecture de l'Egypte ancienne
  • ↳   GĂ©omĂ©trie de la pyramide de KhĂ©ops
  • ↳   La petite Chapelle de SĂ©sostris 1
  • ↳   Gizeh : disposition gĂ©omĂ©trique des pyramides
  • ↳   La pyramide d'Abu Rawash : Redjedef
  • ↳   L'enceinte de Djeser bâtie sur PI ?
  • ↳   Anciennes mesures de surface
  • ↳   A la recherche du Cadastre ...
  • ↳   Les chapelles de SĂ©sostris 1er
  • ↳   La pyramide de Meidoum
  • ↳   le complexe d'Amenemaht III
  • ↳   La chapelle rouge de Karnac
  • ↳   Les chapelles d'albâtre
  • ↳   Le tombeau de Toutânkhamon
  • ↳   KhĂ©phren
  • ↳   MykĂ©rinos
  • ↳   Europe
  • ↳   La cathĂ©drale de Chartres
  • ↳   Notre Dame de Paris
  • ↳   Stonehenge
  • ↳   Chambord
  • ↳   AmĂ©riques
  • ↳   Asie
  • ↳   Australie
  • ↳   Arts visuels et kinesthĂ©siques
  • ↳   Afrique
  • ↳   AmĂ©riques
  • ↳   Asie
  • ↳   Australie
  • ↳   Europe
  • ↳   la peinture et les 3 tables
  • ↳   LĂ©onard De Vinci
  • ↳   La Cène
  • ↳   L'Annonciation
  • ↳   Sandro Botticelli
  • ↳   La naissance de VĂ©nus
  • ↳   L'Annonciation de Botticelli
  • ↳   La Calunnia di Apelle
  • ↳   Piero Della Francesca
  • ↳   Ecrits
  • ↳   Afrique
  • ↳   Textes hiĂ©roglyphiques
  • ↳   AmĂ©riques
  • ↳   Australie
  • ↳   Asie
  • ↳   Europe
  • ↳   En vrac
  • ↳   Musique
  • ↳   Afrique
  • ↳   AmĂ©riques
  • ↳   Asie
  • ↳   Australie
  • ↳   Europe
  • ↳   Sciences et techniques
  • ↳   Afrique
  • ↳   AmĂ©riques
  • ↳   Asie
  • ↳   Australie
  • ↳   Europe
  • ↳   Sciences Humaines
  • ↳   Afrique
  • ↳   AmĂ©riques
  • ↳   Asie
  • ↳   Australie
  • ↳   Europe
  • ↳   Hors sujets en vrac
  • Espaces, formes et contours Espaces, formes et contours
  • Le fuseau horaire est rĂ©glĂ© sur UTC+02:00
  • Supprimer tous les cookies du forum
  • Nous contacter

DĂ©veloppĂ© par phpBB® Forum Software © phpBB Limited

Traduction française officielle © MaĂ«l Soucaze

PRIVACY_LINK | TERMS_LINK