Notre Dame ! - Espaces, formes et contours

Espaces, formes et contours

Architecture moderne, ancienne, égyptienne, géométrie, harmonie

Accéder au contenu

  • Raccourcis
  • FAQ
  • Connexion
  • Inscription
  • Espaces, formes et contours Espaces, formes et contours CatĂ©gories du forum Architecture Europe Notre Dame de Paris

Notre Dame !

Répondre
  • Aperçu avant impression
40 messages
  • 1
  • 2
  • Suivant
Jean François
Site Admin
Messages : 2187
Inscription : 18 Juin 2018, 18:28

Notre Dame !

  • Citer

Message par Jean François » 11 Juin 2022, 00:56

Réussi à trouver quelques mesures faites au laser 3D par Andrew Tallon.

C'est précieux et va nous permettre de tenter un commencement d'analyse de Notre Dame.
jeanfrancoiswarein@gmail.com
Haut

Jean François
Site Admin
Messages : 2187
Inscription : 18 Juin 2018, 18:28

Re: Notre Dame !

  • Citer

Message par Jean François » 12 Juin 2022, 13:30

Notre Dame...

Andrew Tallon avait heureusement pris au laser 3D toutes les mensurations de la Dame...

Grâce à cette référence, la reconstruction à l'identique de la cathédrale après l'incendie dévastateur a été rendue possible.

Nous le remercions chaleureusement, la belle Dame lui doit sa renaissance aujourd'hui.

Il est si difficile d'obtenir des mesures au millimètre près, je n'y ai pas accés...

Heureusement un article de Tallon compare le chœur de Notre Dame et celui de la cathédrale Saint Etienne de Bourges, grâce au mesure laser 3D.

Il y joint deux images du plan de l'hémicycle du choeur avec les mesures de Notre Dame et de Saint Etienne de Bourges...enfin des mesures sur lesquelles nous pouvons nous appuyer.

Nous commencerons par les hémicycles du choeur d'abord, puis nous nous étendrons aux demi cercles périphériques
Tallon Notre Dame de Paris 1 (2).PNG
( Cliquer sur l'image)



Retenons dans un premier temps la mesure de l'hémicycle du Choeur de Notre Dame soit 6.65 mètres de rayon
Tallon Bourges (2).PNG
( Cliquer sur l'image)

Retenons pour l'instant aussi la mesure de l'hémicycle du choeur de saint Etienne de Bourges, 7.53 mètres de rayon !

Nous allons utiliser le geste du carré Meh tout comme pour le Parthénon, la Tholos de Delphes, Boscodon, les grottes de Barabar etc... à nouveau reporté 4 fois...
Choeur  ND et Bourges (3).PNG
(cliquer sur l'image)

Voici le geste du carré Meh reporté quatre fois en carré !

Choeur ND et Bourges (2).PNG
(cliquer sur l'image)

J'ai tracé le cercle de la Tholos de Delphes qui le contient...entre autres
Choeur ND et Bourges 1 (2).PNG
(cliquer sur l'image)

Très simple!

L'hémicycle du choeur de notre Dame, demi cercle rouge, bouclé en un cercle entier rouge aussi, ce cercle a même périmétrie que le carré de 4 Meh surface.

Soit un 6.66 mètres pour une mesure donnée au laser 3 D de 6.65 mètres, au centimètre près...


Choeur ND et Bourges 2 (2).PNG
(cliquer sur l'image)

Nous inscrivons l'hémicycle du chœur de Notre Dame dans un carré...
Choeur ND et Bourges 3 (2).PNG
(cliquer sur l'image)

Ce carré engendre un cercle de même surface, le demi cercle bleu devenant l'hémicycle du chœur de Saint Etienne de Bourges !

Mesure donnée au laser 3 D, 7.53 mètres et par notre tracé 7.523 mètres à 7 millimètres près....

Bientôt les bas côtés en hémicycle autour du choeur...

A Paray le monial, la valeur rajoutée est à la circonférence, ici pour les chœurs gothiques, la valeur en meh nessou est rajoutée au rayon.

Valeur relevée pour Notre Dame 6.65 m, 12.42 m, 18.19 m et 23.96 m de rayon.



Par le tracé 6.6666 m auquel nous ajouterons à chaque fois 11 meh nessou, 12.42626 mètres, plus 11 meh nessou 18.185 mètres, plus 11 meh nessou 23.945468 mètres.

Troublant !

Surtout que Saint Etienne procède de même !

Mesure donnée 7.53 m, 13.80 m, 20.07 m !

Par le tracé 7.523 m, plus 12 meh nessou 13.80 m, plus 12 meh nessou 20.08 m !

Trou noir...

NB: Petit rappel

La meh nessou ( Coudée royale) fait partie des quatre coudées Egyptiennes, meh nessou, meh cheri, meh remen, meh djeser.

Le Meh est une mesure de surface Egyptienne, c'est un carré de 10 meh nessou de côté, mais aussi un rectangle long d'1 coudée sur 100, centième partie du Setjat Egyptien (l'aroure).
jeanfrancoiswarein@gmail.com
Haut

Jean François
Site Admin
Messages : 2187
Inscription : 18 Juin 2018, 18:28

Re: Notre Dame !

  • Citer

Message par Jean François » 14 Juin 2022, 01:12

O Notre Dame, je ne puis penser Ă  toi sans avoir Ă  l"esprit le sanctuaire de Boscodon.

Boscodon a en effet une surface intérieure, Chœur, Transept et Nef semblables dans leur somme à la surface d'un carré de 60 pieds romains de côté...ou à un cercle de 100 empans de diamètre. viewtopic.php?f=7&t=203#p4029

Notre Dame, tu n'es pas semblable textuellement Ă  Boscodon puisque la surface de ton Choeur, du Transept et de la Nef n'ont pas les mĂŞmes proportions entre parties que le sanctuaire de Boscodon.

En effet ton choeur si on lui donnait une valeur simple serait exactement en surface le nombre Phi, ton transept ne serait autre que le nombre 2 et enfin ta Nef( narthex compris)le nombre Phi carré.

Mais alors que serait pour toi Grande Dame l'unité, 1, puisque la somme de Phi, 2 et Phi carré constituent ton sanctuaire intérieur ?

O Notre Dame, l'unité, le 1 se trouve à Boscodon, cet humble sanctuaire qui n'a pas ta magnificence mais autant ta magnifique science...

Pour toi aussi Notre Dame, Dieu conçu de son empan 100 fois reportés, le diamètre d'un cercle du ciel qui, descendu sur terre prit la forme d'un carré de même surface de 60 pieds romains de côté, soit 17.724 mètres et d'une surface de 314.16 mètres carré, soit la surface exacte de la somme du chœur du Transept et de la Nef de l'humble sanctuaire de Boscodon et de ses moines qui t'on offert ce module trouvé dans leur prière.
.
Module fois Phi sera ton Choeur, module fois 2 sera ton transept et module fois Phi carré sera ta Nef( et son petit narthex, porte de la vie)

314.16 X 1.618 = 508.31 mètres carré sont bien la surface de ton Chœur !

314.16 X 2 = 628.32 mètres carrés la surface de ton Transept !

314.16 X 2.618 = 822.47 mètres carré, surface de ta Nef !

La somme des parties constituantes 1959.1 mètres carrés

C'est un carré surface de 150 pieds romains de côtés...et pour le cercle tombé du ciel qui a même surface, un diamètre de 250 empans de la main de Dieu :D

Qui est donc le maitre d'oeuvre de Boscodon qui construisit le sanctuaire en 1142 ?

Notre Dame c'est 21 ans après...

Le premier maître d'oeuvre de Notre Dame ne serait-il pas passé à Boscodon auparavant ?

Notre Dame Rapports surface (2).PNG
( Cliquer sur l'image)
jeanfrancoiswarein@gmail.com
Haut

Jean François
Site Admin
Messages : 2187
Inscription : 18 Juin 2018, 18:28

Re: Notre Dame !

  • Citer

Message par Jean François » 14 Juin 2022, 21:45

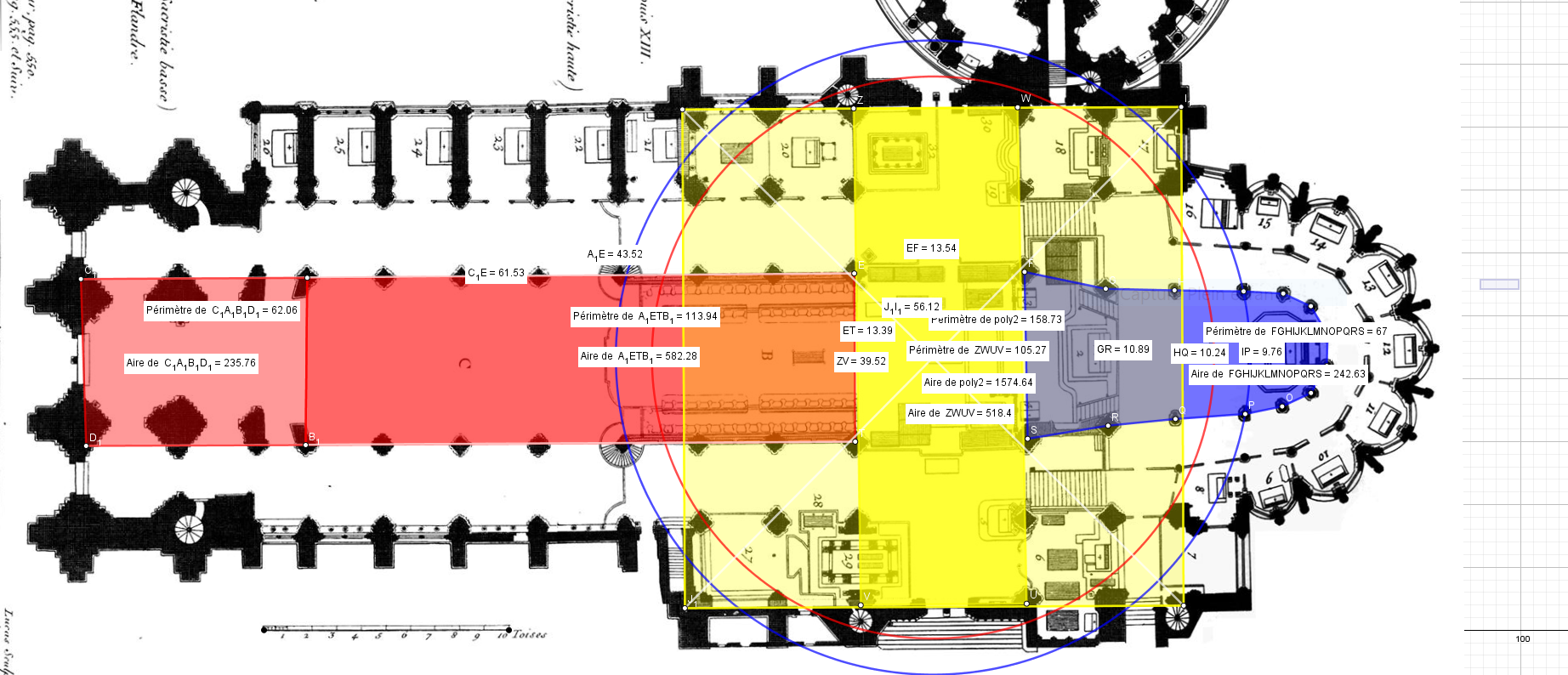
Oublié de préciser que le périmètre de la Nef de Boscodon donne un des côtés de la Nef de Notre dame, dans le découpage evidemment des surfaces telles que le shéma les montre sur le plan ci dessus.

21.7+21.7+7.55+7.55= 58.5 mètres, côté Nord de la Nef plus le Narthex de Notre Dame.


La surface intérieure de l'édifice entier, sans les chapelles entre les contreforts rajoutées bien plus tard, est tout simplement 10 modules de Boscodon multipliés par la racine de 2 !

Et la totalité avec les chapelles, c'est 50 modules divisés par Phi carré.

Le périmètres du Chœur, c'est le petit stade Egyptien, 100 mètres ou 500 empans.

Le périmètre du Transept, c'est un petit stade plus 1/5 de petit stade, 120 mètres ou 600 empans

Le périmètre de la Nef 750 empans

J'en mange mon chapeau...

NB: Supprimé les deux schémas de quadrature, pas assez précis et mal placés, nous verrons mieux en continuant à ramasser les noix.
jeanfrancoiswarein@gmail.com
Haut

Jean François
Site Admin
Messages : 2187
Inscription : 18 Juin 2018, 18:28

Re: Notre Dame !

  • Citer

Message par Jean François » 15 Juin 2022, 00:55

Notre Dame rapport surface (2).PNG
(Cliquer sur l'image)

VoilĂ  !

C'est plus clair

Attention Phi, deux et Phi carré sont des surfaces et certainement pas des mesures de longueur....

Doinc, résumons !

314.16 X 1.618 = 508.31 mètres carré sont bien la surface de ton Chœur !

314.16 X 2 = 628.32 mètres carrés la surface de ton Transept !

314.16 X 2.618 = 822.47 mètres carré, surface de ta Nef !

N'ayons pas peur du 314.16 mètres carrés, c'est simplement un carré de 17.72 mètres de côté, soit 60 pieds romains, ou c'est aussi la surface d'un cercle de 100 empans de diamètre et c'est la surface intérieure du sanctuaire de Boscodon.
jeanfrancoiswarein@gmail.com
Haut

Jean François
Site Admin
Messages : 2187
Inscription : 18 Juin 2018, 18:28

Re: Notre Dame !

  • Citer

Message par Jean François » 15 Juin 2022, 14:40

Notre Dame harmonie 2 (3).PNG
( Cliquer sur l'image )

Le grand cercle mauve qui limite les contreforts extérieurs du Chœur à même surface que la somme intérieure du Choeur, plus le transept, plus la Nef, (Narthex compris)

Soit 1959.1 mètres carrés

314.16 X 1.618 = 508.31 mètres carré sont bien la surface de ton Chœur !

314.16 X 2 = 628.32 mètres carrés la surface de ton Transept !

314.16 X 2.618 = 822.47 mètres carré, surface de ta Nef !

La somme 1959.1 mètres carrés, c'est la surface du cercle qui passe par les contreforts du chœur.

Soit 22451 pieds romains au carré 22451 x( 0.2954X0.2954) soit 314.16 x(Phi+2+Phi carré)

Je rappelle 314.16 mètres carrés, surface intérieure de Boscodon...ou un carré surface de 60 pieds romains de côtés ou son cercle équivalant de 100 empans de diamètre.
Notre Dame Rapport harmonique (2).PNG
( Cliquer sur l'image )

Autre plan
jeanfrancoiswarein@gmail.com
Haut

Jean François
Site Admin
Messages : 2187
Inscription : 18 Juin 2018, 18:28

Re: Notre Dame !

  • Citer

Message par Jean François » 19 Juin 2022, 20:43

314, 16 mètres carrés, c'est bien l'unité de surface Romaine, le Clima ou vergée au moyen âge;

C'est bien un carré de 60 pieds romains de côtés.

C'est bien un Clima qui correspond à la surface intérieure de Boscodons, mais aussi l'unité modulaire de Notre Dame de Paris !

Phi Clima, 2 Clima et Phi carré Clima sont les proportions et les mesures respectives du Chœur, Transept et Nef.

Notre Dame garde des mesures de surfaces modulaires qui ont une racine dans l'architecture romaine.

Bourges, par contre, et avec évidence car les mesures parlent factuellement, ce sont des unités de mesure Egyptienne, évidemment pérennisées par les Coptes, les chrétiens d'Egypte.
jeanfrancoiswarein@gmail.com
Haut

Jean François
Site Admin
Messages : 2187
Inscription : 18 Juin 2018, 18:28

Re: Notre Dame !

  • Citer

Message par Jean François » 19 Juin 2022, 23:39

Actus Quadratus!

L"acre, c'est 4 Clima, soit 120 pieds romains de côté. pour ce carré d'un Actus quadratus.

Un actus quadratus s'accorde en surface avec un cercle de 100 empans de rayon.

Le choix du maitre de Notre Dame est le mĂŞme que celui de Boscodon, la mĂŞme vision et le mĂŞme choix du module surface, 1/4 d' Actus Quadratus, 1 Clima...

Pour les maitres de Chartres et de Bourges, c'est le Setjat, l'aroure, avec son origine Egyptienne de plusieurs milliers d'année, qu'ils ont choisi.

Mais un carré Setjat n' a-t-il pas son cercle de même surface de 100 pieds romains de rayon !

Notre Dame et Boscodon sont alors en quadrature surface avec Chartres et Bourges :D

Actus Tragicus...nous avons tout oublié....

https://youtu.be/xXMUpqSyJJo
jeanfrancoiswarein@gmail.com
Haut

Jean François
Site Admin
Messages : 2187
Inscription : 18 Juin 2018, 18:28

Re: Notre Dame !

  • Citer

Message par Jean François » 23 Juin 2022, 15:47

Le Clima, module surface de Boscodon et de Notre Dame de Paris est très proche des mesures de surface Egyptiennes apparentes à Chartres et à Bourges.

Rappelons nous que le Remen ( Surface) est la surface totale de la Nef et Chœur, sans transept, de Saint Etienne de Bourges.

Le Setjat vaut deux Remen et le Remen vaut deux Heseb, qui vaut deux Sa ( Mesures Egyptiennes que connaissaient très bien les coptes).

Le Remen vaut alors quatre Sa.

Le Remen est au Sa ce que l' Actus Quadratus est au Clima

Ce Sa est la surface proportionnée en rapport au Clima rencontré à Notre Dame.

Le Clima c'est un carré de 17.72 mètres de côté et le Sa, c'est un carré 18.512 mètres de côté.


Le côté du carré Sa est àu côté du carré Clima ce que 47 est à 45 !

Le Sa est au Clima, ce que 47 au carré est à 45 au carré.

Ce qui signifie que 17.725 mètres sont 60 pieds romains et 18.512 mètres seront aussi 60 pieds...mais des pieds du Parthénon...( Largeur du Parthénon...30.85 mètres)

Le clima et le Sa ont d'autres points communs.

La diagonale du Sa est de 50 meh nessou Egyptiennes, et le côté du Clima est de 60 pieds romains...

Si nous traçons un cercle de 50 pieds romains de rayon, le carré de même surface a son côté qui n 'est autre que les 50 meh nessou de la diagonale du Sa.

Pas seulement car le carré Clima a même surface qu'un cercle de 100 empans du moyen âge, de diamètre.

Et n'oublions pas qu'un cercle de 47/45 de rayon engendre un carré de même surface dont la diagonale est Phi au carré( 2.6180339)
jeanfrancoiswarein@gmail.com
Haut

Jean François
Site Admin
Messages : 2187
Inscription : 18 Juin 2018, 18:28

Re: Notre Dame !

  • Citer

Message par Jean François » 13 Juil 2022, 13:17

Autre Cathédrale qui est harmonisée, harmonie révélée en utilisant aussi des unités de surface Egyptienne, tout comme les Romaines, ne nous en déplaise !

Et même Grecque, puisque l'Hexapode avec ses 3.42 mètres carrés est l'exact centième du Sa Egyptien et l'Hectos avec ses 158 mètres carrés, la moitié du Clima Romain !

Chartres !

A en croire les représentations de chevaliers templiers, aurait-elle accueilli l'arche d'alliance ?...

L'Alliance des arcs et des cordes, des surfaces, des espaces, formes et contours, bref, la concorde grâce à la corde et à la Pige !

La somme de la surface du Chœur, du transept et de la Nef à Chartres donnent 2340 mètres carrés, soit 560 mètres carrés plus 830 mètres carré et enfin 950 mètres carrés.

Si nous prenons un 2349 mètres carrés, cette somme réduite à un carré surface, c'est alors que le côté de ce carré divisé par Phi carré nous dessine le côté d'un carré surface Sa( bientôt des dessins)

La Nef de Chartres avec son Narthex, normal car la rosace de la Nef se retrouve en façade, a l'exacte même surface que le transept de la cathédrale de Beauvais.

Mais encore, harmonie quand tu nous tiens, le Chœur de Chartres a la même surface que le Chœur de Beauvais...et d'Amiens( respectivement 560, 563, 564 mètres carrés) !
Beauvais Plan surface (2).PNG
( Cliquer sur l'image)
Beauvais




Beauvais, qui selon son plan entier conservé dans son sol, a comme somme la surface du Chœur plus le transept, s'il lui est donnée la valeur 4, alors sa Nef n'est autre que Pi ou 22/7 !

Plan Amiens Sureface (2).PNG
( Cliquer sur l'image)
Amiens

Ah ! Quand les Chœurs battent en harmonie et synchronicité...

Mais alors pourquoi si nous prenons le dessin de la coupe d'une travée de la Nef de Chartres la surface précise du vide qu'elle délimite fait 436 mètre carrés !

Car si nous les divisons par racine de Phi, nous obtenons un carré Sa parfait !

Tout cela est facilement traçable, nous le ferons bientôt.

La coupe de la nef de Notre Dame dessine un vide de surface d'un Sa !!!

Et Amiens dans tout ça !

Le carré surface égal à la somme de la surface du Chœur, du Transept et de la Nef est cette fois non plus basé sur le Sa comme Chartres mais sur le Clima.

Le côté du carré de Chartres est un côté de carré SA multiplié par Phi carré, le côté du carré d' Amiens est un Clima multiplié par Phi carré.
SA X Phi 4 (3).PNG
( Cliquer sur l'image)

Ici Chartres ! La surface de ce grand carré, avec cette belle croix, est la somme de la surface du Choeur, du transept et de la Nef ( Avec Narthex ici bien sûr, en rose pâle)!
Chartres Plan surface (2).PNG
( Cliquer sur l'image)
Chartres


Que vive l' harmonie !

Nous l'avions perdu...
jeanfrancoiswarein@gmail.com
Haut

Jean François
Site Admin
Messages : 2187
Inscription : 18 Juin 2018, 18:28

Re: Notre Dame !

  • Citer

Message par Jean François » 14 Juil 2022, 01:20

Des Abbayes cisterciennes aux Cathédrales, il n'y a carrément qu'un pas, un pas au carré.

Tout comme à Boscodon, le Chœur-surface, le Transept-surface et la Nef-surface de la Cathédrale sont contenus ensemble dans un carré primordiale, reflet du cercle céleste !

Trinité en unité !

Nous allons maintenant concentrer notre attention sur ces cercles qui se reflètent sur chacun des carrés-surface spécifiques à chaque édifice !

Il y a tant à faire, tant d'analyses comparatives, tant de merveilles qui ont été bâties sur tout notre globe depuis la nuit des temps !

On se sent aujourd'hui bien petit face Ă  ces grandeurs architecturales, pas des grandeurs quantitatives, mais bien celles de l'esprit.

Comment avons nous pu tout oublier, jusqu'au déni !
jeanfrancoiswarein@gmail.com
Haut

Jean François
Site Admin
Messages : 2187
Inscription : 18 Juin 2018, 18:28

Re: Notre Dame !

  • Citer

Message par Jean François » 15 Juil 2022, 01:32

Clima X Phi 4 (2).PNG
( Cliquer sur l'image)

Voici le carré surface qui est la somme de la surface du Chœur, plus le Transept plus la Nef de la Cathédrale d' Amiens !

Le cercle bleu a même surface que le carré.


Côté Sa X Phi carré (2).PNG
( Cliquer sur l'image)

Voici le carré surface, somme de la surface du Chœur, plus le Transept, plus la Nef de la Cathédrale de Chartres.

Le cercle bleu est ici le même que le cercle d' Amiens, tracé simplement avec la diagonale du carré Sa qui devient son rayon.

Harmonie quand tu nous tiens !

NB: Ces deux images ne sont pas à la même échelle, le clima étant plus petit que le Sa... vais essayer d'y remédier demain
jeanfrancoiswarein@gmail.com
Haut

Jean François
Site Admin
Messages : 2187
Inscription : 18 Juin 2018, 18:28

Re: Notre Dame !

  • Citer

Message par Jean François » 15 Juil 2022, 12:46

Rappelons nous de l'Hexapode et de l'Hectos Grecs...

l'Hexapode et l'Hectos, nous pouvons affirmer et c'est factuel, que 100 Hexapodes sont un Sa Egyptien et que 2 Hectos sont un Clima Romain et 8, un Actus Quadratus.

Curieusement le lien entre ces deux mesures de surfaces Grecs sont aussi entre deux Cathédrales de notre moyen âge, Chartres et Amiens, et pour une surface délimitée par un carré qui contient la somme de leur Chœur, Transept et Nef, ce qui n'est pas rien !

Nous avons depuis quatre siècles séparé nos mesures de surface des champs et forêts de nos habitations, de nos architectures.

Ce n'était pas le cas en Egypte, ni au moyen âge.

Nous ne pensons plus par les harmonies de surface, ni périmétriques, cela n'a plus de sens pour nous aujourd'hui, nous laissons les normes d'ingénierie architecturale penser pour nous et les autres mesures de surface, mis à part le mètre carré, reléguées aux vaches, aux patates et aux forêts.

Quand aux mesures, le mètre a tout absorbé, règne en tyran, est devenu une barrière intellectuellement infranchissable pour analyser les architectures du passé, d'autant que nous ne lui trouvons aucun rapport avec ce passé.

Pourtant il est présent dans tout geste architecturale depuis des lustres par les harmonies surfaciques et périmétriques, par le nombre d'or et son carré, par les racines de 2, 3, 5, 10 et de Teotihuacan à Chartres, de Guizeh à Barabar, d' Izumo à Notre Dame de Paris etc...

Puisqu'il est géodésique, tout comme les mesures du monde depuis des temps immémoriaux, déjà dans la Meh nessou Egyptienne conçue bien avant les mastabas Egyptiens.

Allons nous rester encore longtemps dans ce déni, reléguer au hasard, au pifomètre, la création des merveilles passées de notre humanité, leur magnifique universalité !

La concordance d'un art, d'une science et d'une conscience que nous enlevons à nos pairs et pères du passé pour mieux faire régner notre modernité et notre domination présente sur le monde passé et présent ?

C'est cela ?
jeanfrancoiswarein@gmail.com
Haut

Jean François
Site Admin
Messages : 2187
Inscription : 18 Juin 2018, 18:28

Re: Notre Dame !

  • Citer

Message par Jean François » 17 Juil 2022, 15:41

Le Couronnement...cathédrale de Reims !
Plan Reims scanné 2 (2).PNG
( Cliquer sur l'image)

Nous nous sommes toujours demandés pourquoi la cathédrale de Reims a une Nef si longue...

Peut être pour compenser un Chœur si court !

Mais alors quelle pensée compense et compense quoi ?

La surface bien sûre !

Le choix du maître de Reims est semblable au Maitre d'Amiens !
Clima X Phi carré (2).PNG
( Cliquer sur l'image)

la somme des surfaces des Chœur, Transept et Nef de chacune peut être réduite à un même carré !

Nous avions un carré surface de 2158 mètres carrés pour Amiens et nous avons maintenant 2150 mètres carrés pour Reims !

Si le Maitre choisit un Chœur court, il compense la Nef pour obtenir son carré Clima dont le côté doit être multiplié par Phi carré pour obtenir son carré de 2150 mètres carrés.

Le choix de Phi carré est primordial, car c'est Phi carré qui est la clé du passage de l'empan du moyen âge à la Meh nessou Egyptienne, coudée qui par quadrature du cercle donne au cercle de même surface que le carré de la coudée le rayon en pied Romain.

Clef harmonique, clef de sol et de soleil, harmonie des sphères !

2150 Reims, 2158 Amiens, le carré Clima Phi 4 est de 2153.25 mètres carrés

les plans dessinés ne sont pas parfaits, ma tête à couper qu'en mesurant sur place ils s'y approchent de très près tout deux.

Et surtout grâce à ces surfaces nous constatons, et c'est factuel, que la mesure du pied Romain est bien de 0.2954 mètres, tout comme le Shi Tang Chinois, et nous donne bien avec 60 pieds Romains de côtés 1 Clima de 314.16 mètres carrés.

Allons voir à saint Denis maintenant, et plus encore à Laon, et nous comprendrons peut être pourquoi le chœur a été rallongé un siècle plus tard, aussi long que la Nef, au point de supprimer l'hémicycle du chœur et de le finir en miroir aussi carré que l'entrée de la Nef....
jeanfrancoiswarein@gmail.com
Haut

Jean François
Site Admin
Messages : 2187
Inscription : 18 Juin 2018, 18:28

Re: Notre Dame !

  • Citer

Message par Jean François » 18 Juil 2022, 18:16

Cathédrale de Laon !
Laon Plan Surface (2).PNG
( Cliquer sur l'image)

Curieusement prenant la surface du Chœur du XIII -ème siècle, additionnons le au Transept puis à la Nef, Transept et Nef ayant même surface exacte, nous obtenons un carré de 1800 mètres carrés.

Si nous tenons compte du nombre d'or au carré, au cœur de ce carré, en d'autres termes que nous divisons alors sa surface par Phi carré, ce qui revient à diviser le côte du carré par Phi, nous obtenons un merveilleux 26.18 mètres, soit 50 meh nessou Egyptienne, ou la diagonale d'un carré de surface SA Egyptien !

Si c'est la diagonale d'un carré SA...c'est donc ?

Un Heseb Egyptien...bien répondu...puisque 26.18 mètres correspond à son côté, carré de départ qui avec rabattement au compas et le nombre d'or fait naitre le carré de la somme des surfaces du Chœur, Transept et Nef de la cathédrale de Laon !!!
Heseb Ă  Laon (2).PNG
( Cliquer sur l'image)

Soit une surface de 1794.305 mètres carrés.

Nous sommes à 1800 mètres carrés avec le dessin paramétré ici présent.

Mais alors quel était le carré correspondant à la somme des surfaces du Chœur, avec son hémicycle, bien plus petit que le Choeur du XIII -ème, du Transept et de la Nef du XII -ème siècle ?

C'est un carré de 441 Hexapodes Grecs, mais c'est aussi un carré de 21 brasses de 6 pieds Grecs du Parthénon de côté, soit une surface de 1511.28 mètres carrés.
Laon Carré Heseb (2).PNG
(Cliquer sur l'image)

Mais nous savons qu'un SA, c'est 100 Hexapodes Grecs :D

Nous sommes à 1509 mètres carrés avec le dessin paramétré ici présent.

21 Orgies de côtés pour ce carré contenant Chœur, Transept, Nef du XIIème siècle, soit la diagonale de l'Heseb plus une orgie !

Cette valeur ajoutée, l'unité nous porte à 21...Le Graal n'est-il pas porté par trois tables et son nombre n'est-il pas...21

Nous percevons à ce stade qu'un édifice est pensé et conçu d'abord par un carré surface sur terre, symboliquement de même surface qu'un cercle céleste.

De ce carré est mis en partage, comme un pain rompu en trois morceaux, le Chœur, le Transept et la Nef !

Voilà la leçon que nous ont donné les Abbayes Cisterciennes, et surtout son joyau le plus humble...L'Abbaye de Boscodon !

viewtopic.php?f=7&t=203#p4029
jeanfrancoiswarein@gmail.com
Haut

Jean François
Site Admin
Messages : 2187
Inscription : 18 Juin 2018, 18:28

Re: Notre Dame !

  • Citer

Message par Jean François » 19 Juil 2022, 21:10

Curieusement...

De quoi en perdre la tĂŞte..

La Basilique Saint Denis conforte magistralement ce que nous pressentions...

En effet mon bon Saint Denis, tu as bien perdu la tête mais pas l' esprit, tout comme les sélénites !

Ton Suger dévoué a bien évidemment donné une direction à ton édifice, mais tout comme Saint Bernard donnera un cap pour le sanctuaire cistercien dans toute l'Europe, pas plus que Saint Bernard, Suger ne sera un Bâtisseur !

Celui qui donne une direction n'a pas la formation et le métier du Maître d'oeuvre, tout comme les moines cisterciens participeront manuellement à la construction de leur édifices, pas à leur conception.

Un Maitre a bien évidemment conçu le protocole de création, les directions harmoniques ne sont pas à la portée d'un religieux car il n'a pas été formé pour cela, il n'a pas reçu les transmissions d'atelier ...

Chacun son métier !

En cela, je suis parfaitement d'accord avec Jean François Leroux Dhuis dans le merveilleux livre des Abbayes cisterciennes, en collaboration avec le photographe Henri Gaud, magnifiques photographies, qui précise que Saint Bernard n'avait pas les connaissances pour être considéré comme le bâtisseur et créateur des sanctuaires cisterciens, et encore moins les moines, même si ces derniers ont mis la main à la pâte !

Saint Bernard, tout comme Suger ne sont ni peintre, ni Sculpteur, ni imagier, ni Maitre de Fabrique, ni architecte, ni Maçon..

Mais des administrateurs, demandeur de construction, producteur de construction et tout comme le producteur d'un film aujourd'hui qui n'est pas le cinéaste, Suger, certes éclairé et cultivé, n'est pas Maître et n'en a pas les compétences...chacun son métier!

Il a simplement choisi les bonnes personnes...

Faire de Suger le créateur de l'Art Ogival...à moins d'être tombé sur la tête, ou de l'avoir perdu...

N'est ce pas mon bon Saint Denis, qui n'a pourtant envoyé personne à la Bastille, et je ne sais si la canonisation aura été pour toi une consolation.

En tous les cas cette Basilique t'est destinée et quelle Basilique !

Je me souviens de la première fois où je l'ai parcouru !

Tout de suite je fus sidéré par l'effet extraordinaire que procure les dernières travées du Choeur qui s'ouvre vers le Transept en entonnoir, tel un pavillon acoustique, puisque les travées suivantes se rétrécissent jusqu'à l'autel.

A la croisée du Transept la sensation physique, et même spirituelle, est unique !

Aucune autre cathédrale ne sait donner ce frisson à cet endroit...seul la musique pourrait le faire !
Saint Denis Choeur.jpg
( Cliquer sur l'image)

Magnificat !
Saint Denis Carré surface au Transept (2).PNG
( Cliquer sur l'image)

Toujours, nous appliquons la somme des surfaces du Chœur, Transept et Nef- Narthex.

La carré obtenu est ici de 1574 mètres carrés... C'est 10 Hectos Grecs !

C'est aussi 5 Clima Romain.

Son tracé est simple puisque 60 pieds Romains fois la racine de 5 nous donne ce côté du carré de 5 Clima de surface correspondant à la somme des surfaces du Chœur, Transept et Nef- Narthex...

Et puis le Magnificat de cette Basilique de Saint Denis est que ce carré de 5 Clima est bien là devant nos yeux, ici en jaune pâle !

A titre indicatif, j'y ai ajouté le cercle en rouge de même surface qui fait bien évidemment 50 empans du moyen âge fois la racine de 5, ajouté aussi son cercle en bleu de même périmétrie !
Saint Denis Nef et Choeur.jpg
( Cliquer sur l'image)
Saint Denis Début Narthex.jpg
( Cliquer sur l'image)
Saint Denis Transept et Nef.jpg
( Cliquer sur l'image)
jeanfrancoiswarein@gmail.com
Haut

Jean François
Site Admin
Messages : 2187
Inscription : 18 Juin 2018, 18:28

Re: Notre Dame !

  • Citer

Message par Jean François » 20 Juil 2022, 00:27

Rappelons nous pour Notre Dame nous avions déterminé les rapports qui existent entre la surface du Transept et celles de la Nef-Narthex et du Chœur.

Nous sommes partis du Transept en lui attribuant la valeur arbitraire 2 ( Pas tant que cela pour Notre dame puisque le carré surface de chaque partie, Choeur Phi x 1 Clima, Transept 2 x 1 Clima et Nef, Phi carré x 1 Clima)

Ce qui déterminait en rapport la valeur Phi pour le Chœur et la valeur Phi carré pour la Nef.

Et pour Saint Denis qu'aurions nous !

Si nous donnons la valeur 2 pour la surface du Transept, pour la Nef et le Narthex( jusqu'Ă  la Rosace) c'est Pi.

Pour la Nef uniquement, c'est Pi/racine de 2

Pour le Chœur, ce sera Phi carré/ racine de 2

BientĂ´t Amiens, Laon, Beauvais, Chartres, Reims....et bien d'autres...

Et puis nous ouvrirons un sujet pour chacune, tant de merveilles à redécouvrir !

NB: Si mettre Pi et Phi dérange certains nous pouvons alors le remplacer par 22/7 et racine de Pi par 39/22 et Phi par 55/34 et Phi carré par 55/21, car les termes Pi net Phi sont apparus nominativement bien plus tard, ce qui ne change rien aux fait et constatation ...
jeanfrancoiswarein@gmail.com
Haut

Jean François
Site Admin
Messages : 2187
Inscription : 18 Juin 2018, 18:28

Re: Notre Dame !

  • Citer

Message par Jean François » 20 Juil 2022, 00:52

Et Reims !

Si la surface du Transept est toujours 2 (le Transept de Reims a la même surface que celui de Notre Dame et vérifie donc qu'il est comparable à 2 carrés Clima en surface, 2 x 1 Clima)

Le Chœur! Racine de Phi( Racine de Phi x 1 Clima)

La Nef ! 2 racine de Pi ( 2 x racine de Pi x 1 Clima)
jeanfrancoiswarein@gmail.com
Haut

Jean François
Site Admin
Messages : 2187
Inscription : 18 Juin 2018, 18:28

Re: Notre Dame !

  • Citer

Message par Jean François » 20 Juil 2022, 01:07

Amiens !

Surface Transept toujours 2

Chœur: 4/3

Nef: racine de Pi

NB Rectifié mon erreur, car pour Amiens si la proportion avec 2 pour le Transept est possible, par contre ne se vérifie plus comme facteur du Clima....faut calmer sa joie.

.
jeanfrancoiswarein@gmail.com
Haut

Jean François
Site Admin
Messages : 2187
Inscription : 18 Juin 2018, 18:28

Re: Notre Dame !

  • Citer

Message par Jean François » 20 Juil 2022, 15:28

Mais alors pourquoi 2 ?

Pour le Transept !

Parce qu'il y a Nord et Sud pour le Transept, et que l'Est et l'Ouest sont en partage avec le Chœur et la Nef !

Le transept est un Nord et un Sud, il est 2 en 1 ! ;)

Et la Cathédrale est 3 en 1, donc quatre directions rassemblées à la croisée du Transept.

Qui n'est pas appelé croisée de la Nef ou du Chœur !

Bourges n'en a pas, Nef et Chœur ne sont pas croisés par le Nord et le Sud !

Quelle cause ?
Bourges vue aérienne.jpg
( Cliquer sur l'image)
jeanfrancoiswarein@gmail.com
Haut

Jean François
Site Admin
Messages : 2187
Inscription : 18 Juin 2018, 18:28

Re: Notre Dame !

  • Citer

Message par Jean François » 21 Juil 2022, 18:51

Plan Rodez (2).PNG
(Cliquer sur l'image)
Rodez DRAC_OCCITANIE_fonds_mieusement_7DRAC33.jpg
(Cliquer sur l'image)
Rodez_-_Cathédrale_de_Rodez_-01.jpg
(Cliquer sur l'image)

Cathédrale_interieur Rodez.jpg
(Cliquer sur l'image)



Quimper 1 (2).PNG
( Cliquer sur l'image)

Cathédrale_Saint-Corentin_de_Quimper-1520.jpg
(Cliquer sur l'image)

Quimper_(29)_Cathédrale_01.jpg
(Cliquer sur l'image)



Toutes deux, Quimper tout comme Rodez, je me suis posé deux questions, car visuellement ces questions se posent !

La première, les murs des transepts sont alignés face aux colonnes, j'ai donc fait passer le dessin du rectangle du Transept de ces deux Cathédrales par les milieux de murs, sauf les murs Nord et Sud qui limitent l'espace intérieur.

La deuxième, nous prenons Nef et Narthex ou Nef tout court ?

Nef tout court pour les deux !

Avec ces deux réponses ces deux Cathédrales ont le privilège d'avoir leurs surfaces Chœur, Transept et Nef...

En toute égalité !

Chacune a la surface du Chœur égale au Transept, lui même surface égale à celle de la Nef !

Attention, ces deux Cathédrales ne sont pas égales entre elles!

Et si nous donnons encore au Transept pour chacune le nombre 2 comme pour les autres, c'est aussi 2 pour leur Choeur et 2 pour leur Nef

Nous reviendrons en détail sur ces deux magnifiques sanctuaires...Que de merveilles !
jeanfrancoiswarein@gmail.com
Haut

Jean François
Site Admin
Messages : 2187
Inscription : 18 Juin 2018, 18:28

Re: Notre Dame !

  • Citer

Message par Jean François » 21 Juil 2022, 19:59

En attendant, l'honnêteté intellectuelle va nous couter peut être le beau Phi, beau Deux et beau Phi carré pour Choeur, Transept et Nef surfaces de Notre Dame !

Puisqu'à la lumière de toutes les autres, nous avons fini par prendre le centre des colonnes et le centre des murs qui leur font face !

Et Sisyphe repart pour un tour, roulez Jeunesse !
ND Surface corrigée (2).PNG
( Cliquer sur l'image)

Un temps pour la réflexion...

Peu être ces deux visions des parties constituantes seraient complémentaires !
jeanfrancoiswarein@gmail.com
Haut

Jean François
Site Admin
Messages : 2187
Inscription : 18 Juin 2018, 18:28

Re: Notre Dame !

  • Citer

Message par Jean François » 22 Juil 2022, 01:13

Notre Dame rapport surface (2).PNG
( Cliquer sur l'image)

Si uniquement l'intérieur des murs du Transept, sans tenir compte des piliers, détermine l'espace intérieur du transept, Nef et Chœur s'y rattachant...

Alors nous avons bien un Choeur valant Phi Clima, un Transept 2 Clima et une Nef Phi carré Clima...

Le rĂŞve !

Mais, mais, mais !
ND Surface corrigée (2).PNG
( Cliquer sur l'image)

Si tous les centres des piliers déterminent les frontières du Chœur et de la Nef, alors il faut qu'aussi les centres des piliers et leurs prolongements passent par les centres des murs du Transept !

Et cela change tout !

Puisque le Transept a une surface plus importante et que la Nef et le Chœur verront leur surface diminuer !

Et c'est maintenant 2049.21 mètres carrés pour les surfaces du Chœur-Transept-Nef, remarquablement proches de 600 Hexapodes Grecs, ou plus simplement 6 Sa Egyptiens

Si çà c'est 6 Sa, c'est aussi 1 Remen plus 1 Heseb !

Et Notre Dame rejoint Saint Etienne de Bourges par les mêmes unités surfaces.

600 Hexapodes, ou 6 Sa ?

Si nous avons 600 Hexapodes, c'est 145 pour le Chœur, 240 pour le Transept, 215 pour la Nef, soit 600 Hexapodes !

Mais...Rien n'est sur !
jeanfrancoiswarein@gmail.com
Haut

Jean François
Site Admin
Messages : 2187
Inscription : 18 Juin 2018, 18:28

Re: Notre Dame !

  • Citer

Message par Jean François » 22 Juil 2022, 15:48

Nous ne sommes pas sûr...

Approfondissons, ne laissons rien sans utiliser la lanterne.
Meh et Hexapodes 1 (2).PNG
(Cliquer dur l'image)

O la jolie lanterne que nous dessinions à l'école, et cherchions à faire émerger avec une seule ligne brisée et continue, sans lever le crayon de son support!

O la jolie enveloppe, où est ce le pli fermé qui vient de s'ouvrir sur un carré de ciel bleu!

Ce pli n'est rien d'autre que la racine des verbes impliquer, compliquer, appliquer, expliquer, rappliquer, dupliquer, répliquer !

"Pli selon Pli" selon Pierre Boulez

Que tous les écoliers soient passés par ce tracé n'est pas qu'une anecdote, les éléments de transmission du geste depuis des millénaires peuvent se retrouver dans ces petites capsules temporelles qui traversent l'espace du vivant.
Meh hexapodes (2).PNG
( Cliquer sur l'image)

Voici en jaune et noir le carré Meh surface Egyptien qui est un carré de 10 meh nessou ( Coudées royales) de côté !

Voilà quatre Hexapodes en noirs et bleus, Hexapodes qui a bien la valeur 3.42 mètres carrés pour 1 carré, puisque son côté n'est autre, comme son nom le dit, qu'un carré de 6 pieds de côtés, pied du Parthénon !

8 Hexapodes forment donc un Meh Egyptien !

Ne soyons pas étonnés qu'au moyen âge celui qui connait la pige sait que toutes les mesures anciennes sont toutes liées par le geste que le dessin met toujours en lumière !

Avec une lanterne !

Et il n'y a pas un pli !

Mais le "Don du poème" nous écrirait Mallarmé une nuit en Idumée !

Un carré de ciel Bleu :D


NB: Corrigé l'erreur, n'ayant mis qu'un Hexapode, ce qui aurait été vrai si le carré jaune et noir avait 10 meh nessou de périphérie et non 10 meh nessou de côté...toujours bon de relire...
jeanfrancoiswarein@gmail.com
Haut

Jean François
Site Admin
Messages : 2187
Inscription : 18 Juin 2018, 18:28

Re: Notre Dame !

  • Citer

Message par Jean François » 25 Juil 2022, 23:14

Senlis Plan 2.png
( Cliquer sur l'image)
Senlis
Quimper 5 (2).PNG
( Cliquer sur l'image)
Quimper
(Davantage soigné les découpes que sur le plan précédent, icihttps://www.espaces-formes-et-contours.fr/forum ... &mode=view.)

Nous voyons ici deux Cathédrales, l'une, Quimper, la surface de la Nef est égale à celle du Transept comme celle du Chœur, et l'autre, Senlis, seulement les Transept et Chœur ont la même surface !

Petit résumé bientôt de l'analyse de toutes ces cathédrales comparées à Notre Dame

Et de sacrées surprises en cherchant le carré surface correspondant à la somme Nef-Transept-Choeur, mais aussi le cercle de même surface et de même périmétrie, mais encore le carré et le cercle de même surface et de même périmétrie de chaque partie de cette Trinité.
jeanfrancoiswarein@gmail.com
Haut

Répondre
  • Aperçu avant impression

40 messages
  • 1
  • 2
  • Suivant

Revenir vers « Notre Dame de Paris »

Atteindre
  • CatĂ©gories du forum
  • ↳   Architecture
  • ↳   Afrique
  • ↳   Architecture de l'Egypte ancienne
  • ↳   GĂ©omĂ©trie de la pyramide de KhĂ©ops
  • ↳   La petite Chapelle de SĂ©sostris 1
  • ↳   Gizeh : disposition gĂ©omĂ©trique des pyramides
  • ↳   La pyramide d'Abu Rawash : Redjedef
  • ↳   L'enceinte de Djeser bâtie sur PI ?
  • ↳   Anciennes mesures de surface
  • ↳   A la recherche du Cadastre ...
  • ↳   Les chapelles de SĂ©sostris 1er
  • ↳   La pyramide de Meidoum
  • ↳   le complexe d'Amenemaht III
  • ↳   La chapelle rouge de Karnac
  • ↳   Les chapelles d'albâtre
  • ↳   Le tombeau de Toutânkhamon
  • ↳   KhĂ©phren
  • ↳   MykĂ©rinos
  • ↳   Europe
  • ↳   La cathĂ©drale de Chartres
  • ↳   Notre Dame de Paris
  • ↳   Stonehenge
  • ↳   Chambord
  • ↳   AmĂ©riques
  • ↳   Asie
  • ↳   Australie
  • ↳   Arts visuels et kinesthĂ©siques
  • ↳   Afrique
  • ↳   AmĂ©riques
  • ↳   Asie
  • ↳   Australie
  • ↳   Europe
  • ↳   la peinture et les 3 tables
  • ↳   LĂ©onard De Vinci
  • ↳   La Cène
  • ↳   L'Annonciation
  • ↳   Sandro Botticelli
  • ↳   La naissance de VĂ©nus
  • ↳   L'Annonciation de Botticelli
  • ↳   La Calunnia di Apelle
  • ↳   Piero Della Francesca
  • ↳   Ecrits
  • ↳   Afrique
  • ↳   Textes hiĂ©roglyphiques
  • ↳   AmĂ©riques
  • ↳   Australie
  • ↳   Asie
  • ↳   Europe
  • ↳   En vrac
  • ↳   Musique
  • ↳   Afrique
  • ↳   AmĂ©riques
  • ↳   Asie
  • ↳   Australie
  • ↳   Europe
  • ↳   Sciences et techniques
  • ↳   Afrique
  • ↳   AmĂ©riques
  • ↳   Asie
  • ↳   Australie
  • ↳   Europe
  • ↳   Sciences Humaines
  • ↳   Afrique
  • ↳   AmĂ©riques
  • ↳   Asie
  • ↳   Australie
  • ↳   Europe
  • ↳   Hors sujets en vrac
  • Espaces, formes et contours Espaces, formes et contours
  • Le fuseau horaire est rĂ©glĂ© sur UTC+02:00
  • Supprimer tous les cookies du forum
  • Nous contacter

DĂ©veloppĂ© par phpBB® Forum Software © phpBB Limited

Traduction française officielle © MaĂ«l Soucaze

PRIVACY_LINK | TERMS_LINK

 

 

cron