Bonjour Ă tous
L'enceinte, l'enceinte, l'enceinte, mais il n'y a pas qu'elle!
Elle porte ses enfants, mastabas et pyramides qui sont assemblées comme des poupées russes, plutôt poupées papyrus et mamyrus

!
P2 la pyramide finale contient deux pyramides P1' et P1 qui contient elle mĂŞme le mastabas M3, qui contient le M2, qui contient le M1
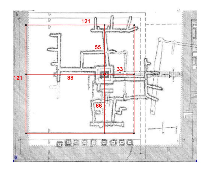
D'abord un carré de 63.../63... mètres, le mastabas M1, mais Lauer a arrondi la valeur en dessous comme nous l'a très bien fait remarquer Jean Jacques, c'est plus un 121 meh nessou qu'un 120 et très certainement la mesure de la hauteur de la pyramide finale P2.
En mettant en rapport M1 et M2 apparaît au grand Ré une quadrature. Le carré M1 engendre un cercle de même surface, et le carré qui contient ce cercle c'est tout simplement le carré M2.
M1 et M2 ont une base carrée, ce ne sera plus le cas de M3, P1, P1' et P2 qui seront des bases rectangulaires toutes dans des rapports égaux de longueur divisée par la largeur
M3=P1=P1'=P2=10/9
Il faut savoir pour ce 10/9, qu'un carré de 9 est contenu dans un cercle qui a la même circonférence qu'un carré de 10!
Le choix de ce 10/9 est donc volontaire pour signifier aussi une géométrie et pas qu'une arithmétique.
Il semblerait que la finale P2 de 231 meh nessou sur 208 meh nessou aurait pour hauteur le côté de base du mastabas M1 soit un rapport de 5/ 2.618, même rapport qu'entre le côté de M1 qui commence et la longueur de P2 qui finit.
A signaler que la largeur de P1', c'est la diagonale de M3, et que la largeur de P2 divisée par la largeur
de P1, c'est racine de 2, et bien évidemment leur longueur aussi!
Cela fait beaucoup de coĂŻncidences!
Il en ressort que le passage de M1 à M2 s’opère avec une quadrature surface, de M2à M3 rapport 10/9 quadrature circonférence et périmètre, car le cercle invisible est la diagonale du carré de 9, donc que M3, P1, P1', P2 ont largeur et longueur en quadrature circonférence et périmètre.
Enfin à noter que le périmètre de P1' égale la circonférence d'un cercle de 275 meh nessou de diamètre soit le côté de base de Meïdoum!
Amitiés
Jean François
PS Corrigé les fautes, ne les vois que deux heures après
