Coricancha, Qurikancha - Espaces, formes et contours

Espaces, formes et contours

Architecture moderne, ancienne, égyptienne, géométrie, harmonie

Accéder au contenu

  • Raccourcis
  • FAQ
  • Connexion
  • Inscription
  • Espaces, formes et contours Espaces, formes et contours CatĂ©gories du forum Architecture AmĂ©riques

Coricancha, Qurikancha

Répondre
  • Aperçu avant impression
21 messages • Page 1 sur 1
Jean François
Site Admin
Messages : 2228
Inscription : 18 Juin 2018, 18:28

Coricancha, Qurikancha

  • Citer

Message par Jean François » 23 Sep 2025, 17:16

J'avais commencé ce chapitre très important de l'architecture du monde, puis je l'ai effacé car je m'enlisais dans des polémiques inutiles à vouloir tout démontrer.

Je vais simplement analyser le plan avec mon regard de sculpteur, ma seule spécialité et compétence.

Ce ne sera évidemment qu'une hypothèse, n'ayant pas le pouvoir et la place de transformes avec une baguette magique les hypothèses en certitudes officielles.

Ce qui est certain c'est que nous n'aurons aucune certitude, seulement la certitude d'avoir ramasser quelques noix.

Voici un schéma fidèle d'après un scanner 3 D ( je mettrai toutes les sources par la suite)



Coricancha 1 b.JPG
( Cliquer sur l'image )
jeanfrancoiswarein@gmail.com
Haut

Jean François
Site Admin
Messages : 2228
Inscription : 18 Juin 2018, 18:28

Re: Coricancha, Qurikancha

  • Citer

Message par Jean François » 23 Sep 2025, 18:45

Coricancha a a.JPG
( Cliquer sur l'image )

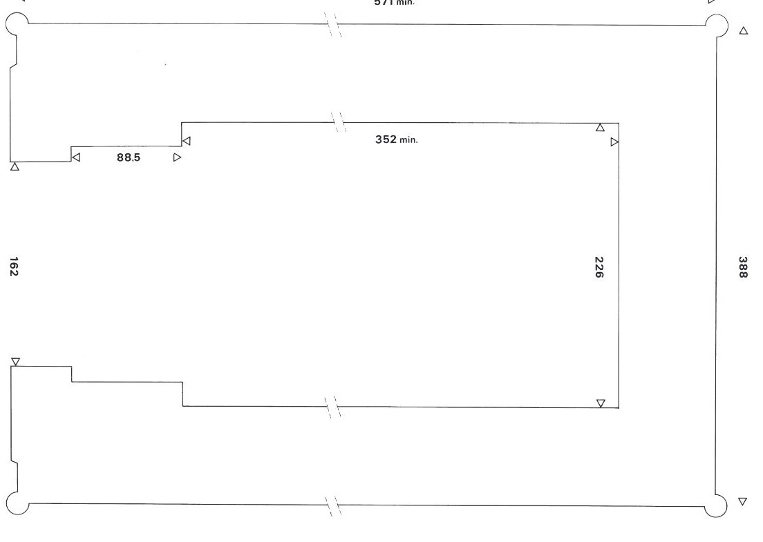
les mesures 3D donnent pour le Nord 87.6 mètres, le Sud 85,6 mètres, l'Ouest 69,4 mètres et l'Est 70.6 mètres ( Cette dernière est cachée par le texte de l'article mais donnée dans un tableau...

https://www.academia.edu/38155939/M_Zi% ... hypothesis

Attention l'angle Nord-Est, ce n'est pas un angle droit, presque, décalage de plus d'un mètre.

Nous avons tracé un cercle avec le côté Est de 70.60 mètres ce qui est très proche de 135 meh nessou Egyptiennes et nous mène tout droit à Chartres. viewtopic.php?f=7&t=262#p4705

Un carré de 135 meh nessou a une diagonale très proche de 100 mètres.

D'autant que les bâtiments R3 et R4 totalisent avec le vide qui les sépare un 31.4 mètres, 60 meh nessou.

De plus ils sont espacés du côté Est de 52.4 mètres, soit 100 meh nessou

En Tlaquetzilantli agraire, issu des Aztèques, ce serait pour 31.4 mètres, 75 Tlaquetzilantli et 100 meh nessou, 125 Tlaquetzilantli.

Selon Farrington il y aurait un Rikra Incas, une supposition car il n'y a pas d'écrit Incas.

Il lui donne une mesure de 1.614 mètres, c'est en effet l'espace entre les Bâtiments R4 et R3.

Pas commode pour tout ramener à ce 1.614 mètre, d'autant que le côté d'un carré de 1.614 mètre à l'exacte surface d''un hexagone de 1 mètre de côté...mais il est vrai que l'intérieur de R4 comme de R 3 est un rectangle doré, largeur 8 mètres et longueur 12.944 mètres et 8 est à 12.944 ce que 1 est à 1.618, nous verrons bientôt ce joli tracé, et l'extrême importance des proportions intérieures et extérieures de ces deux bâtiments empli d'or et de soleil.

En pieds Catalan, sensé être utilisé pour la construction du monastère Dominicain, le côté Nord faisant 87.6 mètres, et si nous prenons 87.5 mètres, divisés par 314.16, nous avons le pieds Catalan à 0.2785 mètres ( Donné à 0.2786 mètre)

Et nous verrons par la suite que le cloitre de l'abbaye a ses côtés Est et Ouest mesurant la longueur exactes des Bâtiments anciens R4 et R3 plus l'entre espace de 1.614 mètres, le maitre d'oeuvre espagnol semblant être plus attiré par les proportions et appareillage de ces extraordinaires bâtiments, que de prendre son pied Catalan.

Mais il a dû être aussi stupéfait que la largeur Nord de tout l'édifice à l'aune de son pied Catalan, était de 314,16 fois.

Que de noix déjà, bien des gestes que nous connaissons !

Observons les bâtiments R4 et R3 plus l'espace entre eux, ils font 31.4 mètres et leur largeur est pile de 10 mètres ( ou 10 Giri Sumériens).

Soit la périmétrie du cercle qui a pour diamètre la largeur de ces deux bâtiments qui devient la longueur de leur ensemble.

Que dire des RB et RA qui en plus avec l'espace entre eux comptabilisent 38.2 mètres ( A Sacsayhuaman, l'ensemble du zigzag des murs cyclopéens fait dans sa partie la plus longue 382 mètres )

38.2 mètres multipliés par Phi carré (Nombre d'or au carré, 2.618) nous servent un 100 mètres, soit la diagonale de notre grand carré fait avec la largeur Est.

Et RD ?!

Longueur externe, 16.52 mètres...Pi fois 5.236 mètres côté d'un carré Meh Egyptien ou Pi fois 2 Phi carré en mètres ou Giri Sumériens
Longueur interne 13.78 mètres...Phi carré fois 5.236 mètres, ou simplement ou 2 Phi à la puissance 4 en mètres ou Giri Sumériens

Tout simplement rapport 6/5 entre longueur externe et interne.

Toujours les mĂŞmes gestes qui nous viennent des temps si lointains.

Je songe...

Et si ces bâtiments à l'appareillage et la coupe des pierres si fabuleux, que même dans mes rêves les plus fous de sculpteur et de tailleur de pierre, je n'ose à peine imaginer, et si c'était une réappropriation de la part des Incas de bâtiments bien plus anciens encore et réactualisés tout comme le Machu Picchu qui laisse lui aussi entrevoir des phases successives de travaux certainement beaucoup plus étirées dans le temps que nous racontent nos gentils faiseurs d'histoire et de récit.

Non que cela serait retiré aux Incas et à leur superbe, qui avaient très certainement bien d'autres qualités encore, une civilisation n'étant pas que des pierres, mais aussi tant d'autres richesses par ailleurs.

Mais il est vrai qu'un regard plus objectif nous laisse voir que des réappropriations sont peut être plus fréquentes que veulent bien nous raconter les faiseurs d'histoire et de récit.
Coricancha b a.JPG
( Cliquer sur l'image )

NB: Dans cette forêt de mesures anciennes, coudée et pieds, je me prends parfois le pieds dans le tapis, et la coudée dans l'œil, c'est en effet 75 et 125 Tlaquetzilantli et non 72 et 120...J'ai corrigé !
jeanfrancoiswarein@gmail.com
Haut

Jean François
Site Admin
Messages : 2228
Inscription : 18 Juin 2018, 18:28

Re: Coricancha, Qurikancha

  • Citer

Message par Jean François » 24 Sep 2025, 00:01

Coricancha AB a.JPG
( cliquer sur l'image )

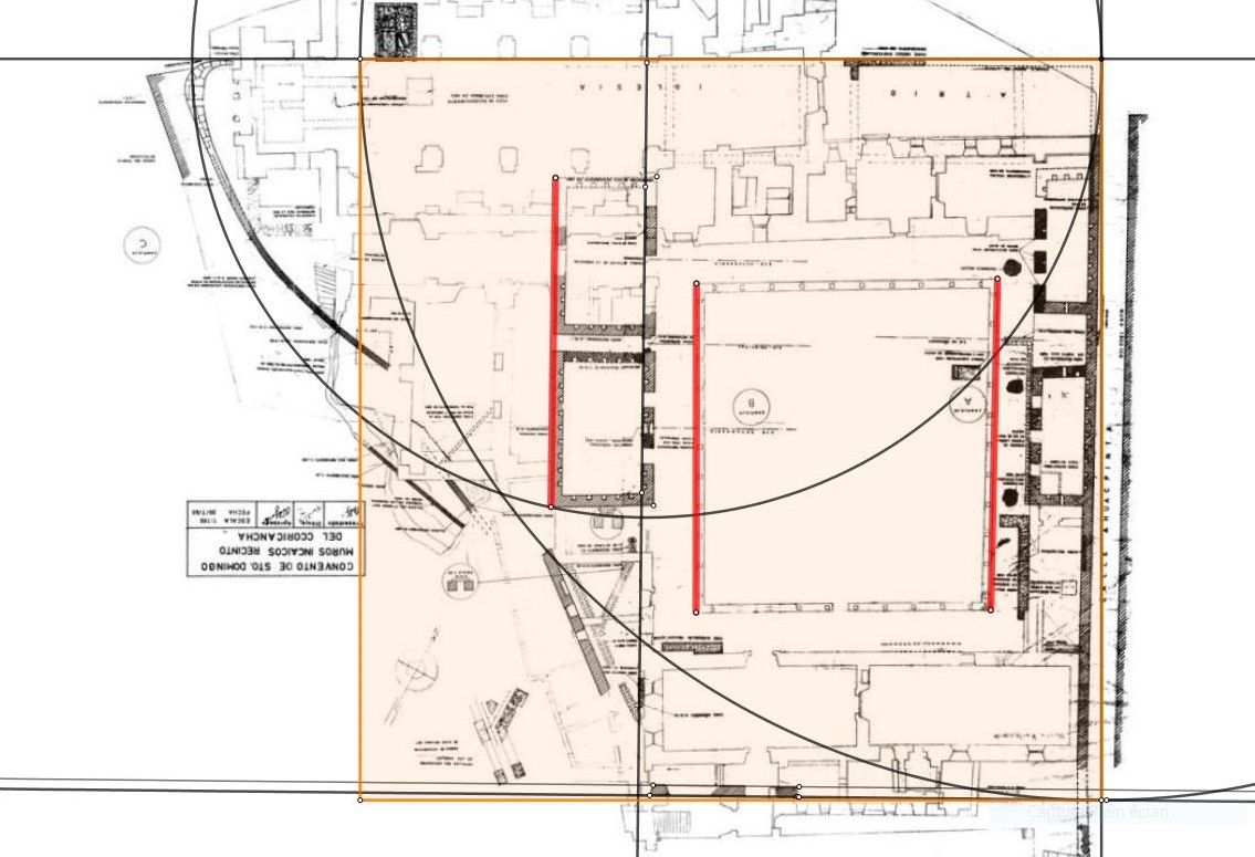
Nous avons ici l'ensemble d Coricancha, la partie ancienne et celle des Espagnols.

On voit nettement les restes attribuées aux Incas qui ont été intégré dans le monastère.

On perçoit à gauche les bâtiments R4 et R3.

Nous avons simplement marqué en rouge la longueur R4 et R3 ainsi que la longueur Ouest et Est du rectangle du cloître qui sont rigoureusement semblables.

31.4 mètres



Coricancha A4 a.JPG
( cliquer sur l'image)

Ce carré ici représenté en couleur est sur le côté Nord et Est de l'enceinte, englobe les Bâtiments R4 et R3 et le cloître.

ce carré est rigoireusemnt un carré de surface de 1 setjat, mesure de surface Egyptienne, ses côtés faisant bien 52.4 mètres

Coricancha f a.JPG
Nous revenons au plan ancien, mise en évidence, dans le carré de la largeur, des rapports dorés.
jeanfrancoiswarein@gmail.com
Haut

Jean François
Site Admin
Messages : 2228
Inscription : 18 Juin 2018, 18:28

Re: Coricancha, Qurikancha

  • Citer

Message par Jean François » 24 Sep 2025, 15:20

Coricancha Trace 4 a.JPG
( Cliquer sur l'image )

C'est ce que nous avions mis en évidence sur le post précédent, nous avons tracé, dans le grand carré dont le côté est la partie Est de l'enceinte soit 70.60 mètres, des rapports de proportion: l'unité, 1/Phi, Phi et Phi carré.

Dans le grand carré, nous percevons cinq carrés.

Les deux plus clairs, chaque côté des carrés est l'unité.

Les deux plus foncés chaque côté est Phi, et faisons un double carré avec eux, nous aurons nos 87,45 mètres pour la plus grande longueur Nord de l'enceinte.

Le grand carré, chacun de ses côtés est Phi carré

Enfin le petit carré central chacun de ses côtés est 1/Phi


Phi étant le nombre d'or, soit le résultat d'un tracé au compas et à la règle, c'est alors racine de 5 plus 1 et le tout divisé par 2



Coricancha 7 a.JPG
( Cliquer sur l'image )


Observons ici au nord le double carré qui détermine la longueur de l'enceinte. Et la séparation des deux carrés qui le forment passe par les murs intérieurs de R 4 et R 3

Un assortiment de mesures et cotations pour se repérer

Le carré Bleu est un carré d'un aroure ancien, tout simplement d'un Setjat Egyptien.

le Setjat Egyptien est un carré de 100 meh nessou, mais aussi un carré de côté 125 Tlaquetzilantli Aztèques qui a donc la même surface.

Pas de mesure étalon Incas fiable aujourd'hui malgré certaines tentatives hypothétiques.
jeanfrancoiswarein@gmail.com
Haut

Jean François
Site Admin
Messages : 2228
Inscription : 18 Juin 2018, 18:28

Re: Coricancha, Qurikancha

  • Citer

Message par Jean François » 26 Sep 2025, 17:27

Coricancha eglise 3 a.JPG
( Cliquer sur l'image )

Les traits oranges ont tous même mesure, 31.416 mètres, 60 meh nessou

Si avec ce côté on forme un carré, la diagonale est bien 44.4289 mètres.

C'est l'intérieur exact de l' èglise de Coricancha...mais c'est aussi l'intérieur de l'èglise d'Aulnay-De- Saintonge que nous sommes en train d'analyser en parallèle ici viewtopic.php?f=7&t=265#p4714









Coricancha eglise 1 a.JPG
( Cliquer sur l'image )

Observons ce carré invisible mais qui a harmonisé l'église espagnol avec Coricancha.

Il arrive juste au bout du bout du bâtiment "Incas' R4, limite mur extérieur, pile !


Coricancha eglise 2 a.JPG
( Cliquer sur l'image )

Les cinq carrés ont chacun comme côtè l'espace entre les centres des colonnes de la nef.

N'est ce pas le carré qui avait guidé le tracé de la Tholos de Delphes, (viewtopic.php?f=7&t=177&start=25#p3837) mais aussi le carré du transept de la cathédrale Sainte mère de Dieu à Ani en Arménie (viewtopic.php?f=5&t=211#p4141) etc...

Nous avions 44.42 mètres pour la distance du bout de la nef, jusqu'au bout du chœur, mais si nous ajoutons le narthex c'est très exactement 52.36 mètres, soit 5 carrés de 10.472 mètres de côté qui sont la largeur entre les centres des colonnes de la nef.

52.36 metres, c'est 100 meh nessou, mais attention, c'est aussi 188 pieds Catalans !

Je commence à comprendre l'origine de ce pied Catalan, D'autant que l'utilisation de 188 pieds Catalan est un multiple de 47, nombre qui permet de tracer la plus belle quadrature au compas et à la règle.
jeanfrancoiswarein@gmail.com
Haut

Jean François
Site Admin
Messages : 2228
Inscription : 18 Juin 2018, 18:28

Re: Coricancha, Qurikancha

  • Citer

Message par Jean François » 27 Sep 2025, 19:02

Coricancha eglise 4 a.JPG
( Cliquer sur l'image )


Le chœur se décale, change d'orientation.






Coricancha eglise 5 a.JPG
( Cliquer sur l'image )


Curieusement c'est la partie Nord qui fait bien 44.42 m, la partie Sud étant à 44.60 mètres, décalage du à une modification volontaire de l'orientation du chœur par rapport à celle de la nef.
jeanfrancoiswarein@gmail.com
Haut

Jean François
Site Admin
Messages : 2228
Inscription : 18 Juin 2018, 18:28

Re: Coricancha, Qurikancha

  • Citer

Message par Jean François » 28 Sep 2025, 01:34

Les Dominicains sont nés de France, malheureusement chasseurs de Cathares, et sont à l'origine de l'inquisition...

Au pire des inquisitions de la fin du XVI ème et du XVIi ème, ils n'y ont pas participé fort heureusement

Ironie du sort le Dominicain Giordano Bruno, Philosophe qui émit pour la première fois le concept de l'infini et la pluralité des mondes dans l'univers, aura plus de cran que Galilée et ne reniera pas sa vision du monde !

Et pour cela sera brulé vif au bucher en 1600...

Quel gâchis que l'histoire de notre monde, et ça continue aujourd'hui, on atteint des sommets.
jeanfrancoiswarein@gmail.com
Haut

Jean François
Site Admin
Messages : 2228
Inscription : 18 Juin 2018, 18:28

Re: Coricancha, Qurikancha

  • Citer

Message par Jean François » 30 Sep 2025, 14:37

Si nous observons les traces anciennes dans la ville de Cuzco avant l'intrusion des espagnols, il y a avec évidence plusieurs façons d'appareiller les pierres et de les assembler. Il n'y a donc pas eu qu'une seule civilisation Inca qui s'y est installé.

Manco Càpac, un envoyé du dieu Viracocha, enseigne l'agriculture aux hommes, et ce juste après le grand déluge qui a évidemment tout dévasté.

Il serait le fondateur de la cité Cuzco.

Apu Huallpa Rimachi serait le maitre d'oeuvre, né en 1400, qui aurait offert ses services à Pachacutec ou Tupac Yupanqui pour la construction de la forteresse de Sacsayhuamán. Il aurait fait les plans et 50 années furent nécessaire pour mener à bien cette entreprise grâce à 20000 hommes en permanence ( Une légende raconte que parmi les 20000, 3000 furent emmenés dans la roulade par une seule pierre qui se détacha de ses liens pendant son transport...?!?!)

Ce Rimachi né en 1400 semblait connaitre la technique d'appareillage, dont nous ne savons encore aujourd'hui comment les réaliser même avec nos moyens modernes, technique d'appareillage très ancienne que l'on rencontre un peu partout dans le monde, en Egypte, à Mycènes, en Amérique, à l'île de Pâques, à Kyoto au Japon etc...

Légende, réalité, puisqu'une autre source semble reporter entre 900 et 1200 dans les mains mêmes de la culture Killke, avant les Incas et une construction alors datée à 1100 après notre ère.

Que dire de ce que rapportaient les Incas qui pensaient que ces remparts avaient été construits par un peuple inconnu dont leur Dieu descendait des étoiles.
Sacsayhuaman mur de grimpette a.JPG
( Cliquer sur l'image )



Et que dire de la "forteresse" de Sacsayhuaman, du moins considérée comme telle, il y a tellement de prise que des chemins d'escalade multiples sont aisés, de vrais murs de grimpe.

Les murs d'enceinte ou de château évitent les prises possibles pour la grimpette. Et puis cette masse de blocs qui parfois pèsent plusieurs dizaines de tonnes, de quel danger, contre quelle force colossale veut-elle se protéger?....
Un travail si colossal, magnifique et d'une précision admirable à la fonctionnalité dérisoire...

Coricancha Rue 6 a.JPG
( Cliquer sur l'image )


Ici une partie du mur de l'enceinte Inca ou pré inca de Coricancha, laissée par les espagnols et pour cause, car vraiment défensive et protectrice, pas de prise, pierres lisses, pas de grimpette...

L'hypothèse que les murs de Sacsayhuàman à Cuzco soit Incas n'est donc pas plus une certitude que de considérer l'hypothèse qu'une autre civilisation bien plus ancienne à l'origine de ces appareillages polygonaux ultra précis des pierres en soit la primeur.

D'autant que beaucoup de ces murs, par exemple au Machu Picchu, qui constituent les assises ont été complétés en hauteur par la suite par des appareillages de pierre nettement plus petites et avec un assemblable qui en comparaison semble bien maladroit.

On peut dire la même chose des bâtiments anciens intégrés dans le monastère Dominicains à Coricancha au XVII ème siècle, la précision extrême de l'appareillage rencontrée nulle part ailleurs en occident et même pas dans nos rêves, peut aussi tout autant avoir été produit par une civilisation bien plus ancienne encore que celle des Incas.

Tout comme les Maurias qui avaient conquis, avec un bain de sang, une région de l'Inde pour s'y installer, découvrant les magnifiques pièces taillées dans les grands rochers baleine, se les ont tout simplement appropriés comme les leurs.

N'y aurait-il pas ce même dilemme dans les plus anciennes pyramides d'Egypte prisent par simple hypothèse pour des tombeaux, hypothèse qui avec la baguette magique est devenu une soi disant certitude ?

les pierres sont difficilement datable car elles ont toutes uniquement l'âge de leur formation naturelle.

Cette intemporalité de la pierre, notre incapacité scientifique à dater une pierre qui a été travaillée, est un énorme levier susceptible d' ébranler beaucoup de récits historiques.

Bien sûr les autres traces, écrites, artisanales, analyses des représentations sculpturale et picturale, nous informent et permette de dater par recoupement, mais notre incapacité à connaitre précisément la date où la pierre a été taillée ne nous permet pas avec certitude de savoir s'il y a eu réappropriation ou pas par une autre civilisation.

Seule l'étude des espaces des formes et contours peut parfois différencier des appareillages de pierres et les gestes créatifs qui les ont précédés.

Il y a eu ici le choc de deux continents, une culture occidentale au berceau européen qui a toutes ses sources dans les grandes civilisations antiques, dont celles de l'Afrique, moyen orient et l'Asie, avec d'autres civilisations Américaines qui ont eu leurs propres développements avec leurs propres sources mais qui pourtant, parmi les plus anciennes, semblent évoquer un universel, une même origine, mais bien plus lointaine dans le temps que nous l'imaginons.
jeanfrancoiswarein@gmail.com
Haut

Jean François
Site Admin
Messages : 2228
Inscription : 18 Juin 2018, 18:28

Re: Coricancha, Qurikancha

  • Citer

Message par Jean François » 03 Oct 2025, 15:51

Coricancha 1 a.JPG
( Cliquer sur l'image )


Nous allons nous reposer sur les bâtiments R4 et R3.

Je n'ai pas de certitude sur les cotations que j'ai trouvé à droite et à gauche, parfois confortés par les plans avec une échelle de mesure.

R4 aurait en extérieur 14.9 mètres de longueur, 10 mètres de largeur et en intérieur 12.95 mètres de longueur et 8 mètres de largeur.

Nous regardons que la partie Ouest car le mur Est est plus court, le mur Nord ne formant pas avec ceux l'Est et de l'Ouest deux angles droits alors que le murs Sud avec ceux de l'Est et de l'Ouest le sont..

Un rectangle de 14.9 sur 10 mètres aura une diagonale de 17.94 mètres.

17.94 mètres est la hauteur de Parthénon, mais aussi trouvé dans Sudama à Barabar et dans bien d'autres lieux. viewtopic.php?f=7&t=100#p2180

17.94 en mètres c'est Phi à la puissance 6, le nombre d'or en mètre, soit 1.618 mètre, multiplié 6 fois avec lui même !

1.618, 2.618, 4.236, 6.854, 11.09, 17.94

Si en effet la R4 fait 10 mètres sur 14.9 mètres, sa diagonale est un Phi6 en regard du module 1 qui serait le dixième de sa largeur.

Module 1 et son extension par tracé du nombre d'or, 1.618, et c'est justement pour ce 1.618 mètres l'espace exact qui sépare R4 et R3...

D'autant que la largeur interne est de 8 mètres.

10 mètres et 8 mètres nous éclairent sur un tracé de carré premier, carré de 10 et 8 modules de 1 mètre ou encore carré de 5 ou 4 modules de 2 mètres.

1 mètre est le sixième du Nindanu Mésopotamien mais aussi le Giri Sumérien ou le Sépu Akkadien, ou 2 Kùs Sumériennes, 2 Ammatû Akkadiennes ou encore, 2 Aslû Babyloniennes, ou 2 Coudées Etrusques, 5 Empans de notre moyen âge, ou notre mètres révolutionnaire (qui n'est pas sorti de nulle part, encore moins d'un chapeau magique de la modernité, enfants prodigues que nous sommes encore).




Coricancha Tracé R4 et R3 5 a.JPG
( Cliquer sur l'image )

Observons

J'ai tracé un carré de 10 avec des modules valant 1 mètre de côté qui est la largeur extérieure de R4.

On devine le carré de 8 qui détermine la largeur intérieure de R4.

On remarque que la largeur intérieure et la longueur intérieure déterminent un rectangle d'or parfait.

D'autant que 12.944 mètres est l'évidence de 6 X1.618 mètre, 1.618 mètre qui est l'espace qui sépare R4 et R3, les deux bâtiments.

Si on prend R4 et R3 avec 1.618 mètre d'espace entre eux, l'ensemble fait bien 31.416 mètres.

J'avais remarqué sur les photos et films que les murs vis à vis de R4 et R3 ne sont pas semblables en épaisseur que les autres murs.

En effet les vis à vis ne font que 0.955 mètres et les autres 1 module d' 1 mètre de côté.

Je préfère cet or spirituel à tous les fantasmes d'or sur les murs intérieurs comme décrits par les conquistadors qui ont d'ailleurs assassiné par cupidité pour s'en emparer.




Coricancha Tracé R4 et R3 6 a.JPG
( Cliquer sur l'image )

J'ai prolongé et ajouté R3 qui a les mêmes dimensions, AH2 fait bien calculé par geogebra 31.416 mètres.

Observons que la longueur intérieure de 12.944 mètres si on lui ajoute 5 modules, nous avons 17.944 mètres soit la diagonale extérieure de R4 comme de R3...

Et n'oublions pas que la longueur de l'enceinte ancienne, en pied Catalan du XVIIème siècle Espagnol, c'est 314.16 pieds Catalans...

Ironie du sort...

L'or, le vrai, les Espagnols l'avaient donc déjà...

Pas besoin d'avoir tout massacré...
jeanfrancoiswarein@gmail.com
Haut

Jean François
Site Admin
Messages : 2228
Inscription : 18 Juin 2018, 18:28

Re: Coricancha, Qurikancha

  • Citer

Message par Jean François » 03 Oct 2025, 19:11

Coricancha R4 et R3 2 a.JPG
( Cliquer sur l'image )

Le rectangle bleu intérieur est bien un rectangle d'or !

Mais peut être plus essentiel encore car l' essence même de toute architectures sacrées:

Largeur de 10 modules pour R4 et entre R3 l'espace prévu entre eux de 1.618 module permet de comptabiliser pour l'ensemble un 31.416 modules, soit le périmètre du cercle de 10 modules de diamètres, largeur extérieure.

Coricancha Tracé R4 et R3 6 a.JPG
( Cliquer sur l'image )


En effet de gauche Ă  droite

1+12.944+0.955+1.618+0.955+12.944+1= 31.416

14.899+1.618+14.899=31.416 modules

le module de composition est donc équivalant au mètre...

Maintenant Farrington avec son Rikra Incas, n'est-il pas détourné par une illusion, ne se fiant qu'à des mesures ou statistique sans pratique des gestes du cordeau et de la règle, langage universel de l'architecture.

Bien évidemment que la longueur interne faisant 12.944, c'est 6 fois l'espace entre R4 et R3, soit 1.618 évidemment très proche de son Ikra de 1.614 mètre.

Rappelons que le rapport entre le côté d'un carré et le côté d'un hexagone qui ont tous les deux la même surface, si le côté de l'hexagone est 1, le côté du carré sera 1.614...

Chapelle Hatchepsout.JPG
( Cliquer sur l'image )


viewtopic.php?f=6&t=224#p4357

On a aussi 1.620 mètres, c'est la porte d'entrée d'une Chapelle d'Hatchepsout....

Ce n'est pas une brasse Egyptienne pour autant ?!?!?!?!?!

Et si ma foi il existait un Rikra Inca véritablement de 1.614 mètre, je serai bien l'homme le plus heureux de la terre, car cela démontrerait que les Incas installés sur des vestiges bien plus anciens auraient synthétisé cette mesure à force d'analyse par le tracé et l'auraient prise comme mesure de leurs bras ouverts sur le monde pour leur propre culture.



PS; Je corrige mes erreurs au fur et Ă  mesure de mes relectures.
jeanfrancoiswarein@gmail.com
Haut

Jean François
Site Admin
Messages : 2228
Inscription : 18 Juin 2018, 18:28

Re: Coricancha, Qurikancha

  • Citer

Message par Jean François » 04 Oct 2025, 00:10

Je suis émerveillé par les mesures et proportions extraordinaires du tracé créateur qui a fait naître les espaces, les formes et les contours en parfaite harmonie de ces deux bâtiments R4 et R3.

Quand on sonde la science de ces concepteurs pour appareiller les pierres et la maîtrise technique absolue de leur réalisation, nous nous rendons bien compte aujourd'hui qu'il nous manque irrémédiablement et définitivement un maillon de transmission fondamental jusqu'à nous.

Ce sont bien des êtres humains comme nous qui les ont conçues et réalisées, à nous de réussir à retrouver le maillon qui nous manque pour comprendre, car sinon nous n'aurons pas d'avenir.

On ne peut se projeter dans l'avenir si on n'a pas compris la leçon que nous donne toujours le passé.
jeanfrancoiswarein@gmail.com
Haut

Jean François
Site Admin
Messages : 2228
Inscription : 18 Juin 2018, 18:28

Re: Coricancha, Qurikancha

  • Citer

Message par Jean François » 04 Oct 2025, 23:10

Coricancha 1 a.JPG
( cliquer sur l'image )





Observons les bâtiments RB et RA !

Avec l'espace qui les séparent, nous avons 38.2 mètres

En le multipliant par le nombre d'or au carré, 2.618, simple tracé au compas, nous atteignons 100 mètres, soit un grand carré de 100 modules de côté.

A Sacsayhuaman les Zigzags s'étendent sur 382 mètres

Multipliés par Phi carré, n'est ce pas 1000 modules, cette fois à l'échelle d'un cadastre ancien.

SacsayhĂ man 2.jpg
( Cliquer sur l'image )



Sacsayhuaman 381.92 mètres.JPG
(Cliquer sur l'image)
jeanfrancoiswarein@gmail.com
Haut

Jean François
Site Admin
Messages : 2228
Inscription : 18 Juin 2018, 18:28

Re: Coricancha, Qurikancha

  • Citer

Message par Jean François » 05 Oct 2025, 23:25

87.5 mètres pour la longueur de l'enceinte Inca c'est curieusement 314.16 pieds Catalans.

Mais cela signifie aussi que 100 pieds Catalans, diamètre d'un cercle, sa circonférence fait 87.5 mètres, la longueur de l'enceinte Inca ou pré Inca.

100 pieds Catalans de 0.2786 mètres, soient 27.86 mètres multipliés par Pi, sont bien 87.52 mètres longueur de l'enceinte Incas.

100 pieds catalans forment le diamètre d'un soleil Inca !

On a beau être Espagnol et Dominicain, on n'échappe pas à la loi universelle de l' harmonie.

A quoi bon avoir volé l'or des Incas, leur terre, leur culture et leur vie.
jeanfrancoiswarein@gmail.com
Haut

Jean François
Site Admin
Messages : 2228
Inscription : 18 Juin 2018, 18:28

Re: Coricancha, Qurikancha

  • Citer

Message par Jean François » 09 Oct 2025, 16:02

Nous allons être limité toujours pour la même raison, manque de cotation informative, les dessins n'étant pas assez précis.

Pour RB et RA, il semble que les dimensions internes sont 10 fois l'espace entre R4 et R3 soit 16.18 mètres, qui nous rappellent la longueur de la Chapelle Achôris en Egypte.

Y aurait-il une brasse de 1.618 mètre appelé Rikra selon Farrington, ce qui ferait 16.18 mètres à l'intérieur de RB et RA, mais Achôris de 16.18 mètres ne correspond pas à la coudée royale Egyuptienne, peut être à la coudée du pied du Parthénon, pieds de 0.30854 mètre donnant une coudée de 7 palmes de 0.54 mètres, coudée que ramèneront du nilomètre Al Mamoun et Al Khwarismi jusqu'à Bagdad pour calculer la méridienne sur la plaine.

Pourquoi pas...Cela nourrira ma conviction que toutes les mesures étalons du monde et de l'histoire sont toutes en relation géométriques et donc géodésique !

162 coudées noires de 0.54 mètres nous mènent à 87.48 mètres pour la longueur de l'enceinte.

Je recherche des cotations complémentaires, trop d'incertitudes pour continuer...
jeanfrancoiswarein@gmail.com
Haut

Jean François
Site Admin
Messages : 2228
Inscription : 18 Juin 2018, 18:28

Re: Coricancha, Qurikancha

  • Citer

Message par Jean François » 11 Oct 2025, 14:40

Meîdoum me revient à l'esprit. Meïdoum est une proportion entre côté de la base et la hauteur de 11/7.

Il ya 9 pyramides en Egypte qui ont la mĂŞme proportion que 11/7, dont la Grande Pyramide.

Mais Meïdoum, autre particularité, la valeur 100 meh nessou est rajoutées.

En effet 175 meh nessou de hauteur, ajoutons 100 et nous voici à 275, qui est bien le côté de base, soit 7/11.

Ici à Coricancha, le module mis en lumière avec les pièces R4 et R3 équivaut à un mètre, épaisseur des murs.

Nous avons 87.5 mètres pour la grande longueur de l'enceinte ancienne de Coricancha.

Si nous en faisons un rayon de cercle, le diamètre sera bien de de 175 modules et la demi circonférence, 275 modules dans un rapport ou Pi serait 22/7.

Rapport 11/7 tout comme pour les neuf pyramides d'Egypte dont la Grande Pyramide, MeĂŻdum, Redjedef, Amenemhat II etc...

Et qu'un cercle de 100 pieds Catalans de rayon a donc une périmétrie de 175 modules ( largeur de R4 étant de 10 modules et intérieure de 8)

Et n'oublions pas que le carré de la largeur de toute l'enceinte a bien une diagonale de 100 modules.

Nous avons là la valeur rajoutée ou soustraite

Mais cela semble marcher pour certaines longueurs avec des Phi modules aussi.

Mais quadrature et nombre d'or, n'est ce pas le levain de toute architecture, archi et tecto, prise Ă  la lettre !
jeanfrancoiswarein@gmail.com
Haut

Jean François
Site Admin
Messages : 2228
Inscription : 18 Juin 2018, 18:28

Re: Coricancha, Qurikancha

  • Citer

Message par Jean François » 14 Oct 2025, 18:01

100 pieds Catalans diamètre d'un cercle, le cercle déroulé est bien la longueur exacte de l'ancienne enceinte pré Inca.

Et puis les cinq carrés, de 10.472 mètres de côté, longueur de la Nef plus le narthex de 52.36 mètres, côté du carré étant l'espace entre les centres des colonnes de la nef, 52.36 mètres sont bien 188 pieds catalan.

52.36/188=0.2785 mètres pour le pied Catalan à 1/10 de millimètre près

L'architecte espagnol a fondu par le geste harmonique le monastère et l'enceinte pré-Inca et ses bâtiments.

Est ce un hasard que toutes les mesures anciennes soient toutes en relation entre elles par le simple geste du tracé géométrique, l'hypothèse que je poursuis depuis 50. ans.

Je n'ai plus de doute aujourd'hui, ce lien harmonique, logique, mis en lumière par les mêmes gestes sur toute la planète n'a qu'une seule raison possible.

Toutes ces mesures étalons sont bien géodésiques, toutes ces mesures démontrent que depuis fort longtemps les humains connaissaient les mesures de la terre, avec des périodes d'obscurité, les oublis pavant allègrement les chemins de notre nature humaine.
jeanfrancoiswarein@gmail.com
Haut

Jean François
Site Admin
Messages : 2228
Inscription : 18 Juin 2018, 18:28

Re: Coricancha, Qurikancha

  • Citer

Message par Jean François » 30 Nov 2025, 19:51

Sacsayhuman Plan et tour.JPG
( cliquer sur l'image)

Les Espagnols étaient émerveillés par cette tour centrale où les pierres étaient assemblées à la perfection.

Un peu comme le reste du rempart de Coricancha, mais ce complexe au dessus des remparts cyclopéens où se serait réfugié la résistance Incas avait-il été construit par les Incas eux mêmes ou était-il une réappropriation d'une construction de civilisation bien antérieure, ce qui nous pourions penser tout autant de Coricancha...

Il semble évident de percevoir ici dans les trois tours, le geste de la duplication du carré et la quadrature surface.

Le satellite n'est pas tout à fait juste au dessus, petite déformation.

Premier cercle 26.18 mètres, second 18.512 mères et le troisième 10 m à l'intérieur.

Rappelons nous les mesures données par Alexéï Vranich les fameux 52.4 mètres, qui sont le double de 26.18 mètres. download/file.php?id=4122&mode=view

Mesurés par satellite 26.07 mètres, 18.45 mètres et 10.07 mètres


26.18 mètres, premier cercle, c'est le sixième de la largeur Est de Pumapunku.

18.512 mètres c'est 26.18 divisés par la racine de 2, simple geste au compas.

Et !e cercle intérieur central de 10 mètres est en rapport avec le plus grand cercle extérieur comme l'unité est en rapport avec le nombre d'or au carré.

Duplication du carré, rapport 1 et Phi carré, et en plus quadrature surface, que du classique en harmonie..:).

Sacsayhuman tour 2.JPG
( cliquer sur l'image)




Sacsayhuman tour 1.JPG
( cliquer sur l'image)




Sacsayhuman 1.JPG
( cliquer sur l'image)
jeanfrancoiswarein@gmail.com
Haut

Jean François
Site Admin
Messages : 2228
Inscription : 18 Juin 2018, 18:28

Re: Coricancha, Qurikancha

  • Citer

Message par Jean François » 02 DĂ©c 2025, 01:04

Premier cercle 26.18 mètres

Le carré qui l'inscrit n'est-il pas aussi un Heseb Egyptien de 50 meh nessou de côté!

Cet Heseb contient avec deux coups de compas le Giri Sumérien et le possible Rikra

Rappelons nous, le Sa, l'Heseb, le Remen et le Setjat, chacun étant le double de la surface du précédent!

Comme le deuxième cercle est la moitié de surface du premier, le premier étant inscrit dans un carré Heseb, le suivant sera inscrit dans un Sa...

Tracé Sacsayhuman a.JPG
( Cliquer sur l'image)


Soit la tour ronde centrale dans un carré de 10 mètres de côté...



Tracé Sacsayhuman 3 a.JPG
( Cliquer sur l'image)

On dépose un carré semblable, nous avons un double carré

Tracé Sacsayhuman 4 a.JPG
( Cliquer sur l'image)

Jouons avec la duplication du carré que nous écrit si bien Platon par la bouche de Socrate.

Tracé Sacsayhuman 5 a.JPG
( Cliquer sur l'image)

La diagonale de la moitié du deuxième carré.

Tracé Sacsayhuman 6 a.JPG
( Cliquer sur l'image)

Rabattement avec le cercle avec cette diagonale comme rayon, proportion dorée.

Possible existence du Rikra Incas, mais qui a peut ĂŞtre une source bien plus ancienne.

Nos cathédrales ont une pige ou la mesure première remonte au temple de Salomon, mais surtout à l'Egypte ancienne, pieds du roi( En fait depuis Charlemagne et c'est lui qui a choisi comme mesure le côté de l'hexagone de même surface qu'un carré d'une meh nessou de côtè, mesure source) et l'empan qui l'accompagne est le cinquième du Giri Sumérien, la mesure de l'espace et du temps, mesure gravée sur le Gudea.

Petit rappelle:

Un hexagone, inscrit dans un cercle, de côté d'1 Kûs Sumérienne ( Moitié du Giri)

La corde, côté de l'hexagone, est tendue par l'arc qui fait lui une meh nessou Egyptienne.



Tracé Sacsayhuman 7 a.JPG
( Cliquer sur l'image)



10 plus 10 plus 6.18 mètres, ou 10 plus 16.18 mètres soit 10 Rikra nous mène à 26.18 mètres, premier cercle.



Tracé Sacsayhuman 2 a.JPG
( Cliquer sur l'image)


Nous avons fait le carré moitié de surface du grand carré.

En Egypte ce grand carré est l'Heseb, sa moitié le Sa !

le Sa qui est la source du choix de la mesure qui bâtit l'acropole, son côté est bien 60 pieds grecs du Parthénon, la mesure que choisit Phidias le concepteur, sculpteur-architecte...( Socle du Parthénon 220/100 pieds grecs de 0.3085 mètre)

Sa, Heseb, Remen, Setjat quatre mesures de surface, duplication du carré, dialectique du rationnel de l'irrationnel parfaitement comprise par les Egyptiens qu'ils transmirent au Grec, ou que les grecs leur volèrent avec leur saint patron Hermès ( Je plaisante...Quoi que).

Le cercle noir donne le geste du passage de 10 mètres à 10 Rikra

Sinon les trois cercles oranges correspondent à ceux mesurés sur l'image satellite.

download/file.php?id=4189&mode=view

download/file.php?id=4190&mode=view

download/file.php?id=4191&mode=view

NB: Complété et corrigé les fautes
jeanfrancoiswarein@gmail.com
Haut

Jean François
Site Admin
Messages : 2228
Inscription : 18 Juin 2018, 18:28

Re: Coricancha, Qurikancha

  • Citer

Message par Jean François » 02 DĂ©c 2025, 15:49

Tracé Rikra a.JPG
( Cliquer sur l'image )


Devenons Inca avec une possible affiliation avec la mesure du Rikra, comme nous l'avions sur nos cathédrales avec la meh nessou.


Soit un carré Rikra, donc de 1 Rikra de côté, nous y faisons le tracé qui met en proportion 1 et Phi carré, 1 et la racine de 5 plus 3 et le tout divisé par 2, soit 2.618.







Tracé Rikra 1 a.JPG
( Cliquer sur l'image )


Ici à l'échelle des cercles des tours, 10 mètres étant la mesure de l'intérieur de la tour centrale.

Tracé Rikra 2 a.JPG
(Cliquer sur l'image )

Mettons nous du côté de l'ancien Egyptien, ou d'un sculpteur-architecte du moyen âge.
jeanfrancoiswarein@gmail.com
Haut

Jean François
Site Admin
Messages : 2228
Inscription : 18 Juin 2018, 18:28

Re: Coricancha, Qurikancha

  • Citer

Message par Jean François » 16 DĂ©c 2025, 16:30

Coricancha fénêtres a.JPG
(Cliquer sur l'image )



Que voit-on?

Nous voyons un trapèze isocèle !

Sa hauteur est le côté d'un carré

Sa base est le côté d'un hexagone qui a même surface que le carré cité.

Son plus petit côté du haut est le rayon d'un cercle qui a même surface que le carré et évidemment même surface que l'hexagone.


Ce sont bien les fenêtres des édifices de Coricancha.

Elles sont les fruits de 3 figures emblématiques mises en harmonie par leur même surface.


Cercle, carré, hexagone ont même surface.

C'est en travaillant dans l'invisible que nous pouvons faire naître le visible.

Parole de Chamane :) d'autant qu'il est amusant de constater que si nous mettons une meh nessou pour la hauteur, 1 pied du roi de France pour la base et 1 pied romain pour le côté opposé nous aurions la même proportion exacte de cette fenêtre.


Coricancha fenĂŞtre et 3 tables 1 a.JPG
(Cliquer sur l'image )



Bien évidemment le parallaxe de la photo n'est pas idéal, trop bas, ce qui rétrécit légèrement le haut de la fenêtre et déforme légèrement la proportion que j'ai obtenu avec les mesures données.



Coricancha fenĂŞtre et 3 tables a.JPG
(Cliquer sur l'image )



Coricancha fenĂŞtre et 3 tables 2 a.JPG
(Cliquer sur l'image )




Coricancha fénêtre et 3 tables 4 a.JPG
(Cliquer sur l'image )


Rappelons que le rapport entre le côté d'un carré et le côté d'un hexagone qui ont tous les deux la même surface, si le côté de l'hexagone est 1, le côté du carré sera 1.614...

Le Rikra de Farrington est de 1.614 mètres...
jeanfrancoiswarein@gmail.com
Haut

Jean François
Site Admin
Messages : 2228
Inscription : 18 Juin 2018, 18:28

Re: Coricancha, Qurikancha

  • Citer

Message par Jean François » 20 DĂ©c 2025, 16:17

Il faut prendre une distance raisonnable avec la mesure étalon d'un civilisation, car ce sont les mesures des pouvoirs par nécessairement des bâtisseurs d'harmonie qui transmettent entre vents et marées, entre millénaires, guerres, famines, épidémies, cataclysmes, religions, nationalisme, la source de notre humanité et sa conscience d'une harmonie universelle.

La mesure de la terre et la mesure de l'homme en harmonie.

Géométria et Anthropométria en harmonie !

C'est mieux qu'une tyrannie des pouvoirs...



Il faut remettre en question l'hypothèse que seuls les Grecs furent les premiers à émettre les mesures de la terre, connaissance qui était élitiste, dans un entre soi privilégié et parfois écrit.

Ils sont les premiers à l'avoir écrit, certes.

Mais il n'y a pas que l'écriture comme langage...

Il y a l'architecture qui défit le temps plus que les écrits...

Car combien d'écrits disparus nous aurez peut être informés que bien avant les grecs, l'humanité connaissait les mesures justes de notre bonne terre matricielle.

Affirmer et cristalliser sur la civilisation grecque uniquement, cette unique première connaissance des mesures de la terre, et que cela ne se soit pas passé avant et ailleurs, ne reste qu'une hypothèse !

La science est questionnement et débat !

Je sais bien que pour nos politiques aujourd'hui la science a dit, point barre pas de débat, on censure.

Outrage Ă  la science !

Outrage à la science que d'affirmer et d'imposer une seule hypothèse sur la date de la connaissance des mesures de la terre, uniquement parce qu'elles ont été écrites.

Il y a une autre écriture qui le dit mieux que les mots.

Les gestes inscrits dans l'architecture, les gestes aujourd'hui invisibles mais que l'on peut décrypter comme une langue ancienne à redécouvrir, gestes invisibles qui ont fait naitre une architecture visible.

Mais aussi la sculpture et la peinture usent de ce vocabulaire des gestes.

Rembrandt "Retour de l'enfant prodigue" hauteur de la toile 2.618 mètres...5 meh nessou ( côté d'un carré, demi diagonale la brasse du degré terrestre, brasse de l'acropole)

Rembrandt avait des objets Incas dans son atelier... Entre autres !


2.618 mètres dixième exact de Muyuk Marka, premier cercle...

( Mais peut être que je me trompe d'éléphant du savoir :D )
jeanfrancoiswarein@gmail.com
Haut

Répondre
  • Aperçu avant impression

21 messages • Page 1 sur 1

Revenir vers « Amériques »

Atteindre
  • CatĂ©gories du forum
  • ↳   Architecture
  • ↳   Afrique
  • ↳   Architecture de l'Egypte ancienne
  • ↳   GĂ©omĂ©trie de la pyramide de KhĂ©ops
  • ↳   La petite Chapelle de SĂ©sostris 1
  • ↳   Gizeh : disposition gĂ©omĂ©trique des pyramides
  • ↳   La pyramide d'Abu Rawash : Redjedef
  • ↳   L'enceinte de Djeser bâtie sur PI ?
  • ↳   Anciennes mesures de surface
  • ↳   A la recherche du Cadastre ...
  • ↳   Les chapelles de SĂ©sostris 1er
  • ↳   La pyramide de Meidoum
  • ↳   le complexe d'Amenemaht III
  • ↳   La chapelle rouge de Karnac
  • ↳   Les chapelles d'albâtre
  • ↳   Le tombeau de Toutânkhamon
  • ↳   KhĂ©phren
  • ↳   MykĂ©rinos
  • ↳   Europe
  • ↳   La cathĂ©drale de Chartres
  • ↳   Notre Dame de Paris
  • ↳   Stonehenge
  • ↳   Chambord
  • ↳   AmĂ©riques
  • ↳   Asie
  • ↳   Australie
  • ↳   Arts visuels et kinesthĂ©siques
  • ↳   Afrique
  • ↳   AmĂ©riques
  • ↳   Asie
  • ↳   Australie
  • ↳   Europe
  • ↳   la peinture et les 3 tables
  • ↳   LĂ©onard De Vinci
  • ↳   La Cène
  • ↳   L'Annonciation
  • ↳   Sandro Botticelli
  • ↳   La naissance de VĂ©nus
  • ↳   L'Annonciation de Botticelli
  • ↳   La Calunnia di Apelle
  • ↳   Piero Della Francesca
  • ↳   Ecrits
  • ↳   Afrique
  • ↳   Textes hiĂ©roglyphiques
  • ↳   AmĂ©riques
  • ↳   Australie
  • ↳   Asie
  • ↳   Europe
  • ↳   En vrac
  • ↳   Musique
  • ↳   Afrique
  • ↳   AmĂ©riques
  • ↳   Asie
  • ↳   Australie
  • ↳   Europe
  • ↳   Sciences et techniques
  • ↳   Afrique
  • ↳   AmĂ©riques
  • ↳   Asie
  • ↳   Australie
  • ↳   Europe
  • ↳   Sciences Humaines
  • ↳   Afrique
  • ↳   AmĂ©riques
  • ↳   Asie
  • ↳   Australie
  • ↳   Europe
  • ↳   Hors sujets en vrac
  • Espaces, formes et contours Espaces, formes et contours
  • Le fuseau horaire est rĂ©glĂ© sur UTC+02:00
  • Supprimer tous les cookies du forum
  • Nous contacter

DĂ©veloppĂ© par phpBB® Forum Software © phpBB Limited

Traduction française officielle © MaĂ«l Soucaze

PRIVACY_LINK | TERMS_LINK