Page 1 sur 3

Achôris

Publié : 09 Nov 2024, 00:45
par Jean François
Akoris reconstitution.jpg
( Cliquer sur l'image )


Une reconstitution...



Chapelle Akoris A.png
( Cliquer sur l'image )

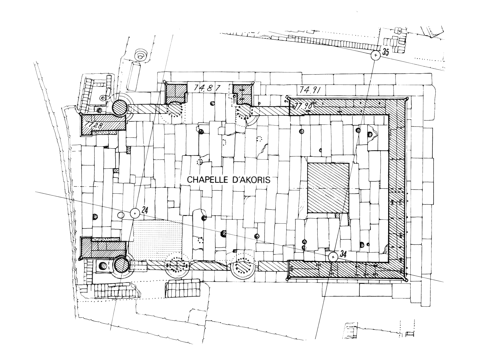
Le plan tracé par Jean Lauffray, nous le remercions.

En observant attentivement, je me suis senti aspiré par ce qui semble être un ajout plus tardif, une porte...

Elle sort de l'espace de la chapelle, au delà de ses colonnes, déséquilibre l'ensemble apparemment pourrait-on croire, mais en fait nous révèle les clefs de la Symmetria !


Akoris carré visible a.JPG
( Cliquer sur l'image )


Le carré m'est apparu, la vérification des mesures confirme.




Akoris grand carré a.JPG
( Cliquer sur l'image )



La tentation de le multiplier, un carré se met toujours en quatre...


Akoris  carré Meh apparent a.JPG
( Cliquer sur l'image )



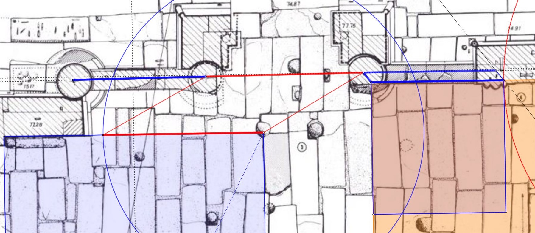
L'entrée principale, une ouverture, pendant harmonique de notre grand carré orange, et s'il vaut cinq trouve ici en proportion un carré bleu qui vaudra notre nombre d'or au carré.

Rapport 5 sur Phi carré

Le carré bleu est notre carré Meh Egyptien !

Et le carré Meh apparu comme ouverture.

L'Opéra ouvre son rideau...

S'il y a un carré Meh visible, c'est que la mémoire de la chapelle d'Hatchepsout hante ici la chapelle d'Akoris, le même sang de la conception coule dans la chapelle d'Achôris...

viewtopic.php?f=58&t=96#p2102


Akoris 3 carrés Meh a.JPG
( Cliquer sur l'image )


Un, deux, trois, soleil....Ré

Trois carrés Meh nous offrent l'espace de la chapelle, sa longueur.

Observons le cercle en pointillé, il est inscriptible dans notre grand carré initiale.

Il a une périmétrie de 60 meh nessou, coudées royales.

Akoris carré quadrature a.JPG
( Cliquer sur l'image )





Justement ce cercle maintenant en trait continue noir, a son alter ego de même surface, le carré vert.

Carré vert qui nous donne les murs extérieurs de la chapelle.


Akoris quadrature périmétrique a.JPG
( Cliquer sur l'image )


Notre cercle noir a un autre alter ego en périmétrie, le carré gris.

Il passe par les centres des colones, le milieux des murs.



Akoris carré inscrit 1 a.JPG
( Cliquer sur l'image )


Le carré blanc n'est-il pas inscrit dans notre cercle noir, n'est-il pas l'intérieur de l'espace de la chapelle.




Akoris cercle terre a.JPG
( Cliquer sur l'image )


Nous avons rajouter le cercle de la terre qui est de même périmétrie que notre grand carré orange !

Millionième partie de la terre !

Akoris mesures a.JPG
( Cliquer sur l'image)


Les mesures, beaucoup de merveilles à mettre au jour, bientôt....

Re: Achôris

Publié : 11 Nov 2024, 22:40
par Jean François
D'après les travaux de Lauffray, il semble que la porte nord, anormale dans une chapelle processionnelle de la Barque, serait bien d'origine.

La reconstitution en 3 D n'est donc pas conforme, pas que cela d'ailleurs....




Akoris porte Nord et sens de la procession de la barque A.JPG
( Cliquer sur l'image)

Re: Achôris

Publié : 18 Nov 2024, 14:36
par Jean François
Akoris Heseb A 1.JPG
( Cliquer sur l'image )


Meh nessou carré, Meh, Cha, Sa, Heseb, Remen, Setjat, Cha-Ta, Itérou surface.
soit un, cent, mille, mille deux cent cinquante, deux mille cinq cents, cinq milles, dix milles meh nessou carrées ( Coudées royales carrées).

Voici les mesures de surfaces Egyptiennes, les plus intelligentes de l'histoire des civilisations humaines

Les 42 nomes en Egypte, sont nommées aussi par leur surface, ce que nous informent les textes hiéroglyphiques sur les murs de la Chapelle Blanche de Sésostris Ier, tous les nomes étant répertoriés selon leur surface respective, selon les unités Setjat, Cha-ta et Itérou surface.

On ne peut comprendre une architecture sans observer avec attention le plan au sol, c'est lui le fondement.

Nous ne sommes pas des oiseaux, nous n'évoluons que sur les sols.

Notre mouvement, notre déplacement dans un espace-surface déterminent le phrasé de ce langage architectural, évidemment selon les proportions de notre corps et son rapport de mesure avec notre bonne vieille terre...

J'ai choisi ici le carré Heseb, son côté vaut 50 meh nessou, soit 26.18 mètres.

On pourrait dire que sa diagonale, qui est aussi le côté du carré Remen surface, vaut 99 meh remen, coudées remen de longueur, coudée de 5 shesep, 5 palmes.

Pourquoi de carré Heseb parce qu'il va nous donner notre carré de départ du tracé de la chapelle d'Akoris et son cercle inscrit.

Cercle qui aura son carré de même aire, son carré de même périmétrie et son carré inscrit, comme nous l'avons vu dans notre premier dégrossissage de cette analyse, carrés qui dessinent l'ensemble de cette chapelle selon rapport et proportion nommés par les grecs, Symmetria.

Akoris Heseb et Sa B.JPG
( Cliquer sur l'image )


Deux arcs de compas dans la surface Heseb fait naitre notre premier carré.

Akoris grand carré a.JPG
( Cliquer sur l'image )


C'est notre premier carré ici reporter sur le plan de Jean Lauffray de la Chapelle d'Achôris.





Akoris Heseb 1 a.JPG
( Cliquer sur l'image )


Le carré et son cercle inscrit, cercle duquel nous sortirons son carré de même surface, son carré de même périmétrie et son carré inscrit.

NB: Nous verrons que j'ai mal placé le carré de même périmétrie dans la première analyse brute de dégrossissage...J'ai aussi changé les couleurs, mais nous verrons bientôt.

Re: Achôris

Publié : 18 Nov 2024, 18:28
par Jean François
Akoris Heseb et Sa.a.JPG
( Cliquer sur l'image )

Un carré Heseb peut nous cacher un carré Sa...

Plus besoin de tracer nos deux cercles pour obtenir le côté d'un carré intérieur Est de proportion 1 en rapport avec le côté du carré Sa qui vaut alors Phi carré.

Suffit de tracer la médiatrice du carré extérieur Ouest inscrit dans la carré Heseb!.


Akoris Heseb Sa et Meh a.JPG
( Cliquer sur l'image )


Nous avons tracé cinq carrés Meh, car aimés, sur le côté Nord de notre carré Heseb.

Trois de ces carrés Meh, ici bleutés, sont la longueur exacte de la Chapelle d'Achôris.


Akoris carré même périmétrie a.JPG
( Cliquer sur l'image )



Ce qui nous permet de tracer 1 coté Meh plus 1/2, qui ne sera autre que le côté du carré ici en vert, de même périmétrie que notre cercle source.

Il ne reste plus que le carré de même surface que nous aborderons plus tard...

Re: Achôris

Publié : 18 Nov 2024, 19:09
par Jean François
Akoris longueur 1 a.JPG
( cliquer sur l'image )

Le plan a été glissé sous les carrés Meh du tracé.

Trois carrés Meh pour la longueur de la chapelle d'Achôris.


Akoris Grand carré ciel sur terre 1 b.JPG
( cliquer sur l'image )


Plan glissé sous le grand carré premier obtenu avec le carré Heseb.

Carré dont le cercle inscrit de 60 meh nessou (coudée royale) de circonférence enfantera trois autres carrés en rapport harmonique.

Akoris carré de séparation des murs est et ouest a.JPG
( cliquer sur l'image )


Le premier de ces carrés, ici en vert, a même périmétrie que notre cercle mère.

Toujours le plan glissé en dessous de notre tracé montre qu'il remplit l'espace qui joint la partie des murs à l'Ouest et celle à l'Est



Akoris carré inscrit est a.JPG
( cliquer sur l'image )


C'est ici le carré obtenu avec le carré Sa, mais aussi la demi surface de notre grand carré premier.

Il dessine parfaitement l'espace au sol de la partie Est, intérieur de ses murs.l



Akoris carré même ssurface a.JPG
( cliquer sur l'image )

Le carré de même surface que notre cercle de 60 meh nessou de circonférence, détermine minutieusement l'espace extérieur des murs de la partie Est, comme le confirme le plan glissé en dessous.


Akoris Longueur a.JPG
( cliquer sur l'image )

J'ai zoomé ici chacun des dessins précédents dans le même ordre.

Akoris Grand carré ciel sur terre a.JPG
( cliquer sur l'image )

Akoris Carré de séparation des mur ouest et est a.JPG
( cliquer sur l'image )


Akoris carré est 1 a.JPG
( cliquer sur l'image )




Akoris quadrature surface 1 a.JPG
( cliquer sur l'image )

Re: Achôris

Publié : 28 Nov 2024, 18:45
par Jean François
Inespéré...
Lauffray Achoris DSCF5005.JPG
( Cliquer sur l'image )


En parcourant le travail de Jean Lauffray, une de ses cotations relevées sur place, donne entre les murs extérieurs sur la largeur de la Chapelle, côté Naos donc côté Est, la dimension suivante:

8.86 mètres !

Un carré de 8.86 mètres de côté est bien de même surface qu'un cercle de 10 mètres de diamètre, 10 Kûs Sumériennes, soit le côté de notre carré initial qui le contient...

2X 8.86 mètres = 17.72 mètres

C'est aussi 60 pieds romains... le côté de l'hexagone du temple de Jupiter à Baalbek.

Baalbek morceau de plans avec cotations a b.JPG
( Cliquer sur l'image )

Baalbek Plan général a.JPG
Cliquer sur l'image )


Mais n'est ce pas aussi...?

Ninna-Ji au Japon !

Nanni a.JPG
( Cliquer sur l'image )


Regarder à gauche la cotation, largeur des piliers !

17.73 mètres, 60 Chi Tang....

Ici aussi nous avons curieusement ce même cercle de 10 mètres qui harmonise grâce à la "Symmetria" Japonaise, tout comme pour Akoris, qui n'est autre que le cercle de même surface que le carré construit avec la largeur du temple Ninna-Ji au Japon.

Re: Akoris

Publié : 05 Déc 2024, 19:20
par Jean François
Magnifique travail de Jean Lauffray....




Pochette Achôris.jpg
( Cliquer sur l'image)




La Chapelle d'Achoris à Karnak

I.Les fouilles, L'architecture, le mobilier et l"anastylose.

Les plans sont très détaillés plus précis que celui que j'avais trouvé précédemment.

Le travail a été fait pierre par pierre, un travail de fourmi.

Plans et élévations, echelle de mesure pour chaque dessin et cotations sur les mesures importantes.

Mais, mais, mais, mais....Le plan de coupe, qui nous permets de voir cette coupe hachurée des murs et colonnes, n'est pas signalé par une ligne sur au moins une élévation, nous informant de la hauteur où elle a été effectuée....

C'est fondamental et cela a été l'objet d'une erreur dans mon premier dégrossissage de l'analyse de la chapelle.




La précision des plans fournis dans ce livre, de 45 cm sur 29.7 cm, dont un d'une meh nessou sur 45 cm, qui permet le travail au réglé à l'ancienne, 10 cm pour 5 mètres, est remarquable !

Mis à part la ligne de coupe qui n'a pas été représentée sur une élévation en correspondance avec les plans.

La précision de ces plans nous permet de bien discerner l'analyse harmonique qu'il a choisi de mettre en évidence, son hypothèse, mais aussi d'en discerner de nouvelles...

Son hypothèse met en évidence le travail d'arpentage, comme nous le verrons par la suite, ce qui est en effet important!

Mais l'arpentage n'est pas le premier geste d'une architecture, l'acte créateur, mais le premier geste de la construction d'une architecture, par la gravure préparatoire du tracé de construction sur le socle.

Mais alors quelles sont les gestes qui ont conçu, pensé, conceptualisé, l'espace, la forme et le contour de cette chapelle pour qu'un traçage puisse être adapté par la suite, soit la phase de l'arpentage qui est déjà la construction, mais pas du tout la conceptualisation....

Au crible de la perfection des relevés et dessins magnifiques de Jean Lauffray et grâce à leur excellence, les possibilités des gestes de la conception se réduisent et donc permettent aux premiers gestes conceptuels et harmoniques de la conception de s'imposer avec évidence.

NB: Toutes mes excuses, j'ai corrigé mon texte qui était très mal écrit, en un texte aussi mal écrit mais un peu plus compréhensible :D

PS: Viens de relire, décidément, laissé deux paragraphes répétés deux fois....J'ai corrigé....Profite pour amener une précision....Un des feuilllés déplié du livre fait bien une coudée royale curieusement, une meh nessou. Pourtant Jean Lauffray fait une analyse de la Chapelle avec une coudée de 0.54 mètres, qui n'est pas la royale, qu'il considère comme un module ( module, selon le terme du romain Vitruve ), coudée en effet émergente chez les grecs surtout, puisque 4 palmes de la coudée de 7 palmes de 0,54 mètres donne un pied de 0.30854 mètre, qui est le pied du Parthénon. Il n'a pas vu non plus que le carrê Meh surface Egyptien a une diagonale de 24 pieds de 0.30854 mètre, ni que le côté du carré Sa a 60 pieds de 0.30854 mètre et qu'encore la diagonale de l' Heseb, 120 pieds et du Setjat, 240....Phidias ayant puisé une part de son savoir chez les Egyptiens. Mais de là à penser qu'il n'y aurait que l'unique coudée de 0.54 pour concevoir cette Chapelle, cela ne fonctionne apparemment que sur quelques côtes et encore que si l'on considère que tout n'est qu'arpentage et arithmétique...Et la géométrie où serait - elle alors! Justement nous verrons qu'au détour et grâce â la géométrie, qui était excellence chez les Egyptiens ( on n' apprend pas au singe de Thot à faire des grimaces) la meh nessou et même l'ensemble des quatre coudées Égyptiennes seront ici présentes.

Re: Achôris

Publié : 06 Déc 2024, 00:19
par Jean François
Les murs extérieurs ne sont pas verticaux, en élévation la coupe du Naos Nord-Sud et Sud-Nord révèle un Naos et un Pronaos de forme trapézoïdale.

J'ai vérifié sur les grands plans dépliables, les mesures et cotations.

Est apparu curieusement et les mesures confirment que les murs du Pronaos peuvent entrer dans le Naos.

Mais surtout bord à bord, non à la hauteur de coupe hachurée mais à la base du socle, ils forment ensembles le contour d'un carré parfait.

Akoris 7.07 A a.JPG
( Cliquer sur l'image )

J'ai amené l'entrée Ouest contre les murs du Naos à l'Est

L'extérieur des murs du pronas contre l'intérieur des murs du naos forment un carré parfait.


Les côtés de ce carré à la base contre le socle font 7.07 mètres chacun.

Ce carré a une périmétrie de 54 meh nessou...


Akoris 7.07 B a.JPG
( Cliquer sur l'image )


En orangée on perçoit mieux la surface du carré.( c'est aussi 3/2 de Nindanu carré en surface, Nindanu, mesure Mésopotamienne)

Re: Achôris

Publié : 10 Déc 2024, 19:24
par Jean François
Achôris 7.07 b 1.JPG
( Cliquer sur l'image)

Attention, la coupe n'est pas au niveau du sol, mais à la deuxième rangée de pierre en hauteur et les murs sont trapézoïdaux très marqués à l'extérieur des murs, faible à l'intérieur.

C'est difficile car nos yeux sont attirés par les archures en traits forts marqués qui semblent être le contour du plan, ce qui n'est absolument pas le cas.

Il faut voir au delà.

Ce que nous avons fait avec ce plan plus récent et précis de Lauffray, mais qui a toujours cette coupe à la deuxième rangée de pierre, non marquées encore par une ligne de coupe sur les élévations, et je ne comprends toujours pas pourquoi...

Observons nos traits rouges, les segments rouges sont tous égaux.

Ils font donc 5 Giri sumériens chacun, mais aussi 5 mètres d'aujourd'hui.


Le carré entier faisant 54 meh nessou de périmétrie, le côté 13 meh nessou et 1/2 ( La Chapelle blanche de Sésostris premier est de 12 et 1/2 meh nessou de côté) que multiplie la racine de 2 nous mènent à 4.998 mères !

meh nessou, Ammatûs, Aslû, Giri, Sépû.JPG
(Cliquer sur l'image )

Si la meh nessou est l'arc d'un sixième du cercle, alors la corde de cet arc est la Kûs Sumérienne et son diamètre le Giri Sumérien.

Toutes les mesures du monde sont en lien par le geste harmonique et non par l'arithmétique.

Les mesures anciennes ne se dissolvent pas sur bureau de change à la banque...

Re: Achôris

Publié : 12 Déc 2024, 19:07
par Jean François
Jean Lauffray ne signale pas la présence de la coudée royale, la meh nessou égyptienne, ni les autres coudées, la petite, la remen et la sacrée.

Rappelons qu'il y a quatre coudées en Egypte, la meh nessou, la meh chery, la meh remen et la meh djeser, soient la royale, la petite, la remen( la seule nommée en égyptien par les Egyptologues, et je me demande encore pourquoi !) et la sacrée....

Personne ne s'y intéresse, personne ne les utilise...

Nous avons aussi longuement argumenté sur ce forum chaque fois que nous avons abordé une chapelle Egyptienne avec une analyse comparée et que le choix de la mesure employée ne se retrouve par nécessairement sur ce qui est directement visible..

Prenons l'exemple d'un carré simple !

Soit des meh nessou, ou meh chery, lremen, djeser sur le côté de ce carré est en effet un choix possible par le scribe des formes et des contours.

Mais tout autant peut être cachée dans la diagonale de ce carré ou dans le cercle de même surface ou périmétrique, et l'on peut avancer sans se tromper, car expérience oblige, que voir apparaitre directement l'étalon est le cas de figure le moins courant.

Considérer que la mesure Egyptienne doit obligatoirement être sur toutes les mesures principales d'une architecture est une erreur grave.

Erreur qui tend à nous faire croire que les Egyptiens ne sont pas précis dans le tracé, au point que certains affirment que la coudée royale varie alors entre 52 et 53 centimètres...Comme un yoyo...

D'autant que d'autres vont jusqu'à la faire varier entre 51 et 54 centimètres

Forcément à chercher tout le temps des valeurs uniquement rationnelles de longueur, décomposables en autant de coudées royales, de ses moitié et tiers, pour que cela rentre dans les clous, au point de modifier carrément la valeur initiale de la coudée, pour que cela corresponde à une simple arithmétique...

Nous montrerons les émergences dans cette Chapelle Achoris de la meh nessou
Achôris et Sa et Heseb 5 a.JPG
(Cliquer sur l'mage)

G1E2 la diagonale ici du carré bleu, c'est 4.44 mètres, qui est aussi la longueur de la petite chapelle de Sésostris premier...

Observons G1G2, le côté de ce carré bleu, c'est 3.14 mètres soit 6 meh nessou...Et c'est ausssi la largeur de la petite chapelle de Sésostris premier...

Pourquoi Jean Lauffray utilise uniquement la partie des colonnes du pronaos et le naos en écartant l'ouverture Ouest et ses murs, comme si elle n'entrait pas dans la danse...Et sans tenir compte de l'intérieur des murs du naos que les deux pilastres mettent en lumière.....

Et il prend aussi une valeur de la coudée de 0.54 mètre, devenue alors module arithmétique répétitif.

Ce qui semble fonctionner pour l'écartement entre colonne, et qui laisse, selon son analyse, des approximations de 2% et ne tient compte ni de l'entrée Ouest extérieur et intérieur, ni de l'intérieur du mur du Naos Est, reste une hypothèse et il y en a bien d'autres.

Pourtant en utilisant les mesures de surface Egyptiennes, un plan étant en premier une surface organisée, la chapelle nait du ventre du carré Heseb....

Achoris et Sa et Heseb 1 a.JPG
(Cliquer sur l'mage)


On peut voir ici le carré Heseb et le carré Sa...



Akoris Heseb et Sa A.JPG
( cliquer sur l'image )
*
Par ce simple jeu de tracer, vieux comme le monde, la longueur exacte de la chapelle se place à la droite de notre petit carré ici né du tracé.

Mais nous avons oublié...


Achôris et Sa et Heseb 4 a.JPG
( cliquer sur l'image )



De plus près, pour mieux voir la longueur de la chapelle au sein du carré Heseb...,

Mais attention, ce n'est pas la coupe qui hachure les murs et colonnes ici qui détermine le plan au sol car elle a été faite après la deuxième rangée de pierre en élévation, suffit d'observer les boudins aux arêtes pour s'en rendre compte.

Le côté du carré Heseb 26.18 mètres, soit 50 meh nessou, reste pour la chapelle 16.18 mètres...

Valeur donnée par Jean Lauffray 16.20 mètres !

Comme c'est étrange...

Re: Achôris

Publié : 15 Déc 2024, 21:52
par Jean François
Avant de remettre en question l'hypothèse de Jean Lauffray utilisant la notion de module selon Vitruve ( Il faudra qu'on fasse un jour un chapitre entier pour mieux comprendre la véritable signification de cette notion de module ! ) et ayant choisi pour cela une coudée de 0.54 mètre, qui serait de surcroit un module répétitif, nous allons observer attentivement sur le plan la partie de la chapelle qui a fait naitre son hypothèse.

C' est la distance entre les colonnes de l'ouverture nord et celle en miroir au sud, sans oublier le pilastre, soient quatre éléments et 3 intervalles, dont deux sont semblables et de rapport 5/6 avec l'intervalle entre les deux colonnes de l'entrée Nord.

Quelles cotations pour ces intervalles !

Le premier entre les colonnes de l'Ouest vers l'Est, est de 2.7 mètres ainsi que celui entre le pilastre et la colonne de l'Est vers l'Ouest qui fait aussi 2.7 mètres en cotation écrite sur le plan.

Celui entre les colonnes de l'ouverture Nord et les colonnes en miroir au Sud, c'est 3.24 mètres.

Ne serait-ce vraiment que la répétition d'un module de 0.54 mètres, 5 fois pour 2.7 mètres et 6 fois pour 3.24 mètres ?

N'y aurait-il pas une cause, une source de gestes davantage soucieux des rapports et proportions, d'harmonie, que la simple répétition compulsive d'une mesure ou d'un module, répétition qui de plus n' harmonise qu'une partie et certainement pas l'ensemble de la chapelle d'Achôris, avec des approximation de plus de 0.20 mètres et une section doré à 2% près selon Lauffray...

NB: Réécrit cette séquence....Décidément passer du langage silencieux du tracée au bruit de l'écriture, je manque de synchronisation...

Re: Achôris

Publié : 15 Déc 2024, 22:30
par Jean François
Achoris et Sa et Heseb 2.JPG
Entrée Ouest !

Le carré Meh Egyptien, 10 meh nessou de côté soit 100 meh nessou carré qui est aussi une ligne de 1 meh nessou sur un Khet, soit 100 meh nessou ( Coudées royales )

Le carré Meh est un carré surface.

La prise en considération des surfaces n'est-elle pas nécessaire à l'analyse d'une composition architecturale ?

Achoris et Sa et Heseb 2.JPG
( Cliquer sur l'image )


Maintenant observons dans le bas, au Sud, l'entre colonnes côté à 2.7 mètres par Lauffray...

Et rapidement observons en haut à gauche de notre carré Heseb de départ, le carré résultant du rapport interne 1 et Phi carré...

Chahar Taq Carré Meh 10.JPG
( Cliquer sur l'image )

Toujours le même geste...

Nous voyons que ce carré fait 5.4018 mètres de diagonale et une moitié de 2.7009 mètres, qui n'est pas nécessairement la juxtaposition d'une mesure qui ferait 0.54 fois 5 ou tout autre modules de cette nature !

Suffit de ramasser les noix que l'arbre harmonique fait tomber sur le plan de la chapelle d'Achôris !

Achoris et Sa et Heseb 2.JPG
( Cliquer sur l'image )

Revenons au carré Meh ici bleuté !

Nous avons fait le geste en son sein, tout comme pour l' Heseb.

1 et phi carré!

Observons le côté du petit carré intérieur qui se soustrait au côté du carré Meh !

Il reste 3.236 mètres et regardons attentivement l'écartement entre les deux colonnes suivantes.

Lauffray a bien côté à 3.24 mètres !

Avons nous alors besoin d'une autre mesure que la meh nessou !

La conception, la création de l'espace, des formes et des contour de la chapelle élaborée par le scribe des formes et des contours est un geste harmonique, pas le pas répétitif de l'arpenteur...

Certes nécessaire mais pour tracer ce qui a déjà été conçu par le scribe des formes et des contours...



Achôris Meh porte Nord a.JPG
( Cliquer sur l'image )


Nous avons placé un autre carré Meh en le posant sur l'axe du milieu exacte de la chapelle.

Il nous donne le commencement de la porte Nord !

( Sur le dessin moins précis au début de ce topic, j'avais mal interprété la coupe avec les hachures les croyant au niveau du sol, du socle de la chapelle, coupe faite en fait à deux rangées de pierre en élévation.)

Achôris boudin porte Nord et carré Meh a.JPG
( Cliquer sur l'image )

Le zoom sur le boudin d'angle visible ici montre qu'il y a bien 5.236 mètres de ce boudin jusqu'à l'axe de la chapelle.

Les noix ramassées sont toujours des meh nessou...



Achoris et Sa et Heseb 1 a.JPG
( Cliquer sur l'image )

Pour remettre en mémoire la chapelle d'Achôris accouchée du carré Heseb !

Re: Achôris

Publié : 17 Déc 2024, 00:41
par Jean François
J'ai tracé un deuxième carré Sa !



Achôris diagonale a.JPG
( Cliquer sur l'image )


Il vient parfaitement s’insérer dans la diagonale du rectangle formé par la largeur extérieur du Naos et la longueur de la chapelle...

Le côté d'un carré Sa Égyptien, unité de surface, c'est 18.512 mètres et diagonale 26.18 mètres, soient 50 meh nessou.

Tout dépend de la largeur du Naos, est-ce bien 9.04 cm

Avec 16.18 mètres et 9 mètres, nous avons 18.514 mètres, c'est vraiment très proche.

Gardons cette correspondance, nous verrons plus tard, car il faudra faire les bons choix et pour cela bien avoir l’embarras du choix pour rassembler le puzzle.

En attendant soulevons tous les lièvres, comme cela le scribe des formes et des contours ne pourra pas nous poser un lapin... :D

Re: Achôris

Publié : 29 Déc 2024, 17:48
par Jean François
Plus de doute possible...

Il n'y a pas de coupe...

Le plan référent a des hachures sur le dessus des murs pour montrer l'état de la chapelle de barque avant toute restauration.

le mur du Naos a sept rangées de pierre en hauteur et le pronaos seulement six rangées, ainsi que l'entrée Nord.

Et je comprends mieux le rectangle isolé sur le mur Sud du naos qui est une pierre unique de la huitième rangée, qui apparaît aussi sur les trois plans joints avec le livre.

De ces trois plans, un seul a des hachures semblables à celles d'une coupe, c'est ce qui m'a perturbé...

De plus sur les boudins au coin des murs, du moins sur l'entrée Nord ( parce que le fruit est le double des autres murs du pronaos et naos qui ont un fruit de 6 centimètres par mètre) les cinq joints ne sont pas représentés, les graphismes ayant des traits en majorité assez épais, il aurait alors fallu les faire trop fins...

Maintenant nous recommençons tout d'autant que nous verrons en concomitance les élévations, ce qui nous fera envisager non seulement des accords possibles de surface, mais aussi de volume.

Mais cela ne veut pas dire qu'il n' y avait pas des chose justes dans nos analyses précédentes, d'autant que nous avions enchaîné avec les nouveaux plans, bien plus détaillés que le premier utilisé.

En d'autres termes, je n'aurai pas du commencer cette analyse sur le plan moins détaillé trouvé sur le site Persee qui est aussi sur le livre, c'est un plan de mise en situation de la chapelle avec son environnement, donc beaucoup moins détaillé, plan intitulé sur le livre, avec aussi des hachures....

KARNAK H.E V.O
Ouest du premier Pylone
Sud sur des rampes portuaires
Chapelle Akoris et ses abords.

Re: Achôris

Publié : 02 Jan 2025, 17:10
par Jean François
Bonne année et bonne santé à tous !

Nous continuons l'analyse en laissant évidemment erreur et errance précédentes qui côtoyaient justesse et évidence, le tout dans un paquet de nœuds qu'on dénouera au fur et à mesure.

A partir de cet instant oublions tout ce que nous avons tenté précédemment, nous n'avions pas le bon plan et suffisemment détaillé !

Prenons le chemin des mesures de surface Egyptiennes riches pour leur enseignement, pour nous qui errons dans le brouillard depuis des lustres illustres. sans même connaitre l'existence des gestes premiers de la composition des espace, forme et contour d'une architecture Egyptienne.

Reprenons comme précédemment, un carré de surface Sa inscrit dans un carré de surface Heseb !
Akoris Heseb et Sa.a.JPG
( Cliquer sur l'image )


Nous traçons toujours la moitié de chaque carré dans laquelle nous ajoutons une diagonale, geste à la source de l'existence de la chambre du roi de la grande pyramide, dont le plan est double carré et l'élévation un carré avec la diagonale dans sa moitié qui élévée au compas en devient sa sublime hauteur.( Je rappelle que la chambre du roi est bien en plan deux carrés Meh surface, et que l'implantation au sol de toute la pyramide est bien 1936 carrés Meh et donc 968 surfaces au sol de la chambre du roi.)
Achoris colonnes a.JPG
( Cliquer sur l'image )

Regardons l'espace entre deux colonnes Nord- Ouest et Sud- Ouest, espace côté à 2.7 mètres par Jean Lauffray.

Aussi entre le pilastre et la colonne Nord Est et le pilastre et la colonne Sud Est
Heseb et Sa a .JPG
( Cliquer sur l'image )

La simple rencontre du carré Sa et de l'Heseb nous donne cet espace sur un plat d'or.( Ici le trait blanc )

Hesb et Sa 1 a.JPG
(Cliquer sur l'image )

Ici agrandi sur un autre dessin, où nous avons aussi tracé le carré Meh, suffisait de ramasser les noix....Mais avec la complicité de Thalès...

Regardons à l'extrême droite le segment F2D qui mesure 4.88 mètres, c'est exactement l'ouverture du pronaos, coté à 4.88 mètres par Jean Lauffray.

Re: Achôris

Publié : 03 Jan 2025, 22:53
par Jean François
Achôris colonnes 5 a.JPG
(Cliquer sur l'image)

A l'Ouest dans l'espace entre murs du pronaos un simple carré Meh orangé nous sert sur plateau d'or les 3.24 mètres ici en bleu.

En nous servant de la largeur intérieur du naos entre ses murs, apparaît un carré bleuté, qui nous mènent aussi aux 2.7 mètres tracé en rouge, autre espace entre colonnes.

Il est évident de constater que l'espace intérieur des murs du naos forment un rectangle remarquable, puisque sa largeur valant 1 sa longueur est racine de 2 .

4.998 mètres de largeur, demi diagonale d'un carré qui nous amène à un côté de 13 et une demi meh nessou, soit en prolongeant les murs un carré de 54 meh nessou de périmétrie, que nous détaillerons bientôt...

Achôris colonnes 6 a.JPG
(Cliquer sur l'image )


Pour mieux voir le mur Nord-est du naos qui fait bien 5 mètres à sa base...


Achôris colonnes 7 a.JPG
(cliquer sur l'image )

Pour contempler tout à loisir le rectangle du naos, rectangle de format racine de 2, ancêtre de nos feuilles 21/29.7 cm

Re: Achôris

Publié : 08 Jan 2025, 15:57
par Jean François
Hesb et Sa 1 a.JPG
( Cliquer sur l'image )


Nous reprenons cette image que nous n'avons pas suffisamment expliquée.



Setjat, Remen, Heseb, Sa a.JPG
( Cliquer sur l'image )

La voici avec un bon recul !

Apparaît un grand carré surface le Setjat Egyptien, unité de surface qui correspond à un carré de 100 meh nessou (100 Coudées royales)

A l'intérieur un autre carré qui selon Socrate a sa surface de moitié, ici du Setjat, c'est le Remen surface Egyptien.

Encore à l'intérieur le carré Heseb Egyptien, toujours la moitié du précédent.

Et enfin le carré Sa Egyptien.

Ces quatre mesures de surface se suivent et sont chaque fois la moitié de surface de la précédente.

le Sa est précédé par le carré Cha, lui même précédé par le carré Meh.

Et le Setjat précède le Cha-Tâ qui précède l'Itérou surface

Nous avons de plus seulement représenté dans le Sa le carré Meh.

A ces quatre unités de surface qui se suivent, nous avons dans chacune tracé un autre carré.

Ce carré a pour côté, par le tracé qui l'engendre, un rapport avec le côté du carré qui l'inscrit, rapport 1 et phi carré et ce pour chaque carré, le Setjat, le Remen, l' Heseb et le Sa.

Toutankhamon 1 et Phi carré.PNG
( Cliquer sur l'image )

Ce rapport 1 et Phi carré est partout dans l' Egypte ancienne, exemple ici dans les chapelles en bois doré du tombeau de Toutankhamon...
Toutankhamon Première enveloppe (2).PNG
( Cliquer sur l'image )

Ici pour mieux voir les limites de ce rectangle 1 et Phi carré, grâce à une vue en diagonale et voir ainsi les épaisseurs pour qu'on ne m'accuse pas de promulguer des carabistouilles...

Chahar Taq Carré Meh 10.JPG
( Cliquer sur l'image )


Voici le tracé intérieur que nous avons fait pour chaque carré, le Setjat, le Remen, l' Heseb et le Sa.


La plupart des segments obtenues par les croisements de toutes ces figures sont utilisables pour les mesures de la Chapelle Achôris comme montré précédemment... nous y reviendrons au fur et à mesure.

Re: Achôris

Publié : 11 Jan 2025, 01:13
par Jean François
viewtopic.php?f=24&t=22

A la quatrième heure et à la quatrième porte du voyage de Ré dans l'Amdouat, le nombre 309, soit 309 Itérou, revient
2 fois.

Ici nous avons une chapelle Achôris qui est une chapelle de barque, là où une cérémonie porte le vaisseau de Ré dans son voyage à travers l'Amdouat.

Quelle est la mesure de la Chapelle ?

16.20 mètres !

Ne sont-ils pas 30.9 meh nessou !

Les nombres dans les textes religieux ne sont pas que fantaisie, car ils émergent des pratiques et des gestes longuement éprouvés.

30 meh nessou et 9/10 de meh nessou.

Et oui 30.9 meh nessou sont bien 16.18 Giri Sumérien ou de nos mètres d'aujourd'hui.

Autre curiosité 30.9 meh nessou diagonale qui traverse un triple carrés, chaque carré a une surface de 26.18 mètres carrés

Re: Achôris

Publié : 14 Jan 2025, 18:14
par Jean François
Achôris 2.7 a.JPG
( Cliquer sur l'image )

Le plus simple et direct possible, pour obtenir les espaces entre colonnes et entre colonne et pilastre !


Carré intérieur du Naos


Toujours le même tracé dans ce carré, rapport 1 et Phi carré...

Reste le trait bleu de 2.7 mètres, un parallélogramme le projette en son endroit.



Achôris 2.7 b a.JPG
( Cliquer sur l'image )


Ici rapproché !


Achôris 3.24 a.JPG
( Cliquer sur l'image )


Carré Intérieur du pronaos !

Toujours le même tracé, mais cette fois, c'est le rayon du cercle qui nous produit le 3.24 mètres


Achoris 2.7 et 3.24 a.JPG
( Cliquer sur l'image )

Toujours plus près...

Si simple !

Pourquoi diable Jean Lauffray s'est embarrassé d'une soi disant coudée de 0.54 mètres ?!?!?!

L'Egyptien a déjà quatre coudées, la meh nessou, la meh chery, la meh remen et la meh djeser qui misent bout à bout forment la circonférence d'un cercle d'une meh nessou de diamètre.

Il faut aller voir chez les Grecs et ensuite dans le monde Arabe pour les traces d'une coudée de 0.54 mètres...

Re: Achôris

Publié : 15 Jan 2025, 00:27
par Jean François
Achôris racine de 2 a.JPG
( Cliquer sur l'image )


On frôle toujours l'invisible...

Et puis un jour il vous saute aux yeux sans crier garde...

On regarde et on voit enfin !

Je n'arrivais pas à trouver le lien entre le carré du pronaos et celui du naos.

Le carré Meh du pronaos, sa diagonale rejoint le carré du naos, formant ainsi un rectangle de format 1 et racine de 2. ( La petite chapelle de Sésostris I, à l'extérieur est aussi un rectangle de rapport 1 et racine de 2 )


Achôris 2 rectangles racine de 2 a.JPG
( Cliquer sur l'image )

Remis ici le rectangle 1 et racine de 2 que nous avions trouvé dans le naos.

Au niveau numérique, tout correspond.

5.236 x V2= 7.4048 mètres

7.4048+ 7.071=14.4758 mètres

Sur le plan, nous avons mesuré 14.48 mètres.

C'est la longueur de l'espace intérieur pronaos et naos compris !


7.4048 mètres sont aussi bien évidemment 24 pieds du Parthénon... :D

Re: Achôris

Publié : 15 Jan 2025, 14:27
par Jean François
viewtopic.php?f=33&p=4525#p4525

Disque Sabu 16 a.JPG
( Cliquer sur l'image )

Nous retrouvons ici la diagonale du carré qui engendre par le rapport 1 et Phi carré dans le disque de Sabu( Toujours le chemin ) ici en T3Z3, la mesure 1.447 mètre, dixième de notre 14.47 mètres, longueur intérieure de la Chapelle Achôris;

Le geste...

Il faut incarner la géométrie par le geste, puisque l'architecture est le langage de cette incarnation.

L'architecture n'est pas qu'un hangar utilitaire...

Re: Achôris

Publié : 16 Jan 2025, 01:46
par Jean François
Comme de bien entendu...https://youtu.be/SYFt7JaQKUk?si=Lp7bT8JwerpuLHhI

Longueur totale extérieure 16.18 mètres

Longueur totale intérieure 14.47 mètres

Rapport longueur extérieure et longueur intérieure:

Racine de cinq sur deux !

On avance...

Intérieur nous avons deux phi carré fois racine de deux plus dix sur racine de deux

Extérieur dix Phi

Simplifions le rapport extérieur et intérieur.

Racine de cinq sur deux !

Chambre du roi de la grande Pyramide !

Rapport hauteur et largeur, racine de cinq sur deux !

Comme de bien entendu...

Mais, qui écoute aujourd'hui ?

https://youtu.be/qxjJfTPbzes?si=dIJAaoGj7liyT_kI

Puisqu'il est question d'harmonie, un petit cadeau pour L'égyptien, maître créateur de la chapelle d'Achôris, la BWV 686 de Jean Sébastien Bach, lui aussi maître de l'harmonie

Nous qui pouvons contempler cette chapelle Égyptienne et écouter la musique de Bach, tout à loisir, moindre des choses que de transporter cette merveille de Bach jusqu'au oreilles de celui qui a su voir autant que celui qui a su entendre...

Re: Achôris

Publié : 18 Jan 2025, 17:17
par Jean François
Page 24 du livre de Jean Lauffray: La Chapelle d'Achôris à Karnak.

1 Palme = 7.714 cm
2 palmes = 15.428 cm
3 palmes = 38.50 cm
7 palmes = 53.998 cm

Non 3 palmes sont bien 23.142 cm !

Et 4 palmes sont 30.85 cm, et non pas 38.50 cm et affublé de 3 palmes en plus !

Et ces 4 palmes sautent au yeux et sont bien le centième de la largeur du Parthénon qui reporté 225 fois donne sa longueur!

Mais il faudrait une valeur de 30.854 cm très exactement pour obtenir avec 7 palmes au moins 53.9945 cm qui est donc la coudée du pieds du Parthénon, il est vrai qui a précédé en Grèce la construction de la Chapelle d'Achôris.

Et cette coudée de 54 cm n'est pas Égyptienne mais un choix de la culture Grecs. Nous la rencontrons souvent au détour d'un mouvement du cordeau ou du compas, chez les Egyptiens tout comme nous rencontrons très souvent la Kûs et le Giri de Sumer, et même le pied romain et du roi de France, et le mètres d'aujourd'hui, puisque toutes les mesures des civilisations s'accordent dans un même labyrinthe harmonique !

Jean Lauffray est né en 1909 et décédé en 2000 à 91 ans. Il était au Beaux arts de Paris en 36...J'y étais en 76...

Le livre est édité en 1995, il ne l'a peut être pas relu, n' avait peut être plus la santé pour cela, en tout cas le comité de lecture de cet ouvrage a laissé beaucoup d'erreur, peut être celles de l'imprimeur !

Page 62 figure 34 la hauteur Est de 5.62 mètres passe à 5.32 mètres à l'Ouest, erreur qui fait que toutes les mesures mettent un doute et doivent être revérifiées au réglé sur les plans.

5.62 mètres, dessin de 1976 est heureusement remis en question par Jean Lauffray dans le texte, au moins c'est clair !

D'ailleurs surélevé à 5.65 mètres qui pour nous, nous le verrons bientôt dans les élévations, est du pain béni....

Sur les plans d'autres doutes apparaissent à la mesure au réglé...

Dont deux mesures importantes, la largeur du Naos à 7.12 mètres qui sur le plan est plus proche de 7.08 mètres, je penche pour cette deuxième....Et aussi l'ouverture Ouest deux fois côté différemment à 4.90 mètres et à 4.88 mètres, pour laquelle sur cette dernière je penche aussi.

Re: Achôris

Publié : 21 Jan 2025, 16:00
par Jean François
Achôris colonnes 8 a.JPG
( Cliquer sur l'image )


Le rectangle orangé va du centre de la colonne Ouest au centre du pilastre Est.

la diagonale de ce rectangle qui va du centre de la colonne Sud Ouest jusqu'au pilastre Nord Est sera prise comme coté d'un carré ici bleuté.

Le tracé intérieur du rapport Phi et 1, révèle que la largeur Est du naos est cette unité et la diagonale Phi.

Sur le plan nous avons mesuré au réglé 11.44 mètres pour cette diagonale, soit divisé par Phi, donne bien 7.071 mètres, mesure du fond du naos, ici le segment rouge.





Achôris colonnes 9 a.JPG
( Cliquer sur l'image )


Agrandissement pour plus de précision !

Yaka ramasser les noix....

Re: Achôris

Publié : 21 Jan 2025, 16:17
par Jean François
Achôris colonnes 10 a.JPG
( Cliquer sur l'image)


Sur le plan papier le réglet tombe sur un 26.20 cm, soit 13.09 mètres selon l'échelle.

Pourquoi donc Jean Lauffray a-t-il été détourné par cette soit disant coudée de 0.54 mètres, qui est une conséquence de tracé harmonique, et non la mesure ou le module architecturale utilisé par le maître d'oeuvre Egyptien...

Jean Lauffray pour pouvoir appuyer la tentative ( Tout tracé n'est que tentative, nous ne faisons ici que des tentatives...) de son tracé de la Chapelle, commence par un carré ABCD pour expliquer sa démarche, alors que ce carré ABCD de départ n'est pas carré puisque deux de ses côtés font 22 cm de plus que les deux autres ?!?!?!

Et qu'il obtient par ce tracé un rectangle doré à 2%, ce qui pour la longueur totale de la Chapelle ferait une précision à plus ou moins 0.324 m...


Achôris rectangle colonnes a.JPG
( Cliquer sur l'image )

13.09 mètres, n'est ce pas 25 meh nessou( Coudées royales ) !

Observons les tracés possibles, c'est un véritable labyrinthe harmonique!