Une enceinte longue de 3142 Meh nessou ... - Espaces, formes et contours

Espaces, formes et contours

Architecture moderne, ancienne, égyptienne, géométrie, harmonie

Accéder au contenu

  • Raccourcis
  • FAQ
  • Connexion
  • Inscription
  • Espaces, formes et contours Espaces, formes et contours CatĂ©gories du forum Architecture Afrique Architecture de l'Egypte ancienne L'enceinte de Djeser bâtie sur PI ?

Une enceinte longue de 3142 Meh nessou ...

Répondre
  • Aperçu avant impression
141 messages
  • 1
  • 2
  • 3
  • 4
  • 5
  • 6
  • Suivant
Olivier
Site Admin
Messages : 870
Inscription : 17 Juin 2018, 20:39

Une enceinte longue de 3142 Meh nessou ...

  • Citer

Message par Olivier » 11 Avr 2019, 15:33

Bonjour,

Jean François a écrit ici :
Un Imhotep qui crée une enceinte de 3142 meh nessou de périmètre ne peut méconnaître bien évidemment que c'est la circonférence d'un cercle de 1000 meh nessou puisque tel a été son désir de commencer justement par ce cercle qui, autant pour l'ancien Egyptien que l'homme du moyen âge, est l'image du ciel qui a laissé son empreinte sur la terre, et n'avait pas besoin d'apprendre au singe de Thot à faire la grimace délicieuse avec géométrie, pieds de nez et pont aux ânes.

3142 et 1000, à moins d'être occupé à se gratter les puces dévorantes, que lui refilait le singe de Thot, et la fiente d'Ibis dans les cheveux, Imhotep s'est bien aperçu de cette constante en buvant sa pinte de bière sans gluten ( sinon cela me rend malade rien que d'y penser) le soir sous un ciel étoilé, puisque multiplié par 1000 le diamètre, la circonférence reste la même... mais aussi avec 100 de diamètre, il comprend qu'il aura 314 et1/10+1/10 etc...et avec 10 etc... avec 1

Il connaissait cette constante, bien sûr à sa manière, avec pragmatisme, sans nécessairement la partager, peut-être la gardait-il pour une transmission orale, le bâtisseur devant pouvoir sauver sa peau face au représentant du pouvoir en gardant ses secrets...il la gardait bien évidemment pour la mettre dans la pierre avec délectation.
Mais quelles sont les sources de cette information étonnante ?
Amitiés,
Olivier
Haut

dugt
Messages : 278
Inscription : 26 Mars 2019, 23:05

Re: Une enceinte longue de 3142 Meh nessou ...

  • Citer

Message par dugt » 12 Avr 2019, 12:18

Salut Olivier,

Les relevés de Lauer sont sur ce lien, châpitre V
https://drive.google.com/file/d/1YGqp0J ... X-40_/view

Ca prend un peu de temps pour télécharger, mais ça vaut le coup

J.Jacques
Haut

Olivier
Site Admin
Messages : 870
Inscription : 17 Juin 2018, 20:39

Re: Une enceinte longue de 3142 Meh nessou ...

  • Citer

Message par Olivier » 12 Avr 2019, 13:31

Merci Jean Jacques,

effectivement c'est une somme, merci.

Lauer a mesuré le mur d'enceinte, il est d'environ 544,90 mètres en longueur et 277,6 mètres en largeur, soit 1645 mètres.

Soit 3141.7 Meh nessou (coudées royales) !

Incroyable ! Encore plus précis que 3142 !

Car il fallait bien une raison pour faire un tel plan, c'est pas de la tarte de construire un tel mur d'enceinte ...

Je frémis à l'idée d'étudier l'ensemble de ce site, il doit révéler beaucoup d'autres choses sur leurs connaissances.
Amitiés,
Olivier
Haut

Jean François
Site Admin
Messages : 2146
Inscription : 18 Juin 2018, 18:28

Re: Une enceinte longue de 3142 Meh nessou ...

  • Citer

Message par Jean François » 12 Avr 2019, 15:37

Bonjour Jean Jacques et Olivier en ce soleil de printemps :)

N'oublions jamais les mesures de surface!


L'enceinte fait en surface, arpentée au sol certainement selon un cadastre préalable, cadastre qui chaque année retrace toujours chaque nôme d'Egypte après les grandes crues du Nil d'autant qu'à cette époque il n'y en avait pas 38 nômes comme fin du moyen empire, mais 42...ouf, très exactement 5512 meh, mesure en carré de surface ( mais aussi en coudée de terre de 1 meh nessou sur 100).
SCN_0001d.jpg

5512, ce n'est pas rien car ce nombre a été choisi justement pour pouvoir aussi être subdivisé en nombre entier en meh mais aussi en sa!

En effet seul un 5512 va pouvoir donner 440.96 sa, soit 441 sa de surface...Je rappelle que pour obtenir un carré sa il faut passer par la racine de 5 sur 2 le côté d'un carré cha, pour le cha, passer par la racine de 10 le côté d'un carré meh( soit une diagonale d'un double carré moitié de cha et une diagonale de trois carrés meh)
IMG_20190508_0006_NEW.jpg
Le sa, c'est 12.5 meh surface.


Le cadastre, comme le suggère si bien le vénérable Pierre Lacau dans sa traduction des frises de la chapelle blanche de Sésostris à Karnak, donne les mesures de chaque nôme en Itérou, cha-ta, et setjat, toutes écrites en hiéroglyphe sur la chapelle!



Si on oublie à chaque fois les surfaces dans notre recherche commune, nous passerons beaucoup de temps à errer dans la caverne et sans Platon qui préfère les banquets, au lieu d'"airer" des surfaces architecturée et prendre du bon air.

Car les mesures de surface de l'ancienne Egypte, nous relie en permanence avec le factuel de leurs écrits et les traces de leur science des mesures, de l'arpentage, de la vie même des Égyptiens dans leur cité émergée et construite elle même par ce même cadastre!!!

l'enceinte est donc en 5512 carrés meh ou 441 carrés sa.

Le cercle symboliquement tombé du ciel à l'intérieur d'un carré terre de 100 setjat de surface soit 1000 meh nessou de diamètre crée en nombre naturel de Pythagore et grâce à sa circonférence, les mensurations de l'enceinte!

Tout comme Gizeh est en sa et passe en meh pour les subdivisions.

Je rappelle que Khoufou c'est 1936 meh pour sa base, la chambre du roi 2 meh, la chapelle rouge 3 meh etc..joli mois de meh , c'est pour bientĂ´t :D

Amitiés

Jean François qui est très heureux de pouvoir corriger ses fautes d'orthographe, et dire les mesures en Égyptiens. Je nage dans le bonheur :D
jeanfrancoiswarein@gmail.com
Haut

Jean François
Site Admin
Messages : 2146
Inscription : 18 Juin 2018, 18:28

Re: Une enceinte longue de 3142 Meh nessou ...

  • Citer

Message par Jean François » 12 Avr 2019, 18:36

Bonjour les forumeurs de bonne humeur
IMG_20180712_0001 1.jpg
IMG_20190412_0002_NEW.jpg


Au niveau d'un cadastre en Itérou, il suffit de prendre le dixième et nous avons un élément commun à Saqqarah et à Gizeh.

Toutes les meh de longueur, meh nessou, meh cherri, meh remen, meh djeser, sont mises dans un demi cercle d'un Itérou de diamètre...

Imhotep savait déjà par le cadastre existant depuis des lustres, qu'un simple arc de cercle faisait apparaître une constante, ici 31428 meh nessou pour un itérou de diamètre.

Archimède n'était même pas encore un spermatozoïde perdu dans une immense foule d'autres comme lui, que son 22/7 était déjà dans le biberon des scribes des formes et des contours du pays de Kemet, il y a 5000 ans.

Quand rendra-ton justice aux scribes des formes et des contours en acceptant enfin ce que nous disent les pierres, leur composition architecturale et leur emplacement sur un cadastre géodésique.

Je signale que le bon regard du satellite nous donne la distance qui sépare les bords des pyramides de Khoufou et Djeser soit 14160 mètres, soit 27000 meh nessou ou 270 côtés de carré setjat.

Amitiés

Jean François
jeanfrancoiswarein@gmail.com
Haut

dugt
Messages : 278
Inscription : 26 Mars 2019, 23:05

Re: Une enceinte longue de 3142 Meh nessou ...

  • Citer

Message par dugt » 12 Avr 2019, 23:30

Jean François!

Coquin de sort!!! Tu t'en réfères maintenant au "bon regard du satellite", alors qu'il y a quelques messages, tu en faisais fi pour ne
pas fâcher ce bon vieux Petrie qui nous a bien roulés dans la farine!!!
Blanc bonnet ou bonnet blanc?

J.Jacques
Haut

Jean François
Site Admin
Messages : 2146
Inscription : 18 Juin 2018, 18:28

Re: Une enceinte longue de 3142 Meh nessou ...

  • Citer

Message par Jean François » 13 Avr 2019, 01:16

Jean Jacques! :D

Petrie n'a malheureusement pas fait des triangulations multiples entre le site de Giseh et Saqqarah, je ne le blâme pas, la vie étant bien courte !

Puisqu'il est maintenant monté au ciel après une vie exemplaire de justes mesures, je m'en remets à sa sainteté et à ses satellites du firmament, ce qui est d'ailleurs plus rapide qu' un bombardement de muons qu'on attend toujours au fond des bois...

Petrie nous a roulé dans la farine, meuh non, meuh, non, lui qui Petrie la farine pour des roulés de pavots filés à l'anglaise, reste malgré tout le meilleur pour Giseh.

D'ailleurs tu es tombé d'accord avec Petrie pour le 1732, grâce à tes satellites du firmament. ;)

Amitiés

Jean François
jeanfrancoiswarein@gmail.com
Haut

dugt
Messages : 278
Inscription : 26 Mars 2019, 23:05

Re: Une enceinte longue de 3142 Meh nessou ...

  • Citer

Message par dugt » 13 Avr 2019, 10:35

Bonjour Jean François,

Ne pas se méprendre sur mes propos: je ne dit pas que les résultats de Petrie sont erronés, je souligne simplement
qu'ils ne sont pas vérifiables, et que Petrie s'est bien arrangé pour qu'ils ne le soient pas.
Comme dans toute recherche scientifique, les résultats d'une expérience doivent pouvoir être plusieurs fois vérifiés pour
valider l'expérience.
Si, en utilisant une autre méthode, la localisation GPS par exemple, on trouve des résultats différents, c'est qu'il y a un problème, dans
l'une ou l'autre méthode.

S'assoir tranquillement sur les mesures d'un Petrie, Lauer, M&R, Lehner...mène inévitablement à une débauche d'interprétations
hasardeuses et de théories plus ou moins fumeuses que l'on connait depuis un siècle et demi.

J.Jacques
Haut

Olivier
Site Admin
Messages : 870
Inscription : 17 Juin 2018, 20:39

Re: Une enceinte longue de 3142 Meh nessou ...

  • Citer

Message par Olivier » 13 Avr 2019, 11:51

Bonjour Jean Jacques,

j'ai parcouru un peu l'ouvrage de Jean Philippe Lauer "Sur certaines modifications et extensions apportées au complexe funéraire de Djoser au cours de son règne" et également le travail de Petrie sur Gizeh, et ces travaux m'apparaissent comme très sérieux.

Il serait souhaitable effectivement d'avoir d'autres sources concordantes, et je serais très étonné qu'ils soient les seuls chercheurs à avoir travaillé sur ces complexes.

Connais-tu des publications dans lesquelles les résultats de leurs travaux ont été contestés ?
Amitiés,
Olivier
Haut

dugt
Messages : 278
Inscription : 26 Mars 2019, 23:05

Re: Une enceinte longue de 3142 Meh nessou ...

  • Citer

Message par dugt » 13 Avr 2019, 12:53

Bonjour Olivier,

C'est bien ce que je voulais dire, il y a peu, voire pas, de contestation sur ces relevés; prenons le cas de Djoser:

Sur ce complexe, Lauer est Monsieur Djoser, le Spécialiste; 50 ans, passés pour un travail considérable, et pourtant…

Lauer a décidé de fournir des cotes en coudées et d'en déduire des longueurs en mètres; le contraire eut été plus...scientifique.
Lauer admet qu'une seule dimension a pu être mesurée sur le mastaba d'origine: 71.5m, mais il persiste à dire qu'elle représente
136 Cr (alors qu'elle en représente 136.5), et personne n'a jamais contesté.
Qui aurait osé reprendre les mesures de Lauer en sa présence?
Où est passé le second monument en forme de B?
Où sont passés les relevés de Firth et Quibell?
Comment vérifier aujourd'hui les dimensions de l'enceinte puisqu'il a tout remis sous le sable?
Les bastions d'angle font-ils 6Cr de coté ou bien 6.5Cr?
...............
J'ai des centaines de questions de ce genre et ne peux que très difficilement trouver de réponse

J.Jacques
Haut

Jean François
Site Admin
Messages : 2146
Inscription : 18 Juin 2018, 18:28

Re: Une enceinte longue de 3142 Meh nessou ...

  • Citer

Message par Jean François » 13 Avr 2019, 23:16

Bon il est vrai que Petrie pétri de précision ne l'était pas toujours et que le bon Lauer qui avait presque l'exclusivité de l'enceinte, accouchait certaines mesures bien arrondies parfois par le bas alors qu'elles auraient pu être arrondies par le haut, inévitable relevé toujours à plus ou moins quelque chose, n'étant en définitive toujours qu'une valeur approchée.

Finalement que cherchons-nous!

Car si nous avons devant notre nez que l'enceinte de Djeser dessinée en formes et en contours par le vénérable Imhotep au top du Thot, fait tout simplement 3142 meh nessou de circonférence, faudrait quand même pas faire les difficiles pour les détails certes importants mais secondaires, surtout quand on n'a pas les grandes lignes directrices et le lien avec le possible cadastre. Les détails viendront d'eux mêmes s'accorder comme les parties d'un tout, les parties d'une unité primordiale si chère à nos Anciens Égyptiens, car toute composition créative est travaillée d'abord dans son ensemble puis élaborée dans ses parties constituantes secondaires, tertiaires etc...

Nous avons maintenant la grande ligne de départ de l'enceinte, elle est la mesure de la circonférence d'un cercle tombé du ciel et qui sur terre empreinte la forme d'un rectangle qui accouche l'enceinte.

De plus à l'intérieur d'autres rectangles et merveilles, même un rectangle de racine de cinq plus un et sur deux( 174.7/107.6), et que l'ancienne enceinte, est le périmète d'un carré qui contient un cercle de 1000 meh nessou de circonférence.... et en veux- tu en voilà des rapports 10/9 ( 121/109 qui permettent les quadratures) des rapports 1.618 du 174.7/107.6 et ne se cachent pas non plus des merveilleux 5/2.618 qui courent les chambres des pyramides et se cachent dans les armoires tels des amant fébriles.

Mais que nous faut-il de plus pour constater à Saqqarah et à Gizeh la présence des diagonales de un, deux, trois carrés, respectivement racine de 2, 5, 10, les triangles équilatéraux, racine de 3, inscrit dans un cercle de 2 qui contient aussi un carré, racine de 2, et le rectangle engendré racine de 2 et de 3, une diagonale de racine de 5, de triangle 3/4/5 et toutes ces quadratures surfaces et circonférences de carré et cercle et même de surface et périmètre de triangle et cercle, toutes ces merveilles et partout, temple, pyramide, meuble, fresque, sculptures, toute chose façonnée, toutes les citée, et leurs correspondances entre elles pour nous révéler la présence d'un cadastre qui met en harmonie tous les sites tout comme Gizeh et Saqqarah, mais aussi Gizeh et Dahchour, sublime cadastre qui trace la méridienne mesurée du 30 ème au 24 ème parralèle, là ou était le tropique en ancien Empire etc...

Que nous faut-il de plus pour enfin ouvrir les yeux et péter les bouchons de sérumen, délier notre langue d'oiseleur tels des Papageno malheureusement rendus muets si longtemps, alors qu'ils commencent à comprendre enfin la langue des Ibis et les grimaces des singes de Thot, rendus muets si longtemps par je ne sais quel sort lancé par une poignée de dominant du savoir, tout comme ceux de la finance, qui continue aujourd'hui encore à découvrir puis recouvrir ce qui dérange leur superbe et à bâillonner la langue des vieilles pierres pour leur propre gloire et domination.

Nous n'avons plus qu'à nous mettre à table, le pin est dans la planche, pour résoudre les trois tables d'harmonie et accoucher l'enceinte de Djeser !

Imhotep semble se réveiller dans un espace de formes et de contours...profitons en! :lol:

Amitiés

Jean François
jeanfrancoiswarein@gmail.com
Haut

dugt
Messages : 278
Inscription : 26 Mars 2019, 23:05

Re: Une enceinte longue de 3142 Meh nessou ...

  • Citer

Message par dugt » 14 Avr 2019, 23:59

Imhotep est un filou!

Les faces Nord et Sud de l'enceinte font chacune 530Cr
La face Ouest 1045 Cr
La face Est 1043Cr

Le périmètre de l'enceinte fait donc 3148Cr, et non pas 3140Cr

J.Jacques
Haut

Jean François
Site Admin
Messages : 2146
Inscription : 18 Juin 2018, 18:28

Re: Une enceinte longue de 3142 Meh nessou ...

  • Citer

Message par Jean François » 15 Avr 2019, 11:03

Bonjour Jean Jacques

25/10000 à l'Ouest et 48/10000 à l'Est, plus 3 Meh nessou à bâbord et 5 à tribord, rien au Nord et rien au Sud, mille millions de milles sabords !

Si tu ne me démontres pas plan à l'appui la filouterie d'Imhotep, je sorts mon sabre et pulvérise ces six Meh nessou de trop.

Car pour ma part il n'en manque qu'une sur les mesures de Lauer, peut être deux comme je l'avais démontré sur un autre forum. :D

On chipote, puisque pour nos vénérables spécialistes qui considèrent une possible valeur de 3.16, papyrus de Rhind, et 3 pour les Sumériens, nous n'avons pas de bile à nous faire !

On peut aller jusqu'à 3160, y a qu'à trouver encore 10 Meh nessou et le tour est joué... :lol:


Amitiés

Jean François
jeanfrancoiswarein@gmail.com
Haut

dugt
Messages : 278
Inscription : 26 Mars 2019, 23:05

Re: Une enceinte longue de 3142 Meh nessou ...

  • Citer

Message par dugt » 15 Avr 2019, 17:39

Salut Jean François,

Tonnerre de Brest! elles sont un tantinet agaçantes ces 8 Cr de trop, n'est-il pas?

Le plan demandé

Image


La petite pirouette de Lauer pour retomber Ă  3140Cr

Image


Et il y a plus troublant: ce plan de Firth donne un périmètre de 3078 Cr!!!!!!! (544 au Nord, 530 au Sud, 1003 à l'Ouest et 1001 à l'Est)
SI, si, recomptez bien les bastions, et donc les courtines

Image


Il y a de quoi bouffer son sabre!

J.Jacques
Haut

Jean François
Site Admin
Messages : 2146
Inscription : 18 Juin 2018, 18:28

Re: Une enceinte longue de 3142 Meh nessou ...

  • Citer

Message par Jean François » 15 Avr 2019, 23:19

V'lĂ  que le mille revient en force pour les longueurs...

Firth 1003 et1001, 540 et 530
Lauer 1040 et 1040, 530 530
Dugt 1045 et 1043, 530 et 530
Moi 1041 et 1041, 530 et 530

Par ici messieurs dames faites vos jeux! ;)
jeanfrancoiswarein@gmail.com
Haut

dugt
Messages : 278
Inscription : 26 Mars 2019, 23:05

Re: Une enceinte longue de 3142 Meh nessou ...

  • Citer

Message par dugt » 16 Avr 2019, 00:17

Ouaip, à une petite précision près: 1045 et 1043, c'est pas Dugt mais juste le plan de Lauer.

Mais dis moi Jean François, d'où viennent ces 1041 et 1041? je n'ai pas su retrouver...ailleurs

J.Jacques
Haut

Jean François
Site Admin
Messages : 2146
Inscription : 18 Juin 2018, 18:28

Re: Une enceinte longue de 3142 Meh nessou ...

  • Citer

Message par Jean François » 16 Avr 2019, 11:53

Bonjour Jean Jacques

Je plaisantais...

Je recherche ma source sur les 1645 mètres, dans mes carnets de notes et de dessin..'y en partout...

En effet il y a un bastion et une courtille de moins pour First...

Je suppose qu'ils ont tous les deux fait une mesure de visée et qu'il ne peut y avoir quarante coudées de différences.

Lauer ne s'est pas amusé à bouger les fondations de l'enceinte pour obtenir ses 1040 en arithmétique.

Mais que veut dire Lauer quand il écrit: la longueur totale théorique de l'enceinte, longueur voulue et longueur réelle.

Je retourne aux archives quelques temps, recompte bastions, courtilles et portes simulacres et portes ouvertes, recherche les sources de mes notations sur mes carnets.

Mais ma conviction ne change pas, elle ne peut être que la circonférence d'un cercle de 1000 Meh nessou.

De sept à cinq Meh nessou pour une longueur théorique, ou voulue ou réelle, il faudra se mettre d'accord sur le sens de ces trois qualificatifs, peuvent paraître importante mais possible, d'abord par erreur interprétative vues les ruines, par erreur de relévé des releveurs, mais aussi de l'erreur inévitable à la construction, vu l'enemble de bastions, portes et Courtilles.

Sur le dessin de Lauer, elle n'est pas rectiligne, pas de véritable angle droit, je vais aussi réfléchir là dessus.

Il y a beaucoup de bouleau

Quand à First le problème est énorme, se tromper à ce point sur les mesures peut nous faire penser que Lauer aurait repoussé les bornes des limites :D

Je fais confiance Ă  Lauer, car First a dĂ» se prendre les pieds dans ses mesures en pouce... :lol:

Amitiés

PS Quelle valeur donne Lauer à la Meh nessou en mètres ?

si je retrouve bien que c'est Dans Lauer que je l'avais trouvé 1645 mètres, puisqu'il suggère apparemment 1040 et 530, 3140, mais qu'il semble déduire 530, 1043 et 1045, soit 3148, on a respectivement une valeur de 0.52388 et 0.5225.

Mais est-ce bien 1645 mètres! Avec les 3148 il serait possible que ce soit alors 1649 mètres.

Bien évidemment j'ai baïllonné First avec ses pouces sinon je mange mon chapeau...

Jean François
jeanfrancoiswarein@gmail.com
Haut

dugt
Messages : 278
Inscription : 26 Mars 2019, 23:05

Re: Une enceinte longue de 3142 Meh nessou ...

  • Citer

Message par dugt » 16 Avr 2019, 13:03

Bonjour Jean François,

Je ne sais pas ce qu'il s'est passé quand Lauer a débarqué à Saqqarah; Firth et Quibell avaient déjà mesuré l'enceinte; Lauer a-t-il tout
recommencé? Les écarts sont énormes:

En ne comptant que les bastions (le nombre des courtines s'en déduit)

Coté Nord
- Firth 7 8 3 14
- Lauer 8 7 8 8

Coté Sud
- Firth 7 9 3 12
- Lauer 8 8 3 12

Coté Ouest
- Firth 12 13 13 13 12
-Lauer 13 13 13 13 14

Coté Est
- Firth 2 20 21 6 6 6
- Lauer 2 21 23 6 6 6

Ils ne sont d'accord que sur le nombre de fausses portes par face!

J.Jacques
Haut

Jean François
Site Admin
Messages : 2146
Inscription : 18 Juin 2018, 18:28

Re: Une enceinte longue de 3142 Meh nessou ...

  • Citer

Message par Jean François » 16 Avr 2019, 14:28

Et bien quelle journée, Notre Dame s'écroule et mes certitudes sur l'enceinte de Djeser aussi.

Dure journée pour les amoureux des pierres...

Je pleure Notre Dame! Quelle tristesse!

Une restauration de la plomberie de la flèche( Bois et plomb) de Viollet Le Duc et la vôute céleste de Notre Dame, notre Nout céleste, s'écroule sur le dallage, sous les feux de l'enfer d'un bois de chêne de 1100 ans( au moins 200 ans de poussée, 100 ans de mise à l'eau et de séchage)

Amitiés

Jean François
jeanfrancoiswarein@gmail.com
Haut

dugt
Messages : 278
Inscription : 26 Mars 2019, 23:05

Re: Une enceinte longue de 3142 Meh nessou ...

  • Citer

Message par dugt » 16 Avr 2019, 16:14

Le plus triste c'est que cela ne servira même pas de leçon; depuis le temps qu'on y tournicote dans cette charpente pour faire l' inspections des
inspections des inspections, il ne serait venu à l'esprit de personne de prendre cotes et relevés? ce n'est pourtant pas la première qui crame!

Idem en égyptologie: il fallait dégager d'abord des cadavres et des trésors!! quitte à démolir, et fi des mesures!!

Bref, il me faut retrouver les archives de Firth et Quibell concernant cette enceinte, ce qu'ils ont dégagé, mesuré, et comment ils l'ont fait, Lauer
n'ayant été employé à l'époque que pour en faire des plans. (ou alors qu'il dise comment et pourquoi il les a corrigés).

Il serait bon aussi de savoir pourquoi Lauer tient-il tant Ă  ce 1040Cr; il nous refait le coup pour l'enceinte de Sekhemkhet!

J.Jacques
Haut

Jean François
Site Admin
Messages : 2146
Inscription : 18 Juin 2018, 18:28

Re: Une enceinte longue de 3142 Meh nessou ...

  • Citer

Message par Jean François » 16 Avr 2019, 18:53

Bonsoir Jean Jacques

Comment retrouver les Archives de First ???

Il suffirait de faire une mesure sur place, une seule mesure par visée, et nous aurions au moins malgré l'imprécision de la distance, la possibilité de savoir si c'est plus proche de Lauer que de First.

J'ai du mal à imaginer autant de différence 1003 à 1043, ce n'est même pas imaginable? Sur place j'aurai fait aussi bien et peut être mieux rien qu'en comptant mes pas.

Je ne suis donc pas aller mesurer en Egypte, ni compter mes pas avant de m'endormir dans les bras de Morphée, mais j'ai penché pour les anges et les satellites du ciel.

J'ai fait trois clics au mĂŞme endroit, j'ai eu trois mesures correspondantes.

547 puis 545 puis 549, soit 1044, 1040 et 1048 meh nessou.

Pour ce genre de relévé nous pouvons donc nous fier au satellite, mais en sachant qu'on est à plus ou moins dix, car ses trois clics ont été un coup de bol...

J'élimine First sans problème....surtout que je sais que par gsatellite, le clic est de plus ou moins dix coudées.

J'ai repéré l'endroit de First, on est dans l'enceinte, pas possible!!!

Amitié

Jean François
jeanfrancoiswarein@gmail.com
Haut

Olivier
Site Admin
Messages : 870
Inscription : 17 Juin 2018, 20:39

Re: Une enceinte longue de 3142 Meh nessou ...

  • Citer

Message par Olivier » 21 Avr 2019, 02:53

Bonsoir,

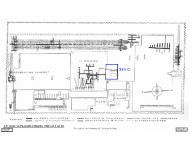
quelqu'un a-t-il déjà remarqué que l'enceinte du temple jouxtant la pyramide intérieure a un périmètre de .... 314 Meh nessous ?
enceinte temple Djeser.png
Amitiés,
Olivier
Haut

Jean François
Site Admin
Messages : 2146
Inscription : 18 Juin 2018, 18:28

Re: Une enceinte longue de 3142 Meh nessou ...

  • Citer

Message par Jean François » 21 Avr 2019, 11:49

Joyeuses Pâques à tous!

Bonjour Olivier

Alors là, faut être sûr, tout en sachant qu'on est sûr de rien, ce serait alors le dixième du périmètre de l'enceinte, avec un diamètre de 100 Meh nessou...serait donc inscrit dans un Setjat.

Faut éplucher tous les rectangles et constater leurs périmètre et surface.

Le Périmètre de la base de la pyramide de Djeser créée par notre Imhotep, et ce ne seront ni le singe, ni l'Ibis de Thot qui me contrediront, bien qu'on ne soit sûr de rien, équivaut à la circonférence d'un cercle de 280 Meh nessou de diamètre, cercle de hauteur de la pyramide de Khoufou, il ne manquait plus que cela...

Et le cercle de même surface de cette base fera 248 Meh nessou de diamètre.

Cela ne va pas être une Pâques tranquille, faudra courir après l'agneau et pas sûr de le rattraper, nous mangerons au moins les flageolets mijotés.

Si c'est 314, c'est génial, dixième du cercle tombé du ciel, car une logique des périmètres, une harmonie, peut apparaître alors comme importante pour retrouver ce qu'Imhotep à choisi comme protocole de création.

Amitiés

Jean François
jeanfrancoiswarein@gmail.com
Haut

Olivier
Site Admin
Messages : 870
Inscription : 17 Juin 2018, 20:39

Re: Une enceinte longue de 3142 Meh nessou ...

  • Citer

Message par Olivier » 21 Avr 2019, 14:29

Joyeuses Pâques Jean François, avec un bel oeuf pour toi :-)

il faut effectivement vérifier car on est jamais sûr de rien.

Toutefois pour rejoindre ce que tu écris ci-dessus, le temple funéraire apparaît comme un rectangle de 121 x 154 Meh Djeser, donc de périmètre 550 Meh Djeser (coudée sacrée) soient 314 Meh nessou (cr), et qui présente de très belles particularités pouvant en expliquer le choix.

Je le vois comme une piste de compréhension de leur forme de communication géométrique.
mehdjeser.png
Amitiés,
Olivier
Haut

Jean François
Site Admin
Messages : 2146
Inscription : 18 Juin 2018, 18:28

Re: Une enceinte longue de 3142 Meh nessou ...

  • Citer

Message par Jean François » 21 Avr 2019, 16:32

Magnifique, Olivier, car des rectangles 14/11 ne courent pas les enceintes, et donne le "la" du diapason, le choix d'Imhotep de sa constante.

Nous pouvons penser que l'enceinte est elle aussi une harmonie de 22/7.

Tout comme la grande cours met en évidence un carré doré, n'est-ce pas Jean Jacques, nous comprendrons qu'à ce stade Imhotep fait de tout bois, 14/11 et rapport doré, quelle est donc la nature de tous les autres rectangles.

Y aurait-il un 3/4, aussi un 4/7 et un racine de 3/ racine de 5?

Mais nous avons déjà le rectangle 10/9 pour la base de la pyramide de Djeser, à rajouter à la palette d'Imhotep!

Amitiés

Jean François
jeanfrancoiswarein@gmail.com
Haut

Répondre
  • Aperçu avant impression

141 messages
  • 1
  • 2
  • 3
  • 4
  • 5
  • 6
  • Suivant

Revenir vers « L'enceinte de Djeser bâtie sur PI ? »

Atteindre
  • CatĂ©gories du forum
  • ↳   Architecture
  • ↳   Afrique
  • ↳   Architecture de l'Egypte ancienne
  • ↳   GĂ©omĂ©trie de la pyramide de KhĂ©ops
  • ↳   La petite Chapelle de SĂ©sostris 1
  • ↳   Gizeh : disposition gĂ©omĂ©trique des pyramides
  • ↳   La pyramide d'Abu Rawash : Redjedef
  • ↳   L'enceinte de Djeser bâtie sur PI ?
  • ↳   Anciennes mesures de surface
  • ↳   A la recherche du Cadastre ...
  • ↳   Les chapelles de SĂ©sostris 1er
  • ↳   La pyramide de Meidoum
  • ↳   le complexe d'Amenemaht III
  • ↳   La chapelle rouge de Karnac
  • ↳   Les chapelles d'albâtre
  • ↳   Le tombeau de Toutânkhamon
  • ↳   KhĂ©phren
  • ↳   MykĂ©rinos
  • ↳   Europe
  • ↳   La cathĂ©drale de Chartres
  • ↳   Notre Dame de Paris
  • ↳   Stonehenge
  • ↳   Chambord
  • ↳   AmĂ©riques
  • ↳   Asie
  • ↳   Australie
  • ↳   Arts visuels et kinesthĂ©siques
  • ↳   Afrique
  • ↳   AmĂ©riques
  • ↳   Asie
  • ↳   Australie
  • ↳   Europe
  • ↳   la peinture et les 3 tables
  • ↳   LĂ©onard De Vinci
  • ↳   La Cène
  • ↳   L'Annonciation
  • ↳   Sandro Botticelli
  • ↳   La naissance de VĂ©nus
  • ↳   L'Annonciation de Botticelli
  • ↳   La Calunnia di Apelle
  • ↳   Piero Della Francesca
  • ↳   Ecrits
  • ↳   Afrique
  • ↳   Textes hiĂ©roglyphiques
  • ↳   AmĂ©riques
  • ↳   Australie
  • ↳   Asie
  • ↳   Europe
  • ↳   En vrac
  • ↳   Musique
  • ↳   Afrique
  • ↳   AmĂ©riques
  • ↳   Asie
  • ↳   Australie
  • ↳   Europe
  • ↳   Sciences et techniques
  • ↳   Afrique
  • ↳   AmĂ©riques
  • ↳   Asie
  • ↳   Australie
  • ↳   Europe
  • ↳   Sciences Humaines
  • ↳   Afrique
  • ↳   AmĂ©riques
  • ↳   Asie
  • ↳   Australie
  • ↳   Europe
  • ↳   Hors sujets en vrac
  • Espaces, formes et contours Espaces, formes et contours
  • Le fuseau horaire est rĂ©glĂ© sur UTC+01:00
  • Supprimer tous les cookies du forum
  • Nous contacter

DĂ©veloppĂ© par phpBB® Forum Software © phpBB Limited

Traduction française officielle © MaĂ«l Soucaze

PRIVACY_LINK | TERMS_LINK