Neak Pean - Espaces, formes et contours

Espaces, formes et contours

Architecture moderne, ancienne, égyptienne, géométrie, harmonie

Accéder au contenu

  • Raccourcis
  • FAQ
  • Connexion
  • Inscription
  • Espaces, formes et contours Espaces, formes et contours CatĂ©gories du forum Architecture Asie

Neak Pean

Répondre
  • Aperçu avant impression
12 messages • Page 1 sur 1
Jean François
Site Admin
Messages : 2167
Inscription : 18 Juin 2018, 18:28

Neak Pean

  • Citer

Message par Jean François » 05 Jan 2026, 21:17

neak-pean_plan.jpg
( Cliquer sur l'image)

Ici un plan qui semble juste en regard des mesures que donne Google map...



Neak Pean 1 a.JPG
( Cliquer sur l'image)

Un carré de 261.8 m de périmètre

Accordé à un cercle lui aussi de 261.8 mètres de circonférence, curieusement de 500 meh nessou Egyptiennes, nous verrons ce cercle plus tard...

viewtopic.php?f=5&t=173#p3641

Rappelons nous de ces 261.8 mètres, qui sont aussi la longueur du temple de Louqsor, trouvés souvent à Angkor Wat
Neak Pean 2 a.JPG
( Cliquer sur l'image)



Neak Pean 3 a.JPG
( Cliquer sur l'image)

Les quatre carrés qui forment les quatre bassins d'eau qui entourent le grand bassin central de 261.8 mètres de périmètre, sont divisés en quatre.

Chacun de ces carrés sont des carrés Remen Égyptiens.

Ils sont composés chacun de quatre Sa Egyptiens !

Étrange n'est-il pas !


Neak Pean 4 a.JPG
( Cliquer sur l'image)

Nous avons placé les 4 carrés Setjat tout autant Egyptiens et curieusement nous servent sur un plat d'argent le cercle du temple.

Et forment un joli Svastika...



Neak Pean 5 avec Plan a.JPG
( Cliquer sur l'image)

Nous avons glissé le plan en dessous du tracé qui lui va comme un gant...
jeanfrancoiswarein@gmail.com
Haut

Jean François
Site Admin
Messages : 2167
Inscription : 18 Juin 2018, 18:28

Re: Neak Pean

  • Citer

Message par Jean François » 07 Jan 2026, 00:45

Neak Pean Drone 11 a.JPG
( Cliquer sur l'image )




Le drone n'est pas tout à fait à la verticale, entraîne une déformation.

Trop beau pour ĂŞtre vrai, quoique...


En observant différentes videos de touristes ou visiteurs éclairés, le tracé externe sur le dessin du bassin central et des bassins qui l'entourent, n' est apparemment pas véritablement dégagé, terre et arbres, si cette limite existe, semblent encore en partie la recouvrir.




Neak Pean Drone.png
( Cliquer sur l'image )



Neak Pean Drone 9.png
( Cliquer sur l'image )





Neak Pean Drone 8.png
( Cliquer sur l'image )



Neak Pean Drone 7.png
( Cliquer sur l'image )




Cette sculpture architecturale permet à l'eau, entre les bassins périphériques et le bassin central, de s'équilibrer en niveau, selon le principe des vases communicants.


Neak Pean Drone 6.png
( Cliquer sur l'image )


Neak Pean Drone 3.png
( Cliquer sur l'image )




Neak Pean Droine 5.png
( Cliquer sur l'image )




Neak Pean Drone 2.png
( Cliquer sur l'image )





Neak Pean drone 10.png
( Cliquer sur l'image )




L'heureux visiteur qui laisse cette photos fondamentale, puisque nous pouvons voir les 10 marches qui dessinent finalement les 10 carrés du bassin central.




Neak Pean.png

( Cliquer sur l'image )
jeanfrancoiswarein@gmail.com
Haut

Jean François
Site Admin
Messages : 2167
Inscription : 18 Juin 2018, 18:28

Re: Neak Pean

  • Citer

Message par Jean François » 08 Jan 2026, 01:06

Jayavarman VII

Qui eut la belle idée de faire construire Neak Pean.

Comment ne pas avoir une si bonne idée, quand on est entouré de personne ayant tant de talent.

L'immense talent du sculpteur qui fit son portrait en tailleur les mains jointes...

Bouddha ne pourrait ĂŞtre plus lumineux...

https://i0.wp.com/theswedishparrot.com/ ... n-VII1.jpg


Jayavarman VII Buste.png
( Cliquer sur l'image )



Jayavarman VII.jpg
( Cliquer sur l'image )



Jayavarman VII Mains jointes.png
( Cliquer sur l'image )


Tant de talent pour ce sculpteur, et s'il était le sculpteur architecte qui a conçu l'ensemble de Neak Pean.

Lieu spirituel, lieu de guérison, un véritable caducet ...

Sculpteur-architecte et Shaman, tel un Imhotep, un Pierre de Montreuil, un Michel Ange, un Tiridate et d'autres.
jeanfrancoiswarein@gmail.com
Haut

Jean François
Site Admin
Messages : 2167
Inscription : 18 Juin 2018, 18:28

Re: Neak Pean

  • Citer

Message par Jean François » 12 Jan 2026, 20:02

Neak Pean 5 avec Plan a.JPG
(Cliquer sur l'image)



Neak Pean Plan avec escalier a.JPG
(Cliquer sur l'image)


Deux plans de sources différentes, évidemment pas complètement superposables, comme d'habitude, la justesse n'étant pas de ce monde.

Le deuxième plan a des escaliers, quatre, leurs emplacements donnent un mouvement de rotation à l'ensemble telle la figure d'un svatiska.

Sur ce deuxième plan nous remarquons que l'eau n'y est pas représenté, et deviennent alors visibles les marches formées par dix carrés inscrits les uns dans les autres et ceci pour le bassin central, et 5 carrés pour les 4 bassins périphériques.

Autres indices et de taille, les quatre sculptures originelles dont ne reste que le cheval aujourd'hui.

Regardons les quatre carrés Setjat qui en se superposant positionnent les quatre sculptures.
jeanfrancoiswarein@gmail.com
Haut

Jean François
Site Admin
Messages : 2167
Inscription : 18 Juin 2018, 18:28

Re: Neak Pean

  • Citer

Message par Jean François » 20 Jan 2026, 15:03

Neak Pean satellite mesures bassin central.JPG
( Cliquer sur l'image )

Beaucoup de temps Ă  rechercher des mesures et cotations fiables...

Impossible, de véritables yoyos tous les plans et dessins trouvés, sans parler des mesures données par l'IA...

Je fais le choix de la mesure satellite du bassin central comme référence, le plus grand carré.


La mesure donnée pointée aux bons endroits est de 68.6 mètres.

Cela fait écho aux gestes opérés sur un carré Heseb, ou un carré Setjat.


Carré Meh Nagarjuni.JPG
( Cliquer sur l'image

Ici le simple geste que l'on opère sur le carré du bassin central de Neak Pean.

S'il fait bien 68.54 mètres, le reste après le tracé des deux cercles qui détermine sur le côté du carré une proportion de Phi carré et 1, soit un 68.54 mètres et 26.18 mètres dans la même proportion du nombre d'or au carré et de l'unité.

La mesure du côté du carré qui complète 26.18 mètres pour obtenir tout le côté de 68.54 mètres est bien 42.36 mètres.

Soit en ordre croissant en mètres 10 Phi carré plus 10 Phi au cube qui bien évidemment nous donnent le côté à 10 Phi puissance quatre.

26.18 mètres sont le côté d'un carré Heseb Égyptien, soit 50 meh nessou, coudées royales, ou 70 meh remen et encore 87 et 1/2 meh djeser, coudées sacrées.

Retenons ce fameux 70 meh remen pour un carré ainsi formé, certainement au départ sur le sol tracé, car bien évidemment, c'est ici la division rationnelle du carré puisque la diagonale fera 99 meh remen.

99/70=1.414285 la racine de 2 étant 1.414213, quelle belle précision sur le terrain pour obtenir des angles droits....

Nous allons donc travailler sur "l'hypothèse" confirmée par la mesure du satellite, soit 68.54 mètres pour le côté du grand carré du bassin central

viewtopic.php?f=7&t=237#p4454

Rappelons nous de la constante au château de Maulnes en France, 6.854 mètres, dixième du côté du grand bassin de Neak Pean...Et c'est aussi à Barabar en Indes...68.54 divisés par 20, largeur de Vadathika et Vapiyaka
jeanfrancoiswarein@gmail.com
Haut

Jean François
Site Admin
Messages : 2167
Inscription : 18 Juin 2018, 18:28

Re: Neak Pean

  • Citer

Message par Jean François » 21 Jan 2026, 20:44

Neak Pean Bassin périphérique.JPG
( Cliquer sur l'image )

Neak Pean  Bassin Périphérique 1.JPG
( Cliquer sur l'image )


Les plus grands carrés des bassins périphériques font 26.18 mètres de côté.

68.54 mètres divisés par Phi carré font bien émerger 26.18 mètres.


Neak Pean Grand et petit bassin b.JPG
( Cliquer sur l'image )


Grand bassin central en orange et bassin périphérique en bleu.
jeanfrancoiswarein@gmail.com
Haut

Jean François
Site Admin
Messages : 2167
Inscription : 18 Juin 2018, 18:28

Re: Neak Pean

  • Citer

Message par Jean François » 22 Jan 2026, 01:23

Neak Pean 5 avec Plan a.JPG
( Cliquer sur l'image )

Reprenons notre premier dessin, sous l'éclairage du satellite il s'avère être le plus fidèle.




Neak Pean Coté grand bassin a.JPG
( Cliquer sur l'image )


Observons le côté du plus grand carré du bassin central, le dessin paramétré avec l'échelle de mesure donne 68.58 mètres.

En théorie et hypothèse nous confirmons que le côté du grand bassin fait donc 68.54 mètres.

Si une bonne âme en visite sur place pouvait vérifier, mon mail est juste en dessous :lol:
jeanfrancoiswarein@gmail.com
Haut

Jean François
Site Admin
Messages : 2167
Inscription : 18 Juin 2018, 18:28

Re: Neak Pean

  • Citer

Message par Jean François » 22 Jan 2026, 14:24

Neak Pean petit et grand bassin 1 et Phi carré a.JPG
( Cliquer sur l''image )



L'étau se resserre-t-il?

Quand on se rapproche de ce qui apparait le plus juste, l'étau ne se resserre aucunement.

Bien au contraire, il se desserre et libère notre regard.

Une image juste apparaît enfin !

Nous pouvons apprivoiser un peu mieux l'invisible des gestes d'un passé lointain qui ont créé l'espace, les formes et contours visibles et présents encore aujourd'hui dans les pierre à Neak Pean au Cambodge.

26.22 mètres pour 26.18 mètres théorique, 68.58 mètres pour 68.54 mètres, mettent en évidence la qualité de ce dessin issu des cotations justes et respectées.

4 cm de décalage sont les conséquences inévitables d'un paramétrage qui a ses limites avec le logiciel geogebra, précision ici au 5/10000.
jeanfrancoiswarein@gmail.com
Haut

Jean François
Site Admin
Messages : 2167
Inscription : 18 Juin 2018, 18:28

Re: Neak Pean

  • Citer

Message par Jean François » 23 Jan 2026, 15:00

Neak Pean orde et arc a.JPG
( Cliquer sur l'image )

Nous continuons l'hypothèse.

Si l'espace entre les bassins est juste sur ce dessin, alors le grand carré qu'il engendre fait bien 75, 43 mètres sur ce dessin.

C'est bien 11 fois 6.857 mètres, et nous sommes très proche de 11 fois 6.854 mètres.

soit un 11/10 entre les côtés de ces deux carrés !

Mais possible aussi un 1.099, au lieu d'un 1.1, rapport entre le côté d'un hexagone et le rayon d'un cercle de même surface !

Mais continuons.

Nous avions perçu que toute l'organisation des pourtours était régi part un carré de 261.8 mètres de périmètres, soit 125 meh nessou de côté.

Ce carré est à la deuxième marche descendante du grand bassin...

Divisons 68.54 mètres par 65.45 mètres, nous obtenons un rapport de 1.0472.

C'est tout simplement le rapport entre l'arc et la corde qui le sous tend, côté d'un hexagone inscrit dans un cercle.

C'est le même rapport qu''entre la meh nessou Egyptienne et la Kûs Sumérienne.

Les gestes, les gestes sont la geste et la geste le vrai récit!

Qui s'occupe des gestes aujourd'hui ?

Notre inculture de la pratique de nos ancêtres est devenue abyssal et nourrit un récit de l'histoire parfois, et malheureusement, délirant.

Et qui ne sont en définitive que des hypothèses d''opinion, qui deviennent avec le temps et en absence de débat des certitudes et des vérités.

Je suis les gestes, je n'ai aucune vérité.

Simplement rester le plus juste possible avec le plus vieux métier du monde de la cité, sculpteur-architecte, et les compétences que ce métier m'a transmises...
jeanfrancoiswarein@gmail.com
Haut

Jean François
Site Admin
Messages : 2167
Inscription : 18 Juin 2018, 18:28

Re: Neak Pean

  • Citer

Message par Jean François » 23 Jan 2026, 15:32

Neak Pean carré 261.8 et carré Setjat en svatiska a.JPG
( Cliquer sur l'image )


Les quatre carrés Setjat, qui structurent le pourtour des bassins, un des sommets de leurs angles droits se pose sur le côté du carré de la deuxième marche du grand bassin.

La soustraction entre ce carré et le grand carré du bassin détermine la mesure entre deux marches du grand bassin
jeanfrancoiswarein@gmail.com
Haut

Jean François
Site Admin
Messages : 2167
Inscription : 18 Juin 2018, 18:28

Re: Neak Pean

  • Citer

Message par Jean François » 25 Jan 2026, 00:33

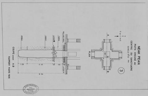
La pièce jointe Neak Pean PLANSCA_2158_141.jpg n’est plus disponible
( Cliquer sur l'image )



Neak Pean PLANSCA_2158_141.jpg
( Cliquer sur l'image )


Neak Pean PLANSCA_2011_141.jpg
( Cliquer sur l'image )


Neak Pean PLANSCA_2011_141.jpg
( Cliquer sur l'image )



Neak Pean PLANSCA_2201_141.jpg
( Cliquer sur l'image )




Neak Pean Coupe PLANSCA_1553_141.jpg
( Cliquer sur l'image )


Malheureusement la digitalisation des documents des archives de l'EFEO est minimaliste, on ne peut même pas lire les précieuses cotations.

C'est une sorte de constante dans la diffusion des connaissances, les cotations ne sont pas essentielles, mais totalement secondaire, juste informative pour percevoir la taille de ce qui est observé.

Malheureusement...
Pièces jointes
Neak Pean PLANSCA_2000_141.jpg
Neak Pean PLANSCA_2154d_141.jpg
Neak Pean PLANSCA_2035_141.jpg
jeanfrancoiswarein@gmail.com
Haut

Jean François
Site Admin
Messages : 2167
Inscription : 18 Juin 2018, 18:28

Re: Neak Pean

  • Citer

Message par Jean François » 26 Jan 2026, 23:17

On va attendre...

j'ai écrit à l'EFEO, dans l'espoir d'obtenir une digitalisation des dessins mieux définis pour pouvoir tout simplement lire les cotations.

Je ne me fais pas trop d''illusion, n'étant pas universitaire, uniquement sculpteur et en retraite.

C'est quoi un sculpteur aujourd'hui ?

Cela existe-t-il encore ? :lol:
jeanfrancoiswarein@gmail.com
Haut

Répondre
  • Aperçu avant impression

12 messages • Page 1 sur 1

Revenir vers « Asie »

Atteindre
  • CatĂ©gories du forum
  • ↳   Architecture
  • ↳   Afrique
  • ↳   Architecture de l'Egypte ancienne
  • ↳   GĂ©omĂ©trie de la pyramide de KhĂ©ops
  • ↳   La petite Chapelle de SĂ©sostris 1
  • ↳   Gizeh : disposition gĂ©omĂ©trique des pyramides
  • ↳   La pyramide d'Abu Rawash : Redjedef
  • ↳   L'enceinte de Djeser bâtie sur PI ?
  • ↳   Anciennes mesures de surface
  • ↳   A la recherche du Cadastre ...
  • ↳   Les chapelles de SĂ©sostris 1er
  • ↳   La pyramide de Meidoum
  • ↳   le complexe d'Amenemaht III
  • ↳   La chapelle rouge de Karnac
  • ↳   Les chapelles d'albâtre
  • ↳   Le tombeau de Toutânkhamon
  • ↳   KhĂ©phren
  • ↳   MykĂ©rinos
  • ↳   Europe
  • ↳   La cathĂ©drale de Chartres
  • ↳   Notre Dame de Paris
  • ↳   Stonehenge
  • ↳   Chambord
  • ↳   AmĂ©riques
  • ↳   Asie
  • ↳   Australie
  • ↳   Arts visuels et kinesthĂ©siques
  • ↳   Afrique
  • ↳   AmĂ©riques
  • ↳   Asie
  • ↳   Australie
  • ↳   Europe
  • ↳   la peinture et les 3 tables
  • ↳   LĂ©onard De Vinci
  • ↳   La Cène
  • ↳   L'Annonciation
  • ↳   Sandro Botticelli
  • ↳   La naissance de VĂ©nus
  • ↳   L'Annonciation de Botticelli
  • ↳   La Calunnia di Apelle
  • ↳   Piero Della Francesca
  • ↳   Ecrits
  • ↳   Afrique
  • ↳   Textes hiĂ©roglyphiques
  • ↳   AmĂ©riques
  • ↳   Australie
  • ↳   Asie
  • ↳   Europe
  • ↳   En vrac
  • ↳   Musique
  • ↳   Afrique
  • ↳   AmĂ©riques
  • ↳   Asie
  • ↳   Australie
  • ↳   Europe
  • ↳   Sciences et techniques
  • ↳   Afrique
  • ↳   AmĂ©riques
  • ↳   Asie
  • ↳   Australie
  • ↳   Europe
  • ↳   Sciences Humaines
  • ↳   Afrique
  • ↳   AmĂ©riques
  • ↳   Asie
  • ↳   Australie
  • ↳   Europe
  • ↳   Hors sujets en vrac
  • Espaces, formes et contours Espaces, formes et contours
  • Le fuseau horaire est rĂ©glĂ© sur UTC+01:00
  • Supprimer tous les cookies du forum
  • Nous contacter

DĂ©veloppĂ© par phpBB® Forum Software © phpBB Limited

Traduction française officielle © MaĂ«l Soucaze

PRIVACY_LINK | TERMS_LINK